※ご入居を検討されているお客様向けの情報サイトです。
※駐車場単体・管理会社・テナントに関するお問合せにはお応えいたしかねます。

恵比寿・広尾・代官山の格安貸事務所、賃貸オフィス(坪単価16,000円以下)

賃料が格安な貸事務所を集めた特集です。この「格安賃料の貸事務所特集」は恵比寿・広尾・代官山(渋谷区)にある1坪あたりの賃料(坪単価)が共益費込で16,000円以下の賃貸オフィスを集めました。月々の賃料が安いのでコスト削減に効果的!大変お得感のあるオフィスビルです。

格安貸事務所(恵比寿・広尾・代官山)

総数:1棟(2件)
  • 1
A・T・Yビルの外観
物件番号:022047
更新日:2026/5/8
渋谷区恵比寿3-28-12
【竣工】1991/4
【階建て】地上6F
【最寄駅】
恵比寿駅8分
【耐震】 新耐震
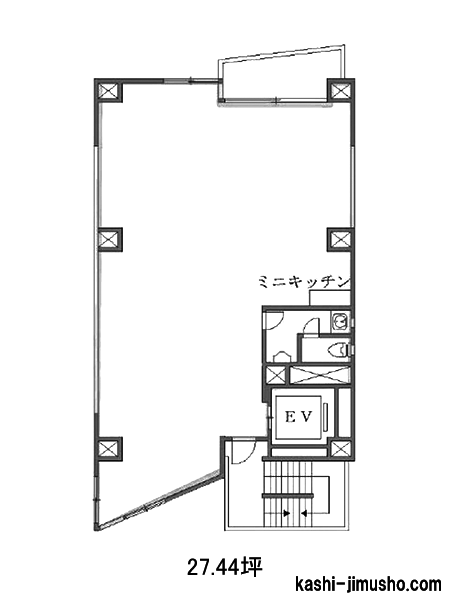
【基準階】 29.25坪 【エントランス】
【駐車場】 - 【エレベーター】 1基
東京都渋谷区恵比寿3丁目に位置するA・T・Yビルは、1991年4月に竣工された地上6階建ての鉄筋コンクリート造(RC造)のオフィスビルです。新耐震基準に適合した設計で、堅牢な構造と安定した管理…
図面 階数 面積 賃料(共益費込)
(坪単価)
保証金/敷金 礼金 入居可能日
3階 G 29.25坪
(96.71m2)
450,000
(15,385)
5ヶ月 1.0ヶ月 即日
4階 G 29.25坪
(96.71m2)
450,000
(15,385)
5ヶ月 1.0ヶ月 即日

非公開物件の賃料目安アイコン

  • 8,000 円未満
  • 8,000 円以上~1.0 万円未満
  • 1.0 万以上~1.2 万円未満
  • 1.2 万以上~1.4 万円未満
  • 1.4 万以上~1.6 万円未満
  • 1.6 万以上~2.0 万円未満
  • 2.0 万以上~2.5 万円未満
  • 2.5 万以上~3.0 万円未満
  • 3.0 万円以上
  • 未定

※取引態様:媒介
※フロア図面と現況が異なる場合は現況を優先いたします。
※貸室内部の写真・貸室からの景色に関しては、現在の募集フロアと異なる場合がございます。

総数:1棟(2件)
  • 1
※取引態様:媒介

その他、恵比寿・広尾・代官山エリアの貸事務所をお探しの方はこちらをクリック
恵比寿・広尾・代官山の貸事務所

格安の貸事務所をエリアで絞る

恵比寿・広尾・代官山の関連特集

「格安オフィス(恵比寿・広尾・代官山)」に関するお問合せ

場所
広さ 坪から
費用面
円~ 円の範囲
その他のご要望
貴社名 担当者名
TEL (例)03-3516-1700 E-Mail

当社の個人情報に関する弊社ガイドラインをご確認いただき、
ご同意いただけたら、送信ボタンを押してください。