※ご入居を検討されているお客様向けの情報サイトです。
※駐車場単体・管理会社・テナントに関するお問合せにはお応えいたしかねます。

渋谷・神宮前の格安貸事務所、賃貸オフィス
(坪単価16,000円以下)

賃料が格安な貸事務所を集めた特集です。この「格安賃料の貸事務所特集」は渋谷・神宮前(渋谷区)にある1坪あたりの賃料(坪単価)が共益費込で16,000円以下の賃貸オフィスを集めました。月々の賃料が安いのでコスト削減に効果的!大変お得感のあるオフィスビルです。

格安貸事務所(渋谷・神宮前)

総数:8棟(8件)
  • 1
代官山コーポラスの外観
物件番号:069581
更新日:2026/4/23
渋谷区猿楽町12-1
【竣工】1956/8
【階建て】地上5F
【最寄駅】
渋谷駅12分
代官山駅12分
【耐震】 旧耐震
【基準階】 【エントランス】 全日開放(24h)
【駐車場】 有り 【エレベーター】
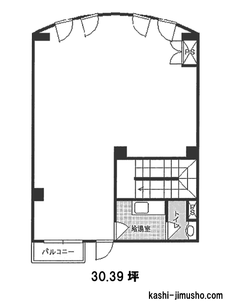
代官山コーポラスは、東京都渋谷区猿楽町12-1に位置する地上5階建てのビルです。1956年8月に竣工し、RC造(鉄筋コンクリート造)で建てられています。最寄り駅は渋谷駅と代官山駅の両方が利用可…
図面 階数 面積 賃料(共益費込)
(坪単価)
保証金/敷金 礼金 入居可能日
1-2階 G 20.89坪
(69.07m2)
318,182
(15,231)
4ヶ月 2.0ヶ月 即日
HT神宮前ビルの外観
物件番号:059320
更新日:2026/4/30
渋谷区神宮前2-19-16
【竣工】1963/11
【階建て】地上5F
【最寄駅】
北参道駅10分
国立競技場駅11分
千駄ヶ谷駅12分
【耐震】 旧耐震
【基準階】 26.16坪 【エントランス】
【駐車場】 無し 【エレベーター】
HT神宮前ビルは、東京都渋谷区神宮前2-19-16に位置する地上5階建てのオフィスビルです。1963年11月に竣工した建物で、RC造で建てられています。交通アクセスは、副都心線北参道駅から徒歩10分で…
図面 階数 面積 賃料(共益費込)
(坪単価)
保証金/敷金 礼金 入居可能日
3階 G 26.16坪
(86.48m2)
330,000
(12,615)
5ヶ月 1.0ヶ月 即日
渋谷YTビル02の外観
物件番号:057270
更新日:2026/4/10
渋谷区神泉町21-3
【竣工】1992/8(改修:2008)
【階建て】地上7F
【最寄駅】
神泉駅4分
池尻大橋駅11分
渋谷駅12分
【耐震】 新耐震
【基準階】 31.17坪 【エントランス】
【駐車場】 無し 【エレベーター】 1基
渋谷YTビル02は、東京都渋谷区神泉町21-3に位置するオフィスビルです。1992年8月に竣工した建物で、構造はRC造の地上7階建てとなっています。新耐震基準に適合しており、必要な耐震性能が確保さ…
図面 階数 面積 賃料(共益費込)
(坪単価)
保証金/敷金 礼金 入居可能日
2階 G 22.61坪
(74.77m2)
349,150
(15,442)
8ヶ月 相談
南平台アジアマンションの外観
物件番号:058279
更新日:2026/4/9
渋谷区南平台町4-8
【竣工】1963/2(改修:2020)
【階建て】地上7F
【最寄駅】
神泉駅7分
渋谷駅8分
【耐震】 旧耐震
【基準階】 120.00坪 【エントランス】 オートロック
【駐車場】 有り 【エレベーター】 1基
角地に位置しているので視認性良好です。白を基調とした清潔感のある外観です。シンプルでレイアウトのしやすい貸室内です。
図面 階数 面積 賃料(共益費込)
(坪単価)
保証金/敷金 礼金 入居可能日
2階 G 28.03坪
(92.67m2)
418,182
(14,920)
5ヶ月 2026/7
中旬
三田ビルの外観
物件番号:020521
更新日:2026/4/28
渋谷区渋谷2-12-6
【竣工】1977/6
【階建て】地上5F
【最寄駅】
渋谷駅7分
【耐震】 旧耐震
【基準階】 30.00坪 【エントランス】
【駐車場】 無し 【エレベーター】 1基
「三田ビル」は、渋谷駅から徒歩7分、六本木通りから少し入った閑静なエリアに位置する、働きやすさと落ち着きを兼ね備えたオフィスビルです。渋谷の中心地にありながら、喧騒を避けた落ち着きの…
図面 階数 面積 賃料(共益費込)
(坪単価)
保証金/敷金 礼金 入居可能日
3階 G 30.00坪
(99.17m2)
450,000
(15,000)
6ヶ月 2.0ヶ月 即日
グリーンファンタジアビルの外観
物件番号:019806
更新日:2026/4/10
渋谷区神宮前1-11-11
【竣工】1965/6(改修:2013)
【階建て】地上7F
【最寄駅】
明治神宮前駅1分
原宿駅3分
表参道駅8分
【耐震】 旧耐震
【基準階】 400.00坪 【エントランス】 全日開放(制限有)
【駐車場】 有り 【エレベーター】 2基
グリーンファンタジアビルは、渋谷区神宮前1丁目に位置する地上7階建てのオフィスビルです。副都心線・千代田線「明治神宮前駅」から徒歩1分、JR山手線「原宿駅」からも徒歩3分と、抜群のアクセ…
図面 階数 面積 賃料(共益費込)
(坪単価)
保証金/敷金 礼金 入居可能日
7階 G 36.12坪
(119.41m2)
450,000
(12,458)
4ヶ月 即日
古川ビルの外観
物件番号:022143
更新日:2026/5/1
渋谷区東1-2-7
【竣工】1973/11
【階建て】地上4F
【最寄駅】
渋谷駅9分
【耐震】 旧耐震
【基準階】 36.19坪 【エントランス】 全日開放(24h)
【駐車場】 有り 【エレベーター】
渋谷駅の複数路線が利用可能です!白を基調とした清潔感のある外観です!ワンフロア・ワンテナントで使い勝手良好です!
図面 階数 面積 賃料(共益費込)
(坪単価)
保証金/敷金 礼金 入居可能日
3階 G 36.19坪
(119.65m2)
506,660
(14,000)
6ヶ月 1.0ヶ月 即日
バティマンイケダビルの外観
物件番号:038548
更新日:2026/5/7
渋谷区神宮前3-35-19
【竣工】1983/8
【階建て】地上6F
【最寄駅】
外苑前駅7分
表参道駅9分
明治神宮前駅10分
【耐震】 新耐震
【基準階】 112.47坪 【エントランス】 平日・土開放
【駐車場】 有り 【エレベーター】 2基
バティマンイケダビルは、東京都渋谷区神宮前3-35-19に位置する、設備充実のハイグレード賃貸オフィスビルです。東京メトロ銀座線の外苑前駅から徒歩7分、東京メトロ半蔵門線・千代田線の表参道…
図面 階数 面積 賃料(共益費込)
(坪単価)
保証金/敷金 礼金 入居可能日
1階 G 32.18坪
(106.38m2)
(未公開)
    賃料目安
  • 1.6 万以上~2.0 万円未満
10ヶ月 2026/7/1

非公開物件の賃料目安アイコン

  • 8,000 円未満
  • 8,000 円以上~1.0 万円未満
  • 1.0 万以上~1.2 万円未満
  • 1.2 万以上~1.4 万円未満
  • 1.4 万以上~1.6 万円未満
  • 1.6 万以上~2.0 万円未満
  • 2.0 万以上~2.5 万円未満
  • 2.5 万以上~3.0 万円未満
  • 3.0 万円以上
  • 未定

※取引態様:媒介
※フロア図面と現況が異なる場合は現況を優先いたします。
※貸室内部の写真・貸室からの景色に関しては、現在の募集フロアと異なる場合がございます。

総数:8棟(8件)
  • 1
※取引態様:媒介

その他、渋谷・神宮前エリアの貸事務所をお探しの方はこちらをクリック
渋谷・神宮前の貸事務所

格安の貸事務所をエリアで絞る

渋谷・神宮前の関連特集

「格安オフィス(渋谷・神宮前)」に関するお問合せ

場所
広さ 坪から
費用面
円~ 円の範囲
その他のご要望
貴社名 担当者名
TEL (例)03-3516-1700 E-Mail

当社の個人情報に関する弊社ガイドラインをご確認いただき、
ご同意いただけたら、送信ボタンを押してください。