新耐震基準の賃貸オフィス特集|安心・安全な貸事務所をお探しの方へ(15~20坪)
企業の事業継続性や社員の安全を考えるうえで、新耐震基準に適合した賃貸オフィスを選ぶことは重要です。貸事務所ドットコムでは、1981年6月以降に建築された新耐震基準対応の貸事務所・オフィス物件を厳選して掲載しています。大地震に備えた構造のオフィスビルは、BCP対策にもつながり、多くの企業から高い支持を得ています。東京を中心とした主要ビジネスエリアの物件を幅広くご紹介中。安心・安全なオフィス環境をお求めの方は、ぜひ本特集をご活用ください。
新耐震基準の貸事務所|東京
物件番号:083292
更新日:2026/4/7
港区赤坂3-17-3
【竣工】2025/6
【階建て】地上13F
|
【最寄駅】
|
【耐震】 |
新耐震 |
| 【基準階】 |
88.47坪 |
【エントランス】 |
オートロック |
| 【駐車場】 |
有り |
【エレベーター】 |
3基 |
H1O赤坂は、東京都港区赤坂3丁目に位置する地上13階建てのオフィスビルです。2025年6月に竣工し、鉄骨造(S造)で建てられています。新耐震基準に適合した安全性の高い構造です。交通アクセスは…

| 図面 |
階数 |
面積 |
賃料(共益費込) (坪単価) |
保証金/敷金 |
礼金 |
入居可能日 |
|
|
3階 |
G 20.42坪 (67.51m2) |
|
(未公開) |
無 |
即日 |
|
物件番号:082725
更新日:2026/4/15
港区芝公園2-9-3
【竣工】2025/4
【階建て】地上5F
|
【最寄駅】
|
【耐震】 |
新耐震 |
| 【基準階】 |
41.92坪 |
【エントランス】 |
オートロック |
| 【駐車場】 |
無し |
【エレベーター】 |
1基 |
芝ファールビルディングは、2025年4月に竣工したばかりのオフィスビルで、東京都港区芝公園二丁目に位置します。最寄りの都営三田線「芝公園駅」からは徒歩4分、都営浅草線および大江戸線の「大…

| 図面 |
階数 |
面積 |
賃料(共益費込) (坪単価) |
保証金/敷金 |
礼金 |
入居可能日 |
|
|
3階 |
G 20.28坪 (67.06m2) |
507,000 (25,000) |
10ヶ月 |
1.0ヶ月 |
即日 |
|
|
4階 |
G 20.28坪 (67.06m2) |
507,000 (25,000) |
10ヶ月 |
1.0ヶ月 |
即日 |
|
物件番号:082575
更新日:2026/4/15
渋谷区道玄坂1-19-12
【竣工】2024/6
【階建て】地上11F
|
【最寄駅】
|
【耐震】 |
新耐震 |
| 【基準階】 |
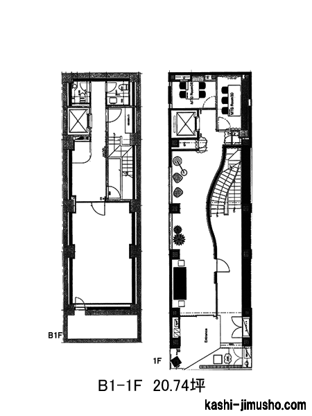
20.74坪 |
【エントランス】 |
全日開放(制限有) |
| 【駐車場】 |
無し |
【エレベーター】 |
1基 |
ReRaiMa渋谷道玄坂は、東京都渋谷区道玄坂1丁目に位置する新築オフィスビルで、2024年6月に竣工予定の最新物件です。渋谷駅から徒歩5〜10分圏内に位置し、京王井の頭線は徒歩5分、東急東横線や副…

| 図面 |
階数 |
面積 |
賃料(共益費込) (坪単価) |
保証金/敷金 |
礼金 |
入居可能日 |
|
|
2階 |
G 20.74坪 (68.57m2) |
|
6ヶ月 |
無 |
即日 |
|
|
9階 |
G 20.74坪 (68.57m2) |
|
6ヶ月 |
無 |
相談 |
|
|
10階 |
G 20.74坪 (68.57m2) |
|
6ヶ月 |
無 |
相談 |
|
|
11階 |
G 20.74坪 (68.57m2) |
|
6ヶ月 |
無 |
相談 |
|
物件番号:082595
更新日:2026/4/10
渋谷区神宮前3-41-6
【竣工】2024/5
【階建て】地上10F
|
【最寄駅】
|
【耐震】 |
新耐震 |
| 【基準階】 |
|
【エントランス】 |
オートロック |
| 【駐車場】 |
無し |
【エレベーター】 |
1基 |
エスペランサ神宮前は、東京都渋谷区神宮前3丁目に2024年5月に竣工した、地上10階建てのオフィスビルです。構造は鉄筋コンクリート造(RC造)で、耐震性に優れた新耐震基準に適合しており、災害…

| 図面 |
階数 |
面積 |
賃料(共益費込) (坪単価) |
保証金/敷金 |
礼金 |
入居可能日 |
|
|
3階 |
G 20.67坪 (68.32m2) |
583,000 (28,205) |
2ヶ月 |
1.0ヶ月 |
即日 |
|
物件番号:079266
更新日:2026/4/17
港区芝大門2-3-7
【竣工】2022/5
【階建て】地上11F
|
【最寄駅】
|
【耐震】 |
新耐震 |
| 【基準階】 |
20.62坪 |
【エントランス】 |
オートロック |
| 【駐車場】 |
有り |
【エレベーター】 |
1基 |
港区芝大門に位置するVILLA 芝大門は、落ち着いたグレーを基調としたシックな印象の賃貸オフィスビルです。最寄りの大門駅(都営浅草線・都営大江戸線)から徒歩わずか2分の好立地にあり、徒歩7分…

| 図面 |
階数 |
面積 |
賃料(共益費込) (坪単価) |
保証金/敷金 |
礼金 |
入居可能日 |
|
|
4階 |
G 20.62坪 (68.15m2) |
577,364 (28,000) |
6ヶ月 |
無 |
即日 |
|
物件番号:073026
更新日:2026/4/16
港区六本木7-8-7
【竣工】2020/3
【階建て】地上8F
|
【最寄駅】
|
【耐震】 |
新耐震 |
| 【基準階】 |
20.52坪 |
【エントランス】 |
オートロック |
| 【駐車場】 |
無し |
【エレベーター】 |
1基 |
複数路線が利用可能で交通アクセス良好です。管理の行き届いた清潔感のあるエントランスです。ワンフロア・ワンテナントなので使い勝手の良い貸室です。

| 図面 |
階数 |
面積 |
賃料(共益費込) (坪単価) |
保証金/敷金 |
礼金 |
入居可能日 |
|
|
5階 |
G 20.52坪 (67.83m2) |
677,160 (33,000) |
4ヶ月 |
無 |
即日 |
|
物件番号:057035
更新日:2026/4/7
中央区日本橋小伝馬町14-10
【竣工】2009/8
【階建て】地上12F 、地下1F
|
【最寄駅】
|
【耐震】 |
新耐震 |
| 【基準階】 |
45.94坪 |
【エントランス】 |
全日開放(制限有) |
| 【駐車場】 |
有り |
【エレベーター】 |
1基 |
アソルティ小伝馬町Liensは、東京都中央区日本橋小伝馬町14-10に位置する地上12階・地下1階建てのオフィスビルです。2009年8月に竣工した鉄骨鉄筋コンクリート造(SRC造)の建物で、新耐震基準を…

| 図面 |
階数 |
面積 |
賃料(共益費込) (坪単価) |
保証金/敷金 |
礼金 |
入居可能日 |
|
|
2階 |
G 20.55坪 (67.95m2) |
493,200 (24,000) |
4ヶ月 |
無 |
即日 |
|
物件番号:051711
更新日:2026/4/13
渋谷区恵比寿2-16-6
【竣工】2006/9
【階建て】地上8F 、地下3F
|
【最寄駅】
|
【耐震】 |
新耐震 |
| 【基準階】 |
20.01坪 |
【エントランス】 |
オートロック |
| 【駐車場】 |
有り |
【エレベーター】 |
1基 |
REXIED恵比寿は、東京都渋谷区恵比寿2-16-6に位置する地上8階・地下3階建てのRC造(鉄筋コンクリート造)オフィスビルです。2006年9月に竣工した建物で、新耐震基準に適合しており、安全性と堅牢…

| 図面 |
階数 |
面積 |
賃料(共益費込) (坪単価) |
保証金/敷金 |
礼金 |
入居可能日 |
|
|
3階 |
G 20.01坪 (66.15m2) |
461,000 (23,039) |
4ヶ月 |
1.0ヶ月 |
2026/5/20 |
|
|
NEW6階 |
G 20.01坪 (66.15m2) |
461,000 (23,039) |
4ヶ月 |
1.0ヶ月 |
2026/7 中旬 |
|
物件番号:019051
更新日:2026/3/24
渋谷区代々木2-9-5
【竣工】2000/1
【階建て】地上10F 、地下1F
|
【最寄駅】
|
【耐震】 |
新耐震 |
| 【基準階】 |
20.05坪 |
【エントランス】 |
全日開放(24h) |
| 【駐車場】 |
無し |
【エレベーター】 |
1基 |
FPG links SHINJUKU Terraceは、東京都渋谷区代々木2-9-5に位置する地上10階・地下1階建てのSRC造(鉄骨鉄筋コンクリート造)オフィスビルです。2000年1月に竣工し、新耐震基準に適合した安全性…

| 図面 |
階数 |
面積 |
賃料(共益費込) (坪単価) |
保証金/敷金 |
礼金 |
入居可能日 |
|
|
3階 |
G 20.05坪 (66.29m2) |
701,750 (35,000) |
10ヶ月 |
1.0ヶ月 |
即日 |
|
物件番号:047320
更新日:2026/4/10
渋谷区恵比寿西1-33-14
【竣工】1999/11
【階建て】地上8F 、地下1F
|
【最寄駅】
|
【耐震】 |
新耐震 |
| 【基準階】 |
20.64坪 |
【エントランス】 |
オートロック |
| 【駐車場】 |
無し |
【エレベーター】 |
1基 |
駒沢通りに面しているので視認性に優れています。白を基調とした明るく清潔感のある外観です。ワンフロア・ワンテナントなので使い勝手良好です。

| 図面 |
階数 |
面積 |
賃料(共益費込) (坪単価) |
保証金/敷金 |
礼金 |
入居可能日 |
|
|
7階 |
G 20.64坪 (68.24m2) |
415,400 (20,126) |
6ヶ月 |
1.0ヶ月 |
相談 |
|
物件番号:027486
更新日:2026/4/1
豊島区南池袋3-18-36
【竣工】1999/5
【階建て】地上10F
|
【最寄駅】
|
【耐震】 |
新耐震 |
| 【基準階】 |
43.84坪 |
【エントランス】 |
平日・土開放 |
| 【駐車場】 |
無し |
【エレベーター】 |
1基 |
富美栄ビルは、東京都豊島区南池袋3丁目に位置する地上10階建てのオフィスビルです。1999年5月に竣工し、鉄骨鉄筋コンクリート造(SRC造)で建てられています。本物件は新耐震基準に適合しており…

| 図面 |
階数 |
面積 |
賃料(共益費込) (坪単価) |
保証金/敷金 |
礼金 |
入居可能日 |
|
|
4階 |
G 20.03坪 (66.22m2) |
350,525 (17,500) |
8ヶ月 |
無 |
即日 |
|
物件番号:016482
更新日:2026/4/2
港区三田3-7-18
【竣工】1997/8
【階建て】地上18F 、地下2F
|
【最寄駅】
|
【耐震】 |
新耐震 |
| 【基準階】 |
141.01坪 |
【エントランス】 |
オートロック |
| 【駐車場】 |
有り |
【エレベーター】 |
2基 |
第一京浜沿いの分かりやすい立地にあります!高級感漂うエントランスが、来訪者をお迎えします!駐車場を完備、社用車を使用する企業様にもおすすめです!

| 図面 |
階数 |
面積 |
賃料(共益費込) (坪単価) |
保証金/敷金 |
礼金 |
入居可能日 |
|
|
12階 |
G 20.69坪 (68.41m2) |
331,040 (16,000) |
6ヶ月 |
無 |
即日 |
|
物件番号:066737
更新日:2026/3/19
渋谷区神宮前2-13-1
【竣工】1997/1
【階建て】地上5F
|
【最寄駅】
|
【耐震】 |
新耐震 |
| 【基準階】 |
20.25坪 |
【エントランス】 |
全日開放(24h) |
| 【駐車場】 |
有り |
【エレベーター】 |
1基 |
外苑通り沿いのわかりやすい立地です!石張りの外観がお洒落なデザイナーズオフィスです!スクエアな部屋型でレイアウトしやすい間取りです!

| 図面 |
階数 |
面積 |
賃料(共益費込) (坪単価) |
保証金/敷金 |
礼金 |
入居可能日 |
|
|
3階 |
G 20.25坪 (66.94m2) |
380,000 (18,765) |
1,300,000 (64,198) |
1.0ヶ月 |
即日 |
|
物件番号:026515
更新日:2026/4/10
豊島区池袋4-1-7
【竣工】1994/9
【階建て】地上7F
|
【最寄駅】
|
【耐震】 |
新耐震 |
| 【基準階】 |
34.45坪 |
【エントランス】 |
全日開放(制限有) |
| 【駐車場】 |
無し |
【エレベーター】 |
1基 |
複数路線が利用可能で交通アクセス良好です。白を基調とした明るい印象の外観です。ワンフロア・ワンテナントなので使い勝手の良い貸室です。

| 図面 |
階数 |
面積 |
賃料(共益費込) (坪単価) |
保証金/敷金 |
礼金 |
入居可能日 |
|
|
7階 |
G 20.12坪 (66.51m2) |
330,000 (16,402) |
4ヶ月 |
1.0ヶ月 |
即日 |
|
物件番号:071818
更新日:2026/4/17
中央区銀座2-14-4
【竣工】1994/6(改修:2019)
【階建て】地上8F 、地下1F
|
【最寄駅】
|
【耐震】 |
新耐震 |
| 【基準階】 |
26.26坪 |
【エントランス】 |
|
| 【駐車場】 |
無し |
【エレベーター】 |
1基 |
複数路線が利用可能で交通アクセス抜群です!シックな色合いでガラス張りの外観は高級感があります!個別空調、OAフロア完備で設備が充実しています!

| 図面 |
階数 |
面積 |
賃料(共益費込) (坪単価) |
保証金/敷金 |
礼金 |
入居可能日 |
|
|
NEWB1-1階 |
G 20.74坪 (68.59m2) |
440,000 (21,215) |
4ヶ月 |
無 |
2026/6 下旬 |
|
物件番号:001391
更新日:2026/4/14
千代田区飯田橋1-4-8
【竣工】1993/8
【階建て】地上10F
|
【最寄駅】
|
【耐震】 |
新耐震 |
| 【基準階】 |
49.85坪 |
【エントランス】 |
全日開放(24h) |
| 【駐車場】 |
無し |
【エレベーター】 |
1基 |
アイルズ・BMビルは、東京都千代田区飯田橋1-4-8に位置する、視認性と利便性を兼ね備えたオフィスビルです。最寄りは東京メトロ東西線・半蔵門線・都営新宿線が利用できる「九段下駅」で、徒歩4…

| 図面 |
階数 |
面積 |
賃料(共益費込) (坪単価) |
保証金/敷金 |
礼金 |
入居可能日 |
|
|
3階 |
G 20.00坪 (66.12m2) |
330,000 (16,500) |
6ヶ月 |
無 |
即日 |
|
物件番号:012781
更新日:2026/4/15
港区南青山6-2-9
【竣工】1993/6
【階建て】地上10F 、地下2F
|
【最寄駅】
|
【耐震】 |
新耐震 |
| 【基準階】 |
76.89坪 |
【エントランス】 |
全日開放(24h) |
| 【駐車場】 |
無し |
【エレベーター】 |
1基 |
KSビルは東京都港区南青山6丁目2-9に位置しています。最寄り駅は表参道駅で、銀座線、半蔵門線、千代田線の3路線が利用でき、都内各所へのアクセスが容易です。このビルは1993年6月に竣工し、地…

| 図面 |
階数 |
面積 |
賃料(共益費込) (坪単価) |
保証金/敷金 |
礼金 |
入居可能日 |
|
|
5階 |
G 20.62坪 (68.17m2) |
474,260 (23,000) |
6ヶ月 |
無 |
相談 |
|
物件番号:083374
更新日:2026/3/19
港区浜松町1-17-14
【竣工】1993/5
【階建て】地上8F 、地下2F
|
【最寄駅】
|
【耐震】 |
新耐震 |
| 【基準階】 |
134.90坪 |
【エントランス】 |
平日のみ開放 |
| 【駐車場】 |
有り |
【エレベーター】 |
1基 |
浜松町ビルは、東京都港区浜松町1丁目に位置する地上8階・地下2階建てのオフィスビルです。1993年5月に竣工し、鉄骨鉄筋コンクリート(SRC)造で建てられています。新耐震基準にも適合しているた…

| 図面 |
階数 |
面積 |
賃料(共益費込) (坪単価) |
保証金/敷金 |
礼金 |
入居可能日 |
|
|
B2階 |
N 20.05坪 (66.31m2) |
|
12ヶ月 |
無 |
即日 |
|
物件番号:045029
更新日:2026/4/1
中央区日本橋本石町4-4-12
【竣工】1992/7
【階建て】地上5F
|
【最寄駅】
|
【耐震】 |
新耐震 |
| 【基準階】 |
20.00坪 |
【エントランス】 |
全日開放(制限有) |
| 【駐車場】 |
無し |
【エレベーター】 |
1基 |
光沢のある白いパネルタイルが印象的な清潔感のあるビル!室内は柱が無くスッキリした形状でレイアウト自在!機械警備システム対応でセキュリティ面も安心!

| 図面 |
階数 |
面積 |
賃料(共益費込) (坪単価) |
保証金/敷金 |
礼金 |
入居可能日 |
|
|
2階 |
G 20.00坪 (67.00m2) |
320,000 (16,000) |
8ヶ月 |
無 |
即日 |
|
物件番号:021984
更新日:2026/3/19
渋谷区恵比寿1-18-5
【竣工】1992/6
【階建て】地上4F 、地下1F
|
【最寄駅】
|
【耐震】 |
新耐震 |
| 【基準階】 |
43.00坪 |
【エントランス】 |
オートロック |
| 【駐車場】 |
有り |
【エレベーター】 |
1基 |
アルカサルは、東京都渋谷区恵比寿1丁目に位置するオフィスビルで、JR山手線・埼京線「恵比寿駅」から徒歩6分、東京メトロ日比谷線「恵比寿駅」から徒歩8分と、交通アクセスに優れた立地にありま…

| 図面 |
階数 |
面積 |
賃料(共益費込) (坪単価) |
保証金/敷金 |
礼金 |
入居可能日 |
|
|
2階 |
G 20.14坪 (66.61m2) |
|
4ヶ月 |
無 |
即日 |
|
物件番号:009230
更新日:2026/4/17
中央区日本橋小伝馬町16-19
【竣工】1992/2(改修:2024)
【階建て】地上8F
|
【最寄駅】
|
【耐震】 |
新耐震 |
| 【基準階】 |
40.30坪 |
【エントランス】 |
平日のみ開放 |
| 【駐車場】 |
有り |
【エレベーター】 |
1基 |
NOVEL WORK kodenmacho は、東京都中央区日本橋小伝馬町16-19に位置する高級感溢れる賃貸オフィスビルです。この物件の最大の魅力は、複数の路線が利用可能な抜群のアクセス環境と、落ち着いた閑…

| 図面 |
階数 |
面積 |
賃料(共益費込) (坪単価) |
保証金/敷金 |
礼金 |
入居可能日 |
|
|
6階 |
G 20.64坪 (68.23m2) |
495,360 (24,000) |
5ヶ月 |
無 |
2026/10 |
|
物件番号:027457
更新日:2026/4/2
豊島区南池袋2-24-2
【竣工】1991/11
【階建て】地上6F
|
【最寄駅】
|
【耐震】 |
新耐震 |
| 【基準階】 |
20.70坪 |
【エントランス】 |
|
| 【駐車場】 |
無し |
【エレベーター】 |
1基 |
複数路線使用可能で交通アクセス抜群です!新耐震基準を満たした安心な物件です!ワンフロア・ワンテナントで使い勝手良好です!

| 図面 |
階数 |
面積 |
賃料(共益費込) (坪単価) |
保証金/敷金 |
礼金 |
入居可能日 |
|
|
2階 |
G 20.70坪 (68.45m2) |
434,700 (21,000) |
6ヶ月 |
2.0ヶ月 |
即日 |
|
物件番号:060267
更新日:2026/4/10
新宿区荒木町6
【竣工】1991/10
【階建て】地上3F
|
【最寄駅】
|
【耐震】 |
新耐震 |
| 【基準階】 |
23.45坪 |
【エントランス】 |
全日開放(24h) |
| 【駐車場】 |
無し |
【エレベーター】 |
無 |
四谷三丁目駅と曙橋駅が利用可能です。閑静な住環境に建つ、使い勝手の良い1F事務所。1Fの為、荷物の搬出入もし易い環境です。

| 図面 |
階数 |
面積 |
賃料(共益費込) (坪単価) |
保証金/敷金 |
礼金 |
入居可能日 |
|
|
3階 |
G 20.27坪 (67.03m2) |
400,000 (19,734) |
(未公開) |
無 |
相談 |
|
物件番号:015107
更新日:2026/4/13
港区芝大門1-3-10
【竣工】1991/10(改修:2023)
【階建て】地上10F
|
【最寄駅】
|
【耐震】 |
新耐震 |
| 【基準階】 |
20.13坪 |
【エントランス】 |
平日のみ開放 |
| 【駐車場】 |
無し |
【エレベーター】 |
1基 |
複数路線利用可能で好立地な物件!モダンでスタイリッシュなオフィスビル!ワンフロア・ワンテナントの使い勝手良好なオフィス空間!

| 図面 |
階数 |
面積 |
賃料(共益費込) (坪単価) |
保証金/敷金 |
礼金 |
入居可能日 |
|
|
NEW3階 |
G 20.13坪 (66.55m2) |
310,000 (15,400) |
10ヶ月 |
無 |
2026/8/1 |
|
物件番号:008605
更新日:2026/4/1
中央区日本橋本石町4-5-1
【竣工】1991/10
【階建て】地上8F
|
【最寄駅】
|
【耐震】 |
新耐震 |
| 【基準階】 |
17.50坪 |
【エントランス】 |
全日開放(24h) |
| 【駐車場】 |
有り |
【エレベーター】 |
1基 |
複数路線が利用可能で交通アクセス良好です。鮮やかなグリーンが目を惹くポップな外観です。ワンフロア・ワンテナントなので使い勝手の良い貸室です。

| 図面 |
階数 |
面積 |
賃料(共益費込) (坪単価) |
保証金/敷金 |
礼金 |
入居可能日 |
|
|
4階 |
G 20.86坪 (68.96m2) |
312,900 (15,000) |
5ヶ月 |
無 |
2026/6 上旬 |
|
物件番号:034624
更新日:2026/3/31
新宿区原町1-18
【竣工】1991/6
【階建て】地上9F 、地下2F
|
【最寄駅】
|
【耐震】 |
新耐震 |
| 【基準階】 |
20.37坪 |
【エントランス】 |
|
| 【駐車場】 |
無し |
【エレベーター】 |
1基 |
松永ビルは、東京都新宿区原町1丁目に位置する地上9階・地下2階建てのオフィスビルで、1991年6月に竣工しました。構造はSRC造(鉄骨鉄筋コンクリート造)で、新耐震基準にも適合しており、地震な…

| 図面 |
階数 |
面積 |
賃料(共益費込) (坪単価) |
保証金/敷金 |
礼金 |
入居可能日 |
|
|
4階 |
G 20.38坪 (67.37m2) |
259,255 (12,721) |
860,000 (42,198) |
1.0ヶ月 |
即日 |
|
物件番号:034828
更新日:2026/4/16
新宿区高田馬場1-29-20
【竣工】1991/4
【階建て】地上8F 、地下1F
|
【最寄駅】
|
【耐震】 |
新耐震 |
| 【基準階】 |
20.72坪 |
【エントランス】 |
オートロック |
| 【駐車場】 |
無し |
【エレベーター】 |
1基 |
安念ビルは、東京都新宿区高田馬場1-29-20に位置する、交通アクセスに優れたオフィスビルです。1991年3月に竣工し、地上8階・地下1階建てのSRC(鉄骨鉄筋コンクリート)構造を採用しています。耐…

| 図面 |
階数 |
面積 |
賃料(共益費込) (坪単価) |
保証金/敷金 |
礼金 |
入居可能日 |
|
|
6階 |
G 20.75坪 (68.48m2) |
340,000 (16,386) |
6ヶ月 |
無 |
即日 |
|
物件番号:022331
更新日:2026/3/19
渋谷区広尾1-4-15
【竣工】1991/4
【階建て】地上5F
|
【最寄駅】
|
【耐震】 |
新耐震 |
| 【基準階】 |
|
【エントランス】 |
全日開放(24h) |
| 【駐車場】 |
有り |
【エレベーター】 |
1基 |
エストレーヤ広尾は、東京都渋谷区広尾1-4-15に位置し、交通の便が非常に良い便利な場所にあるオフィスビルです。最寄り駅はJR山手線と埼京線が利用できる「恵比寿駅」で、徒歩6分の距離にありま…

| 図面 |
階数 |
面積 |
賃料(共益費込) (坪単価) |
保証金/敷金 |
礼金 |
入居可能日 |
|
|
4-5階 |
G 20.85坪 (68.93m2) |
375,300 (18,000) |
6ヶ月 |
1.0ヶ月 |
即日 |
|
物件番号:022552
更新日:2026/4/2
品川区東五反田3-1-6
【竣工】1990/11
【階建て】地上9F
|
【最寄駅】
|
【耐震】 |
新耐震 |
| 【基準階】 |
20.42坪 |
【エントランス】 |
全日開放(24h) |
| 【駐車場】 |
無し |
【エレベーター】 |
1基 |
ウエストワールドビルは1990年竣工の地上9階建てのRC造で、最寄り駅は都営浅草線の高輪台駅から徒歩1分、その他にもJR山手線、都営浅草線、東急池上線の五反田駅からは徒歩9分、JR京浜東北線と京…

| 図面 |
階数 |
面積 |
賃料(共益費込) (坪単価) |
保証金/敷金 |
礼金 |
入居可能日 |
|
|
6階 |
G 20.42坪 (67.53m2) |
320,000 (15,671) |
2,112,000 (103,428) |
無 |
即日 |
|
物件番号:021884
更新日:2026/4/2
渋谷区恵比寿1-16-29
【竣工】1990/6
【階建て】地上5F
|
【最寄駅】
|
【耐震】 |
新耐震 |
| 【基準階】 |
20.01坪 |
【エントランス】 |
全日開放(24h) |
| 【駐車場】 |
- |
【エレベーター】 |
1基 |
デリス第2ビルは、東京都渋谷区恵比寿1丁目に位置する地上5階建てのオフィスビルです。1990年6月に竣工し、鉄骨造(S造)によって建てられています。新耐震基準に適合しており、地震などの自然災…

| 図面 |
階数 |
面積 |
賃料(共益費込) (坪単価) |
保証金/敷金 |
礼金 |
入居可能日 |
|
|
5階 |
G 20.01坪 (66.14m2) |
405,000 (20,240) |
6ヶ月 |
2.0ヶ月 |
即日 |
|
非公開物件の賃料目安アイコン
8,000 円未満
8,000 円以上~1.0 万円未満
1.0 万以上~1.2 万円未満
1.2 万以上~1.4 万円未満
1.4 万以上~1.6 万円未満
1.6 万以上~2.0 万円未満
2.0 万以上~2.5 万円未満
2.5 万以上~3.0 万円未満
3.0 万円以上
未定
※取引態様:媒介
※フロア図面と現況が異なる場合は現況を優先いたします。
※貸室内部の写真・貸室からの景色に関しては、現在の募集フロアと異なる場合がございます。
※取引態様:媒介
新耐震基準の貸事務所|エリア別
耐震性高い貸事務所(制震構造・免震構造)
さらに耐震性が高い、制震構造、免震構造の事務所を賃貸したい方は下記からお探しいただくと便利です。