千代田区の貨物用エレベーターがある貸事務所、賃貸オフィス一覧
東京都千代田区の貨物用のエレベーターがある貸事務所の特集です。搬出・搬入する荷物が多い企業に最適な賃貸オフィスビルを探せます。荷物用のエレベーターやリフトがある物件の情報です。
千代田区の貸事務所、賃貸オフィス【貨物用エレベーターあり】
物件番号:082947
更新日:2026/3/4
千代田区飯田橋2-14-9
【竣工】2025/7
【階建て】地上9F
|
【最寄駅】
|
【耐震】 |
新耐震 |
| 【基準階】 |
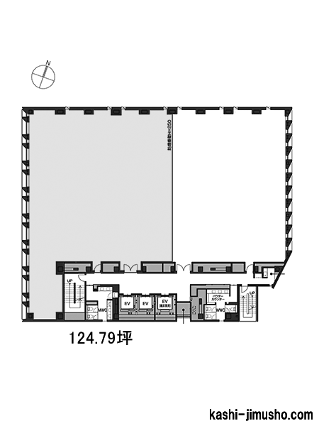
150.83坪 |
【エントランス】 |
オートロック |
| 【駐車場】 |
有り |
【エレベーター】 |
2基 |
東京都千代田区飯田橋に誕生する「BIZCORE飯田橋」は、2025年7月竣工予定の最新型オフィスビルで、目白通り沿いの角地という視認性とアクセス性に優れた立地にあります。東京メトロ東西線やJR総…

| 図面 |
階数 |
面積 |
賃料(共益費込) (坪単価) |
保証金/敷金 |
礼金 |
入居可能日 |
|
|
8階 |
G 150.83坪 (498.61m2) |
|
(未公開) |
無 |
即日 |
|
物件番号:083128
更新日:2026/3/6
千代田区六番町2-19
【竣工】2025/6
【階建て】地上10F
|
【最寄駅】
|
【耐震】 |
新耐震 |
| 【基準階】 |
114.80坪 |
【エントランス】 |
オートロック |
| 【駐車場】 |
有り |
【エレベーター】 |
2基 |
東京都千代田区六番町に誕生する「PMO市ヶ谷」は、2025年6月竣工予定の最新型オフィスビルで、都心での快適かつ効率的な働き方を実現する理想的なビジネス拠点です。市ヶ谷駅から徒歩4分という抜…

| 図面 |
階数 |
面積 |
賃料(共益費込) (坪単価) |
保証金/敷金 |
礼金 |
入居可能日 |
|
|
4階 |
G 114.80坪 (379.52m2) |
|
(未公開) |
無 |
即日 |
|
|
8階 |
G 114.80坪 (379.52m2) |
|
(未公開) |
無 |
即日 |
|
物件番号:082009
更新日:2026/3/9
千代田区九段南4-8-19
【竣工】2024/5
【階建て】地上11F
|
【最寄駅】
|
【耐震】 |
新耐震 |
| 【基準階】 |
158.28坪 |
【エントランス】 |
オートロック |
| 【駐車場】 |
有り |
【エレベーター】 |
2基 |
2024年竣工、市ヶ谷駅から徒歩1分の駅近賃貸オフィスビルです。CIRCLES+市ヶ谷駅前は、東京都千代田区九段南4-8-19に位置する2024年5月に竣工のハイグレードオフィスビルです。JR総武線、有楽町…

| 図面 |
階数 |
面積 |
賃料(共益費込) (坪単価) |
保証金/敷金 |
礼金 |
入居可能日 |
|
|
3階 |
G 158.28坪 (523.25m2) |
|
12ヶ月 |
無 |
即日 |
|
物件番号:082290
更新日:2026/3/13
千代田区神田神保町1-28-1
【竣工】2023/8
【階建て】地上14F
|
【最寄駅】
|
【耐震】 |
新耐震 |
| 【基準階】 |
79.27坪 |
【エントランス】 |
平日のみ開放 |
| 【駐車場】 |
有り |
【エレベーター】 |
2基 |
神保町駅から徒歩3分の賃貸オフィスビルです。東京都千代田区神田神保町1-28-1に位置するmirio神保町です。東京メトロ半蔵門線・都営三田線・都営新宿線の神保町駅から徒歩3分という好立地にあり…

| 図面 |
階数 |
面積 |
賃料(共益費込) (坪単価) |
保証金/敷金 |
礼金 |
入居可能日 |
|
|
12階 |
G 79.27坪 (262.05m2) |
|
(未公開) |
無 |
即日 |
|
物件番号:066438
更新日:2026/3/6
千代田区麹町2-1
【竣工】2017/6
【階建て】地上11F 、地下2F
|
【最寄駅】
|
【耐震】 |
新耐震 |
| 【基準階】 |
171.21坪 |
【エントランス】 |
オートロック |
| 【駐車場】 |
有り |
【エレベーター】 |
3基 |
PMO半蔵門は、千代田区麹町2-1にある物件です。最寄駅は、東京メトロ半蔵門線の半蔵門駅です。半蔵門駅に直結しているので、雨に濡れずにビル内へアクセス可能です。抜群の立地です。徒歩4分圏内…

| 図面 |
階数 |
面積 |
賃料(共益費込) (坪単価) |
保証金/敷金 |
礼金 |
入居可能日 |
|
|
5階 |
G 171.33坪 (566.40m2) |
|
12ヶ月 |
無 |
2026/6 入居前倒し可 |
|
物件番号:065354
更新日:2026/2/17
千代田区大手町1-1-1
【竣工】2017/1
【階建て】地上29F 、地下5F
|
【最寄駅】
|
【耐震】 |
新耐震+制震 |
| 【基準階】 |
1026.00坪 |
【エントランス】 |
平日・土開放 |
| 【駐車場】 |
有り |
【エレベーター】 |
28基 |
東京都千代田区大手町1丁目にある、大手町パークビルです。東京メトロ千代田線・都営三田線・東京メトロ丸ノ内線・東京メトロ東西線・東京メトロ半蔵門線の大手町駅と直結しています。雨に濡れず…

| 図面 |
階数 |
面積 |
賃料(共益費込) (坪単価) |
保証金/敷金 |
礼金 |
入居可能日 |
|
|
7階 |
N 40.65坪 (134.47m2) |
|
(未公開) |
無 |
2026/7/1 |
|
物件番号:060572
更新日:2026/3/2
千代田区神田猿楽町1-5-14
【竣工】2012/1
【階建て】地上9F 、地下1F
|
【最寄駅】
|
【耐震】 |
新耐震 |
| 【基準階】 |
300.80坪 |
【エントランス】 |
平日のみ開放 |
| 【駐車場】 |
有り |
【エレベーター】 |
4基 |
千代田区神田猿楽町1丁目にある、猿楽町SSビルです。最寄駅は、東京メトロ半蔵門線・都営三田線・都営新宿線の神保町駅です。徒歩4分圏内でアクセス可能です。徒歩8分圏内でJR中央線・JR総武線の…

| 図面 |
階数 |
面積 |
賃料(共益費込) (坪単価) |
保証金/敷金 |
礼金 |
入居可能日 |
|
|
8階 |
N 300.80坪 (994.43m2) |
|
10ヶ月 |
無 |
2026/6 |
|
物件番号:052961
更新日:2026/3/11
千代田区平河町2-16-1
【竣工】2009/12
【階建て】地上24F 、地下2F
|
【最寄駅】
|
【耐震】 |
新耐震+制震 |
| 【基準階】 |
468.00坪 |
【エントランス】 |
平日のみ開放 |
| 【駐車場】 |
有り |
【エレベーター】 |
8基 |
平河町森タワーは、東京都千代田区平河町2-16-1に位置するハイグレードなタワーオフィスです。青山通りに面しており、視認性が高く、来訪者への案内もしやすい立地です。周辺は交通量が多く、車…

| 図面 |
階数 |
面積 |
賃料(共益費込) (坪単価) |
保証金/敷金 |
礼金 |
入居可能日 |
|
|
8階 |
N 132.70坪 (438.68m2) |
|
(未公開) |
無 |
即日 |
|
物件番号:044195
更新日:2026/2/24
千代田区丸の内1-9-2
【竣工】2007/10
【階建て】地上42F 、地下4F
|
【最寄駅】
|
【耐震】 |
新耐震+制震 |
| 【基準階】 |
626.00坪 |
【エントランス】 |
平日のみ開放 |
| 【駐車場】 |
有り |
【エレベーター】 |
44基 |
グラントウキョウサウスタワーは、千代田区丸の内の一等地に位置する大型オフィスビルです。外堀通りに面しており、周囲には高層ビルが立ち並ぶ東京の代表的なビジネス街の中心にあります。視認…

| 図面 |
階数 |
面積 |
賃料(共益費込) (坪単価) |
保証金/敷金 |
礼金 |
入居可能日 |
|
|
6階 |
N 25.52坪 (84.33m2) |
|
(未公開) |
無 |
即日 |
|
物件番号:048007
更新日:2026/3/5
千代田区霞が関3-2-1
【竣工】2007/9
【階建て】地上38F 、地下3F
|
【最寄駅】
|
【耐震】 |
新耐震+制震 |
| 【基準階】 |
609.78坪 |
【エントランス】 |
平日・土開放 |
| 【駐車場】 |
有り |
【エレベーター】 |
25基 |
千代田区霞が関3丁目に位置する「霞が関コモンゲート 西館」は、東京を代表するビジネスエリアの中心に建つ大型賃貸オフィスビルです。最寄駅は東京メトロ銀座線・虎ノ門駅で、徒歩1分圏内という…

| 図面 |
階数 |
面積 |
賃料(共益費込) (坪単価) |
保証金/敷金 |
礼金 |
入居可能日 |
|
|
32階 |
N 330.14坪 (1091.30m2) |
|
12ヶ月 |
無 |
即日 |
|
物件番号:041063
更新日:2026/3/6
千代田区九段南2-1-30
【竣工】2005/9
【階建て】地上12F 、地下2F
|
【最寄駅】
|
【耐震】 |
新耐震 |
| 【基準階】 |
254.16坪 |
【エントランス】 |
平日のみ開放 |
| 【駐車場】 |
有り |
【エレベーター】 |
3基 |
イタリア文化会館ビルは、千代田区九段南2丁目に位置する大型賃貸オフィスビルです。皇居の北側に位置し、春には桜の名所として知られる千鳥ヶ淵を望む立地で、四季折々の景観を楽しむことができ…

| 図面 |
階数 |
面積 |
賃料(共益費込) (坪単価) |
保証金/敷金 |
礼金 |
入居可能日 |
|
|
3階 |
N 84.45坪 (279.17m2) |
|
10ヶ月 |
無 |
即日 |
|
|
5階 |
N 254.16坪 (840.20m2) |
|
10ヶ月 |
無 |
2026/10/1 |
|
物件番号:037128
更新日:2026/3/13
千代田区外神田1-18-13
【竣工】2005/3
【階建て】地上30F 、地下2F
|
【最寄駅】
|
【耐震】 |
新耐震+制震 |
| 【基準階】 |
336.00坪 |
【エントランス】 |
全日開放(制限有) |
| 【駐車場】 |
有り |
【エレベーター】 |
12基 |
秋葉原ダイビルは、東京都千代田区外神田1-18-13に位置する地上30階建て地下2階のオフィスビルです。2005年3月に竣工し、SRC造で建てられています。新耐震基準に適合していることに加え、制震構…

| 図面 |
階数 |
面積 |
賃料(共益費込) (坪単価) |
保証金/敷金 |
礼金 |
入居可能日 |
|
|
8階 |
G 114.24坪 (377.66m2) |
|
(未公開) |
無 |
2026/10 予定 |
|
物件番号:037364
更新日:2026/3/9
千代田区丸の内1-6-6
【竣工】2004/8
【階建て】地上28F 、地下4F
|
【最寄駅】
|
【耐震】 |
新耐震 |
| 【基準階】 |
658.68坪 |
【エントランス】 |
平日のみ開放 |
| 【駐車場】 |
有り |
【エレベーター】 |
14基 |
日本生命丸の内ビルは、オフィス入居の絶好のロケーションを誇る賃貸オフィスビルです。東京駅に直結しているため、アクセスに優れ、雨に濡れることなくビル内へとスムーズに移動できます。徒歩1…

| 図面 |
階数 |
面積 |
賃料(共益費込) (坪単価) |
保証金/敷金 |
礼金 |
入居可能日 |
|
|
22階 |
N 168.00坪 (555.37m2) |
|
(未公開) |
無 |
2026/6 |
|
物件番号:000931
更新日:2026/3/2
千代田区大手町1-7-2
【竣工】2000/9
【階建て】地上31F 、地下4F
|
【最寄駅】
|
【耐震】 |
新耐震+制震 |
| 【基準階】 |
536.30坪 |
【エントランス】 |
平日・土開放 |
| 【駐車場】 |
有り |
【エレベーター】 |
19基 |
東京サンケイビルは、東京都千代田区大手町1丁目に位置するハイグレードな賃貸オフィスビルです。最寄駅は大手町駅で、東京メトロ千代田線・丸ノ内線・東西線・半蔵門線、そして都営三田線といっ…

| 図面 |
階数 |
面積 |
賃料(共益費込) (坪単価) |
保証金/敷金 |
礼金 |
入居可能日 |
|
|
25階 |
N 105.82坪 (349.82m2) |
|
(未公開) |
無 |
2026/8/1 |
|
物件番号:000916
更新日:2026/3/4
千代田区大手町2-1-1
【竣工】1994/2
【階建て】地上27F 、地下5F
|
【最寄駅】
|
【耐震】 |
新耐震 |
| 【基準階】 |
488.37坪 |
【エントランス】 |
平日・土開放 |
| 【駐車場】 |
有り |
【エレベーター】 |
12基 |
大手町駅直結のハイグレードオフィス、大成大手町ビル(千代田区大手町2-1-1)は、歴史的建築を復元し現代的な設備を備えた高層インテリジェントビルです。東京メトロ東西線・都営三田線「大手町…

| 図面 |
階数 |
面積 |
賃料(共益費込) (坪単価) |
保証金/敷金 |
礼金 |
入居可能日 |
|
|
1-2階 |
N 471.01坪 (1557.06m2) |
|
(未公開) |
無 |
2026/6/1 |
|
物件番号:054215
更新日:2026/3/9
千代田区紀尾井町4-1
【竣工】1991/1
【階建て】地上30F 、地下3F
|
【最寄駅】
|
【耐震】 |
新耐震 |
| 【基準階】 |
480.00坪 |
【エントランス】 |
全日開放(24h) |
| 【駐車場】 |
有り |
【エレベーター】 |
13基 |
ニューオータニガーデンコートは、千代田区紀尾井町4-1に位置する高級オフィスビルで、ビジネスに最適な環境を提供します。最寄駅は、徒歩2分圏内で東京メトロ銀座線および丸ノ内線の赤坂見附駅…

| 図面 |
階数 |
面積 |
賃料(共益費込) (坪単価) |
保証金/敷金 |
礼金 |
入居可能日 |
|
|
17階 |
N 423.43坪 (1399.77m2) |
|
12ヶ月 |
無 |
2026/7/1 |
|
物件番号:000592
更新日:2026/3/10
千代田区紀尾井町3-12
【竣工】1989/11
【階建て】地上26F 、地下4F
|
【最寄駅】
|
【耐震】 |
新耐震 |
| 【基準階】 |
382.03坪 |
【エントランス】 |
全日開放(制限有) |
| 【駐車場】 |
有り |
【エレベーター】 |
12基 |
千代田区紀尾井町3-12にある、紀尾井町ビルです。最寄駅は、東京メトロ有楽町線の麹町駅です。また、東京メトロ銀座線・丸ノ内線の赤坂見附駅、東京メトロ南北線・半蔵門線の永田町駅も徒歩10分…

| 図面 |
階数 |
面積 |
賃料(共益費込) (坪単価) |
保証金/敷金 |
礼金 |
入居可能日 |
|
|
5階 |
N 81.98坪 (271.01m2) |
|
12ヶ月 |
無 |
即日 |
|
|
18階 |
N 190.60坪 (630.09m2) |
|
12ヶ月 |
無 |
2026/5/1 |
|
物件番号:001209
更新日:2026/3/9
千代田区九段北4-1-7
【竣工】1989(改修:2013)
【階建て】地上11F 、地下2F
|
【最寄駅】
|
【耐震】 |
新耐震 |
| 【基準階】 |
461.62坪 |
【エントランス】 |
平日のみ開放 |
| 【駐車場】 |
有り |
【エレベーター】 |
8基 |
市ヶ谷エリア。地下鉄出口より徒歩2分圏内。基準階400坪以上の大型オフィスビル。 九段センタービルは千代田区九段北4丁目、東京メトロ有楽町線・南北線、都営新宿線の市ヶ谷駅地下鉄出口から徒…

| 図面 |
階数 |
面積 |
賃料(共益費込) (坪単価) |
保証金/敷金 |
礼金 |
入居可能日 |
|
|
8階 |
N 461.49坪 (1525.60m2) |
|
(未公開) |
無 |
2026/5 |
|
物件番号:000646
更新日:2026/3/2
千代田区平河町1-4-12
【竣工】1987/3(改修:2006)
【階建て】地上10F 、地下3F
|
【最寄駅】
|
【耐震】 |
新耐震 |
| 【基準階】 |
138.57坪 |
【エントランス】 |
平日のみ開放 |
| 【駐車場】 |
有り |
【エレベーター】 |
3基 |
東京都千代田区平河町にある平河町センタービルは、スタイリッシュな外観と充実した設備が魅力的なオフィスビルです。立地面では、東京メトロ有楽町線の麹町駅から徒歩わずか2分、半蔵門線の半蔵…

| 図面 |
階数 |
面積 |
賃料(共益費込) (坪単価) |
保証金/敷金 |
礼金 |
入居可能日 |
|
|
10階 |
N 22.66坪 (74.91m2) |
|
(未公開) |
無 |
2026/7 予定 |
|
物件番号:000795
更新日:2026/2/27
千代田区永田町2-13-5
【竣工】1985/2
【階建て】地上8F 、地下3F
|
【最寄駅】
|
【耐震】 |
新耐震 |
| 【基準階】 |
285.81坪 |
【エントランス】 |
平日・土開放 |
| 【駐車場】 |
有り |
【エレベーター】 |
3基 |
千代田区永田町2丁目にある、赤坂エイトワンビルです。最寄駅は、東京メトロ銀座線・東京メトロ丸ノ内線の赤坂見附駅です。徒歩1分圏内でアクセス可能な好立地です。その他に、東京メトロ千代田…

| 図面 |
階数 |
面積 |
賃料(共益費込) (坪単価) |
保証金/敷金 |
礼金 |
入居可能日 |
|
|
4階 |
N 284.22坪 (939.57m2) |
|
12ヶ月 |
無 |
2026/10 |
|
物件番号:000838
更新日:2026/3/13
千代田区内幸町1-3-3
【竣工】1983/1(改修:2020)
【階建て】地上9F 、地下2F
|
【最寄駅】
|
【耐震】 |
旧耐震+補強済 or 基準OK |
| 【基準階】 |
235.01坪 |
【エントランス】 |
平日・土開放 |
| 【駐車場】 |
有り |
【エレベーター】 |
4基 |
内幸町ダイビルは、東京都千代田区内幸町一丁目に位置する重厚感あるオフィスビルです。最寄りの都営三田線「内幸町駅」からは徒歩1分と非常に近く、東京メトロ銀座線やJR山手線・京浜東北線・横…

| 図面 |
階数 |
面積 |
賃料(共益費込) (坪単価) |
保証金/敷金 |
礼金 |
入居可能日 |
|
|
1階 |
N 40.23坪 (132.99m2) |
|
(未公開) |
無 |
2026/7 予定 |
|
物件番号:001026
更新日:2026/3/9
千代田区九段南2-3-14
【竣工】1983(改修:2005)
【階建て】地上11F 、地下1F
|
【最寄駅】
|
【耐震】 |
新耐震 |
| 【基準階】 |
365.00坪 |
【エントランス】 |
平日・土開放 |
| 【駐車場】 |
有り |
【エレベーター】 |
4基 |
千代田区九段南2丁目にある靖国九段南ビルは、東京メトロ東西線・半蔵門線・都営新宿線の九段下駅、JR総武線・東京メトロ有楽町線・東京メトロ南北線の市ヶ谷駅が徒歩10分圏内で利用可能となって…

| 図面 |
階数 |
面積 |
賃料(共益費込) (坪単価) |
保証金/敷金 |
礼金 |
入居可能日 |
|
|
5階 |
N 245.42坪 (811.33m2) |
|
(未公開) |
無 |
2026/8 |
|
|
10階 |
N 230.89坪 (763.28m2) |
|
(未公開) |
無 |
2026/8 |
|
|
11階 |
N 231.00坪 (763.63m2) |
|
(未公開) |
無 |
2026/8 |
|
物件番号:000841
更新日:2026/2/17
千代田区内幸町2-2-2
【竣工】1980/2
【階建て】地上29F 、地下5F
|
【最寄駅】
|
【耐震】 |
旧耐震+補強済 or 基準OK |
| 【基準階】 |
450.40坪 |
【エントランス】 |
平日・土開放 |
| 【駐車場】 |
有り |
【エレベーター】 |
17基 |
富国生命ビルは、東京都千代田区内幸町二丁目に位置する大型オフィスビルで、都営三田線の内幸町駅から徒歩1分という優れた立地条件が魅力です。さらに、東京メトロ霞ヶ関駅やJR新橋駅など複数の…

| 図面 |
階数 |
面積 |
賃料(共益費込) (坪単価) |
保証金/敷金 |
礼金 |
入居可能日 |
|
|
9階 |
N 24.32坪 (80.40m2) |
|
(未公開) |
無 |
即日 |
|
物件番号:000871
更新日:2026/2/17
千代田区有楽町1-7-1
【竣工】1979/3
【階建て】地上18F 、地下4F
|
【最寄駅】
|
【耐震】 |
旧耐震+補強済 or 基準OK |
| 【基準階】 |
184.00坪 |
【エントランス】 |
全日開放(制限有) |
| 【駐車場】 |
有り |
【エレベーター】 |
7基 |
有楽町電気ビル南館は、東京都千代田区有楽町1-7-1にある賃貸オフィスビルです。日比谷駅直結、晴海通り角地に位置する視認性の高い立地です。有楽町駅前に建つツインタワーの南館で存在感抜群で…

| 図面 |
階数 |
面積 |
賃料(共益費込) (坪単価) |
保証金/敷金 |
礼金 |
入居可能日 |
|
|
5階 |
N 37.57坪 (124.20m2) |
|
(未公開) |
無 |
2026/7/1 |
|
物件番号:041992
更新日:2026/2/25
千代田区一ツ橋2-6-2
【竣工】1977/4
【階建て】地上9F 、地下2F
|
【最寄駅】
|
【耐震】 |
旧耐震+補強済 or 基準OK |
| 【基準階】 |
280.00坪 |
【エントランス】 |
全日開放(制限有) |
| 【駐車場】 |
有り |
【エレベーター】 |
4基 |
一般財団法人日本教育会館は、東京都千代田区一ツ橋2-6-2に位置し、1977年4月に竣工した地上9階、地下2階建てのRC(鉄筋コンクリート)造の大型オフィスビルです。このビルは、半蔵門線や都営三…

| 図面 |
階数 |
面積 |
賃料(共益費込) (坪単価) |
保証金/敷金 |
礼金 |
入居可能日 |
|
|
B1階 |
N 30.44坪 (100.63m2) |
669,680 (22,000) |
10ヶ月 |
無 |
2026/6 予定 |
|
|
5階 |
N 21.00坪 (69.42m2) |
462,000 (22,000) |
10ヶ月 |
無 |
2026/4 予定 |
|
物件番号:044498
更新日:2026/3/6
千代田区神田錦町3-11-1
【竣工】1973/5(改修:2001)
【階建て】地上9F 、地下2F
|
【最寄駅】
|
【耐震】 |
旧耐震+補強済 or 基準OK |
| 【基準階】 |
310.00坪 |
【エントランス】 |
平日のみ開放 |
| 【駐車場】 |
有り |
【エレベーター】 |
4基 |
NMF竹橋ビルは、東京都千代田区神田錦町に位置する大型オフィスビルで、1973年5月に竣工し、2001年に大規模改修が実施されました。地上9階、地下2階建ての鉄骨鉄筋コンクリート(SRC造)構造で、…

| 図面 |
階数 |
面積 |
賃料(共益費込) (坪単価) |
保証金/敷金 |
礼金 |
入居可能日 |
|
|
3階 |
N 34.06坪 (112.60m2) |
|
(未公開) |
無 |
2026/4/1 |
|
|
3階 |
N 34.06坪 (112.60m2) |
|
(未公開) |
無 |
2026/4/1 |
|
|
3階 |
N 48.29坪 (159.64m2) |
|
(未公開) |
無 |
2026/4/1 |
|
|
3階 |
N 67.01坪 (221.52m2) |
|
(未公開) |
無 |
2026/4/1 |
|
物件番号:002140
更新日:2026/3/13
千代田区一ツ橋1-1-1
【竣工】1966/9(改修:2010)
【階建て】地上9F 、地下6F
|
【最寄駅】
|
【耐震】 |
旧耐震+補強済 or 基準OK |
| 【基準階】 |
1998.00坪 |
【エントランス】 |
平日・土開放 |
| 【駐車場】 |
有り |
【エレベーター】 |
18基 |
東西線竹橋駅へダイレクトアクセス!駅直結の便利なオフィス!ビルの正面は皇居のお堀!季節の移り変わりを感じる一等地!200社を超えるオフィスやクリニック・店舗が入った大型複合ビル!

| 図面 |
階数 |
面積 |
賃料(共益費込) (坪単価) |
保証金/敷金 |
礼金 |
入居可能日 |
|
|
1階 |
N 41.12坪 (135.93m2) |
|
12ヶ月 |
無 |
2026/6 予定 |
|
物件番号:000789
更新日:2026/2/17
千代田区永田町2-14-2
【竣工】1966/9
【階建て】地上9F 、地下3F
|
【最寄駅】
|
【耐震】 |
旧耐震+補強済 or 基準OK |
| 【基準階】 |
699.00坪 |
【エントランス】 |
平日・土開放 |
| 【駐車場】 |
有り |
【エレベーター】 |
7基 |
千代田区永田町2-14-2にある、山王グランドビルです。東京メトロ銀座線の赤坂見附駅からすぐの立地にある賃貸オフィスビルです。その他に、東京メトロ有楽町線・半蔵門線・南北線の永田町駅、東…

| 図面 |
階数 |
面積 |
賃料(共益費込) (坪単価) |
保証金/敷金 |
礼金 |
入居可能日 |
|
|
B1階 |
N 46.19坪 (152.69m2) |
|
(未公開) |
無 |
即日 |
|
|
1階 |
N 46.77坪 (154.61m2) |
|
(未公開) |
無 |
2026/5/1 |
|
|
2階 |
N 46.28坪 (152.99m2) |
|
(未公開) |
無 |
即日 |
|
|
3階 |
N 81.04坪 (267.90m2) |
|
(未公開) |
無 |
即日 |
|
物件番号:000910
更新日:2026/2/17
千代田区丸の内3-4-1
【竣工】1965/9
【階建て】地上9F 、地下4F
|
【最寄駅】
|
【耐震】 |
旧耐震+補強済 or 基準OK |
| 【基準階】 |
1474.00坪 |
【エントランス】 |
全日開放(制限有) |
| 【駐車場】 |
有り |
【エレベーター】 |
13基 |
千代田区丸の内3丁目にある、新国際ビルです。地下鉄・有楽町駅に直結しています。JR山手線・京浜東北線・東京メトロ有楽町線の有楽町駅、東京メトロ日比谷線・千代田線の日比谷駅、東京メトロ丸…

| 図面 |
階数 |
面積 |
賃料(共益費込) (坪単価) |
保証金/敷金 |
礼金 |
入居可能日 |
|
|
5階 |
N 42.34坪 (139.97m2) |
|
(未公開) |
無 |
即日 |
|
|
9階 |
N 58.65坪 (193.89m2) |
|
(未公開) |
無 |
即日 |
|
物件番号:000907
更新日:2026/2/17
千代田区丸の内2-5-1
【竣工】1964/7
【階建て】地上10F 、地下4F
|
【最寄駅】
|
【耐震】 |
旧耐震+補強済 or 基準OK |
| 【基準階】 |
914.00坪 |
【エントランス】 |
全日開放(制限有) |
| 【駐車場】 |
有り |
【エレベーター】 |
10基 |
丸の内二丁目ビルは、東京都千代田区丸の内2丁目に位置し、日本のビジネスの中心地である丸の内エリアに立地するオフィスビルです。1964年7月に竣工した歴史ある建物でありながら、旧耐震基準の…

| 図面 |
階数 |
面積 |
賃料(共益費込) (坪単価) |
保証金/敷金 |
礼金 |
入居可能日 |
|
|
8階 |
N 914.16坪 (3022.03m2) |
|
(未公開) |
無 |
2027/10 入居前倒し可 |
|
非公開物件の賃料目安アイコン
8,000 円未満
8,000 円以上~1.0 万円未満
1.0 万以上~1.2 万円未満
1.2 万以上~1.4 万円未満
1.4 万以上~1.6 万円未満
1.6 万以上~2.0 万円未満
2.0 万以上~2.5 万円未満
2.5 万以上~3.0 万円未満
3.0 万円以上
未定
※取引態様:媒介
※フロア図面と現況が異なる場合は現況を優先いたします。
※貸室内部の写真・貸室からの景色に関しては、現在の募集フロアと異なる場合がございます。
※取引態様:媒介
貨物用EV・リフト有り貸事務所|エリア別
関連する貸事務所特集
千代田区に関連する貸事務所検索ページ