※ご入居を検討されているお客様向けの情報サイトです。
※駐車場単体・管理会社・テナントに関するお問合せにはお応えいたしかねます。

神田駅の(20~40坪)の貸事務所・賃貸オフィス一覧

神田駅周辺は中小サイズの賃貸オフィスビルが多いビジネス街。

神田駅は、JR山手線、京浜東北線、中央線、東京メトロ銀座線が乗り入れています。所在地は、JR神田駅が千代田区鍛冶町2丁目、東京メトロ神田駅が千代田区神田須田町1丁目になります。神田駅の周辺は、中小オフィスビルが建ち並ぶビジネス街です。また居酒屋なども多く、サラリーマンの街としても知名度の高い地域です。神田西口商店街など昔ながらの商店街が残る親しみやすいエリアです。
このページでは、そんな神田駅周辺の20~40坪の貸事務所を表示しています。

総数:71棟(94件)
小鍛冶ビルの外観
物件番号:002847
更新日:2026/4/20
千代田区内神田3-20-3
【竣工】1986/9(改修:2022)
【階建て】地上8F 、地下1F
【最寄駅】
神田駅1分
淡路町駅6分
【耐震】 新耐震
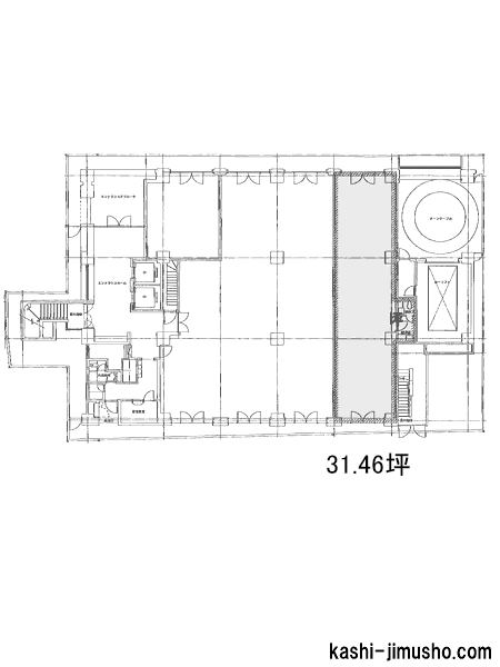
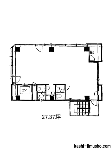
【基準階】 27.37坪 【エントランス】
【駐車場】 無し 【エレベーター】 1基
複数路線が利用可能で交通アクセス抜群です!神田警察通り沿いの角地ビル!日当たり良好です!ワンフロア・ワンテナントで使い勝手良好です!
図面 階数 面積 賃料(共益費込)
(坪単価)
保証金/敷金 礼金 入居可能日
NEW3階 G 27.37坪
(90.48m2)
(未公開)
    賃料目安
  • 未定
(未公開) (未公開) 2026/5
上旬
新八光ビルの外観
物件番号:061006
更新日:2026/4/1
千代田区内神田3-22-9
【竣工】1994/3
【階建て】地上5F 、地下1F
【最寄駅】
神田駅1分
淡路町駅7分
【耐震】 新耐震
【基準階】 31.70坪 【エントランス】 全日開放(24h)
【駐車場】 無し 【エレベーター】 1基
新八光ビルは、東京都千代田区内神田3丁目に位置するオフィスビルで、JR神田駅から徒歩1分という抜群の立地にあります。山手線・中央線・京浜東北線の3路線に加え、東京メトロ銀座線も利用可能で…
図面 階数 面積 賃料(共益費込)
(坪単価)
保証金/敷金 礼金 入居可能日
3階 G 38.30坪
(126.61m2)
804,300
(21,000)
8ヶ月 2.0ヶ月 即日
4階 G 31.70坪
(104.79m2)
665,700
(21,000)
8ヶ月 2.0ヶ月 即日
D2SMの外観
物件番号:082952
更新日:2026/4/17
千代田区神田須田町1-34-3
【竣工】2024/10
【階建て】地上9F
【最寄駅】
神田駅1分
淡路町駅5分
新御茶ノ水駅5分
【耐震】 新耐震
【基準階】 38.77坪 【エントランス】 全日開放(24h)
【駐車場】 無し 【エレベーター】 1基
D2SMは東京都千代田区神田須田町に位置する、2024年10月竣工予定の新築オフィスビルです。銀座線「神田駅」から徒歩わずか1分という駅近の好立地に加え、JR山手線・中央線・京浜東北線「神田駅」…
図面 階数 面積 賃料(共益費込)
(坪単価)
保証金/敷金 礼金 入居可能日
2階 G 38.77坪
(128.16m2)
(未公開)
    賃料目安
  • 3.0 万円以上
10ヶ月 相談
4階 G 38.77坪
(128.16m2)
(未公開)
    賃料目安
  • 2.5 万以上~3.0 万円未満
10ヶ月 相談
5階 G 38.77坪
(128.17m2)
(未公開)
    賃料目安
  • 2.5 万以上~3.0 万円未満
10ヶ月 相談
AVANTIA神田の外観
物件番号:083050
更新日:2026/4/24
千代田区鍛冶町1-7-15
【竣工】2024/3
【階建て】地上3F
【最寄駅】
神田駅2分
新日本橋駅4分
三越前駅6分
【耐震】 新耐震
【基準階】 20.67坪 【エントランス】
【駐車場】 無し 【エレベーター】
東京都千代田区鍛冶町に誕生した「AVANTIA神田」は、2024年3月に竣工したばかりのオフィスビルです。JR山手線・中央線・京浜東北線「神田駅」から徒歩2分という抜群のアクセスを誇り、ビジネスの…
図面 階数 面積 賃料(共益費込)
(坪単価)
保証金/敷金 礼金 入居可能日
NEW1階 G 20.67坪
(68.34m2)
1,200,000
(58,055)
6ヶ月 2026/7
上旬
タイムビル-3の外観
物件番号:003394
更新日:2026/4/3
千代田区神田須田町1-5-15
【竣工】1982/9
【階建て】地上9F
【最寄駅】
神田駅2分
淡路町駅4分
小川町駅4分
【耐震】 旧耐震+補強済 or 基準OK
【基準階】 21.96坪 【エントランス】 全日開放(制限有)
【駐車場】 無し 【エレベーター】 1基
複数路線が利用可能で交通アクセス良好です。管理の行き届いた清潔感のあるエントランスです。ワンフロア・ワンテナントなので使い勝手の良い貸室です。
図面 階数 面積 賃料(共益費込)
(坪単価)
保証金/敷金 礼金 入居可能日
2階 G 21.96坪
(72.60m2)
362,340
(16,500)
8ヶ月 2026/7
上旬
神田吉川ビルの外観
物件番号:003278
更新日:2026/4/13
千代田区神田多町2-4
【竣工】1988/11
【階建て】地上5F
【最寄駅】
神田駅2分
淡路町駅5分
小川町駅5分
【耐震】 新耐震
【基準階】 22.33坪 【エントランス】 全日開放(24h)
【駐車場】 無し 【エレベーター】
神田駅、淡路町駅、小川町駅などの複数路線が利用可能!角地に面する開放的な室内環境!生活インフラ充実の周辺環境!
図面 階数 面積 賃料(共益費込)
(坪単価)
保証金/敷金 礼金 入居可能日
2階 G 22.33坪
(73.82m2)
226,300
(10,134)
5ヶ月 2026/6
上旬
柴崎ビルの外観
物件番号:004966
更新日:2026/4/8
千代田区鍛冶町2-9-17
【竣工】1993/1
【階建て】地上5F
【最寄駅】
神田駅2分
岩本町駅7分
【耐震】 新耐震
【基準階】 22.95坪 【エントランス】
【駐車場】 無し 【エレベーター】 1基
複数路線が利用可能で交通アクセス良好です。シンプルな形状でレイアウトのしやすい貸室です。ワンフロア・ワンテナントなので使い勝手抜群です。
図面 階数 面積 賃料(共益費込)
(坪単価)
保証金/敷金 礼金 入居可能日
4階 G 22.95坪
(75.86m2)
280,000
(12,200)
4ヶ月 1.0ヶ月 相談
戸羽ビルの外観
物件番号:057997
更新日:2026/4/1
千代田区内神田3-4-7
【竣工】1984/9(改修:2020)
【階建て】地上7F
【最寄駅】
神田駅2分
新日本橋駅7分
大手町駅8分
【耐震】 新耐震
【基準階】 25.04坪 【エントランス】 平日・土開放
【駐車場】 無し 【エレベーター】 1基
都心でアクセスの良いオフィスを探している方におすすめなのが「戸羽ビル」です。神田駅から徒歩2分という抜群の立地にあり、ビジネスのスピード感を重視する企業にとって理想的な拠点となります…
図面 階数 面積 賃料(共益費込)
(坪単価)
保証金/敷金 礼金 入居可能日
2階 G 25.04坪
(82.77m2)
425,680
(17,000)
6ヶ月 2026/6
下旬
VORT神田の外観
物件番号:051854
更新日:2026/4/8
千代田区鍛冶町1-3-1
【竣工】2007/3
【階建て】地上9F 、地下1F
【最寄駅】
神田駅2分
新日本橋駅4分
【耐震】 新耐震
【基準階】 25.62坪 【エントランス】 オートロック
【駐車場】 無し 【エレベーター】 1基
VORT神田は、東京都千代田区鍛冶町1丁目に位置するオフィスビルで、神田駅から徒歩2分という抜群の立地が魅力です。JR山手線・中央線・京浜東北線、東京メトロ銀座線が乗り入れる神田駅が最寄り…
図面 階数 面積 賃料(共益費込)
(坪単価)
保証金/敷金 礼金 入居可能日
3階 G 25.62坪
(84.69m2)
(未公開)
    賃料目安
  • 2.0 万以上~2.5 万円未満
5ヶ月 1.0ヶ月 2026/8/20
ゆまにビルの外観
物件番号:002776
更新日:2026/4/16
千代田区内神田2-7-6
【竣工】1985/3
【階建て】地上5F 、地下1F
【最寄駅】
神田駅2分
大手町駅3分
小川町駅5分
【耐震】 新耐震
【基準階】 39.80坪 【エントランス】
【駐車場】 無し 【エレベーター】 1基
ゆまにビルは、東京都千代田区内神田2丁目に位置する地上5階・地下1階建てのオフィスビルです。1985年3月に竣工し、構造は鉄筋コンクリート造(RC造)、新耐震基準に適合しており、耐震性と安全…
図面 階数 面積 賃料(共益費込)
(坪単価)
保証金/敷金 礼金 入居可能日
1階 G 30.00坪
(99.11m2)
690,000
(23,000)
8ヶ月 相談
須田町ビルの外観
物件番号:003520
更新日:2026/4/13
千代田区神田須田町1-3-1
【竣工】1993/5
【階建て】地上10F 、地下1F
【最寄駅】
神田駅2分
淡路町駅2分
小川町駅2分
【耐震】 新耐震
【基準階】 30.89坪 【エントランス】 平日のみ開放
【駐車場】 無し 【エレベーター】 1基
須田町ビルは、東京都千代田区神田須田町1-3-1に位置する、優れた立地条件を誇る貸事務所物件です。靖国通りに面した角地に建つこのビルは、視認性が高く、アクセスの良さが特徴です。交通の便は…
図面 階数 面積 賃料(共益費込)
(坪単価)
保証金/敷金 礼金 入居可能日
2階 G 30.89坪
(102.12m2)
803,140
(26,000)
6ヶ月 即日
7階 G 32.65坪
(107.93m2)
848,900
(26,000)
6ヶ月 即日
合同ビルの外観
物件番号:069914
更新日:2026/4/8
千代田区鍛冶町1-6-17
【竣工】1963/12
【階建て】地上7F 、地下2F
【最寄駅】
神田駅2分
新日本橋駅5分
【耐震】 旧耐震
【基準階】 66.42坪 【エントランス】 平日・土開放
【駐車場】 無し 【エレベーター】 1基
合同ビルは、東京都千代田区鍛冶町1丁目に位置し、JR山手線・中央線・京浜東北線および東京メトロ銀座線の「神田駅」から徒歩2分という非常に便利な立地にあります。さらに、JR総武線快速の「新…
図面 階数 面積 賃料(共益費込)
(坪単価)
保証金/敷金 礼金 入居可能日
7階 G 34.60坪
(114.38m2)
588,200
(17,000)
6ヶ月 2026/5
上旬
神田ミハマビルの外観
物件番号:012394
更新日:2026/4/24
千代田区神田須田町1-7
【竣工】1987/4(改修:2022)
【階建て】地上10F
【最寄駅】
神田駅2分
秋葉原駅5分
【耐震】 新耐震
【基準階】 56.90坪 【エントランス】 平日・土開放
【駐車場】 有り 【エレベーター】 1基
神田ミハマビルは、東京都千代田区神田須田町1-7に所在するオフィスビルで、神田駅および秋葉原駅を利用できる交通利便性の高い立地が特長です。東京メトロ銀座線「神田駅」徒歩2分、JR山手線・…
図面 階数 面積 賃料(共益費込)
(坪単価)
保証金/敷金 礼金 入居可能日
3階 G 34.60坪
(114.38m2)
588,200
(17,000)
8ヶ月 即日
クレス不動産神田ビルの外観
物件番号:003327
更新日:2026/4/17
千代田区神田須田町1-32
【竣工】1991/7(改修:2019)
【階建て】地上5F 、地下1F
【最寄駅】
神田駅2分
淡路町駅4分
小川町駅4分
【耐震】 新耐震
【基準階】 37.17坪 【エントランス】 全日開放(制限有)
【駐車場】 有り 【エレベーター】 1基
クレス不動産神田ビルは、千代田区神田須田町1-32に位置する、アクセス性と快適性を兼ね備えた賃貸オフィスビルです。この物件の最大の魅力は、複数の主要路線へのアクセスの良さにあります。東…
図面 階数 面積 賃料(共益費込)
(坪単価)
保証金/敷金 礼金 入居可能日
4階 G 37.17坪
(122.38m2)
929,250
(25,000)
4ヶ月 2026/9/1
日東本石町ビルの外観
物件番号:008605
更新日:2026/4/1
中央区日本橋本石町4-5-1
【竣工】1991/10
【階建て】地上8F
【最寄駅】
神田駅3分
新日本橋駅3分
三越前駅5分
【耐震】 新耐震
【基準階】 17.50坪 【エントランス】 全日開放(24h)
【駐車場】 有り 【エレベーター】 1基
複数路線が利用可能で交通アクセス良好です。鮮やかなグリーンが目を惹くポップな外観です。ワンフロア・ワンテナントなので使い勝手の良い貸室です。
図面 階数 面積 賃料(共益費込)
(坪単価)
保証金/敷金 礼金 入居可能日
4階 G 20.86坪
(68.96m2)
312,900
(15,000)
5ヶ月 2026/6
上旬
須田町ビルEASTの外観
物件番号:003353
更新日:2026/4/15
千代田区神田須田町1-3
【竣工】1980/12(改修:1998)
【階建て】地上9F
【最寄駅】
淡路町駅2分
小川町駅2分
神田駅3分
【耐震】 旧耐震
【基準階】 20.96坪 【エントランス】 平日のみ開放
【駐車場】 無し 【エレベーター】 1基
東京都千代田区神田須田町1丁目に位置する「須田町ビルEAST」は、4駅7路線が利用可能という優れた交通利便性を備え、都心のビジネス拠点として好立地の賃貸オフィス物件です。淡路町駅や小川町駅…
図面 階数 面積 賃料(共益費込)
(坪単価)
保証金/敷金 礼金 入居可能日
5階 G 20.96坪
(69.29m2)
293,440
(14,000)
8ヶ月 即日
新東ビルの外観
物件番号:002782
更新日:2026/4/6
千代田区内神田2-8-3
【竣工】1968/10
【階建て】地上7F 、地下1F
【最寄駅】
神田駅3分
大手町駅5分
新日本橋駅8分
【耐震】 旧耐震
【基準階】 22.00坪 【エントランス】 全日開放(24h)
【駐車場】 無し 【エレベーター】 1基
都心の利便性を重視しつつ、落ち着いた環境のオフィスをお探しの方におすすめしたいのが「新東ビル」です。神田駅から徒歩3分というアクセスの良さに加え、大手町や新日本橋といった主要エリアへ…
図面 階数 面積 賃料(共益費込)
(坪単価)
保証金/敷金 礼金 入居可能日
5階 G 21.50坪
(71.10m2)
258,000
(12,000)
1,182,000
(55,000)
即日
三好ビルの外観
物件番号:003240
更新日:2026/4/20
千代田区神田多町2-7-3
【竣工】1998/10
【階建て】地上8F
【最寄駅】
神田駅3分
淡路町駅5分
小川町駅5分
【耐震】 新耐震
【基準階】 23.50坪 【エントランス】 平日・土開放
【駐車場】 有り 【エレベーター】 1基
三好ビルは、東京都千代田区神田多町に位置するオフィスビルで、JR山手線・中央線・銀座線の神田駅から徒歩3分という非常に便利な立地にあります。さらに、丸ノ内線の淡路町駅と都営新宿線の小川…
図面 階数 面積 賃料(共益費込)
(坪単価)
保証金/敷金 礼金 入居可能日
2階 G 23.50坪
(77.69m2)
305,500
(13,000)
2,200,000
(93,617)
即日
4階 G 23.50坪
(77.69m2)
329,000
(14,000)
2,200,000
(93,617)
相談
神保ビルの外観
物件番号:004859
更新日:2026/4/17
千代田区神田紺屋町20-1
【竣工】1973/1(改修:2008)
【階建て】地上7F
【最寄駅】
神田駅3分
岩本町駅6分
【耐震】 旧耐震
【基準階】 48.38坪 【エントランス】 平日のみ開放
【駐車場】 有り 【エレベーター】 1基
複数路線が利用可能で交通アクセス良好な貸事務所です!角地の為、採光性が期待できます!トイレは室外で男女別になっています!
図面 階数 面積 賃料(共益費込)
(坪単価)
保証金/敷金 礼金 入居可能日
4階 G 23.97坪
(79.23m2)
266,000
(11,097)
6ヶ月 1.0ヶ月 即日
DeLCCS神田の外観
物件番号:058643
更新日:2026/4/1
千代田区神田東松下町29-6
【竣工】2010/2
【階建て】地上9F
【最寄駅】
岩本町駅2分
神田駅3分
秋葉原駅4分
【耐震】 新耐震
【基準階】 25.24坪 【エントランス】 オートロック
【駐車場】 無し 【エレベーター】 1基
JR・地下鉄も利用可能な便利な立地!天井ボードが抜いてあるお洒落な室内!OAフロア、男女別トイレなど設備充実!
図面 階数 面積 賃料(共益費込)
(坪単価)
保証金/敷金 礼金 入居可能日
4階 G 25.24坪
(83.47m2)
504,800
(20,000)
6ヶ月 2026/6
下旬
バンセイ室町ビルの外観
物件番号:008720
更新日:2026/4/8
中央区日本橋室町4-3-12
【竣工】1997/9
【階建て】地上10F
【最寄駅】
新日本橋駅1分
三越前駅2分
神田駅3分
【耐震】 新耐震
【基準階】 25.50坪 【エントランス】 平日・土開放
【駐車場】 無し 【エレベーター】 1基
スモークガラス張りのシャープなビルです!白い石張りの綺麗なエントランスです!機械警備システム対応でセキュリティも安心です!
図面 階数 面積 賃料(共益費込)
(坪単価)
保証金/敷金 礼金 入居可能日
5階 G 25.50坪
(84.30m2)
586,500
(23,000)
10ヶ月 2026/6
中旬
神田カドウチビルの外観
物件番号:070563
更新日:2026/4/17
千代田区神田鍛冶町3-7
【竣工】2019/1
【階建て】地上10F 、地下1F
【最寄駅】
神田駅3分
淡路町駅6分
小川町駅6分
【耐震】 新耐震
【基準階】 27.07坪 【エントランス】 オートロック
【駐車場】 無し 【エレベーター】 1基
神田カドウチビルは東京都千代田区神田鍛冶町に位置する、2019年1月に竣工した新耐震基準に対応したオフィスビルです。JR山手線・中央線・京浜東北線の「神田駅」から徒歩3分という駅近の好立地…
図面 階数 面積 賃料(共益費込)
(坪単価)
保証金/敷金 礼金 入居可能日
8階 G 27.07坪
(89.49m2)
676,750
(25,000)
6ヶ月 即日
竹橋ビルの外観
物件番号:003099
更新日:2026/4/13
千代田区内神田2-15-15
【竣工】1987/12
【階建て】地上6F
【最寄駅】
神田駅3分
淡路町駅6分
小川町駅7分
【耐震】 新耐震
【基準階】 84.00坪 【エントランス】
【駐車場】 無し 【エレベーター】 1基
東京都千代田区内神田2丁目という、ビジネスの利便性と機動力が求められる企業にとって理想的な立地に位置する「竹橋ビル」は、複数路線が利用できる優れたアクセス環境と、実用性に優れたオフィ…
図面 階数 面積 賃料(共益費込)
(坪単価)
保証金/敷金 礼金 入居可能日
4階 G 27.46坪
(90.78m2)
384,440
(14,000)
6ヶ月 即日
NSビルの外観
物件番号:003361
更新日:2026/4/3
千代田区神田須田町1-32
【竣工】1987/1
【階建て】地上6F 、地下1F
【最寄駅】
神田駅3分
小川町駅3分
淡路町駅4分
【耐震】 新耐震
【基準階】 46.09坪 【エントランス】 平日・土開放
【駐車場】 無し 【エレベーター】 1基
東京都千代田区神田須田町にある「NSビル」は、JR山手線・中央線・京浜東北線の神田駅から徒歩3分、さらに都営新宿線の小川町駅や東京メトロ丸ノ内線の淡路町駅も徒歩4分圏内と、複数路線を利用…
図面 階数 面積 賃料(共益費込)
(坪単価)
保証金/敷金 礼金 入居可能日
1階 G 27.96坪
(92.43m2)
503,280
(18,000)
10ヶ月 即日
ディアマントビルの外観
物件番号:003340
更新日:2026/4/24
千代田区神田須田町1-5-14
【竣工】1984/8
【階建て】地上10F
【最寄駅】
神田駅3分
淡路町駅3分
小川町駅3分
【耐震】 新耐震
【基準階】 33.33坪 【エントランス】 全日開放(制限有)
【駐車場】 無し 【エレベーター】 1基
須田町交差点至近、神田須田町エリアの賃貸オフィスビルです。ディアマントビルは、東京都千代田区神田須田町1-4-6に位置するオフィスビルで、都心のビジネス拠点として非常に魅力的な物件です。…
図面 階数 面積 賃料(共益費込)
(坪単価)
保証金/敷金 礼金 入居可能日
1階 G 28.70坪
(94.90m2)
602,700
(21,000)
10ヶ月 1.0ヶ月 相談
友泉本石町ビルの外観
物件番号:036559
更新日:2026/4/16
中央区日本橋本石町4-5-12
【竣工】2003/6
【階建て】地上9F
【最寄駅】
新日本橋駅2分
神田駅3分
三越前駅5分
【耐震】 新耐震
【基準階】 30.21坪 【エントランス】 平日・土開放
【駐車場】 無し 【エレベーター】 1基
友泉本石町ビルは、東京都中央区日本橋本石町四丁目に位置し、利便性と落ち着きを兼ね備えたオフィスビルです。日本橋・神田エリアに隣接する立地は、古くから商業や金融の街として発展してきた…
図面 階数 面積 賃料(共益費込)
(坪単価)
保証金/敷金 礼金 入居可能日
5階 G 30.21坪
(99.86m2)
664,620
(22,000)
8ヶ月 2026/5/1
7階 G 30.21坪
(99.86m2)
664,620
(22,000)
8ヶ月 即日
大竹ビルの外観
物件番号:004892
更新日:2026/4/7
千代田区神田北乗物町12
【竣工】1978/3(改修:1999)
【階建て】地上7F 、地下1F
【最寄駅】
神田駅3分
新日本橋駅6分
岩本町駅6分
【耐震】 旧耐震
【基準階】 31.02坪 【エントランス】 平日・土開放
【駐車場】 無し 【エレベーター】 1基
大竹ビルは、東京都千代田区神田北乗物町に位置するオフィスビルで、アクセスの利便性が非常に高い点が魅力です。最寄り駅であるJR山手線、中央線、京浜東北線の神田駅からは徒歩3分と非常に近く…
図面 階数 面積 賃料(共益費込)
(坪単価)
保証金/敷金 礼金 入居可能日
3階 G 31.02坪
(102.55m2)
480,810
(15,500)
10ヶ月 即日
5階 G 31.02坪
(102.55m2)
480,810
(15,500)
10ヶ月 即日
平沢ビルの外観
物件番号:002987
更新日:2026/4/16
千代田区内神田2-3-14
【竣工】1959/4
【階建て】地上6F
【最寄駅】
神田駅3分
大手町駅6分
新日本橋駅7分
【耐震】 旧耐震
【基準階】 33.24坪 【エントランス】 平日・土開放
【駐車場】 有り 【エレベーター】 1基
平沢ビルは、東京都千代田区内神田2-3-14に位置するオフィスビルです。最寄りの神田駅へはJR山手線・中央線・京浜東北線、さらに東京メトロ銀座線がいずれも徒歩3分で利用可能という好立地にあり…
図面 階数 面積 賃料(共益費込)
(坪単価)
保証金/敷金 礼金 入居可能日
6階 G 33.24坪
(109.88m2)
332,400
(10,000)
6ヶ月 2026/6
上旬
神田松楠ビルの外観
物件番号:003149
更新日:2026/4/23
千代田区内神田2-7-10
【竣工】1994/5
【階建て】地上9F
【最寄駅】
神田駅3分
大手町駅7分
新日本橋駅8分
【耐震】 新耐震
【基準階】 33.00坪 【エントランス】 平日・土開放
【駐車場】 無し 【エレベーター】 1基
神田駅から徒歩3分の好立地にある神田松楠ビルは、落ち着いた印象のグレーの外観が特徴の貸事務所です。この物件は、東京都千代田区内神田2-7-10に位置しており、JR山手線、中央線、京浜東北線の…
図面 階数 面積 賃料(共益費込)
(坪単価)
保証金/敷金 礼金 入居可能日
3階 G 37.07坪
(122.56m2)
685,795
(18,500)
12ヶ月 即日
MA SQUARE AKIHABARAの外観
物件番号:003374
更新日:2026/4/17
千代田区神田須田町2-1-1
【竣工】1990/7(改修:2023)
【階建て】地上8F 、地下1F
【最寄駅】
神田駅3分
岩本町駅3分
秋葉原駅5分
【耐震】 新耐震
【基準階】 39.98坪 【エントランス】 平日・土開放
【駐車場】 無し 【エレベーター】 2基
MA SQUARE AKIHABARAは、千代田区神田須田町2丁目に位置する、交通利便性と設備充実の両方を備えた賃貸オフィスビルです。靖国通り沿いの角地に建ち、視認性に優れているため、来訪者への案内が…
図面 階数 面積 賃料(共益費込)
(坪単価)
保証金/敷金 礼金 入居可能日
3階 G 39.98坪
(132.19m2)
959,520
(24,000)
6ヶ月 即日
7階 G 39.98坪
(132.19m2)
959,520
(24,000)
6ヶ月 2026/7/1

非公開物件の賃料目安アイコン

  • 8,000 円未満
  • 8,000 円以上~1.0 万円未満
  • 1.0 万以上~1.2 万円未満
  • 1.2 万以上~1.4 万円未満
  • 1.4 万以上~1.6 万円未満
  • 1.6 万以上~2.0 万円未満
  • 2.0 万以上~2.5 万円未満
  • 2.5 万以上~3.0 万円未満
  • 3.0 万円以上
  • 未定

※取引態様:媒介
※フロア図面と現況が異なる場合は現況を優先いたします。
※貸室内部の写真・貸室からの景色に関しては、現在の募集フロアと異なる場合がございます。

総数:71棟(94件)

(東京)の賃料相場

(東京)エリアの平均賃料

で募集している物件の、1坪あたりの賃料(共益費を含む)の平均価格です。
数値の右側にある矢印は、一週間前の数値と比較した結果を表しています。
賃料価格は毎日集計をしている最新の値です。

  • 2040 未調査
  • 4060 未調査
  • 60100 未調査
  • 100坪以上 未調査

(東京)エリアの募集賃料

の1坪あたりの賃料(共益費を含む)価格帯ごとの募集物件数です。
表の数値をクリックすると募集物件の一覧表が表示します。

【2026/04/26更新】

エリアが指定されていません。
募集賃料(円)8千未満0.8~1.0万1.0~1.2万1.2~1.4万1.4~1.6万1.6~2.0万2.0~2.5万2.5~3.0万3.0万以上