袋町(40~60坪 新宿区)の貸事務所・賃貸オフィス一覧
【2026/05/09更新】袋町(新宿区)の貸事務所について
静けさと利便性が整う袋町エリア
袋町エリアは、新宿区の神楽坂エリアに隣接し、落ち着いた街並みと利便性を兼ね備えたビジネスエリアです。最寄り駅は都営大江戸線「牛込神楽坂駅」で、都心各地へのアクセスも快適です。歴史ある路地や石畳の残る周辺環境は、静かな執務環境を求める士業事務所やコンサルタント、クリエイティブ系企業に特に人気です。近隣には飲食店やカフェ、生活利便施設も充実しており、働く人にとっても快適な環境が整っています。落ち着いた環境で集中してビジネスに取り組める袋町エリアは、多様な企業にとって魅力的なオフィス立地です。
袋町(新宿区)の物件は、0棟(0件) 掲載されています。 お探しの住所では現在、物件がございません。近隣エリアの物件を掲載しています。
袋町周辺の貸事務所マップ
袋町周辺マップです。物件のある位置にビルが表示されていますので、クリックして詳細情報をご覧ください。
ビルアイコンについて
マップ上に表示されているビルアイコンは、そのビルの最小坪単価に応じて色分けされています。
- 8,000 円未満
- 8,000 円以上~1.0 万円未満
- 1.0 万以上~1.2 万円未満
- 1.2 万以上~1.4 万円未満
- 1.4 万以上~1.6 万円未満
- 1.6 万以上~2.0 万円未満
- 2.0 万以上~2.5 万円未満
- 2.5 万以上~3.0 万円未満
- 3.0 万円以上
- 未定
袋町周辺の地区を探す
袋町周辺の貸事務所一覧
総数:5棟(7件)
- 1
物件番号:033976
更新日:2026/4/17
新宿区市谷田町2-7-15
【竣工】1993/6
【階建て】地上9F 、地下2F
【最寄駅】
|
【耐震】 | 新耐震 | ||
|---|---|---|---|---|
| 【基準階】 | 35.20坪 | 【エントランス】 | 全日開放(制限有) | |
| 【駐車場】 | - | 【エレベーター】 | 2基 |
市ヶ谷エリア。外堀通りに面した賃貸オフィスビル。市ヶ谷クロスプレイスは、新宿区市谷田町、東京メトロ南北線の市ヶ谷駅より徒歩2分圏内の好立地です。東京メトロ有楽町線の市ヶ谷駅より徒歩3…

| 図面 | 階数 | 面積 | 賃料(共益費込) (坪単価) |
保証金/敷金 | 礼金 | 入居可能日 | |
|---|---|---|---|---|---|---|---|
| 3階 | G 50.82坪 (168.00m2) |
1,168,860 (23,000) |
6ヶ月 | 無 | 2026/7/1 |
|
| 図面 | 階数 | 面積 | 賃料(共益費込) (坪単価) |
保証金/敷金 | 礼金 | 入居可能日 | |
|---|---|---|---|---|---|---|---|
|
6階 | N 40.56坪 (134.08m2) |
(未公開)
|
(未公開) | 無 | 相談 |
|
| 図面 | 階数 | 面積 | 賃料(共益費込) (坪単価) |
保証金/敷金 | 礼金 | 入居可能日 | |
|---|---|---|---|---|---|---|---|
| 7階 | G 57.18坪 (189.02m2) |
1,143,600 (20,000) |
6ヶ月 | 無 | 即日 |
|
| 図面 | 階数 | 面積 | 賃料(共益費込) (坪単価) |
保証金/敷金 | 礼金 | 入居可能日 | |
|---|---|---|---|---|---|---|---|
| 2階 | G 47.09坪 (155.67m2) |
800,530 (17,000) |
8ヶ月 | 無 | 即日 |
|
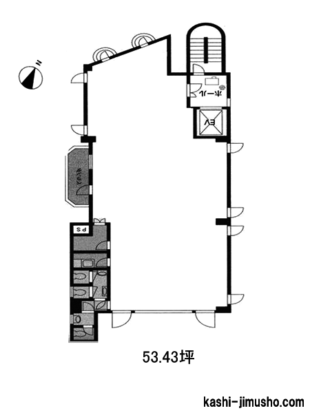
物件番号:001205
更新日:2026/4/27
千代田区九段北4-3-16
【竣工】1980/7
【階建て】地上7F
【最寄駅】
|
【耐震】 | 旧耐震 | ||
|---|---|---|---|---|
| 【基準階】 | 53.43坪 | 【エントランス】 | 全日開放(制限有) | |
| 【駐車場】 | - | 【エレベーター】 | 1基 |
サンライン第14ビルは、東京都千代田区九段北四丁目に位置する地上9階建てのオフィスビルです。1980年7月に竣工し、堅牢なSRC(鉄骨鉄筋コンクリート)構造によって建てられています。交通アクセ…

※取引態様:媒介
※フロア図面と現況が異なる場合は現況を優先いたします。
※貸室内部の写真・貸室からの景色に関しては、現在の募集フロアと異なる場合がございます。
総数:5棟(7件)
- 1




