中町(新宿区)の貸事務所・賃貸オフィス一覧
【2026/02/11更新】中町(新宿区)の貸事務所について
住宅街の静けさに包まれる中町エリア
中町エリアは、新宿区の中でも落ち着いた住宅街として知られ、静かな環境を求める企業や個人事務所に人気のエリアです。最寄り駅は都営大江戸線「牛込神楽坂駅」が利用可能で、都心へのアクセスもスムーズ。周辺には歴史ある寺院や学校、緑地も多く、知的で穏やかな雰囲気が漂います。大型ビルが少なく、中小規模のオフィスが中心のため、士業・教育関連・在宅ワークと連携する業種にもおすすめです。利便性と静寂を兼ね備えた中町エリアで、理想のワークスタイルを叶えてみませんか?
中町(新宿区)の物件は、0棟(0件) 掲載されています。 お探しの住所では現在、物件がございません。近隣エリアの物件を掲載しています。
中町周辺の貸事務所マップ
中町周辺マップです。物件のある位置にビルが表示されていますので、クリックして詳細情報をご覧ください。
ビルアイコンについて
マップ上に表示されているビルアイコンは、そのビルの最小坪単価に応じて色分けされています。
- 8,000 円未満
- 8,000 円以上~1.0 万円未満
- 1.0 万以上~1.2 万円未満
- 1.2 万以上~1.4 万円未満
- 1.4 万以上~1.6 万円未満
- 1.6 万以上~2.0 万円未満
- 2.0 万以上~2.5 万円未満
- 2.5 万以上~3.0 万円未満
- 3.0 万円以上
- 未定
中町周辺の地区を探す
中町周辺の貸事務所一覧
総数:5棟(5件)
- 1
| 図面 | 階数 | 面積 | 賃料(共益費込) (坪単価) |
保証金/敷金 | 礼金 | 入居可能日 | |
|---|---|---|---|---|---|---|---|
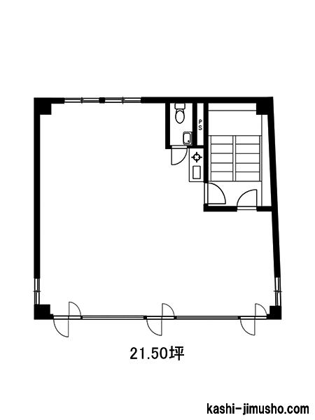
| 2階 | G 21.50坪 (71.06m2) |
270,000 (12,558) |
500,000 (2ヶ月) |
1.0ヶ月 | 即日 |
|
| 図面 | 階数 | 面積 | 賃料(共益費込) (坪単価) |
保証金/敷金 | 礼金 | 入居可能日 | |
|---|---|---|---|---|---|---|---|
| 3階 | G 23.96坪 (79.21m2) |
527,120 (22,000) |
2,108,480 (4ヶ月) |
無 | 2026/2/9 |
|
| 図面 | 階数 | 面積 | 賃料(共益費込) (坪単価) |
保証金/敷金 | 礼金 | 入居可能日 | |
|---|---|---|---|---|---|---|---|
| 3階 | G 34.97坪 (115.62m2) |
384,670 (11,000) |
3,846,700 (10ヶ月) |
1.0ヶ月 | 即日 |
|
| 図面 | 階数 | 面積 | 賃料(共益費込) (坪単価) |
保証金/敷金 | 礼金 | 入居可能日 | |
|---|---|---|---|---|---|---|---|
| 3-4階 | G 72.65坪 (240.17m2) |
(未公開)
|
12ヶ月 | 無 | 即日 |
|
| 図面 | 階数 | 面積 | 賃料(共益費込) (坪単価) |
保証金/敷金 | 礼金 | 入居可能日 | |
|---|---|---|---|---|---|---|---|
| 1階 | G 25.12坪 (83.05m2) |
570,910 (22,727) |
5,709,100 (10ヶ月) |
無 | 即日 |
|
※取引態様:媒介
※フロア図面と現況が異なる場合は現況を優先いたします。
※貸室内部の写真・貸室からの景色に関しては、現在の募集フロアと異なる場合がございます。
総数:5棟(5件)
- 1





