神田花岡町(40~60坪 千代田区)の貸事務所・賃貸オフィス一覧
【2026/05/15更新】神田花岡町(千代田区)の貸事務所について
駅近で利便性に優れた神田花岡町エリア
神田花岡町エリアは、JR「秋葉原駅」中央改札口から徒歩すぐの好立地にあり、東京メトロ日比谷線やつくばエクスプレスも利用できる、交通利便性の高いビジネスエリアです。秋葉原電気街に隣接しつつも、オフィスビルが点在する落ち着いた雰囲気が特徴です。飲食店やコンビニも充実しており、働く環境としても快適。中小規模の賃貸オフィスが多く、スタートアップやIT関連、営業拠点を構える企業にも適しています。アクセス重視で効率的なビジネス環境を求める企業にとって、神田花岡町エリアは理想的なオフィス立地です。
神田花岡町(千代田区)の物件は、0棟(0件) 掲載されています。 お探しの住所では現在、物件がございません。近隣エリアの物件を掲載しています。
神田花岡町周辺の貸事務所マップ
神田花岡町周辺マップです。物件のある位置にビルが表示されていますので、クリックして詳細情報をご覧ください。
ビルアイコンについて
マップ上に表示されているビルアイコンは、そのビルの最小坪単価に応じて色分けされています。
- 8,000 円未満
- 8,000 円以上~1.0 万円未満
- 1.0 万以上~1.2 万円未満
- 1.2 万以上~1.4 万円未満
- 1.4 万以上~1.6 万円未満
- 1.6 万以上~2.0 万円未満
- 2.0 万以上~2.5 万円未満
- 2.5 万以上~3.0 万円未満
- 3.0 万円以上
- 未定
神田花岡町周辺の地区を探す
神田花岡町周辺の貸事務所一覧
総数:5棟(9件)
- 1
| 図面 | 階数 | 面積 | 賃料(共益費込) (坪単価) |
保証金/敷金 | 礼金 | 入居可能日 | |
|---|---|---|---|---|---|---|---|
| 10階 | G 59.92坪 (198.11m2) |
(未公開)
|
(未公開) | 無 | 2026/11/15 |
|
| 図面 | 階数 | 面積 | 賃料(共益費込) (坪単価) |
保証金/敷金 | 礼金 | 入居可能日 | |
|---|---|---|---|---|---|---|---|
| 13階 | G 40.69坪 (134.52m2) |
996,905 (24,500) |
5ヶ月 | 無 | 2026/9 上旬 |
|
| 図面 | 階数 | 面積 | 賃料(共益費込) (坪単価) |
保証金/敷金 | 礼金 | 入居可能日 | |
|---|---|---|---|---|---|---|---|
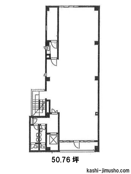
| 7階 | G 50.76坪 (167.80m2) |
761,400 (15,000) |
10ヶ月 | 無 | 2026/7 上旬 |
|
| 図面 | 階数 | 面積 | 賃料(共益費込) (坪単価) |
保証金/敷金 | 礼金 | 入居可能日 | |
|---|---|---|---|---|---|---|---|
| 6階 | G 40.00坪 (132.23m2) |
680,000 (17,000) |
6ヶ月 | 無 | 即日 |
|
物件番号:083738
更新日:2026/5/7
千代田区神田佐久間町1-9
【竣工】2027/2
【階建て】地上12F 、地下1F
【最寄駅】
|
【耐震】 | 新耐震 | ||
|---|---|---|---|---|
| 【基準階】 | 135.00坪 | 【エントランス】 | ||
| 【駐車場】 | - | 【エレベーター】 | 2基 |
2027年2月竣工の新築オフィスビル!

| 図面 | 階数 | 面積 | 賃料(共益費込) (坪単価) |
保証金/敷金 | 礼金 | 入居可能日 | |
|---|---|---|---|---|---|---|---|
| 2階 | G 47.27坪 (156.27m2) |
(未公開)
|
(未公開) | 無 | 2027/4 上旬 |
|
|
| 2階 | G 52.73坪 (174.31m2) |
(未公開)
|
(未公開) | 無 | 2027/4 上旬 |
|
|
| 3階 | G 47.27坪 (156.27m2) |
(未公開)
|
(未公開) | 無 | 2027/4 上旬 |
|
|
| 3階 | G 52.73坪 (174.31m2) |
(未公開)
|
(未公開) | 無 | 2027/4 上旬 |
|
|
| 4階 | G 47.27坪 (156.27m2) |
(未公開)
|
(未公開) | 無 | 2027/4 上旬 |
|
全5件を確認する
表示フロアを閉じる
※取引態様:媒介
※フロア図面と現況が異なる場合は現況を優先いたします。
※貸室内部の写真・貸室からの景色に関しては、現在の募集フロアと異なる場合がございます。
総数:5棟(9件)
- 1




