神田佐久間町(千代田区)の貸事務所・賃貸オフィス一覧
【2026/05/12更新】神田佐久間町(千代田区)の貸事務所について
秋葉原駅近くで利便性抜群の神田佐久間町エリア
神田佐久間町エリアは、JR「秋葉原駅」昭和通り口から徒歩圏内に位置し、東京メトロ日比谷線や都営新宿線「岩本町駅」も利用可能な、交通アクセスに優れたエリアです。電気街やビジネス施設が集積する秋葉原の中心地に近く、利便性と活気のある環境が魅力。周辺には飲食店やコンビニも豊富で、働きやすさも抜群です。中小規模のオフィス物件が多く、IT企業やスタートアップ、営業拠点を求める企業に人気があります。機動力とコストパフォーマンスを重視する法人におすすめのエリアです。
神田佐久間町(千代田区)の物件は、7棟(23件) 掲載されています。
神田佐久間町周辺の貸事務所マップ
神田佐久間町周辺マップです。物件のある位置にビルが表示されていますので、クリックして詳細情報をご覧ください。
ビルアイコンについて
マップ上に表示されているビルアイコンは、そのビルの最小坪単価に応じて色分けされています。
- 8,000 円未満
- 8,000 円以上~1.0 万円未満
- 1.0 万以上~1.2 万円未満
- 1.2 万以上~1.4 万円未満
- 1.4 万以上~1.6 万円未満
- 1.6 万以上~2.0 万円未満
- 2.0 万以上~2.5 万円未満
- 2.5 万以上~3.0 万円未満
- 3.0 万円以上
- 未定
神田佐久間町周辺の地区を探す
神田佐久間町周辺の貸事務所一覧
総数:7棟(23件)
- 1
| 図面 | 階数 | 面積 | 賃料(共益費込) (坪単価) |
保証金/敷金 | 礼金 | 入居可能日 | |
|---|---|---|---|---|---|---|---|
| 5-6階 | G 28.00坪 (92.56m2) |
308,000 (11,000) |
4ヶ月 | 1.0ヶ月 | 即日 |
|
| 図面 | 階数 | 面積 | 賃料(共益費込) (坪単価) |
保証金/敷金 | 礼金 | 入居可能日 | |
|---|---|---|---|---|---|---|---|
| 5階 | G 22.21坪 (73.42m2) |
422,008 (19,000) |
3,000,000 (135,074) |
無 | 2026/6 上旬 |
|
| 図面 | 階数 | 面積 | 賃料(共益費込) (坪単価) |
保証金/敷金 | 礼金 | 入居可能日 | |
|---|---|---|---|---|---|---|---|
| 6階 | G 40.00坪 (132.23m2) |
680,000 (17,000) |
6ヶ月 | 無 | 即日 |
|
| 図面 | 階数 | 面積 | 賃料(共益費込) (坪単価) |
保証金/敷金 | 礼金 | 入居可能日 | |
|---|---|---|---|---|---|---|---|
| 1-4階 | G 37.31坪 (123.37m2) |
1,000,000 (26,802) |
10ヶ月 | 1.0ヶ月 | 即日 |
|
物件番号:083738
更新日:2026/5/7
千代田区神田佐久間町1-9
【竣工】2027/2
【階建て】地上12F 、地下1F
【最寄駅】
|
【耐震】 | 新耐震 | ||
|---|---|---|---|---|
| 【基準階】 | 135.00坪 | 【エントランス】 | ||
| 【駐車場】 | - | 【エレベーター】 | 2基 |
2027年2月竣工の新築オフィスビル!

| 図面 | 階数 | 面積 | 賃料(共益費込) (坪単価) |
保証金/敷金 | 礼金 | 入居可能日 | |
|---|---|---|---|---|---|---|---|
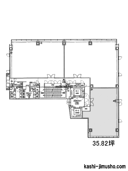
| 2階 | G 35.82坪 (118.41m2) |
(未公開)
|
(未公開) | 無 | 2027/4 上旬 |
|
|
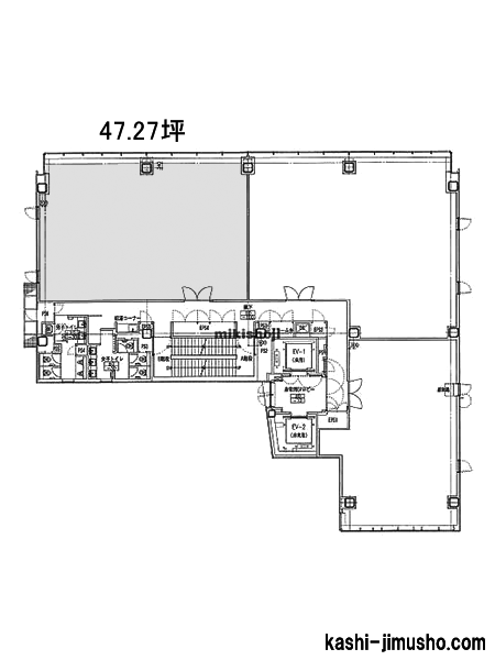
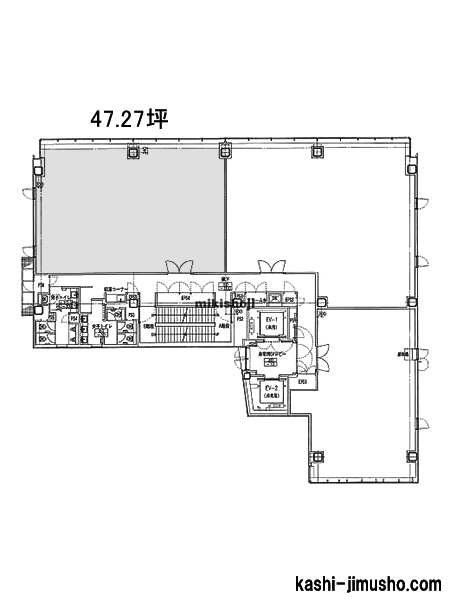
| 2階 | G 47.27坪 (156.27m2) |
(未公開)
|
(未公開) | 無 | 2027/4 上旬 |
|
|
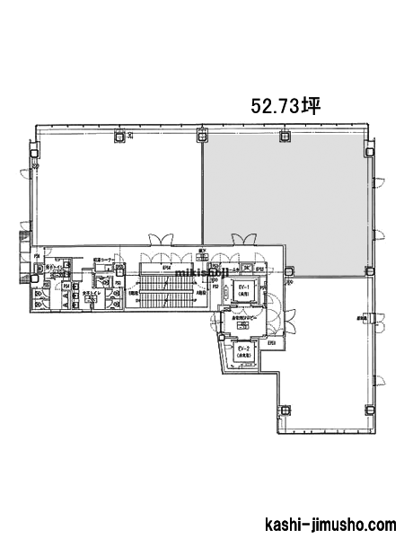
| 2階 | G 52.73坪 (174.31m2) |
(未公開)
|
(未公開) | 無 | 2027/4 上旬 |
|
|
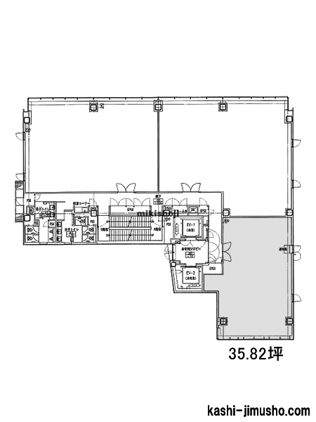
| 3階 | G 35.82坪 (118.41m2) |
(未公開)
|
(未公開) | 無 | 2027/4 上旬 |
|
|
| 3階 | G 47.27坪 (156.27m2) |
(未公開)
|
(未公開) | 無 | 2027/4 上旬 |
|
|
| 3階 | G 52.73坪 (174.31m2) |
(未公開)
|
(未公開) | 無 | 2027/4 上旬 |
|
|
| 4階 | G 35.82坪 (118.41m2) |
(未公開)
|
(未公開) | 無 | 2027/4 上旬 |
|
|
| 4階 | G 47.27坪 (156.27m2) |
(未公開)
|
(未公開) | 無 | 2027/4 上旬 |
|
|
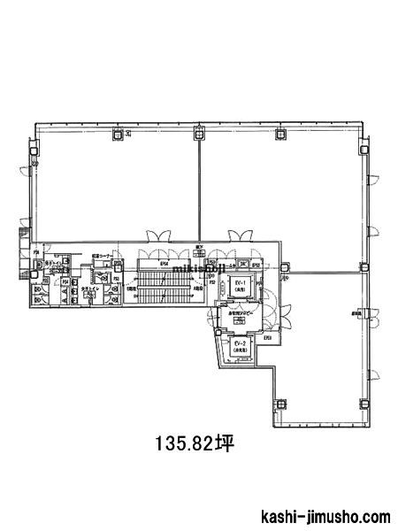
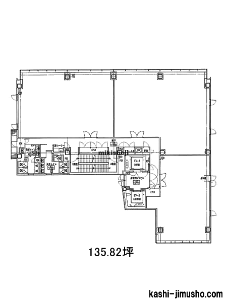
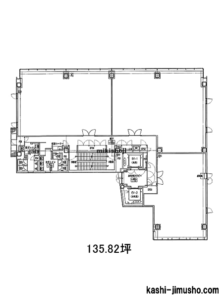
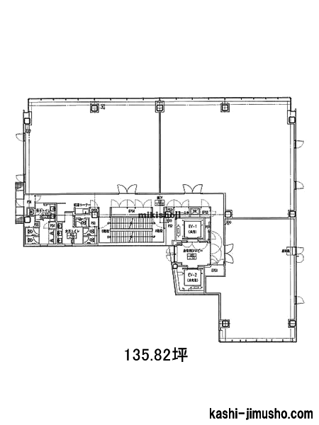
| 5階 | G 135.82坪 (448.99m2) |
(未公開)
|
(未公開) | 無 | 2027/4 上旬 |
|
|
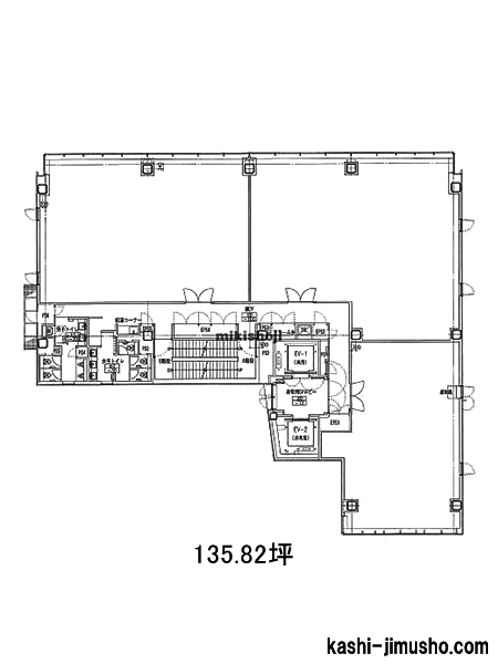
| 6階 | G 135.82坪 (448.99m2) |
(未公開)
|
(未公開) | 無 | 2027/4 上旬 |
|
|
| 7階 | G 135.82坪 (448.99m2) |
(未公開)
|
(未公開) | 無 | 2027/4 上旬 |
|
|
| 8階 | G 135.82坪 (448.99m2) |
(未公開)
|
(未公開) | 無 | 2027/4 上旬 |
|
|
| 9階 | G 135.82坪 (448.99m2) |
(未公開)
|
(未公開) | 無 | 2027/4 上旬 |
|
|
| 10階 | G 135.82坪 (448.99m2) |
(未公開)
|
(未公開) | 無 | 2027/4 上旬 |
|
|
| 11階 | G 135.82坪 (448.99m2) |
(未公開)
|
(未公開) | 無 | 2027/4 上旬 |
|
全15件を確認する
表示フロアを閉じる
※取引態様:媒介
※フロア図面と現況が異なる場合は現況を優先いたします。
※貸室内部の写真・貸室からの景色に関しては、現在の募集フロアと異なる場合がございます。
総数:7棟(23件)
- 1






