※ご入居を検討されているお客様向けの情報サイトです。
※駐車場単体・管理会社・テナントに関するお問合せにはお応えいたしかねます。

高田馬場・大久保の格安貸事務所、賃貸オフィス(坪単価10,000円以下)

賃料が格安な貸事務所を集めた特集です。この「格安賃料の貸事務所特集」は高田馬場・大久保(新宿区)にある1坪あたりの賃料(坪単価)が共益費込で10,000円以下の賃貸オフィスを集めました。月々の賃料が安いのでコスト削減に効果的!大変お得感のあるオフィスビルです。

格安貸事務所(高田馬場・大久保)

総数:3棟(3件)
  • 1
日報ビルの外観
物件番号:083002
更新日:2026/5/8
新宿区高田馬場3-38-15
【竣工】1997/3
【階建て】地上3F
【最寄駅】
下落合駅7分
【耐震】 新耐震
【基準階】 22.50坪 【エントランス】 全日開放(24h)
【駐車場】 有り 【エレベーター】
日報ビルは、東京都新宿区高田馬場3丁目に位置する地上3階建ての小規模オフィスビルです。1997年3月に竣工し、構造は鉄骨造(S造)で、新耐震基準に適合しているため、耐震性にも優れた設計とな…
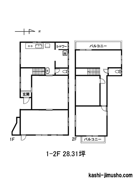
図面 階数 面積 賃料(共益費込)
(坪単価)
保証金/敷金 礼金 入居可能日
NEW2階 G 22.50坪
(74.25m2)
204,546
(9,091)
3ヶ月 1.0ヶ月 相談
目白ハイビルの外観
物件番号:051137
更新日:2026/5/7
新宿区下落合4-25-18
【竣工】1970/1
【階建て】地上8F
【最寄駅】
椎名町駅8分
下落合駅10分
目白駅13分
【耐震】 旧耐震
【基準階】 110.86坪 【エントランス】
【駐車場】 無し 【エレベーター】 1基
目白ハイビルは、東京都新宿区下落合4-25-18に位置する地上8階建てのオフィスビルで、1970年1月に竣工しました。構造は鉄筋コンクリート造(RC造)です。ビルは広々としたフロアスペースと基本的…
図面 階数 面積 賃料(共益費込)
(坪単価)
保証金/敷金 礼金 入居可能日
2階 G 34.49坪
(114.03m2)
315,000
(9,133)
6ヶ月 1.0ヶ月 即日
西大久保イレブンの外観
物件番号:079963
更新日:2026/4/22
新宿区大久保2-14-16
【竣工】1981/5
【階建て】地上3F
【最寄駅】
東新宿駅5分
西早稲田駅7分
【耐震】 旧耐震
【基準階】 【エントランス】 全日開放(24h)
【駐車場】 無し 【エレベーター】
「西大久保イレブン」は、東京都新宿区大久保2-14-16に位置する地上3階建てのRC造(鉄筋コンクリート造)のオフィスビルです。本物件は、東京メトロ副都心線および都営大江戸線「東新宿駅」から…
図面 階数 面積 賃料(共益費込)
(坪単価)
保証金/敷金 礼金 入居可能日
1-2階 G 44.77坪
(148.00m2)
430,000
(9,605)
6ヶ月 2026/8
上旬

非公開物件の賃料目安アイコン

  • 8,000 円未満
  • 8,000 円以上~1.0 万円未満
  • 1.0 万以上~1.2 万円未満
  • 1.2 万以上~1.4 万円未満
  • 1.4 万以上~1.6 万円未満
  • 1.6 万以上~2.0 万円未満
  • 2.0 万以上~2.5 万円未満
  • 2.5 万以上~3.0 万円未満
  • 3.0 万円以上
  • 未定

※取引態様:媒介
※フロア図面と現況が異なる場合は現況を優先いたします。
※貸室内部の写真・貸室からの景色に関しては、現在の募集フロアと異なる場合がございます。

総数:3棟(3件)
  • 1
※取引態様:媒介

その他、高田馬場・大久保エリアの貸事務所をお探しの方はこちらをクリック
高田馬場・大久保の貸事務所

格安の貸事務所をエリアで絞る

高田馬場・大久保の関連特集

「格安オフィス(高田馬場・大久保)」に関するお問合せ

場所
広さ 坪から
費用面
円~ 円の範囲
その他のご要望
貴社名 担当者名
TEL (例)03-3516-1700 E-Mail

当社の個人情報に関する弊社ガイドラインをご確認いただき、
ご同意いただけたら、送信ボタンを押してください。