平置き駐車場がある貸事務所、賃貸オフィス(千代田区)(40~60坪)
平置き駐車場がある賃貸オフィスビルの最新空室情報です。東京都千代田区の貸事務所のうち、ハイルーフの駐車に便利な平置き駐車場がある物件をご紹介しています。社用車がある企業様、ハイエースなどの大きな車を必要とする企業様必見です。 ※駐車場の空き状況については別途ご確認の上ご連絡します。まずは気になる物件をお気軽にお問合せください。
平置き駐車場がある貸事務所(千代田区)
物件番号:081801
更新日:2026/4/21
千代田区麹町1-7-20
【竣工】2023/3
【階建て】地上9F
|
【最寄駅】
|
【耐震】 |
新耐震 |
| 【基準階】 |
57.15坪 |
【エントランス】 |
オートロック |
| 【駐車場】 |
有り |
【エレベーター】 |
2基 |
半蔵門駅から徒歩3分、東京都千代田区麹町1-7-20に位置するCIRCLES半蔵門は、スタイリッシュで機能性に優れたオフィスビルです。このビルは2023年に竣工し、最新の耐震基準を満たす鉄骨造の9階建…

| 図面 |
階数 |
面積 |
賃料(共益費込) (坪単価) |
保証金/敷金 |
礼金 |
入居可能日 |
|
|
3階 |
G 54.83坪 (181.26m2) |
|
4ヶ月 |
無 |
即日 |
|
|
4階 |
G 54.83坪 (181.26m2) |
|
4ヶ月 |
無 |
即日 |
|
|
5階 |
G 57.15坪 (188.93m2) |
|
4ヶ月 |
無 |
即日 |
|
|
6階 |
G 57.15坪 (188.93m2) |
|
4ヶ月 |
無 |
即日 |
|
|
7階 |
G 57.15坪 (188.93m2) |
|
4ヶ月 |
無 |
即日 |
|
|
8階 |
G 57.15坪 (188.93m2) |
|
4ヶ月 |
無 |
即日 |
|
物件番号:000531
更新日:2026/5/1
千代田区麹町4-4-4
【竣工】2022/9
【階建て】地上12F 、地下1F
|
【最寄駅】
|
【耐震】 |
新耐震 |
| 【基準階】 |
45.37坪 |
【エントランス】 |
全日開放(制限有) |
| 【駐車場】 |
有り |
【エレベーター】 |
2基 |
千代田区麹町4-4-4に位置するACN麹町ビルは、大きな窓面が特徴的な開放感あふれる賃貸オフィスビルです。複数駅・複数路線が利用できる利便性の高いエリアにあり、都内主要エリアへの移動もしや…

| 図面 |
階数 |
面積 |
賃料(共益費込) (坪単価) |
保証金/敷金 |
礼金 |
入居可能日 |
|
|
3階 |
G 45.27坪 (149.99m2) |
|
8ヶ月 |
無 |
2026/11 |
|
|
8階 |
G 45.27坪 (149.65m2) |
|
4ヶ月 |
1.0ヶ月 |
2026/7/1 |
|
|
12階 |
G 45.27坪 (149.65m2) |
|
8ヶ月 |
無 |
2026/10 |
|
物件番号:070899
更新日:2026/5/1
千代田区神田司町2-7-9
【竣工】2020/2
【階建て】地上9F
|
【最寄駅】
|
【耐震】 |
新耐震 |
| 【基準階】 |
59.04坪 |
【エントランス】 |
オートロック |
| 【駐車場】 |
有り |
【エレベーター】 |
2基 |
ADPR神田司町ビルは、2020年2月に竣工したハイグレード賃貸オフィスビルです。東京都千代田区神田司町2-7-9に位置し、丸の内線淡路町駅から徒歩3分、都営新宿線小川町駅からも3分と抜群のアクセ…

| 図面 |
階数 |
面積 |
賃料(共益費込) (坪単価) |
保証金/敷金 |
礼金 |
入居可能日 |
|
|
2階 |
G 59.04坪 (195.17m2) |
|
4ヶ月 |
無 |
相談 |
|
物件番号:071081
更新日:2026/4/8
千代田区神田猿楽町2-8-11
【竣工】2020/1
【階建て】地上9F
|
【最寄駅】
|
【耐震】 |
新耐震 |
| 【基準階】 |
57.77坪 |
【エントランス】 |
平日のみ開放 |
| 【駐車場】 |
有り |
【エレベーター】 |
1基 |
VORT水道橋Ⅲは、東京都千代田区神田猿楽町2に位置する賃貸オフィスビルです。2020年1月に竣工した地上9階建てのRC造(鉄筋コンクリート造)構造を持つ建物です。新耐震基準に適合して設計されて…

| 図面 |
階数 |
面積 |
賃料(共益費込) (坪単価) |
保証金/敷金 |
礼金 |
入居可能日 |
|
|
6階 |
G 57.77坪 (190.98m2) |
|
5ヶ月 |
1.0ヶ月 |
2026/5/1 |
|
物件番号:069834
更新日:2026/4/9
千代田区麹町3-1
【竣工】2018/8
【階建て】地上11F 、地下1F
|
【最寄駅】
|
【耐震】 |
新耐震 |
| 【基準階】 |
59.44坪 |
【エントランス】 |
全日開放(制限有) |
| 【駐車場】 |
有り |
【エレベーター】 |
2基 |
千代田区麹町3丁目にある、KOJIMACHI TERRACEです。徒歩2分圏内で東京メトロ有楽町線の麹町駅、徒歩3分圏内で東京メトロ半蔵門線の半蔵門駅、徒歩7分圏内で東京メトロ南北線等の永田町駅がアクセ…

| 図面 |
階数 |
面積 |
賃料(共益費込) (坪単価) |
保証金/敷金 |
礼金 |
入居可能日 |
|
|
11階 |
G 42.86坪 (141.71m2) |
|
(未公開) |
無 |
2026/10 上旬 |
|
物件番号:066440
更新日:2026/4/7
千代田区神田須田町2-9-2
【竣工】2017/2
【階建て】地上10F
|
【最寄駅】
|
【耐震】 |
新耐震 |
| 【基準階】 |
62.11坪 |
【エントランス】 |
オートロック |
| 【駐車場】 |
有り |
【エレベーター】 |
2基 |
PMO神田岩本町は、東京都千代田区神田須田町2丁目に位置する賃貸オフィスビルです。最寄駅は都営新宿線の岩本町駅で、徒歩1分圏内という抜群のアクセスを誇ります。さらに徒歩3分圏内には東京メ…

| 図面 |
階数 |
面積 |
賃料(共益費込) (坪単価) |
保証金/敷金 |
礼金 |
入居可能日 |
|
|
10階 |
G 59.92坪 (198.11m2) |
|
(未公開) |
無 |
2026/11/15 |
|
物件番号:001848
更新日:2026/4/6
千代田区神田神保町1-11-1
【竣工】1994/3
【階建て】地上11F 、地下2F
|
【最寄駅】
|
【耐震】 |
新耐震 |
| 【基準階】 |
42.49坪 |
【エントランス】 |
平日・土開放 |
| 【駐車場】 |
有り |
【エレベーター】 |
1基 |
いちご神保町ビルは、千代田区神田神保町1-11-1に位置するハイグレードな賃貸オフィスビルです。最寄りの神保町駅までは、東京メトロ半蔵門線、都営三田線、都営新宿線を利用し、徒歩1分圏内とい…

| 図面 |
階数 |
面積 |
賃料(共益費込) (坪単価) |
保証金/敷金 |
礼金 |
入居可能日 |
|
|
3階 |
G 42.50坪 (140.50m2) |
|
10ヶ月 |
無 |
即日 |
|
物件番号:051683
更新日:2026/4/15
千代田区神田淡路町2-3
【竣工】1993/9
【階建て】地上8F
|
【最寄駅】
|
【耐震】 |
新耐震 |
| 【基準階】 |
59.53坪 |
【エントランス】 |
オートロック |
| 【駐車場】 |
有り |
【エレベーター】 |
1基 |
神田淡路町エリアに位置する淡路町トーセイビルは、東京都千代田区神田淡路町2丁目にあり、東京メトロ丸ノ内線の淡路町駅と都営新宿線の小川町駅から徒歩2分以内という非常に利便性の高い場所に…

| 図面 |
階数 |
面積 |
賃料(共益費込) (坪単価) |
保証金/敷金 |
礼金 |
入居可能日 |
|
|
5階 |
G 59.53坪 (196.79m2) |
|
10ヶ月 |
無 |
即日 |
|
物件番号:001388
更新日:2026/4/6
千代田区飯田橋2-14-2
【竣工】1993/2
【階建て】地上5F
|
【最寄駅】
|
【耐震】 |
新耐震 |
| 【基準階】 |
57.93坪 |
【エントランス】 |
平日のみ開放 |
| 【駐車場】 |
有り |
【エレベーター】 |
1基 |
雄邦ビルは、九段下エリアに位置する、落ち着いた色合いで清潔感のある賃貸オフィスビルです。この物件は、千代田区飯田橋2-14-2に所在しており、最寄駅は東京メトロ東西線・東京メトロ半蔵門線…

| 図面 |
階数 |
面積 |
賃料(共益費込) (坪単価) |
保証金/敷金 |
礼金 |
入居可能日 |
|
|
4階 |
G 57.93坪 (191.50m2) |
984,810 (17,000) |
12ヶ月 |
1.0ヶ月 |
2026/8 上旬 |
|
物件番号:000609
更新日:2026/4/17
千代田区紀尾井町3-32
【竣工】1991/12
【階建て】地上6F
|
【最寄駅】
|
【耐震】 |
新耐震 |
| 【基準階】 |
46.92坪 |
【エントランス】 |
オートロック |
| 【駐車場】 |
有り |
【エレベーター】 |
1基 |
紀尾井町ヒルズは、東京都千代田区紀尾井町3-32に位置するオフィスビルで、1992年12月に竣工しました。地上6階建てのS造(鉄骨構造)で、新耐震基準を満たしており、耐震性にも優れたビルです。…

| 図面 |
階数 |
面積 |
賃料(共益費込) (坪単価) |
保証金/敷金 |
礼金 |
入居可能日 |
|
|
3階 |
G 46.92坪 (155.12m2) |
750,720 (16,000) |
6ヶ月 |
1.0ヶ月 |
即日 |
|
物件番号:000938
更新日:2026/5/1
千代田区九段南2-6-8
【竣工】1991/7
【階建て】地上6F 、地下2F
|
【最寄駅】
|
【耐震】 |
新耐震 |
| 【基準階】 |
54.23坪 |
【エントランス】 |
平日のみ開放 |
| 【駐車場】 |
有り |
【エレベーター】 |
1基 |
九段南ビルディングは、東京都千代田区九段南2-6-8に位置する、落ち着いた周辺環境と都心ならではの利便性をあわせ持つオフィス物件です。東京メトロ東西線・半蔵門線、都営新宿線が利用できる九…

| 図面 |
階数 |
面積 |
賃料(共益費込) (坪単価) |
保証金/敷金 |
礼金 |
入居可能日 |
|
|
5階 |
G 54.23坪 (179.27m2) |
|
10ヶ月 |
無 |
即日 |
|
物件番号:000122
更新日:2026/4/30
千代田区二番町12-13
【竣工】1991/4
【階建て】地上5F 、地下1F
|
【最寄駅】
|
【耐震】 |
新耐震 |
| 【基準階】 |
58.57坪 |
【エントランス】 |
|
| 【駐車場】 |
有り |
【エレベーター】 |
1基 |
セブネスビルは、東京都千代田区二番町12-13に位置する高品質な賃貸オフィスビルです。このビルは1991年に竣工し、新耐震基準を満たした鉄筋コンクリート造の地上5階建て(地下1階)の構造を持っ…

| 図面 |
階数 |
面積 |
賃料(共益費込) (坪単価) |
保証金/敷金 |
礼金 |
入居可能日 |
|
|
1階 |
G 44.15坪 (145.95m2) |
883,000 (20,000) |
12ヶ月 |
無 |
即日 |
|
物件番号:000769
更新日:2026/4/21
千代田区隼町2-19
【竣工】1991/1
【階建て】地上8F 、地下1F
|
【最寄駅】
|
【耐震】 |
新耐震 |
| 【基準階】 |
96.14坪 |
【エントランス】 |
全日開放(24h) |
| 【駐車場】 |
有り |
【エレベーター】 |
1基 |
いちご半蔵門ビルは東京都千代田区隼町2-19にある賃貸オフィスビルです。半蔵門駅から出て、新宿通りから一本入った角地に位置する物件です。落ち着いた印象の重厚感がある外観です。エントラン…

| 図面 |
階数 |
面積 |
賃料(共益費込) (坪単価) |
保証金/敷金 |
礼金 |
入居可能日 |
|
|
7階 |
G 47.03坪 (155.50m2) |
|
(未公開) |
無 |
2026/6/1 |
|
物件番号:001833
更新日:2026/4/10
千代田区神田神保町2-7-3
【竣工】1990/1
【階建て】地上10F
|
【最寄駅】
|
【耐震】 |
新耐震 |
| 【基準階】 |
65.26坪 |
【エントランス】 |
平日のみ開放 |
| 【駐車場】 |
有り |
【エレベーター】 |
1基 |
東京都千代田区神田神保町2-7-3に位置する「神保町NKビル」は、オフィス物件として非常に魅力的なスペックを持ったビルです。1990年に竣工したこの地上10階建てのビルは、現行の新耐震基準を満た…

| 図面 |
階数 |
面積 |
賃料(共益費込) (坪単価) |
保証金/敷金 |
礼金 |
入居可能日 |
|
|
2階 |
G 60.84坪 (201.14m2) |
|
12ヶ月 |
無 |
2026/7/27 |
|
物件番号:000592
更新日:2026/5/7
千代田区紀尾井町3-12
【竣工】1989/11
【階建て】地上26F 、地下4F
|
【最寄駅】
|
【耐震】 |
新耐震 |
| 【基準階】 |
382.03坪 |
【エントランス】 |
全日開放(制限有) |
| 【駐車場】 |
有り |
【エレベーター】 |
12基 |
千代田区紀尾井町3-12にある、紀尾井町ビルです。最寄駅は、東京メトロ有楽町線の麹町駅です。また、東京メトロ銀座線・丸ノ内線の赤坂見附駅、東京メトロ南北線・半蔵門線の永田町駅も徒歩10分…

| 図面 |
階数 |
面積 |
賃料(共益費込) (坪単価) |
保証金/敷金 |
礼金 |
入居可能日 |
|
|
6階 |
G 58.54坪 (193.52m2) |
|
12ヶ月 |
無 |
2026/8/1 |
|
物件番号:043737
更新日:2026/4/27
千代田区神田猿楽町2-7-6
【竣工】1989/2
【階建て】地上6F
|
【最寄駅】
|
【耐震】 |
新耐震 |
| 【基準階】 |
64.07坪 |
【エントランス】 |
平日・土開放 |
| 【駐車場】 |
有り |
【エレベーター】 |
1基 |
TK猿楽町ビルは、千代田区神田猿楽町に位置する地上6階建てのオフィスビルで、最寄りの水道橋駅から徒歩5分という通勤にも便利な立地にあります。JR総武線・都営三田線の水道橋駅に加え、神保町…

| 図面 |
階数 |
面積 |
賃料(共益費込) (坪単価) |
保証金/敷金 |
礼金 |
入居可能日 |
|
|
1階 |
G 42.83坪 (141.61m2) |
985,090 (23,000) |
12ヶ月 |
無 |
即日 |
|
物件番号:058938
更新日:2026/4/22
千代田区神田三崎町3-2-8
【竣工】1989/2(改修:2010)
【階建て】地上8F
|
【最寄駅】
|
【耐震】 |
新耐震 |
| 【基準階】 |
57.89坪 |
【エントランス】 |
オートロック |
| 【駐車場】 |
有り |
【エレベーター】 |
2基 |
水道橋駅近くのインテリジェント賃貸オフィス。グランバレー三崎町ビルは、千代田区神田三崎町3-2-8にある物件です。徒歩4分圏内でJR総武線の水道橋駅、徒歩7分圏内で都営三田線の水道橋駅、東京…

| 図面 |
階数 |
面積 |
賃料(共益費込) (坪単価) |
保証金/敷金 |
礼金 |
入居可能日 |
|
|
1階 |
G 43.85坪 (144.90m2) |
877,000 (20,000) |
6ヶ月 |
無 |
2026/8/1 |
|
物件番号:000645
更新日:2026/4/17
千代田区平河町1-3-13
【竣工】1988/3(改修:2022)
【階建て】地上8F 、地下1F
|
【最寄駅】
|
【耐震】 |
新耐震 |
| 【基準階】 |
104.88坪 |
【エントランス】 |
平日・土開放 |
| 【駐車場】 |
有り |
【エレベーター】 |
2基 |
平河町フロントは、千代田区平河町1丁目に位置する高機能オフィスビルで、麹町・半蔵門エリアの中心に立地しています。東京メトロ半蔵門線の半蔵門駅から徒歩2分圏内、また有楽町線の麹町駅から…

| 図面 |
階数 |
面積 |
賃料(共益費込) (坪単価) |
保証金/敷金 |
礼金 |
入居可能日 |
|
|
4階 |
G 49.57坪 (163.87m2) |
1,387,960 (28,000) |
3ヶ月 |
無 |
2026/5 上旬 |
|
|
4階 |
G 57.58坪 (190.35m2) |
1,612,240 (28,000) |
3ヶ月 |
無 |
即日 |
|
物件番号:002611
更新日:2026/4/17
千代田区神田駿河台2-9-12
【竣工】1988/3
【階建て】地上9F
|
【最寄駅】
|
【耐震】 |
新耐震 |
| 【基準階】 |
74.03坪 |
【エントランス】 |
全日開放(制限有) |
| 【駐車場】 |
有り |
【エレベーター】 |
1基 |
駿河台フジヴュービルは、千代田区神田駿河台2-9にある物件です。徒歩6分圏内でJR総武線・都営三田線の水道橋駅、徒歩7分圏内でJR中央線の御茶ノ水駅、徒歩8分圏内で東京メトロ丸ノ内線の御茶ノ…

| 図面 |
階数 |
面積 |
賃料(共益費込) (坪単価) |
保証金/敷金 |
礼金 |
入居可能日 |
|
|
1階 |
G 41.40坪 (136.86m2) |
|
10ヶ月 |
無 |
相談 |
|
物件番号:002816
更新日:2026/5/1
千代田区内神田1-18-12
【竣工】1987/11
【階建て】地上9F
|
【最寄駅】
|
【耐震】 |
新耐震 |
| 【基準階】 |
55.85坪 |
【エントランス】 |
全日開放(制限有) |
| 【駐車場】 |
有り |
【エレベーター】 |
2基 |
神田エリア。外堀通り沿いに面した貸事務所。内神田東誠ビルは、千代田区内神田1-18-12の物件です。東京メトロ丸ノ内線 淡路町駅、JR神田駅、東京メトロ銀座線 神田駅、都営新宿線 小川町駅から…

| 図面 |
階数 |
面積 |
賃料(共益費込) (坪単価) |
保証金/敷金 |
礼金 |
入居可能日 |
|
|
4階 |
G 55.85坪 (184.63m2) |
1,005,300 (18,000) |
5ヶ月 |
無 |
即日 |
|
物件番号:001387
更新日:2026/5/7
千代田区飯田橋4-9-5
【竣工】1987/2
【階建て】地上8F
|
【最寄駅】
|
【耐震】 |
新耐震 |
| 【基準階】 |
47.09坪 |
【エントランス】 |
平日・土開放 |
| 【駐車場】 |
有り |
【エレベーター】 |
1基 |
スギタビルは、千代田区飯田橋4-9-5に位置する賃貸オフィスビルです。最寄りの飯田橋駅から徒歩1分という抜群のアクセスを誇り、JR総武線、東京メトロ東西線、東京メトロ有楽町線が利用可能です…

| 図面 |
階数 |
面積 |
賃料(共益費込) (坪単価) |
保証金/敷金 |
礼金 |
入居可能日 |
|
|
2階 |
G 47.09坪 (155.67m2) |
800,530 (17,000) |
8ヶ月 |
無 |
即日 |
|
物件番号:035170
更新日:2026/5/1
千代田区麹町3-5-7
【竣工】1986/9
【階建て】地上7F 、地下1F
|
【最寄駅】
|
【耐震】 |
新耐震 |
| 【基準階】 |
91.62坪 |
【エントランス】 |
平日のみ開放 |
| 【駐車場】 |
有り |
【エレベーター】 |
1基 |
全共連ビル麹町館は、千代田区麹町3-5-7に位置する白を基調にしたタイル張りの賃貸オフィスビルです。麹町エリアにあり、徒歩1分で東京メトロ有楽町線の麹町駅、徒歩3分で東京メトロ半蔵門線の半…

| 図面 |
階数 |
面積 |
賃料(共益費込) (坪単価) |
保証金/敷金 |
礼金 |
入居可能日 |
|
|
1階 |
G 51.76坪 (171.11m2) |
|
12ヶ月 |
無 |
即日 |
|
物件番号:002208
更新日:2026/4/13
千代田区神田錦町3-13-7
【竣工】1985/3
【階建て】地上9F 、地下1F
|
【最寄駅】
|
【耐震】 |
新耐震 |
| 【基準階】 |
260.80坪 |
【エントランス】 |
平日・土開放 |
| 【駐車場】 |
有り |
【エレベーター】 |
2基 |
名古路ビル本館は、東京都千代田区神田錦町3-13-7に位置する、大手町と皇居に近い竹橋エリアの大規模オフィスビルです。交通アクセスに優れ、東京メトロ東西線竹橋駅から徒歩5分、千代田線新御茶…

| 図面 |
階数 |
面積 |
賃料(共益費込) (坪単価) |
保証金/敷金 |
礼金 |
入居可能日 |
|
|
2階 |
N 44.67坪 (147.67m2) |
|
12ヶ月 |
無 |
2026/9 |
|
物件番号:001434
更新日:2026/4/13
千代田区飯田橋4-2-1
【竣工】1984/2(改修:2016)
【階建て】地上8F
|
【最寄駅】
|
【耐震】 |
新耐震 |
| 【基準階】 |
85.58坪 |
【エントランス】 |
平日・土開放 |
| 【駐車場】 |
有り |
【エレベーター】 |
1基 |
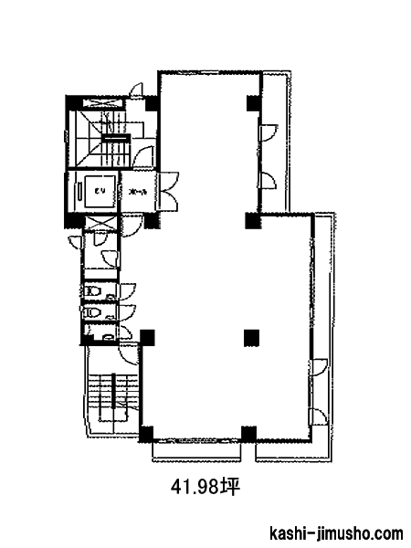
岩見ビルは、東京都千代田区飯田橋四丁目に位置する、角地に立地した明るい貸事務所ビルです。レンガタイル貼りの外観が印象的で、落ち着いた街並みに調和しながらも視認性の高い佇まいを備えて…

| 図面 |
階数 |
面積 |
賃料(共益費込) (坪単価) |
保証金/敷金 |
礼金 |
入居可能日 |
|
|
6階 |
G 41.98坪 (138.78m2) |
629,700 (15,000) |
7ヶ月 |
無 |
即日 |
|
物件番号:051469
更新日:2026/4/23
千代田区六番町3-4
【竣工】1983/12
【階建て】地上3F
|
【最寄駅】
|
【耐震】 |
新耐震 |
| 【基準階】 |
23.80坪 |
【エントランス】 |
全日開放(24h) |
| 【駐車場】 |
有り |
【エレベーター】 |
無 |
複数路線が利用可能で交通アクセス良好です。白を基調とした明るい印象の外観です。シンプルな形状でレイアウトのしやすい貸室です。

| 図面 |
階数 |
面積 |
賃料(共益費込) (坪単価) |
保証金/敷金 |
礼金 |
入居可能日 |
|
|
1-2階 |
G 44.77坪 (148.00m2) |
650,000 (14,519) |
6ヶ月 |
1.0ヶ月 |
2026/6/1 |
|
物件番号:037594
更新日:2026/4/6
千代田区紀尾井町4-7
【竣工】1983/2
【階建て】地上8F 、地下1F
|
【最寄駅】
|
【耐震】 |
旧耐震 |
| 【基準階】 |
454.76坪 |
【エントランス】 |
全日開放(制限有) |
| 【駐車場】 |
有り |
【エレベーター】 |
2基 |
新紀尾井町ビルは、東京都千代田区紀尾井町4-7に位置するオフィスビルです。銀座線・丸ノ内線の赤坂見附駅から徒歩4分、有楽町線の麹町駅から徒歩5分、さらに半蔵門線・南北線の永田町駅からも徒…

| 図面 |
階数 |
面積 |
賃料(共益費込) (坪単価) |
保証金/敷金 |
礼金 |
入居可能日 |
|
|
2階 |
G 49.37坪 (163.21m2) |
|
12ヶ月 |
無 |
2026/10/1 |
|
物件番号:001205
更新日:2026/4/27
千代田区九段北4-3-16
【竣工】1980/7
【階建て】地上7F
|
【最寄駅】
|
【耐震】 |
旧耐震 |
| 【基準階】 |
53.43坪 |
【エントランス】 |
全日開放(制限有) |
| 【駐車場】 |
有り |
【エレベーター】 |
1基 |
サンライン第14ビルは、東京都千代田区九段北四丁目に位置する地上9階建てのオフィスビルです。1980年7月に竣工し、堅牢なSRC(鉄骨鉄筋コンクリート)構造によって建てられています。交通アクセ…

| 図面 |
階数 |
面積 |
賃料(共益費込) (坪単価) |
保証金/敷金 |
礼金 |
入居可能日 |
|
|
2階 |
G 48.74坪 (161.14m2) |
731,101 (15,000) |
6ヶ月 |
0.5ヶ月 |
即日 |
|
|
3階 |
G 53.43坪 (176.63m2) |
840,310 (15,728) |
6ヶ月 |
0.5ヶ月 |
即日 |
|
|
4階 |
G 53.43坪 (176.63m2) |
820,880 (15,364) |
6ヶ月 |
0.5ヶ月 |
即日 |
|
物件番号:001049
更新日:2026/4/27
千代田区九段南3-1-1
【竣工】1979/12(改修:2003)
【階建て】地上8F
|
【最寄駅】
|
【耐震】 |
旧耐震 |
| 【基準階】 |
60.00坪 |
【エントランス】 |
平日・土開放 |
| 【駐車場】 |
有り |
【エレベーター】 |
1基 |
久保寺ビルは、東京都千代田区九段北に位置するオフィスビルで、市ヶ谷駅や半蔵門駅といった複数の主要駅から徒歩圏内にあります。都営新宿線の市ヶ谷駅からは徒歩8分、JR総武線、市ヶ谷駅、有楽…

| 図面 |
階数 |
面積 |
賃料(共益費込) (坪単価) |
保証金/敷金 |
礼金 |
入居可能日 |
|
|
7階 |
G 60.00坪 (198.35m2) |
780,000 (13,000) |
4ヶ月 |
無 |
即日 |
|
物件番号:000250
更新日:2026/4/7
千代田区五番町10-2
【竣工】1977/1
【階建て】地上6F 、地下1F
|
【最寄駅】
|
【耐震】 |
旧耐震+補強済 or 基準OK |
| 【基準階】 |
134.87坪 |
【エントランス】 |
平日のみ開放 |
| 【駐車場】 |
有り |
【エレベーター】 |
2基 |
五番町センタービルは、東京都千代田区五番町に位置するオフィスビルです。JR総武線や有楽町線、都営新宿線、南北線の市ヶ谷駅からそれぞれ徒歩3〜4分と、交通アクセスがとても良く、都内各所へ…

| 図面 |
階数 |
面積 |
賃料(共益費込) (坪単価) |
保証金/敷金 |
礼金 |
入居可能日 |
|
|
2階 |
G 53.79坪 (177.85m2) |
|
12ヶ月 |
無 |
即日 |
|
物件番号:000849
更新日:2026/4/3
千代田区内幸町2-2-1
【竣工】1976/7
【階建て】地上11F 、地下3F
|
【最寄駅】
|
【耐震】 |
旧耐震+補強済 or 基準OK |
| 【基準階】 |
480.00坪 |
【エントランス】 |
平日・土開放 |
| 【駐車場】 |
有り |
【エレベーター】 |
4基 |
日本プレスセンタービルは、東京都千代田区内幸町に位置し、1976年7月に竣工された歴史あるオフィスビルです。地上11階、地下3階建てのSRC造(鉄骨鉄筋コンクリート構造)で建設され、旧耐震基準…

| 図面 |
階数 |
面積 |
賃料(共益費込) (坪単価) |
保証金/敷金 |
礼金 |
入居可能日 |
|
|
6階 |
N 60.28坪 (199.27m2) |
|
(未公開) |
無 |
即日 |
|
非公開物件の賃料目安アイコン
8,000 円未満
8,000 円以上~1.0 万円未満
1.0 万以上~1.2 万円未満
1.2 万以上~1.4 万円未満
1.4 万以上~1.6 万円未満
1.6 万以上~2.0 万円未満
2.0 万以上~2.5 万円未満
2.5 万以上~3.0 万円未満
3.0 万円以上
未定
※取引態様:媒介
※フロア図面と現況が異なる場合は現況を優先いたします。
※貸室内部の写真・貸室からの景色に関しては、現在の募集フロアと異なる場合がございます。
※取引態様:媒介
その他、千代田区の貸事務所をお探しの方はこちらをクリック

平置き駐車場あるオフィス|区別
関連する貸事務所特集
千代田区に関連する貸事務所検索ページ