一括貸事務所、メゾネット賃貸オフィス(千代田区)
東京都千代田区にある一括貸の事務所やメゾネットの賃貸オフィスなど複数フロア、複数階数をまとめて賃貸できる物件のご紹介です。続きフロア、続き階での募集ビルのため、複数フロアに分かれますが上下移動にストレスはありません。メゾネット物件は専有スペースの内部に階段があるのでオフィスのセキュリティ対策に大変効果的です。それぞれのフロアを、来客スペースと執務スペース、社員スペースと役員室などに分けることも可能です。一括貸、メゾネットのオフィス物件、貸事務所を東京でお探しの方は、こちらからどうぞ!
千代田区の一括貸事務所
物件番号:000916
更新日:2025/10/21
千代田区大手町2-1-1
【竣工】1994/2
【階建て】地上27F 、地下5F
|
【最寄駅】
|
【耐震】 |
新耐震 |
| 【基準階】 |
488.37坪 |
【エントランス】 |
平日・土開放 |
| 【駐車場】 |
有り |
【エレベーター】 |
12基 |
大手町駅直結のハイグレードオフィス、大成大手町ビル(千代田区大手町2-1-1)は、歴史的建築を復元し現代的な設備を備えた高層インテリジェントビルです。東京メトロ東西線・都営三田線「大手町…

| 図面 |
階数 |
面積 |
賃料(共益費込) (坪単価) |
保証金/敷金 |
礼金 |
入居可能日 |
|
|
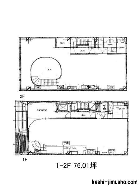
1-2階 |
N 471.01坪 (1557.06m2) |
|
(未公開) |
無 |
2026/6/1 |
|
物件番号:000854
更新日:2025/10/16
千代田区有楽町1-2-15
【竣工】1991/10
【階建て】地上10F 、地下2F
|
【最寄駅】
|
【耐震】 |
新耐震 |
| 【基準階】 |
27.79坪 |
【エントランス】 |
オートロック |
| 【駐車場】 |
無し |
【エレベーター】 |
1基 |
タチバナ日比谷ビルは、東京都千代田区有楽町1-2-15に位置する1991年竣工の高級貸事務所ビルです。立地は抜群で、東京メトロ日比谷線・千代田線、都営三田線の日比谷駅から徒歩3分、銀座線・丸ノ…

| 図面 |
階数 |
面積 |
賃料(共益費込) (坪単価) |
保証金/敷金 |
礼金 |
入居可能日 |
|
|
1-2階 |
G 34.06坪 (112.62m2) |
1,873,300 (55,000) |
18,733,000 (10ヶ月) |
無 |
2026/2 予定 |
|
物件番号:001534
更新日:2025/11/4
千代田区神田三崎町3-10-2
【竣工】1990/7
【階建て】地上7F
|
【最寄駅】
|
【耐震】 |
新耐震 |
| 【基準階】 |
24.69坪 |
【エントランス】 |
全日開放(24h) |
| 【駐車場】 |
無し |
【エレベーター】 |
1基 |
みさきBLDは、東京都千代田区神田三崎町3丁目に位置するオフィスビルで、JR総武線の水道橋駅西口から徒歩わずか2分という非常に利便性の高い場所にあります。さらに、都営三田線の水道橋駅や、飯…

| 図面 |
階数 |
面積 |
賃料(共益費込) (坪単価) |
保証金/敷金 |
礼金 |
入居可能日 |
|
|
2-4階 |
G 49.38坪 (163.24m2) |
740,700 (15,000) |
4,444,200 (6ヶ月) |
2.0ヶ月 |
即日 |
|
物件番号:003755
更新日:2025/11/14
千代田区外神田6-3-8
【竣工】1990/6(改修:2017)
【階建て】地上8F
|
【最寄駅】
|
【耐震】 |
新耐震 |
| 【基準階】 |
20.99坪 |
【エントランス】 |
平日・土開放 |
| 【駐車場】 |
無し |
【エレベーター】 |
1基 |
外神田エリア。末広町駅より徒歩3分圏内の貸事務所。ACN秋葉原ビルは千代田区外神田6-3-8の物件です。東京メトロ銀座線 末広町駅より徒歩3分圏内でアクセス可能な好立地。東京メトロ千代田線 湯…

| 図面 |
階数 |
面積 |
賃料(共益費込) (坪単価) |
保証金/敷金 |
礼金 |
入居可能日 |
|
|
7-8階 |
G 41.87坪 (138.41m2) |
|
8ヶ月 |
無 |
2026/1 |
|
物件番号:083075
更新日:2025/11/4
千代田区神田佐久間町1-27
【竣工】1987/9
【階建て】地上9F 、地下1F
|
【最寄駅】
|
【耐震】 |
新耐震 |
| 【基準階】 |
|
【エントランス】 |
|
| 【駐車場】 |
- |
【エレベーター】 |
有 |
東京都千代田区神田佐久間町に位置する「藤川ビル」は、1987年9月に竣工した地上9階・地下1階建てのオフィスビルです。東京メトロ日比谷線「秋葉原駅」から徒歩1分という抜群の立地に加え、JR山…

| 図面 |
階数 |
面積 |
賃料(共益費込) (坪単価) |
保証金/敷金 |
礼金 |
入居可能日 |
|
|
5-6階 |
G 28.00坪 (92.56m2) |
308,000 (11,000) |
1,120,000 (4ヶ月) |
1.0ヶ月 |
即日 |
|
物件番号:000973
更新日:2025/11/14
千代田区九段南3-4-15
【竣工】1987/4(改修:2021)
【階建て】地上6F
|
【最寄駅】
|
【耐震】 |
新耐震 |
| 【基準階】 |
31.40坪 |
【エントランス】 |
|
| 【駐車場】 |
無し |
【エレベーター】 |
1基 |
プロンテ九段ビルは、東京都千代田区九段南3-4-15に位置する1987年竣工の貸事務所ビルです。立地は閑静な九段エリアにあり、都営新宿線の市ヶ谷駅から徒歩5分圏内、JR総武線や東京メトロ有楽町線…

| 図面 |
階数 |
面積 |
賃料(共益費込) (坪単価) |
保証金/敷金 |
礼金 |
入居可能日 |
|
|
5-6階 |
G 28.07坪 (92.79m2) |
617,540 (22,000) |
2,470,160 (4ヶ月) |
無 |
2025/12/1 |
|
物件番号:001381
更新日:2025/11/4
千代田区飯田橋3-11-15
【竣工】1986/12
【階建て】地上9F
|
【最寄駅】
|
【耐震】 |
新耐震 |
| 【基準階】 |
55.57坪 |
【エントランス】 |
全日開放(24h) |
| 【駐車場】 |
無し |
【エレベーター】 |
1基 |
ヒキタカ飯田橋ビルは、千代田区飯田橋3丁目に位置する、アクセス利便性と機能性を兼ね備えた賃貸オフィスビルです。JR総武線・東京メトロ東西線・有楽町線・南北線・都営大江戸線といった複数路…

| 図面 |
階数 |
面積 |
賃料(共益費込) (坪単価) |
保証金/敷金 |
礼金 |
入居可能日 |
|
|
8-9階 |
G 57.54坪 (190.22m2) |
|
4,833,360 (84,000) |
無 |
即日 |
|
物件番号:036649
更新日:2025/11/14
千代田区神田神保町2-8-20
【竣工】1986/3(改修:2024)
【階建て】地上7F
|
【最寄駅】
|
【耐震】 |
新耐震 |
| 【基準階】 |
|
【エントランス】 |
全日開放(24h) |
| 【駐車場】 |
無し |
【エレベーター】 |
1基 |
NOVEL WORK Jimbocho は、東京都千代田区神田神保町2-8-20に位置する賃貸オフィスビルです。交通アクセスに恵まれた立地が魅力で、東京メトロ半蔵門線・都営三田線・都営新宿線の神保町駅から徒…

| 図面 |
階数 |
面積 |
賃料(共益費込) (坪単価) |
保証金/敷金 |
礼金 |
入居可能日 |
|
|
5-6階 |
G 50.25坪 (166.13m2) |
1,256,250 (25,000) |
無 |
無 |
即日 |
|
物件番号:057694
更新日:2025/11/14
千代田区神田神保町2-5
【竣工】1985/1(改修:2019)
【階建て】地上8F 、地下1F
|
【最寄駅】
|
【耐震】 |
新耐震 |
| 【基準階】 |
25.05坪 |
【エントランス】 |
全日開放(制限有) |
| 【駐車場】 |
無し |
【エレベーター】 |
1基 |
神保町センタービルは東京都千代田区神田神保町2-5にある賃貸オフィスビルです。靖国通り沿いに位置する視認性抜群の立地です。白を基調としたシンプルでシャープな外観です。2019年にリニューア…

| 図面 |
階数 |
面積 |
賃料(共益費込) (坪単価) |
保証金/敷金 |
礼金 |
入居可能日 |
|
|
3-4階 |
G 48.26坪 (159.54m2) |
1,109,980 (23,000) |
6,659,880 (6ヶ月) |
無 |
2026/3/30 |
|
物件番号:004334
更新日:2025/11/11
千代田区東神田1-15-2
【竣工】1984/12
【階建て】地上5F 、地下1F
|
【最寄駅】
|
【耐震】 |
新耐震 |
| 【基準階】 |
21.12坪 |
【エントランス】 |
全日開放(制限有) |
| 【駐車場】 |
無し |
【エレベーター】 |
1基 |
東京都千代田区東神田に位置する「倉内ビル」は、1984年12月に竣工した地上5階・地下1階建てのオフィスビルです。JR総武線快速「馬喰町駅」から徒歩1分という駅近の好立地で、通勤や来客時にも大…

| 図面 |
階数 |
面積 |
賃料(共益費込) (坪単価) |
保証金/敷金 |
礼金 |
入居可能日 |
|
|
NEW1-2階 |
G 38.59坪 (127.57m2) |
482,375 (12,500) |
3,859,000 (8ヶ月) |
無 |
相談 |
|
物件番号:002466
更新日:2025/11/13
千代田区神田小川町1-10
【竣工】1984/4(改修:2014)
【階建て】地上8F 、地下1F
|
【最寄駅】
|
【耐震】 |
新耐震 |
| 【基準階】 |
78.79坪 |
【エントランス】 |
平日のみ開放 |
| 【駐車場】 |
無し |
【エレベーター】 |
2基 |
新御茶ノ水駅より徒歩1分圏内。本郷通りに面した貸事務所。興信ビルは、千代田区神田小川町1-10の物件です。都営新宿線 小川町駅、東京メトロ千代田線 新御茶ノ水駅、都営新宿線 小川町駅より徒…

| 図面 |
階数 |
面積 |
賃料(共益費込) (坪単価) |
保証金/敷金 |
礼金 |
入居可能日 |
|
|
4-5階 |
N 157.58坪 (520.93m2) |
|
12ヶ月 |
無 |
2026/2/1 |
|
物件番号:083416
更新日:2025/10/24
千代田区神田司町2-9-9
【竣工】1983/10
【階建て】地上5F
|
【最寄駅】
|
【耐震】 |
新耐震 |
| 【基準階】 |
13.94坪 |
【エントランス】 |
|
| 【駐車場】 |
- |
【エレベーター】 |
無 |
都会的で洗練された外観を持つオフィスを探している方におすすめしたいのが、千代田区神田司町にある「今井ビル」です。コンクリート打ち放しのファサードが印象的で、シンプルでありながらスタ…

| 図面 |
階数 |
面積 |
賃料(共益費込) (坪単価) |
保証金/敷金 |
礼金 |
入居可能日 |
|
|
1-2階 |
G 27.88坪 (92.17m2) |
362,440 (13,000) |
2,174,640 (6ヶ月) |
無 |
即日 |
|
物件番号:073003
更新日:2025/11/5
千代田区四番町2-12
【竣工】1972/3(改修:2020)
【階建て】地上8F 、地下1F
|
【最寄駅】
|
【耐震】 |
旧耐震+補強済 or 基準OK |
| 【基準階】 |
224.35坪 |
【エントランス】 |
平日のみ開放 |
| 【駐車場】 |
有り |
【エレベーター】 |
2基 |
四番町THビルは、東京都千代田区四番町2丁目に位置する賃貸オフィスビルです。最寄り駅は市ヶ谷駅で、JR総武線・都営新宿線・東京メトロ有楽町線・南北線が利用可能です。また、徒歩9分の四ツ谷…

| 図面 |
階数 |
面積 |
賃料(共益費込) (坪単価) |
保証金/敷金 |
礼金 |
入居可能日 |
|
|
7-8階 |
G 79.88坪 (264.07m2) |
|
12ヶ月 |
無 |
2026/1/1 |
|
物件番号:004654
更新日:2025/11/14
千代田区岩本町2-7-2
【竣工】1991/5(改修:2025)
【階建て】地上8F 、地下1F
|
【最寄駅】
|
【耐震】 |
新耐震 |
| 【基準階】 |
18.65坪 |
【エントランス】 |
|
| 【駐車場】 |
無し |
【エレベーター】 |
1基 |
| 図面 |
階数 |
面積 |
賃料(共益費込) (坪単価) |
保証金/敷金 |
礼金 |
入居可能日 |
|
|
7-8階 |
G 24.01坪 (79.37m2) |
648,270 (27,000) |
無 |
無 |
2026/1 上旬 |
|
物件番号:003359
更新日:2025/11/14
千代田区神田須田町1-4-6
【竣工】1989/4(改修:2024)
【階建て】地上7F 、地下1F
|
【最寄駅】
|
【耐震】 |
新耐震 |
| 【基準階】 |
22.00坪 |
【エントランス】 |
|
| 【駐車場】 |
無し |
【エレベーター】 |
1基 |
最寄り駅から徒歩2分、駅近好立地の賃貸オフィスビルです。TRUST VALUE神田須田町ビルは、東京都千代田区神田須田町1-4-6に位置し、交通アクセスに優れたオフィスビルです。東京メトロ丸ノ内線淡…

| 図面 |
階数 |
面積 |
賃料(共益費込) (坪単価) |
保証金/敷金 |
礼金 |
入居可能日 |
|
|
6-7階 |
G 35.69坪 (118.01m2) |
1,070,700 (30,000) |
無 |
無 |
2026/1 中旬 |
|
※取引態様:媒介
※フロア図面と現況が異なる場合は現況を優先いたします。
※貸室内部の写真・貸室からの景色に関しては、現在の募集フロアと異なる場合がございます。
※取引態様:媒介
その他、千代田区の貸事務所をお探しの方はこちらをクリック

他地域の一括貸・メゾネット物件
一棟貸の事務所、オフィス特集