※ご入居を検討されているお客様向けの情報サイトです。
※駐車場単体・管理会社・テナントに関するお問合せにはお応えいたしかねます。

JR中央線沿線の(80~100坪)の貸事務所・賃貸オフィス一覧

総数:25棟(32件)
  • 1
榊原記念ビルディングの外観
物件番号:082497
更新日:2026/4/7
渋谷区代々木2-5-4
【竣工】2024/10
【階建て】地上10F 、地下1F
【最寄駅】
新宿駅3分
代々木駅8分
【耐震】 新耐震
【基準階】 162.60坪 【エントランス】 全日開放(制限有)
【駐車場】 有り 【エレベーター】 3基
榊原記念ビルディングは、東京都渋谷区代々木2丁目に位置する最新鋭のオフィスビルです。2024年10月に竣工このビルは、京王線、小田急小田原線、東京メトロ丸ノ内線、都営大江戸線、都営新宿線「…
図面 階数 面積 賃料(共益費込)
(坪単価)
保証金/敷金 礼金 入居可能日
7階 N 86.52坪
(286.02m2)
(未公開)
    賃料目安
  • 3.0 万円以上
12ヶ月 即日
ラウンドクロス新宿ビルの外観
物件番号:043898
更新日:2026/4/24
渋谷区代々木2-11-17
【竣工】2005/11
【階建て】地上9F 、地下2F
【最寄駅】
新宿駅2分
新線新宿駅2分
【耐震】 新耐震
【基準階】 161.67坪 【エントランス】 全日開放(制限有)
【駐車場】 有り 【エレベーター】 2基
ラウンドクロス新宿ビルは、東京都渋谷区代々木2-11-17に位置する、地上9階建て、地下2階のオフィスビルです。2005年11月に竣工したSRC造の建物で、新耐震基準に対応しており、地震対策の面でも…
図面 階数 面積 賃料(共益費込)
(坪単価)
保証金/敷金 礼金 入居可能日
NEW5階 N 80.48坪
(266.05m2)
(未公開)
    賃料目安
  • 3.0 万円以上
12ヶ月 2026/6/16
NEW5階 N 81.18坪
(268.36m2)
(未公開)
    賃料目安
  • 3.0 万円以上
12ヶ月 2026/6/16
Aフロント神田須田町ビルの外観
物件番号:003569
更新日:2026/4/17
千代田区神田須田町1-14-1
【竣工】2004/5
【階建て】地上10F 、地下1F
【最寄駅】
神田駅2分
小川町駅2分
淡路町駅3分
【耐震】 新耐震
【基準階】 80.73坪 【エントランス】 平日のみ開放
【駐車場】 有り 【エレベーター】 2基
ヒューリック神田須田町ビルは、東京都千代田区神田須田町1-14-1に位置する、優れた立地条件を誇る貸事務所物件です。靖国通りに面した角地に建つこのビルは、視認性が高く、アクセスの良さが特…
図面 階数 面積 賃料(共益費込)
(坪単価)
保証金/敷金 礼金 入居可能日
7階 G 80.73坪
(266.88m2)
2,018,250
(25,000)
6ヶ月 即日
新宿マインズタワーの外観
物件番号:035937
更新日:2026/4/20
渋谷区代々木2-1-1
【竣工】1995/9
【階建て】地上34F 、地下3F
【最寄駅】
新宿駅1分
【耐震】 新耐震
【基準階】 517.90坪 【エントランス】 全日開放(制限有)
【駐車場】 有り 【エレベーター】 24基
渋谷区代々木2丁目にある、新宿マインズタワーです。最寄駅は、新宿駅です。都営地下鉄・京王線の新宿駅と直結しています。JR各線・東京メトロも利用可能です。複数路線が利用可能でアクセス抜群…
図面 階数 面積 賃料(共益費込)
(坪単価)
保証金/敷金 礼金 入居可能日
8階 G 99.53坪
(329.03m2)
(未公開)
    賃料目安
  • 3.0 万円以上
12ヶ月 2026/5/17
合人社御茶ノ水ビルの外観
物件番号:083880
更新日:2026/4/8
千代田区神田駿河台2-9-13
【竣工】1995/7
【階建て】地上8F 、地下1F
【最寄駅】
御茶ノ水駅7分
水道橋駅9分
神保町駅10分
【耐震】 新耐震
【基準階】 96.12坪 【エントランス】
【駐車場】 - 【エレベーター】 3基
3駅5路線利用可能な立地!利便性良好です。整然とした街並みが美しい落ち着いた環境です。開放的な1フロア1テナント、窓面が多く明るい室内です。
図面 階数 面積 賃料(共益費込)
(坪単価)
保証金/敷金 礼金 入居可能日
3階 G 96.12坪
(317.75m2)
(未公開)
    賃料目安
  • 2.5 万以上~3.0 万円未満
10ヶ月 即日
ファーレイーストビルの外観
物件番号:037741
更新日:2026/4/16
立川市曙町2-34-7
【竣工】1994/10
【階建て】地上12F 、地下1F
【最寄駅】
立川北駅5分
立川駅6分
【耐震】 新耐震
【基準階】 332.12坪 【エントランス】 全日開放(制限有)
【駐車場】 有り 【エレベーター】 5基
ファーレイーストビルは、立川駅北口エリアのファーレ立川に位置するハイグレードなオフィスビルで、立川市曙町2-34-7に所在しています。最寄駅はJR中央線、南武線、青梅線が乗り入れる立川駅と…
図面 階数 面積 賃料(共益費込)
(坪単価)
保証金/敷金 礼金 入居可能日
3階 G 89.34坪
(295.36m2)
(未公開)
    賃料目安
  • 1.0 万以上~1.2 万円未満
12ヶ月 即日
ケイアイ新宿ビルの外観
物件番号:019052
更新日:2026/4/20
渋谷区代々木2-10-8
【竣工】1992/8(改修:2011)
【階建て】地上9F 、地下1F
【最寄駅】
新宿駅2分
【耐震】 新耐震
【基準階】 97.02坪 【エントランス】 全日開放(制限有)
【駐車場】 有り 【エレベーター】 2基
新宿区代々木に位置する「ケイアイ新宿ビル」は、甲州街道沿いに立地する視認性の高い賃貸オフィスビルです。住所は渋谷区代々木2-10-8で、交通利便性に優れた好立地が魅力です。都営大江戸線・…
図面 階数 面積 賃料(共益費込)
(坪単価)
保証金/敷金 礼金 入居可能日
4階 G 97.02坪
(320.73m2)
(未公開)
    賃料目安
  • 3.0 万円以上
12ヶ月 2026/7
MIFビルの外観
物件番号:056141
更新日:2026/4/8
千代田区内神田1-6-6
【竣工】1991/1(改修:2009)
【階建て】地上9F 、地下1F
【最寄駅】
大手町駅4分
神田駅6分
【耐震】 新耐震
【基準階】 82.79坪 【エントランス】 平日・土開放
【駐車場】 有り 【エレベーター】 1基
大手町駅・神田駅利用で徒歩6分圏内。大通り沿いの角地に位置する貸事務所。MIFビルは千代田区内神田1-6-6の物件です。最寄駅は東京メトロ丸ノ内線・半蔵門線・東西線・千代田線の大手町駅。地下…
図面 階数 面積 賃料(共益費込)
(坪単価)
保証金/敷金 礼金 入居可能日
5階 N 82.79坪
(273.69m2)
(未公開)
    賃料目安
  • 2.0 万以上~2.5 万円未満
(未公開) 2026/10/1
フォロ・エムビルの外観
物件番号:004629
更新日:2026/4/30
千代田区岩本町2-1-18
【竣工】1990/12
【階建て】地上9F
【最寄駅】
神田駅6分
新日本橋駅6分
小伝馬町駅6分
【耐震】 新耐震
【基準階】 93.50坪 【エントランス】 平日のみ開放
【駐車場】 有り 【エレベーター】 2基
神田エリア。駐車場完備の重厚感あるオフィスビル。フォロ・エムビルは、千代田区岩本町2丁目、JR山手線・中央線・京浜東北線の神田駅より徒歩6分圏愛の場所に位置します。神田金物通りに面した視…
図面 階数 面積 賃料(共益費込)
(坪単価)
保証金/敷金 礼金 入居可能日
8階 G 93.50坪
(309.09m2)
(未公開)
    賃料目安
  • 2.0 万以上~2.5 万円未満
(未公開) 2026/7/27
NCO神田淡路町の外観
物件番号:036251
更新日:2026/4/17
千代田区神田淡路町2-1-7
【竣工】1990/12
【階建て】地上7F 、地下1F
【最寄駅】
淡路町駅2分
小川町駅2分
新御茶ノ水駅4分
【耐震】 新耐震
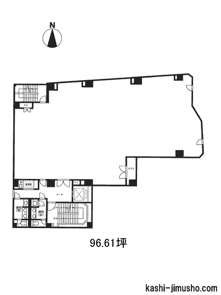
【基準階】 96.61坪 【エントランス】 平日・土開放
【駐車場】 有り 【エレベーター】 1基
東京都千代田区神田淡路町に位置する「NCO神田淡路町」は、丸ノ内線「淡路町駅」から徒歩2分という優れた立地条件に加え、都営新宿線「小川町駅」や千代田線「新御茶ノ水駅」、さらにはJR中央線…
図面 階数 面積 賃料(共益費込)
(坪単価)
保証金/敷金 礼金 入居可能日
4階 G 96.61坪
(319.37m2)
(未公開)
    賃料目安
  • 2.0 万以上~2.5 万円未満
10ヶ月 即日
泉館紀尾井町ビルの外観
物件番号:000602
更新日:2026/3/30
千代田区紀尾井町4-9
【竣工】1990/12
【階建て】地上8F 、地下1F
【最寄駅】
麹町駅5分
赤坂見附駅7分
四ツ谷駅9分
【耐震】 新耐震
【基準階】 159.31坪 【エントランス】 平日・土開放
【駐車場】 有り 【エレベーター】 2基
緑豊かな風格ある街並み、紀尾井町通りに面したオフィスビルです。泉館紀尾井町ビルは、東京都千代田区千代田区紀尾井町4-9に位置します。交通アクセスも便利で、東京メトロ有楽町線の麹町駅から…
図面 階数 面積 賃料(共益費込)
(坪単価)
保証金/敷金 礼金 入居可能日
5階 N 91.02坪
(300.90m2)
(未公開)
    賃料目安
  • 3.0 万円以上
12ヶ月 即日
フロンティアグラン西新宿の外観
物件番号:065052
更新日:2026/4/21
新宿区西新宿3-7-30
【竣工】1990/4(改修:2023)
【階建て】地上12F 、地下3F
【最寄駅】
都庁前駅9分
初台駅10分
新宿駅12分
【耐震】 新耐震
【基準階】 190.75坪 【エントランス】 全日開放(制限有)
【駐車場】 有り 【エレベーター】 3基
フロンティアグラン西新宿は、新宿区西新宿3-7-30に位置するグレード感のある賃貸オフィスビルです。都営大江戸線の都庁前駅から徒歩9分、京王新線の初台駅から徒歩10分圏内の距離で、複数の路線…
図面 階数 面積 賃料(共益費込)
(坪単価)
保証金/敷金 礼金 入居可能日
3階 N 93.20坪
(308.10m2)
(未公開)
    賃料目安
  • 3.0 万円以上
6ヶ月 2026/7/2
8階 N 93.20坪
(308.10m2)
(未公開)
    賃料目安
  • 3.0 万円以上
6ヶ月 即日
西新宿プライムスクエアの外観
物件番号:032172
更新日:2026/4/2
新宿区西新宿7-5-25
【竣工】1988/11
【階建て】地上16F 、地下2F
【最寄駅】
大久保駅3分
西武新宿駅3分
新宿西口駅5分
【耐震】 新耐震
【基準階】 436.74坪 【エントランス】 全日開放(制限有)
【駐車場】 有り 【エレベーター】 10基
JR総武線沿いに建つハイグレードな大型オフィスビル。西新宿プライムスクエアは東京都新宿区西新宿7-5-25にあります。JR、東京メトロ、都営地下鉄、私鉄が乗り入れるビックターミナル新宿駅をは…
図面 階数 面積 賃料(共益費込)
(坪単価)
保証金/敷金 礼金 入居可能日
15階 N 84.18坪
(278.28m2)
(未公開)
    賃料目安
  • 3.0 万円以上
12ヶ月 2026/6/1
NMF吉祥寺本町ビルの外観
物件番号:037818
更新日:2026/4/7
武蔵野市吉祥寺本町1-10-31
【竣工】1987/11
【階建て】地上8F
【最寄駅】
吉祥寺駅5分
【耐震】 新耐震
【基準階】 81.48坪 【エントランス】 全日開放(制限有)
【駐車場】 無し 【エレベーター】 2基
NMF吉祥寺本町ビルは、東京都武蔵野市吉祥寺本町1-10-31に位置する商業ビルです。このビルは1987年11月に竣工され、8階建てのSRC(鉄骨鉄筋コンクリート)構造です。耐震性能は新耐震基準に対応…
図面 階数 面積 賃料(共益費込)
(坪単価)
保証金/敷金 礼金 入居可能日
2階 G 81.48坪
(269.36m2)
(未公開)
    賃料目安
  • 2.0 万以上~2.5 万円未満
12ヶ月 2026/9/1
7階 G 81.48坪
(269.36m2)
(未公開)
    賃料目安
  • 2.0 万以上~2.5 万円未満
12ヶ月 即日
さわだビルの外観
物件番号:032839
更新日:2026/4/16
新宿区新宿1-15-9
【竣工】1987/2(改修:2010)
【階建て】地上12F
【最寄駅】
新宿御苑前駅3分
新宿三丁目駅5分
新宿駅13分
【耐震】 新耐震
【基準階】 95.71坪 【エントランス】
【駐車場】 無し 【エレベーター】 2基
さわだビルは、新宿区新宿1-15-9にある物件です。最寄駅は、東京メトロ丸ノ内線の新宿御苑前駅です。徒歩3分圏内でアクセス可能です。徒歩5分圏内で東京メトロ副都心線・都営新宿線の新宿三丁目…
図面 階数 面積 賃料(共益費込)
(坪単価)
保証金/敷金 礼金 入居可能日
3階 N 95.71坪
(316.40m2)
(未公開)
    賃料目安
  • 2.0 万以上~2.5 万円未満
12ヶ月 2026/6/20
虎ノ門実業会館四谷ビルの外観
物件番号:033596
更新日:2026/4/2
新宿区四谷1-13
【竣工】1987
【階建て】地上4F 、地下2F
【最寄駅】
四ツ谷駅4分
【耐震】 新耐震
【基準階】 【エントランス】 全日開放(制限有)
【駐車場】 有り 【エレベーター】 1基
四ツ谷駅から徒歩4分、落ち着いた環境と機能性を兼ね備えた「T.J.K四谷ビル」は、視認性の高い角地に建つ、使いやすさが魅力のオフィスビルです。新耐震基準に適合した安全性、そしてワンフロア…
図面 階数 面積 賃料(共益費込)
(坪単価)
保証金/敷金 礼金 入居可能日
B1階 N 84.60坪
(279.67m2)
(未公開)
    賃料目安
  • 2.0 万以上~2.5 万円未満
(未公開) 即日
代々木センタービルの外観
物件番号:019036
更新日:2026/4/6
渋谷区代々木1-57-1
【竣工】1986
【階建て】地上8F
【最寄駅】
代々木駅1分
新宿駅8分
【耐震】 新耐震
【基準階】 83.92坪 【エントランス】 全日開放(24h)
【駐車場】 有り 【エレベーター】 2基
代々木センタービルは、東京都渋谷区代々木1-57-1に位置する地上8階建てのオフィスビルです。1986年に竣工し、鉄筋コンクリート造(RC造)によって建設されています。新耐震基準に適合した設計と…
図面 階数 面積 賃料(共益費込)
(坪単価)
保証金/敷金 礼金 入居可能日
7階 G 83.92坪
(277.42m2)
2,098,000
(25,000)
8ヶ月 即日
8階 G 83.92坪
(277.42m2)
2,098,000
(25,000)
8ヶ月 即日
ADビルの外観
物件番号:076333
更新日:2026/4/7
新宿区新宿3-1-22
【竣工】1982/12
【階建て】地上10F 、地下2F
【最寄駅】
新宿三丁目駅2分
新宿駅5分
【耐震】 新耐震
【基準階】 82.67坪 【エントランス】 全日開放(制限有)
【駐車場】 無し 【エレベーター】 2基
ADビルは、東京都新宿区新宿3丁目に建つ地上10階・地下2階建ての賃貸オフィスビルです。1982年12月に竣工し、構造は鉄骨鉄筋コンクリート造(SRC造)で設計されています。新耐震基準に適合してお…
図面 階数 面積 賃料(共益費込)
(坪単価)
保証金/敷金 礼金 入居可能日
6階 G 91.68坪
(303.10m2)
(未公開)
    賃料目安
  • 3.0 万円以上
15ヶ月 2026/4
予定
セントヒルズ代々木ビルの外観
物件番号:019087
更新日:2026/4/23
渋谷区代々木1-55-14
【竣工】1982/10(改修:2011)
【階建て】地上13F 、地下1F
【最寄駅】
代々木駅2分
南新宿駅5分
新宿駅7分
【耐震】 旧耐震
【基準階】 90.32坪 【エントランス】 オートロック
【駐車場】 無し 【エレベーター】 1基
セントヒルズ代々木ビルは東京都渋谷区代々木1-55-14に位置する、地上13階・地下1階の1982年10月に竣工したSRC造のオフィスビルです。鉄骨鉄筋コンクリート造ならではの耐震性を備え、長期にわた…
図面 階数 面積 賃料(共益費込)
(坪単価)
保証金/敷金 礼金 入居可能日
2階 G 87.65坪
(289.76m2)
1,800,000
(20,536)
6ヶ月 1.0ヶ月 即日
新宿JECビルの外観
物件番号:032224
更新日:2026/4/30
新宿区西新宿7-22-43
【竣工】1978/1
【階建て】地上7F 、地下1F
【最寄駅】
西新宿駅4分
新宿駅7分
【耐震】 旧耐震
【基準階】 86.35坪 【エントランス】 平日・土開放
【駐車場】 無し 【エレベーター】 1基
新宿JECビルは、東京都新宿区西新宿7-22-43に位置する地上7階・地下1階のオフィスビルです。1978年1月に竣工し、SRC造で建てられています。交通アクセスは非常に良好で、東京メトロ丸ノ内線の西…
図面 階数 面積 賃料(共益費込)
(坪単価)
保証金/敷金 礼金 入居可能日
4階 G 87.50坪
(289.26m2)
1,400,000
(16,000)
12ヶ月 即日
第2田中ビルの外観
物件番号:033757
更新日:2026/4/15
新宿区四谷本塩町14-1
【竣工】1977/3(改修:2013)
【階建て】地上12F
【最寄駅】
曙橋駅6分
四ツ谷駅8分
市ヶ谷駅8分
【耐震】 旧耐震+補強済 or 基準OK
【基準階】 96.54坪 【エントランス】 平日のみ開放
【駐車場】 無し 【エレベーター】 1基
第2田中ビルは、東京都新宿区四谷本塩町14-1に位置する地上12階建てのオフィスビルです。1977年3月に竣工し、SRC造で建てられています。交通アクセスは良好で、都営新宿線の曙橋駅から徒歩6分、J…
図面 階数 面積 賃料(共益費込)
(坪単価)
保証金/敷金 礼金 入居可能日
6階 G 96.54坪
(319.17m2)
1,500,000
(15,536)
8ヶ月 1.0ヶ月 相談
新宿三井ビルディングの外観
物件番号:032271
更新日:2026/4/27
新宿区西新宿2-1-1
【竣工】1974/9(改修:2000)
【階建て】地上55F 、地下3F
【最寄駅】
都庁前駅1分
西新宿駅2分
新宿駅6分
【耐震】 旧耐震+補強済 or 基準OK
【基準階】 508.10坪 【エントランス】 全日開放(制限有)
【駐車場】 有り 【エレベーター】 33基
新宿三井ビルディングは、東京都新宿区西新宿2に位置する超高層ビルで、多くの企業から選ばれています。ビルは1974年に完成し、地上54階、地下4階の地上部は鉄骨造、地下部は鉄骨鉄筋コンクリー…
図面 階数 面積 賃料(共益費込)
(坪単価)
保証金/敷金 礼金 入居可能日
49階 N 99.88坪
(330.18m2)
(未公開)
    賃料目安
  • 3.0 万円以上
(未公開) 2027/4/1
朝日生命杉並ビルの外観
物件番号:028456
更新日:2026/4/28
杉並区天沼2-3-9
【竣工】1973/6
【階建て】地上9F
【最寄駅】
荻窪駅5分
【耐震】 旧耐震+補強済 or 基準OK
【基準階】 78.77坪 【エントランス】 平日・土開放
【駐車場】 無し 【エレベーター】 2基
複数路線利用可能で交通アクセス良好な物件!エントランス・水回りなど管理の行き届いたきれいなビル!個別空調・OAフロア・男女別トイレと設備が充実しています!
図面 階数 面積 賃料(共益費込)
(坪単価)
保証金/敷金 礼金 入居可能日
4階 N 80.64坪
(266.58m2)
(未公開)
    賃料目安
  • 1.6 万以上~2.0 万円未満
(未公開) 即日
第2明宝ビルの外観
物件番号:032293
更新日:2026/4/7
新宿区西新宿1-19-5
【竣工】1972/12
【階建て】地上9F 、地下2F
【最寄駅】
新宿駅1分
【耐震】 旧耐震+補強済 or 基準OK
【基準階】 100.39坪 【エントランス】
【駐車場】 無し 【エレベーター】 2基
第2明宝ビルは、東京都新宿区西新宿1丁目に位置し、国内でも有数のターミナル駅である新宿駅からのアクセスが抜群のオフィスビルです。京王線および都営大江戸線の「新宿駅」からは徒歩1分、JR中…
図面 階数 面積 賃料(共益費込)
(坪単価)
保証金/敷金 礼金 入居可能日
8階 G 100.39坪
(331.87m2)
(未公開)
    賃料目安
  • 2.5 万以上~3.0 万円未満
12ヶ月 即日
BIZCORE神保町Ⅱの外観
物件番号:083559
更新日:2026/4/21
千代田区神田錦町3-14
【竣工】2026/5
【階建て】地上9F
【最寄駅】
神保町駅4分
淡路町駅5分
新御茶ノ水駅5分
【耐震】 新耐震
【基準階】 89.00坪 【エントランス】
【駐車場】 - 【エレベーター】 2基
2026年5月竣工予定!神保町エリアの新築ハイグレードオフィスビル!
図面 階数 面積 賃料(共益費込)
(坪単価)
保証金/敷金 礼金 入居可能日
6階 G 89.00坪
(294.22m2)
(未公開)
    賃料目安
  • 3.0 万円以上
(未公開) 2026/6/1
7階 G 89.00坪
(294.22m2)
(未公開)
    賃料目安
  • 3.0 万円以上
(未公開) 2026/6/1
8階 G 89.00坪
(294.22m2)
(未公開)
    賃料目安
  • 3.0 万円以上
(未公開) 2026/6/1
9階 G 89.00坪
(294.22m2)
(未公開)
    賃料目安
  • 3.0 万円以上
(未公開) 2026/6/1

4件を確認する

非公開物件の賃料目安アイコン

  • 8,000 円未満
  • 8,000 円以上~1.0 万円未満
  • 1.0 万以上~1.2 万円未満
  • 1.2 万以上~1.4 万円未満
  • 1.4 万以上~1.6 万円未満
  • 1.6 万以上~2.0 万円未満
  • 2.0 万以上~2.5 万円未満
  • 2.5 万以上~3.0 万円未満
  • 3.0 万円以上
  • 未定

※取引態様:媒介
※フロア図面と現況が異なる場合は現況を優先いたします。
※貸室内部の写真・貸室からの景色に関しては、現在の募集フロアと異なる場合がございます。

総数:25棟(32件)
  • 1

(東京)の賃料相場

(東京)エリアの平均賃料

で募集している物件の、1坪あたりの賃料(共益費を含む)の平均価格です。
数値の右側にある矢印は、一週間前の数値と比較した結果を表しています。
賃料価格は毎日集計をしている最新の値です。

  • 2040 未調査
  • 4060 未調査
  • 60100 未調査
  • 100坪以上 未調査

(東京)エリアの募集賃料

の1坪あたりの賃料(共益費を含む)価格帯ごとの募集物件数です。
表の数値をクリックすると募集物件の一覧表が表示します。

【2026/04/30更新】

エリアが指定されていません。
募集賃料(円)8千未満0.8~1.0万1.0~1.2万1.2~1.4万1.4~1.6万1.6~2.0万2.0~2.5万2.5~3.0万3.0万以上