※ご入居を検討されているお客様向けの情報サイトです。
※駐車場単体・管理会社・テナントに関するお問合せにはお応えいたしかねます。

都営三田線沿線の(80~100坪)の貸事務所・賃貸オフィス一覧

総数:29棟(48件)
  • 1
CIRCLES+SHINBASHIの外観
物件番号:013515
更新日:2026/5/11
港区新橋6-2-1
【竣工】2024/10
【階建て】地上13F
【最寄駅】
御成門駅3分
新橋駅10分
大門駅10分
【耐震】 新耐震+制震
【基準階】 99.99坪 【エントランス】 オートロック
【駐車場】 有り 【エレベーター】 3基
CIRCLES+SHINBASHIは、東京都港区新橋6-2-1に位置する最新のオフィスビルで、2024年10月に竣工予定です。地上13階建てのS造(鉄骨造)で、新耐震基準に加え、制震構造を採用しており、地震対策に…
図面 階数 面積 賃料(共益費込)
(坪単価)
保証金/敷金 礼金 入居可能日
3階 G 99.99坪
(330.55m2)
(未公開)
    賃料目安
  • 2.5 万以上~3.0 万円未満
6ヶ月 即日
PMO田町Ⅳの外観
物件番号:078850
更新日:2026/5/12
港区芝5-29-19
【竣工】2022/6
【階建て】地上11F
【最寄駅】
三田駅4分
田町駅7分
【耐震】 新耐震
【基準階】 99.39坪 【エントランス】 オートロック
【駐車場】 有り 【エレベーター】 2基
PMO田町Ⅳは、港区芝5-29-19にある物件です。徒歩4分圏内で都営浅草線・都営三田線の三田駅、徒歩5分圏内でJR山手線・JR京浜東北線の田町駅が利用可能となっています。複数路線が利用可能でアクセ…
図面 階数 面積 賃料(共益費込)
(坪単価)
保証金/敷金 礼金 入居可能日
8階 G 99.39坪
(328.59m2)
(未公開)
    賃料目安
  • 3.0 万円以上
12ヶ月 2026/8/1
新橋菊栄ビルの外観
物件番号:054734
更新日:2026/5/27
港区新橋5-13-1
【竣工】2010/3
【階建て】地上9F 、地下1F
【最寄駅】
新橋駅3分
汐留駅5分
御成門駅10分
【耐震】 新耐震
【基準階】 84.00坪 【エントランス】 平日のみ開放
【駐車場】 有り 【エレベーター】 2基
新橋菊栄ビルは、東京都港区新橋5-13-1に位置する地上9階建て地下1階のオフィスビルです。2010年3月に竣工し、SRC造で建てられています。また、新耐震基準に適合しており、長期的に安心して利用…
図面 階数 面積 賃料(共益費込)
(坪単価)
保証金/敷金 礼金 入居可能日
5階 N 84.12坪
(277.69m2)
2,103,000
(25,000)
12ヶ月 2026/6/1
VORT麻布maximの外観
物件番号:000676
更新日:2026/5/15
港区東麻布1-28-12
【竣工】2002/9
【階建て】地上6F
【最寄駅】
赤羽橋駅1分
麻布十番駅8分
芝公園駅8分
【耐震】 新耐震
【基準階】 164.36坪 【エントランス】 オートロック
【駐車場】 有り 【エレベーター】 2基
港区東麻布1-28-12にある、VORT麻布maximです。最寄駅は、都営大江戸線の赤羽橋駅です。徒歩1分圏内でアクセス可能な好立地です。徒歩8分圏内で東京メトロ南北線の麻布十番駅、都営大江戸線の麻…
図面 階数 面積 賃料(共益費込)
(坪単価)
保証金/敷金 礼金 入居可能日
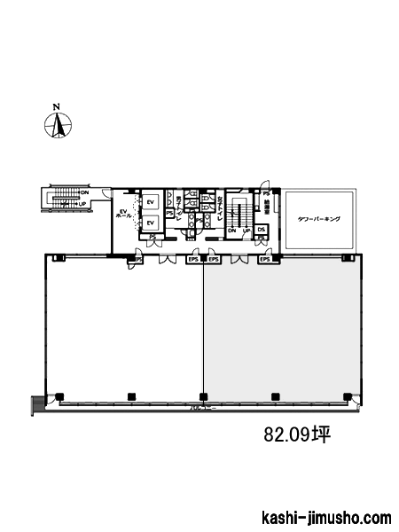
6階 G 82.26坪
(271.94m2)
(未公開)
    賃料目安
  • 2.5 万以上~3.0 万円未満
5ヶ月 1.0ヶ月 2026/10/1
合人社御茶ノ水ビルの外観
物件番号:083880
更新日:2026/5/18
千代田区神田駿河台2-9-13
【竣工】1995/7
【階建て】地上8F 、地下1F
【最寄駅】
御茶ノ水駅7分
水道橋駅9分
神保町駅10分
【耐震】 新耐震
【基準階】 96.12坪 【エントランス】
【駐車場】 - 【エレベーター】 3基
3駅5路線利用可能な立地!利便性良好です。整然とした街並みが美しい落ち着いた環境です。開放的な1フロア1テナント、窓面が多く明るい室内です。
図面 階数 面積 賃料(共益費込)
(坪単価)
保証金/敷金 礼金 入居可能日
3階 G 96.12坪
(317.75m2)
(未公開)
    賃料目安
  • 2.5 万以上~3.0 万円未満
10ヶ月 即日
竹橋3-3ビルの外観
物件番号:002165
更新日:2026/5/18
千代田区神田錦町3-3
【竣工】1994/3
【階建て】地上8F
【最寄駅】
竹橋駅3分
神保町駅4分
【耐震】 新耐震
【基準階】 90.81坪 【エントランス】 平日・土開放
【駐車場】 有り 【エレベーター】 2基
竹橋3-3ビルは、東京都千代田区神田錦町3-3に位置する地上8階建てのオフィスビルです。1994年3月に竣工し、SRC造で建てられています。また、新耐震基準に適合しているので安全性に優れています。…
図面 階数 面積 賃料(共益費込)
(坪単価)
保証金/敷金 礼金 入居可能日
2階 N 90.81坪
(300.20m2)
(未公開)
    賃料目安
  • 2.5 万以上~3.0 万円未満
12ヶ月 2026/8/1
東京ロイヤルビルの外観
物件番号:074363
更新日:2026/5/22
豊島区北大塚1-23-3
【竣工】1993/12
【階建て】地上5F 、地下1F
【最寄駅】
大塚駅前駅6分
大塚駅7分
巣鴨駅8分
【耐震】 新耐震
【基準階】 【エントランス】
【駐車場】 無し 【エレベーター】 1基
複数路線が利用可能で交通アクセス抜群です!1993年竣工の新耐震基準を満たした物件です!ワンフロア・ワンテナントで使い勝手良好です!
図面 階数 面積 賃料(共益費込)
(坪単価)
保証金/敷金 礼金 入居可能日
NEW1-2階 G 87.25坪
(288.43m2)
1,650,000
(18,911)
10ヶ月 1.0ヶ月 2026/11
上旬
エミタス虎ノ門ビルの外観
物件番号:067077
更新日:2026/5/13
港区虎ノ門3-22-14
【竣工】1993/3
【階建て】地上13F 、地下2F
【最寄駅】
神谷町駅5分
御成門駅7分
【耐震】 新耐震
【基準階】 84.19坪 【エントランス】 オートロック
【駐車場】 有り 【エレベーター】 2基
エミタス虎ノ門ビルは、港区虎ノ門に位置する賃貸オフィスビルで、特徴的なカーテンウォールを使用した外観が印象的な物件です。最寄駅は東京メトロ日比谷線の神谷町駅で、徒歩5分圏内とアクセス…
図面 階数 面積 賃料(共益費込)
(坪単価)
保証金/敷金 礼金 入居可能日
4階 G 84.19坪
(278.30m2)
2,000,000
(23,756)
6ヶ月 1.0ヶ月 即日
6階 G 84.19坪
(278.30m2)
2,200,000
(26,131)
6ヶ月 1.0ヶ月 即日
いちご本郷三丁目ビルの外観
物件番号:055351
更新日:2026/5/27
文京区本郷2-38-16
【竣工】1991/2
【階建て】地上8F 、地下1F
【最寄駅】
本郷三丁目駅1分
水道橋駅8分
春日駅8分
【耐震】 新耐震
【基準階】 161.98坪 【エントランス】 平日のみ開放
【駐車場】 有り 【エレベーター】 2基
東京都文京区本郷2丁目に位置する「JEI本郷ビル」は、交通の利便性、広いフロア面積、そして充実した設備を兼ね備えたオフィスビルです。1991年2月に竣工したこの建物は、地上8階、地下1階建ての…
図面 階数 面積 賃料(共益費込)
(坪単価)
保証金/敷金 礼金 入居可能日
3階 G 87.63坪
(289.68m2)
(未公開)
    賃料目安
  • 3.0 万円以上
10ヶ月 2026/7/1
5階 G 87.63坪
(289.68m2)
(未公開)
    賃料目安
  • 3.0 万円以上
10ヶ月 2026/7/1
寺田ビルの外観
物件番号:014965
更新日:2026/4/30
港区芝公園2-3-3
【竣工】1990/9
【階建て】地上8F
【最寄駅】
大門駅2分
芝公園駅6分
浜松町駅7分
【耐震】 新耐震
【基準階】 82.30坪 【エントランス】
【駐車場】 有り 【エレベーター】 1基
寺田ビルは、東京都港区芝公園2-3-3に位置する地上8階建てのオフィスビルです。1990年9月に竣工し、SRC造で建てられています。新耐震基準に適合しており、安全性にも優れています。交通アクセス…
図面 階数 面積 賃料(共益費込)
(坪単価)
保証金/敷金 礼金 入居可能日
4階 G 82.30坪
(272.07m2)
1,646,000
(20,000)
8ヶ月 2026/7
5階 G 82.30坪
(272.07m2)
1,646,000
(20,000)
8ヶ月 2026/9
@ONE九段下の外観
物件番号:081050
更新日:2026/5/15
千代田区神田神保町3-6-12
【竣工】1990/7
【階建て】地上5F 、地下1F
【最寄駅】
九段下駅3分
神保町駅5分
水道橋駅10分
【耐震】 新耐震
【基準階】 【エントランス】 全日開放(24h)
【駐車場】 有り 【エレベーター】 1基
(仮称)神田神保町3丁目ビルは、東京都千代田区神田神保町3丁目に位置する希少な一棟貸し物件です。1990年1月に竣工した鉄筋コンクリート造(RC造)のビルで、新耐震基準に適合しており、安全性が…
図面 階数 面積 賃料(共益費込)
(坪単価)
保証金/敷金 礼金 入居可能日
B2-5階 G 90.27坪
(298.42m2)
2,000,000
(22,156)
4ヶ月 即日
浜松町シミヅ産業ビルの外観
物件番号:038584
更新日:2026/5/8
港区浜松町1-2-4
【竣工】1989/4
【階建て】地上6F 、地下1F
【最寄駅】
浜松町駅6分
大門駅6分
御成門駅7分
【耐震】 新耐震
【基準階】 96.67坪 【エントランス】 平日・土開放
【駐車場】 有り 【エレベーター】 2基
浜松町シミヅ産業ビルは、東京都港区浜松町1丁目に位置するオフィスビルで、交通アクセスの良さと広々としたオフィス空間が特徴です。最寄り駅はJR山手線・京浜東北線「浜松町駅」および都営浅草…
図面 階数 面積 賃料(共益費込)
(坪単価)
保証金/敷金 礼金 入居可能日
5階 N 96.67坪
(319.58m2)
(未公開)
    賃料目安
  • 1.6 万以上~2.0 万円未満
10ヶ月 2026/8/1
芝公園向陽ビルの外観
物件番号:014952
更新日:2026/5/26
港区芝公園2-9-5
【竣工】1988/12
【階建て】地上8F 、地下1F
【最寄駅】
芝公園駅4分
大門駅5分
浜松町駅7分
【耐震】 新耐震
【基準階】 95.53坪 【エントランス】 平日・土開放
【駐車場】 有り 【エレベーター】 1基
芝公園エリアの賃貸オフィスビルです。芝公園向陽ビルは、東京都港区芝公園2-9-5に位置するオフィスビルです。1988年12月に竣工し、8階建ての鉄骨鉄筋コンクリート造を採用しています。新耐震基…
図面 階数 面積 賃料(共益費込)
(坪単価)
保証金/敷金 礼金 入居可能日
5階 G 95.53坪
(315.80m2)
1,624,010
(17,000)
8ヶ月 1.0ヶ月 2026/7
予定
虎ノ門ESビルの外観
物件番号:014641
更新日:2026/5/15
港区虎ノ門3-25-2
【竣工】1988/2(改修:2018)
【階建て】地上8F 、地下1F
【最寄駅】
神谷町駅2分
御成門駅7分
六本木一丁目駅11分
【耐震】 新耐震
【基準階】 88.02坪 【エントランス】 平日・土開放
【駐車場】 有り 【エレベーター】 2基
虎ノ門ESビルは、港区虎ノ門3丁目に位置するオフィスビルで、再開発が進み活気を増す神谷町・愛宕エリアに立地しています。東京メトロ日比谷線の神谷町駅から徒歩2分圏内とアクセスは抜群で、都…
図面 階数 面積 賃料(共益費込)
(坪単価)
保証金/敷金 礼金 入居可能日
3階 N 88.02坪
(290.99m2)
(未公開)
    賃料目安
  • 1.2 万以上~1.4 万円未満
12ヶ月 即日
三田日東ダイビルの外観
物件番号:016422
更新日:2026/5/18
港区三田3-11-36
【竣工】1986/9(改修:2015)
【階建て】地上8F 、地下1F
【最寄駅】
泉岳寺駅3分
三田駅7分
高輪ゲートウェイ駅8分
【耐震】 新耐震
【基準階】 283.00坪 【エントランス】 平日・土開放
【駐車場】 有り 【エレベーター】 4基
三田日東ダイビルは、東京都港区三田3-11-36に位置する地上8階建て地下1階のオフィスビルです。1986年9月に竣工し、SRC造で建てられています。新耐震基準に適合しており、安全性にも優れています…
図面 階数 面積 賃料(共益費込)
(坪単価)
保証金/敷金 礼金 入居可能日
2階 N 85.42坪
(282.38m2)
(未公開)
    賃料目安
  • 2.5 万以上~3.0 万円未満
(未公開) 2026/7
春日町ビルの外観
物件番号:025928
更新日:2026/5/20
文京区本郷1-33-13
【竣工】1985/5(改修:2020)
【階建て】地上7F 、地下1F
【最寄駅】
水道橋駅4分
春日駅5分
後楽園駅6分
【耐震】 新耐震
【基準階】 84.32坪 【エントランス】 平日のみ開放
【駐車場】 有り 【エレベーター】 1基
春日町ビルは、東京都文京区本郷1-33-13に位置する貸事務所で、水道橋エリアの中でも利便性の高い立地にあります。都営三田線の水道橋駅から徒歩4分、都営大江戸線の春日駅から徒歩5分、JR総武線…
図面 階数 面積 賃料(共益費込)
(坪単価)
保証金/敷金 礼金 入居可能日
6階 N 84.32坪
(278.75m2)
2,192,320
(26,000)
2026/9/23
三田UTビルの外観
物件番号:015552
更新日:2026/5/21
港区芝3-42-10
【竣工】1985/4
【階建て】地上8F 、地下1F
【最寄駅】
三田駅6分
赤羽橋駅9分
田町駅10分
【耐震】 新耐震
【基準階】 91.77坪 【エントランス】 全日開放(制限有)
【駐車場】 有り 【エレベーター】 1基
芝エリアの賃貸オフィスビルです。三田UTビルは、東京都港区芝3-42-10に位置する、利便性の高いオフィスビルです。1985年4月に竣工し、地上8階、地下1階建ての鉄骨鉄筋コンクリート造で、耐震性…
図面 階数 面積 賃料(共益費込)
(坪単価)
保証金/敷金 礼金 入居可能日
2階 G 91.77坪
(303.39m2)
(未公開)
    賃料目安
  • 1.6 万以上~2.0 万円未満
10ヶ月 即日
田町きよたビルの外観
物件番号:016042
更新日:2026/5/28
港区芝浦4-3-4
【竣工】1982/5
【階建て】地上9F 、地下1F
【最寄駅】
田町駅13分
高輪ゲートウェイ駅13分
三田駅14分
【耐震】 旧耐震
【基準階】 634.46坪 【エントランス】 平日のみ開放
【駐車場】 有り 【エレベーター】 5基
田町きよたビルは、東京都港区芝浦4-3-4に位置する大規模オフィスビルです。1982年5月に竣工し、地上9階、地下1階の鉄骨鉄筋コンクリート造(SRC造)の建物です。旧耐震基準で建設されていますが…
図面 階数 面積 賃料(共益費込)
(坪単価)
保証金/敷金 礼金 入居可能日
7階 N 87.10坪
(287.93m2)
(未公開)
    賃料目安
  • 2.0 万以上~2.5 万円未満
12ヶ月 即日
ファースト岡田ビルの外観
物件番号:015910
更新日:2026/5/19
港区芝4-3-5
【竣工】1981/9(改修:2007)
【階建て】地上9F 、地下1F
【最寄駅】
三田駅2分
田町駅7分
【耐震】 旧耐震+補強済 or 基準OK
【基準階】 101.99坪 【エントランス】 平日のみ開放
【駐車場】 有り 【エレベーター】 2基
三田駅2分の好立地、明るい環境の賃貸オフィスビルです。ファースト岡田ビルは、東京都港区芝4-3-5に位置する、利便性と機能性を兼ね備えたオフィスビルです。1981年9月に竣工し、2007年には改修…
図面 階数 面積 賃料(共益費込)
(坪単価)
保証金/敷金 礼金 入居可能日
4階 G 93.99坪
(310.71m2)
(未公開)
    賃料目安
  • 2.0 万以上~2.5 万円未満
10ヶ月 2026/10/1
5階 G 93.99坪
(310.71m2)
(未公開)
    賃料目安
  • 2.0 万以上~2.5 万円未満
10ヶ月 2026/10/1
6階 G 93.99坪
(310.71m2)
(未公開)
    賃料目安
  • 2.0 万以上~2.5 万円未満
10ヶ月 2026/10/1
ライオンズマンション小石川台の外観
物件番号:064692
更新日:2026/5/21
文京区春日2-19-11
【竣工】1980/12
【階建て】地上11F 、地下1F
【最寄駅】
後楽園駅12分
春日駅13分
【耐震】 旧耐震+補強済 or 基準OK
【基準階】 82.99坪 【エントランス】 全日開放(24h)
【駐車場】 無し 【エレベーター】 1基
ライオンズマンション小石川台は、東京都文京区春日2丁目に位置する地上11階建ての賃貸物件です。1980年12月に竣工し、鉄骨鉄筋コンクリート造(SRC造)の堅牢な構造を有しています。最寄り駅は…
図面 階数 面積 賃料(共益費込)
(坪単価)
保証金/敷金 礼金 入居可能日
2階 G 82.99坪
(274.34m2)
1,360,000
(16,388)
3ヶ月 1.0ヶ月 即日
富士ビルの外観
物件番号:015120
更新日:2026/5/20
港区芝大門2-11-1
【竣工】1973/11(改修:2024)
【階建て】地上7F
【最寄駅】
大門駅4分
浜松町駅5分
芝公園駅7分
【耐震】 旧耐震+補強済 or 基準OK
【基準階】 92.50坪 【エントランス】 平日のみ開放
【駐車場】 有り 【エレベーター】 1基
交通アクセス便利な大門・浜松町エリアの賃貸オフィスビルです。富士ビルは、東京都港区芝大門2-11-1に位置し、1973年に竣工した地上7階建てのオフィスビルです。鉄骨鉄筋コンクリート造で建設さ…
図面 階数 面積 賃料(共益費込)
(坪単価)
保証金/敷金 礼金 入居可能日
2階 G 92.50坪
(305.79m2)
1,387,500
(15,000)
8ヶ月 即日
RAYS目黒の外観
物件番号:083147
更新日:2026/5/14
品川区上大崎1-23-16
【竣工】1971/2(改修:2025)
【階建て】地上6F
【最寄駅】
目黒駅9分
【耐震】 旧耐震
【基準階】 【エントランス】 全日開放(24h)
【駐車場】 無し 【エレベーター】 1基
目黒駅から徒歩圏内、複数路線が利用可能です!2025年に一棟フルリノベーション実施済み!明るくきれいな建物です!社員間交流やリフレッシュに最適な専用の屋上スペースがあります!
図面 階数 面積 賃料(共益費込)
(坪単価)
保証金/敷金 礼金 入居可能日
1-6階 G 86.00坪
(284.30m2)
(未公開)
    賃料目安
  • 2.0 万以上~2.5 万円未満
(未公開) 1.0ヶ月 即日
6東洋海事ビルの外観
物件番号:013521
更新日:2026/5/21
港区新橋4-7-2
【竣工】1970/1(改修:2016)
【階建て】地上8F 、地下1F
【最寄駅】
新橋駅6分
内幸町駅7分
【耐震】 旧耐震+補強済 or 基準OK
【基準階】 85.00坪 【エントランス】 平日・土開放
【駐車場】 有り 【エレベーター】 2基
6東洋海事ビルは、東京都港区新橋4-7-2に位置する賃貸オフィスビルです。JR山手線、京浜東北線、東海道本線、銀座線、都営浅草線の新橋駅から徒歩6分と、主要路線を利用することが可能です。また…
図面 階数 面積 賃料(共益費込)
(坪単価)
保証金/敷金 礼金 入居可能日
8階 G 85.00坪
(280.99m2)
(未公開)
    賃料目安
  • 2.0 万以上~2.5 万円未満
(未公開) 即日
新国際ビルの外観
物件番号:000910
更新日:2026/5/21
千代田区丸の内3-4-1
【竣工】1965/9
【階建て】地上9F 、地下4F
【最寄駅】
有楽町駅1分
日比谷駅3分
銀座駅3分
【耐震】 旧耐震+補強済 or 基準OK
【基準階】 1474.00坪 【エントランス】 全日開放(制限有)
【駐車場】 有り 【エレベーター】 13基
千代田区丸の内3丁目にある、新国際ビルです。地下鉄・有楽町駅に直結しています。JR山手線・京浜東北線・東京メトロ有楽町線の有楽町駅、東京メトロ日比谷線・千代田線の日比谷駅、東京メトロ丸…
図面 階数 面積 賃料(共益費込)
(坪単価)
保証金/敷金 礼金 入居可能日
5階 N 94.69坪
(313.02m2)
(未公開)
    賃料目安
  • 3.0 万円以上
(未公開) 相談
新虎ノ門実業会館の外観
物件番号:014715
更新日:2026/5/11
港区虎ノ門1-1-21
【竣工】1965/6(改修:2014)
【階建て】地上9F 、地下3F
【最寄駅】
虎ノ門駅1分
霞ヶ関駅4分
内幸町駅6分
【耐震】 旧耐震+補強済 or 基準OK
【基準階】 374.00坪 【エントランス】 平日のみ開放
【駐車場】 有り 【エレベーター】 2基
新虎ノ門実業会館は、東京都港区虎ノ門に位置するオフィスビルで、都心のビジネス環境に最適な立地が魅力の物件です。銀座線「虎ノ門駅」から徒歩1分という抜群のアクセスを誇り、さらに千代田線…
図面 階数 面積 賃料(共益費込)
(坪単価)
保証金/敷金 礼金 入居可能日
8階 N 96.25坪
(318.18m2)
(未公開)
    賃料目安
  • 2.5 万以上~3.0 万円未満
(未公開) 即日
飯田ビルの外観
物件番号:014198
更新日:2026/5/15
港区西新橋3-24-9
【竣工】1963/9(改修:2001)
【階建て】地上9F 、地下2F
【最寄駅】
御成門駅1分
神谷町駅8分
【耐震】 旧耐震
【基準階】 82.00坪 【エントランス】 平日のみ開放
【駐車場】 無し 【エレベーター】 1基
飯田ビルは東京都港区西新橋3-24-9にある賃貸オフィスビルです。日比谷通り沿い、御成門交差点角地に位置する視認性の高い立地です。外観は茶色を基調としたガラス張りのビルです。リニューアル…
図面 階数 面積 賃料(共益費込)
(坪単価)
保証金/敷金 礼金 入居可能日
6階 G 82.00坪
(271.07m2)
1,230,000
(15,000)
8ヶ月 2026/5
入居前倒し可
虎ノ門実業会館の外観
物件番号:014684
更新日:2026/5/7
港区虎ノ門1-1-20
【竣工】1962
【階建て】地上9F 、地下3F
【最寄駅】
虎ノ門駅1分
霞ヶ関駅4分
内幸町駅6分
【耐震】 旧耐震+補強済 or 基準OK
【基準階】 159.00坪 【エントランス】 平日のみ開放
【駐車場】 無し 【エレベーター】 2基
虎ノ門実業会館は、東京都港区虎ノ門に位置するオフィスビルで、ビジネスの中心地としての優れたロケーションが魅力です。銀座線「虎ノ門駅」から徒歩1分という絶好のアクセスを誇り、さらに千代…
図面 階数 面積 賃料(共益費込)
(坪単価)
保証金/敷金 礼金 入居可能日
2階 N 100.69坪
(332.86m2)
(未公開)
    賃料目安
  • 2.5 万以上~3.0 万円未満
(未公開) 即日
スイテ田町の外観
物件番号:083683
更新日:2026/5/21
港区芝5-213-13
【竣工】2027/2
【階建て】地上13F
【最寄駅】
三田駅2分
田町駅4分
【耐震】 新耐震
【基準階】 97.00坪 【エントランス】
【駐車場】 有り 【エレベーター】 2基
2027年竣工のハイグレードオフィスビル!
図面 階数 面積 賃料(共益費込)
(坪単価)
保証金/敷金 礼金 入居可能日
2階 G 98.00坪
(325.00m2)
(未公開)
    賃料目安
  • 3.0 万円以上
6ヶ月 未定
3階 G 97.00坪
(322.00m2)
(未公開)
    賃料目安
  • 3.0 万円以上
6ヶ月 未定
4階 G 97.00坪
(322.00m2)
(未公開)
    賃料目安
  • 3.0 万円以上
6ヶ月 未定
5階 G 97.00坪
(322.00m2)
(未公開)
    賃料目安
  • 3.0 万円以上
6ヶ月 未定
6階 G 97.00坪
(322.00m2)
(未公開)
    賃料目安
  • 3.0 万円以上
6ヶ月 未定
7階 G 97.00坪
(322.00m2)
(未公開)
    賃料目安
  • 3.0 万円以上
6ヶ月 未定
8階 G 97.00坪
(322.00m2)
(未公開)
    賃料目安
  • 3.0 万円以上
6ヶ月 未定
9階 G 97.00坪
(322.00m2)
(未公開)
    賃料目安
  • 3.0 万円以上
6ヶ月 未定
10階 G 97.00坪
(322.00m2)
(未公開)
    賃料目安
  • 3.0 万円以上
6ヶ月 未定
11階 G 97.00坪
(322.00m2)
(未公開)
    賃料目安
  • 3.0 万円以上
6ヶ月 未定
12階 G 97.00坪
(322.00m2)
(未公開)
    賃料目安
  • 3.0 万円以上
6ヶ月 未定
13階 G 97.00坪
(322.00m2)
(未公開)
    賃料目安
  • 3.0 万円以上
6ヶ月 未定

12件を確認する

BIZCORE神保町Ⅱの外観
物件番号:083559
更新日:2026/5/8
千代田区神田錦町3-14
【竣工】2026/5
【階建て】地上9F
【最寄駅】
神保町駅4分
淡路町駅5分
新御茶ノ水駅5分
【耐震】 新耐震
【基準階】 89.00坪 【エントランス】
【駐車場】 有り 【エレベーター】 2基
BIZCORE神保町Ⅱは、東京都千代田区神田錦町3丁目に誕生したハイグレードオフィスビルです。2026年5月竣工の新築物件で、新耐震基準に適合したRC造9階建てとなっており、企業の信頼性や快適なオフ…
図面 階数 面積 賃料(共益費込)
(坪単価)
保証金/敷金 礼金 入居可能日
6階 G 89.00坪
(294.22m2)
(未公開)
    賃料目安
  • 3.0 万円以上
(未公開) 2026/6/1
7階 G 89.00坪
(294.22m2)
(未公開)
    賃料目安
  • 3.0 万円以上
(未公開) 2026/6/1
8階 G 89.00坪
(294.22m2)
(未公開)
    賃料目安
  • 3.0 万円以上
(未公開) 2026/6/1
9階 G 89.00坪
(294.22m2)
(未公開)
    賃料目安
  • 3.0 万円以上
(未公開) 2026/6/1

4件を確認する

非公開物件の賃料目安アイコン

  • 8,000 円未満
  • 8,000 円以上~1.0 万円未満
  • 1.0 万以上~1.2 万円未満
  • 1.2 万以上~1.4 万円未満
  • 1.4 万以上~1.6 万円未満
  • 1.6 万以上~2.0 万円未満
  • 2.0 万以上~2.5 万円未満
  • 2.5 万以上~3.0 万円未満
  • 3.0 万円以上
  • 未定

※取引態様:媒介
※フロア図面と現況が異なる場合は現況を優先いたします。
※貸室内部の写真・貸室からの景色に関しては、現在の募集フロアと異なる場合がございます。

総数:29棟(48件)
  • 1

(東京)の賃料相場

(東京)エリアの平均賃料

で募集している物件の、1坪あたりの賃料(共益費を含む)の平均価格です。
数値の右側にある矢印は、一週間前の数値と比較した結果を表しています。
賃料価格は毎日集計をしている最新の値です。

  • 2040 13,600円前後
  • 4060 15,292円前後
  • 60100 15,764円前後
  • 100坪以上 17,712円前後

(東京)エリアの募集賃料

の1坪あたりの賃料(共益費を含む)価格帯ごとの募集物件数です。
表の数値をクリックすると募集物件の一覧表が表示します。

【2026/05/28更新】

エリアが指定されていません。
募集賃料(円)8千未満0.8~1.0万1.0~1.2万1.2~1.4万1.4~1.6万1.6~2.0万2.0~2.5万2.5~3.0万3.0万以上