※ご入居を検討されているお客様向けの情報サイトです。
※駐車場単体・管理会社・テナントに関するお問合せにはお応えいたしかねます。

西エリアの(坪単価25,000~30,000円)の貸事務所・賃貸オフィス一覧

総数:8棟(9件)
  • 1
トレリ青葉台の外観
物件番号:082228
更新日:2026/4/15
目黒区青葉台2-6-19
【竣工】2023/5
【階建て】地上2F 、地下1F
【最寄駅】
神泉駅9分
池尻大橋駅12分
【耐震】 新耐震
【基準階】 【エントランス】
【駐車場】 - 【エレベーター】
トレリ青葉台は、東京都目黒区青葉台2丁目に所在する賃貸オフィス物件です。最寄り駅は京王井の頭線・神泉駅で、徒歩9分という立地にあります。交通アクセスの利便性を確保しながらも、落ち着い…
図面 階数 面積 賃料(共益費込)
(坪単価)
保証金/敷金 礼金 入居可能日
NEW2階 G 25.47坪
(84.20m2)
640,000
(25,128)
2ヶ月 1.0ヶ月 相談
睦ビル二子玉川の外観
物件番号:075396
更新日:2026/4/10
世田谷区玉川2-16-6
【竣工】2021/6
【階建て】地上4F
【最寄駅】
二子玉川駅5分
【耐震】 新耐震
【基準階】 157.12坪 【エントランス】 平日のみ開放
【駐車場】 有り 【エレベーター】 2基
睦ビル二子玉川は、東京都世田谷区玉川2-16-6にある2021年に竣工したモダンで魅力的な貸事務所です。この建物は、東急田園都市線と東急大井町線の二子玉川駅から徒歩5分という便利な立地にありな…
図面 階数 面積 賃料(共益費込)
(坪単価)
保証金/敷金 礼金 入居可能日
3階 N 69.72坪
(230.48m2)
(未公開)
    賃料目安
  • 2.5 万以上~3.0 万円未満
12ヶ月 2026/7/2
I.W.Place Aobadaiの外観
物件番号:081659
更新日:2026/4/17
目黒区青葉台4-7-4
【竣工】2003/3
【階建て】地上4F 、地下1F
【最寄駅】
神泉駅9分
池尻大橋駅11分
【耐震】 新耐震
【基準階】 【エントランス】 オートロック
【駐車場】 無し 【エレベーター】 1基
I.W.Place Aobadaiは、東京都目黒区青葉台4丁目に位置するオフィスビルで、京王井の頭線の神泉駅から徒歩9分、東急田園都市線の池尻大橋駅から徒歩11分の距離にあります。渋谷エリアにも近く、ビ…
図面 階数 面積 賃料(共益費込)
(坪単価)
保証金/敷金 礼金 入居可能日
2階 G 23.85坪
(78.86m2)
643,950
(27,000)
(未公開) 2026/6
上旬
エルフレア立川の外観
物件番号:083528
更新日:2026/3/30
立川市柴崎町3-9-21
【竣工】2001/10
【階建て】地上12F
【最寄駅】
立川南駅3分
立川駅5分
【耐震】 新耐震
【基準階】 【エントランス】 平日のみ開放
【駐車場】 有り 【エレベーター】 1基
エルフレア立川は、東京都立川市柴崎町3-9-21に位置するオフィスビルです。2001年10月に竣工した建物で、構造はSRC造、地上12階建てです。新耐震基準に適合しているので安全性の高い建物です。交…
図面 階数 面積 賃料(共益費込)
(坪単価)
保証金/敷金 礼金 入居可能日
2階 N 50.69坪
(167.57m2)
(未公開)
    賃料目安
  • 2.5 万以上~3.0 万円未満
12ヶ月 1.0ヶ月 即日
中野坂上サンブライトツインの外観
物件番号:030848
更新日:2026/4/15
中野区本町2-46-1
【竣工】1996/9
【階建て】地上30F 、地下2F
【最寄駅】
中野坂上駅1分
【耐震】 新耐震
【基準階】 400.49坪 【エントランス】 平日のみ開放
【駐車場】 有り 【エレベーター】 15基
中野坂上サンブライトツインは、東京都中野区本町2-46-1に位置する、中野坂上駅直結の大型高層オフィスビルです。1996年に竣工したこのビルは、鉄筋コンクリート造で地上30階、地下2階建ての新耐…
図面 階数 面積 賃料(共益費込)
(坪単価)
保証金/敷金 礼金 入居可能日
19階 N 219.12坪
(724.37m2)
(未公開)
    賃料目安
  • 2.5 万以上~3.0 万円未満
10ヶ月 即日
世田谷ビジネススクエアタワー(SBS)の外観
物件番号:035182
更新日:2026/4/16
世田谷区用賀4-10-1
【竣工】1993/10
【階建て】地上28F 、地下2F
【最寄駅】
用賀駅1分
【耐震】 新耐震
【基準階】 389.40坪 【エントランス】 全日開放(制限有)
【駐車場】 有り 【エレベーター】 12基
用賀駅直結のハイグレードオフィスビルです。東京都世田谷区用賀4に位置する世田谷ビジネススクエアタワーは、東急田園都市線用賀駅から直結しており、駅から1分というアクセスの良さを誇ります…
図面 階数 面積 賃料(共益費込)
(坪単価)
保証金/敷金 礼金 入居可能日
15階 N 162.90坪
(538.51m2)
(未公開)
    賃料目安
  • 2.5 万以上~3.0 万円未満
(未公開) 即日
24階 N 188.67坪
(623.72m2)
(未公開)
    賃料目安
  • 2.5 万以上~3.0 万円未満
(未公開) 即日
府中駅前ビルの外観
物件番号:051430
更新日:2026/4/17
府中市府中町1-8-1
【竣工】1985/1
【階建て】地上9F 、地下1F
【最寄駅】
府中駅1分
府中本町駅12分
【耐震】 新耐震
【基準階】 129.64坪 【エントランス】 全日開放(制限有)
【駐車場】 有り 【エレベーター】 2基
府中駅前ビルは、府中駅から徒歩わずか1分という極めて優れたロケーションに位置する賃貸オフィスビルです。府中市府中町1-8-1に所在し、京王線府中駅を最寄駅とする好立地物件です。この立地の…
図面 階数 面積 賃料(共益費込)
(坪単価)
保証金/敷金 礼金 入居可能日
1階 G 183.53坪
(606.74m2)
(未公開)
    賃料目安
  • 2.5 万以上~3.0 万円未満
12ヶ月 1.0ヶ月 相談
N8の外観
物件番号:080366
更新日:2026/4/3
立川市曙町2-6-10
【竣工】1973/3(改修:2023)
【階建て】地上8F 、地下1F
【最寄駅】
立川駅2分
立川北駅3分
【耐震】 旧耐震+補強済 or 基準OK
【基準階】 48.96坪 【エントランス】
【駐車場】 - 【エレベーター】 2基
N8は東京都立川市曙町2丁目に位置する地上8階・地下1階建てのオフィスビルです。1973年3月に竣工し、構造は鉄骨鉄筋コンクリート造(SRC造)となっています。立川駅北口エリアの中心にあり、再開…
図面 階数 面積 賃料(共益費込)
(坪単価)
保証金/敷金 礼金 入居可能日
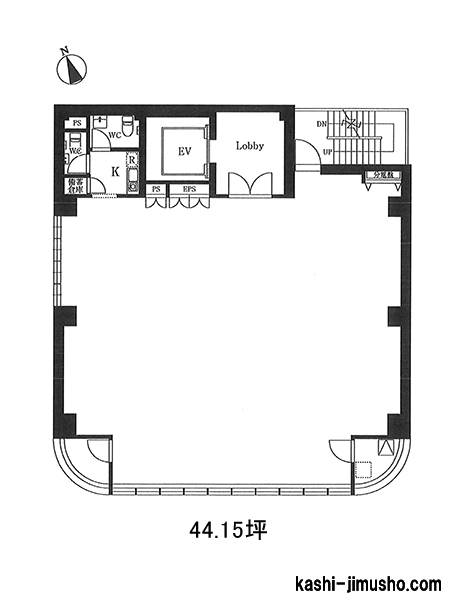
5階 G 49.00坪
(161.98m2)
1,320,000
(26,939)
10ヶ月 1.0ヶ月 即日

非公開物件の賃料目安アイコン

  • 8,000 円未満
  • 8,000 円以上~1.0 万円未満
  • 1.0 万以上~1.2 万円未満
  • 1.2 万以上~1.4 万円未満
  • 1.4 万以上~1.6 万円未満
  • 1.6 万以上~2.0 万円未満
  • 2.0 万以上~2.5 万円未満
  • 2.5 万以上~3.0 万円未満
  • 3.0 万円以上
  • 未定

※取引態様:媒介
※フロア図面と現況が異なる場合は現況を優先いたします。
※貸室内部の写真・貸室からの景色に関しては、現在の募集フロアと異なる場合がございます。

総数:8棟(9件)
  • 1

西エリア(東京)の賃料相場

西エリア(東京)エリアの平均賃料

西エリアで募集している物件の、1坪あたりの賃料(共益費を含む)の平均価格です。
数値の右側にある矢印は、一週間前の数値と比較した結果を表しています。
賃料価格は毎日集計をしている最新の値です。

  • 2040 13,851円前後
  • 4060 15,279円前後
  • 60100 16,181円前後
  • 100坪以上 17,172円前後

西エリア(東京)エリアの募集賃料

西エリアの1坪あたりの賃料(共益費を含む)価格帯ごとの募集物件数です。
表の数値をクリックすると募集物件の一覧表が表示します。

【2026/04/19更新】

募集賃料(円)8千未満0.8~1.0万1.0~1.2万1.2~1.4万1.4~1.6万1.6~2.0万2.0~2.5万2.5~3.0万3.0万以上
該当物件数1棟
(1件)
2棟
(2件)
1棟
(1件)
11棟
(14件)
16棟
(16件)
20棟
(27件)
12棟
(16件)
8棟
(9件)
3棟
(3件)