※ご入居を検討されているお客様向けの情報サイトです。
※駐車場単体・管理会社・テナントに関するお問合せにはお応えいたしかねます。

西エリアの(坪単価14,000~16,000円)の貸事務所・賃貸オフィス一覧

総数:16棟(17件)
  • 1
プレミアムコート府中Ⅱの外観
物件番号:082944
更新日:2026/4/3
府中市府中町1-12-16
【竣工】2024/12
【階建て】地上5F
【最寄駅】
府中駅3分
【耐震】 新耐震
【基準階】 【エントランス】 オートロック
【駐車場】 - 【エレベーター】 1基
プレミアムコート府中Ⅱは、東京都府中市府中町1丁目に位置する地上5階建てのオフィスビルです。2024年12月に竣工し、構造は鉄筋コンクリート造(RC造)、新耐震基準に準拠した安心の設計となって…
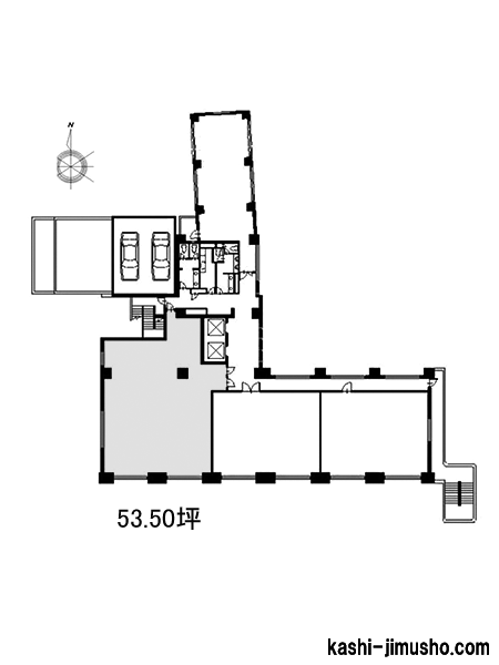
図面 階数 面積 賃料(共益費込)
(坪単価)
保証金/敷金 礼金 入居可能日
1階 G 33.80坪
(111.75m2)
520,000
(15,384)
10ヶ月 1.0ヶ月 相談
Y's trunk 立川の外観
物件番号:081484
更新日:2026/4/15
立川市曙町2-19-11
【竣工】2024/1
【階建て】地上9F
【最寄駅】
立川駅7分
立川北駅7分
【耐震】 新耐震
【基準階】 44.43坪 【エントランス】
【駐車場】 無し 【エレベーター】 1基
Y's trunk 立川は、東京都立川市曙町2-19-11に位置する地上9階建てのオフィスビルです。2024年1月に竣工し、RC造で建てられています。新耐震基準に適合しているので、安全なオフィス環境が整って…
図面 階数 面積 賃料(共益費込)
(坪単価)
保証金/敷金 礼金 入居可能日
4階 G 44.43坪
(146.88m2)
686,000
(15,440)
3ヶ月 1.0ヶ月 即日
駒沢DSビルの外観
物件番号:062488
更新日:2026/3/31
世田谷区上馬4-7-3
【竣工】1996/6
【階建て】地上3F
【最寄駅】
駒沢大学駅3分
【耐震】 新耐震
【基準階】 44.97坪 【エントランス】
【駐車場】 有り 【エレベーター】
首都高速「用賀」「池尻」入口近くで車を使用する企業様にもおすすめな立地です!白を基調とした清潔感のある外観です!1996年竣工の新耐震基準を満たした貸事務所です!
図面 階数 面積 賃料(共益費込)
(坪単価)
保証金/敷金 礼金 入居可能日
1階 G 52.80坪
(174.54m2)
810,000
(15,341)
5ヶ月 1.0ヶ月 2026/9
上旬
東山神興ビルの外観
物件番号:083408
更新日:2026/4/2
目黒区東山2-1-2
【竣工】1994/6
【階建て】地上6F 、地下1F
【最寄駅】
池尻大橋駅7分
【耐震】 新耐震
【基準階】 32.98坪 【エントランス】 全日開放(24h)
【駐車場】 有り 【エレベーター】 1基
東山神興ビルは、東京都目黒区東山2丁目に位置する、地上6階・地下1階建てでRC(鉄筋コンクリート)造のオフィスビルです。1994年6月に竣工し、新耐震基準を満たしており、地震に対する安全性に…
図面 階数 面積 賃料(共益費込)
(坪単価)
保証金/敷金 礼金 入居可能日
1-6階 G 165.56坪
(547.31m2)
(未公開)
    賃料目安
  • 1.6 万以上~2.0 万円未満
12ヶ月 即日
Y・Sビルの外観
物件番号:037224
更新日:2026/4/2
中野区本町2-2-2
【竣工】1993/11
【階建て】地上8F 、地下1F
【最寄駅】
中野坂上駅7分
西新宿五丁目駅8分
中野新橋駅10分
【耐震】 新耐震
【基準階】 60.00坪 【エントランス】
【駐車場】 有り 【エレベーター】 2基
Y・Sビルは、中野区本町2-2-2に位置するハイグレードな賃貸オフィスビルです。最寄り駅は東京メトロ丸ノ内線・都営大江戸線の中野坂上駅で、徒歩7分圏内のアクセスが可能。さらに、都営大江戸線…
図面 階数 面積 賃料(共益費込)
(坪単価)
保証金/敷金 礼金 入居可能日
2階 G 97.60坪
(322.65m2)
(未公開)
    賃料目安
  • 1.4 万以上~1.6 万円未満
10ヶ月 即日
渋谷YTビル02の外観
物件番号:057270
更新日:2026/4/10
渋谷区神泉町21-3
【竣工】1992/8(改修:2008)
【階建て】地上7F
【最寄駅】
神泉駅4分
池尻大橋駅11分
渋谷駅12分
【耐震】 新耐震
【基準階】 31.17坪 【エントランス】
【駐車場】 無し 【エレベーター】 1基
渋谷YTビル02は、東京都渋谷区神泉町21-3に位置するオフィスビルです。1992年8月に竣工した建物で、構造はRC造の地上7階建てとなっています。新耐震基準に適合しており、必要な耐震性能が確保さ…
図面 階数 面積 賃料(共益費込)
(坪単価)
保証金/敷金 礼金 入居可能日
2階 G 22.61坪
(74.77m2)
349,150
(15,442)
8ヶ月 相談
リンデンハイム府中の外観
物件番号:082817
更新日:2026/4/20
府中市宮西町3-21-6
【竣工】1992/1
【階建て】地上11F 、地下1F
【最寄駅】
府中駅6分
府中本町駅9分
【耐震】 新耐震
【基準階】 【エントランス】
【駐車場】 有り 【エレベーター】
リンデンハイム府中は、東京都府中市宮西町3-21-6に位置するオフィスビルで、1992年1月に竣工しました。構造は鉄骨鉄筋コンクリート造(SRC造)で、地上11階・地下1階建てとなっており、新耐震基…
図面 階数 面積 賃料(共益費込)
(坪単価)
保証金/敷金 礼金 入居可能日
1階 G 38.98坪
(128.85m2)
572,728
(14,693)
6ヶ月 1.0ヶ月 即日
フレックス三軒茶屋の外観
物件番号:029971
更新日:2026/4/27
世田谷区上馬2-25-4
【竣工】1990/8
【階建て】地上7F
【最寄駅】
三軒茶屋駅10分
【耐震】 新耐震
【基準階】 47.90坪 【エントランス】 オートロック
【駐車場】 無し 【エレベーター】 1基
三軒茶屋エリア。玉川通りに面したシックな貸事務所。フレックス三軒茶屋は世田谷区上馬2-25-4。最寄駅は、東急田園都市線・三軒茶屋駅、東急世田谷線・三軒茶屋駅です。三軒茶屋駅より徒歩9分圏…
図面 階数 面積 賃料(共益費込)
(坪単価)
保証金/敷金 礼金 入居可能日
2階 G 48.18坪
(159.27m2)
770,880
(16,000)
3ヶ月 即日
5階 G 37.64坪
(124.43m2)
602,240
(16,000)
3ヶ月 即日
ノアビルの外観
物件番号:037441
更新日:2026/4/3
府中市宮西町2-10-2
【竣工】1989/12
【階建て】地上3F
【最寄駅】
府中駅5分
府中本町駅6分
【耐震】 新耐震
【基準階】 129.00坪 【エントランス】 全日開放(制限有)
【駐車場】 有り 【エレベーター】 1基
ノアビルは、府中エリアに位置する美しいガラス張りの大型賃貸オフィスビルです。府中市宮西町2-10-2に所在し、優れた交通アクセスを誇ります。京王線府中駅から徒歩5分、JR武蔵野線・JR南武線の…
図面 階数 面積 賃料(共益費込)
(坪単価)
保証金/敷金 礼金 入居可能日
2階 G 128.91坪
(426.15m2)
1,804,740
(14,000)
10ヶ月 即日
府中南ビルの外観
物件番号:045270
更新日:2026/4/6
府中市府中町1-10-3
【竣工】1987/7
【階建て】地上6F 、地下1F
【最寄駅】
府中駅3分
【耐震】 新耐震
【基準階】 161.68坪 【エントランス】 全日開放(制限有)
【駐車場】 有り 【エレベーター】 2基
府中南ビルは、東京都府中市府中町1-10-3に位置し、京王線「府中駅」から徒歩3分という優れたアクセスを誇るオフィスビルです。駅からの距離が近く、通勤の利便性が高いため、従業員にとっても快…
図面 階数 面積 賃料(共益費込)
(坪単価)
保証金/敷金 礼金 入居可能日
4階 G 49.28坪
(162.94m2)
(未公開)
    賃料目安
  • 1.4 万以上~1.6 万円未満
(未公開) 即日
NNビルの外観
物件番号:059646
更新日:2026/4/21
立川市錦町1-7-7
【竣工】1985/11
【階建て】地上6F
【最寄駅】
立川駅7分
【耐震】 新耐震
【基準階】 150.00坪 【エントランス】 平日・土開放
【駐車場】 有り 【エレベーター】 1基
NNビルは、東京都立川市錦町1丁目に位置する地上6階建てのオフィスビルで、1985年11月に竣工しました。構造は鉄筋コンクリート(RC)造で、新耐震基準に適合しており、耐震性が確保されています…
図面 階数 面積 賃料(共益費込)
(坪単価)
保証金/敷金 礼金 入居可能日
2階 G 170.76坪
(564.50m2)
2,561,400
(15,000)
12ヶ月 1.0ヶ月 相談
府中駅前ビルの外観
物件番号:051430
更新日:2026/4/28
府中市府中町1-8-1
【竣工】1985/1
【階建て】地上9F 、地下1F
【最寄駅】
府中駅1分
府中本町駅12分
【耐震】 新耐震
【基準階】 129.64坪 【エントランス】 全日開放(制限有)
【駐車場】 有り 【エレベーター】 2基
府中駅前ビルは、府中駅から徒歩わずか1分という極めて優れたロケーションに位置する賃貸オフィスビルです。府中市府中町1-8-1に所在し、京王線府中駅を最寄駅とする好立地物件です。この立地の…
図面 階数 面積 賃料(共益費込)
(坪単価)
保証金/敷金 礼金 入居可能日
2階 G 224.69坪
(742.79m2)
(未公開)
    賃料目安
  • 1.4 万以上~1.6 万円未満
12ヶ月 1.0ヶ月 相談
二子玉川宝ロイアルハイツの外観
物件番号:076953
更新日:2026/4/21
世田谷区玉川3-3-14
【竣工】1982/12
【階建て】地上8F
【最寄駅】
二子玉川駅4分
【耐震】
【基準階】 【エントランス】 オートロック
【駐車場】 無し 【エレベーター】 1基
二子玉川駅から徒歩4分、2路線利用できます。上品なタイル貼りの地上8階建てのマンションです。多摩川を望む緑豊かな景観が魅力、周辺は落ち着いた環境です。
図面 階数 面積 賃料(共益費込)
(坪単価)
保証金/敷金 礼金 入居可能日
1階 G 32.47坪
(107.37m2)
454,546
(14,000)
4ヶ月 1.0ヶ月 即日
MK立川南ビルの外観
物件番号:039247
更新日:2026/4/20
立川市柴崎町2-12-24
【竣工】1982/11
【階建て】地上7F
【最寄駅】
立川南駅2分
立川駅5分
【耐震】 新耐震
【基準階】 293.40坪 【エントランス】 全日開放(制限有)
【駐車場】 有り 【エレベーター】 1基
MK立川南ビルは、東京都立川市柴崎町に位置する地上7階建てのオフィスビルで、1982年11月に竣工しました。構造は鉄骨鉄筋コンクリート造(SRC造)で、新耐震基準にも対応しているため、安心して…
図面 階数 面積 賃料(共益費込)
(坪単価)
保証金/敷金 礼金 入居可能日
4階 N 49.09坪
(162.30m2)
736,350
(15,000)
10ヶ月 1.0ヶ月 2026/9
吉祥寺東興ビルの外観
物件番号:071022
更新日:2026/3/30
武蔵野市吉祥寺本町1-11-19
【竣工】1979/5
【階建て】地上4F
【最寄駅】
吉祥寺駅5分
【耐震】 旧耐震
【基準階】 【エントランス】 全日開放(24h)
【駐車場】 無し 【エレベーター】 1基
吉祥寺東興ビルは、東京都武蔵野市吉祥寺本町1丁目に位置する地上4階建てのビルです。1979年5月に竣工した本物件は、鉄筋コンクリート造(RC造)によって建築されています。交通アクセスについて…
図面 階数 面積 賃料(共益費込)
(坪単価)
保証金/敷金 礼金 入居可能日
1階 G 64.76坪
(214.08m2)
909,091
(14,038)
10,000,000
(154,416)
1.0ヶ月 即日
桜山パックスの外観
物件番号:083852
更新日:2026/4/27
中野区東中野3-9-20
【竣工】1970/11
【階建て】地上7F 、地下1F
【最寄駅】
東中野駅2分
落合駅6分
【耐震】 旧耐震+補強済 or 基準OK
【基準階】 51.10坪 【エントランス】
【駐車場】 無し 【エレベーター】 2基
東中野駅徒歩2分の好立地、落合駅も徒歩圏内です。耐震補強工事済みで、管理の行き届いた建物です。低層階の事務所区画、大通り沿いで視認性良好です。
図面 階数 面積 賃料(共益費込)
(坪単価)
保証金/敷金 礼金 入居可能日
B1-1階 G 126.10坪
(416.86m2)
1,900,000
(15,067)
6ヶ月 1.0ヶ月 即日

非公開物件の賃料目安アイコン

  • 8,000 円未満
  • 8,000 円以上~1.0 万円未満
  • 1.0 万以上~1.2 万円未満
  • 1.2 万以上~1.4 万円未満
  • 1.4 万以上~1.6 万円未満
  • 1.6 万以上~2.0 万円未満
  • 2.0 万以上~2.5 万円未満
  • 2.5 万以上~3.0 万円未満
  • 3.0 万円以上
  • 未定

※取引態様:媒介
※フロア図面と現況が異なる場合は現況を優先いたします。
※貸室内部の写真・貸室からの景色に関しては、現在の募集フロアと異なる場合がございます。

総数:16棟(17件)
  • 1

西エリア(東京)の賃料相場

西エリア(東京)エリアの平均賃料

西エリアで募集している物件の、1坪あたりの賃料(共益費を含む)の平均価格です。
数値の右側にある矢印は、一週間前の数値と比較した結果を表しています。
賃料価格は毎日集計をしている最新の値です。

  • 2040 13,812円前後
  • 4060 15,349円前後
  • 60100 15,921円前後
  • 100坪以上 17,397円前後

西エリア(東京)エリアの募集賃料

西エリアの1坪あたりの賃料(共益費を含む)価格帯ごとの募集物件数です。
表の数値をクリックすると募集物件の一覧表が表示します。

【2026/05/05更新】

募集賃料(円)8千未満0.8~1.0万1.0~1.2万1.2~1.4万1.4~1.6万1.6~2.0万2.0~2.5万2.5~3.0万3.0万以上
該当物件数1棟
(1件)
3棟
(3件)
2棟
(2件)
8棟
(11件)
14棟
(14件)
17棟
(22件)
13棟
(19件)
8棟
(10件)
2棟
(2件)