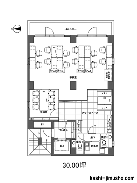
竹橋駅の貸事務所・賃貸オフィス一覧

竹橋駅は複数駅から近く交通便利。緑が残るビジネスエリア。
竹橋駅は、東京メトロ東西線の駅です。所在地は、東京都千代田区一ツ橋1丁目になります。徒歩10分圏内には大手町駅、神保町駅や九段下駅があり複数の路線を利用できる便利な立地です。竹橋駅周辺には、北の丸公園・皇居があり四季の移り変わりを感じることができる恵まれたビジネスエリアです。
(東京)の賃料相場
(東京)エリアの平均賃料
で募集している物件の、1坪あたりの賃料(共益費を含む)の平均価格です。
数値の右側にある矢印は、一週間前の数値と比較した結果を表しています。
賃料価格は毎日集計をしている最新の値です。
- 20~40坪 未調査
- 40~60坪 未調査
- 60~100坪 未調査
- 100坪以上 未調査
(東京)エリアの募集賃料
の1坪あたりの賃料(共益費を含む)価格帯ごとの募集物件数です。
表の数値をクリックすると募集物件の一覧表が表示します。
【2026/01/16更新】