神田駅の(150~200坪)の貸事務所・賃貸オフィス一覧

神田駅周辺は中小サイズの賃貸オフィスビルが多いビジネス街。
神田駅は、JR山手線、京浜東北線、中央線、東京メトロ銀座線が乗り入れています。所在地は、JR神田駅が千代田区鍛冶町2丁目、東京メトロ神田駅が千代田区神田須田町1丁目になります。神田駅の周辺は、中小オフィスビルが建ち並ぶビジネス街です。また居酒屋なども多く、サラリーマンの街としても知名度の高い地域です。神田西口商店街など昔ながらの商店街が残る親しみやすいエリアです。
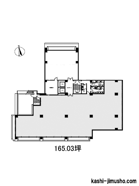
このページでは、そんな神田駅周辺の150~200坪の貸事務所を表示しています。
(東京)の賃料相場
(東京)エリアの平均賃料
で募集している物件の、1坪あたりの賃料(共益費を含む)の平均価格です。
数値の右側にある矢印は、一週間前の数値と比較した結果を表しています。
賃料価格は毎日集計をしている最新の値です。
- 20~40坪 未調査
- 40~60坪 未調査
- 60~100坪 未調査
- 100坪以上 未調査
(東京)エリアの募集賃料
の1坪あたりの賃料(共益費を含む)価格帯ごとの募集物件数です。
表の数値をクリックすると募集物件の一覧表が表示します。
【2026/02/12更新】