今戸(80~100坪 台東区)の貸事務所・賃貸オフィス一覧
【2026/05/06更新】
今戸(台東区)の貸事務所について
下町情緒と歴史を感じる今戸エリア
今戸エリアは台東区の北端に位置し、浅草寺や浅草神社の北側に広がる歴史ある下町エリアです。今戸焼や招き猫発祥の地として知られ、観光客にも人気の「今戸神社」があることで有名です。住宅地が中心の落ち着いた街並みで、オフィスビルはあまり見られませんが、小規模なアトリエや倉庫兼事務所として利用される物件も点在しています。都営バスを活用すれば浅草駅や南千住駅方面へのアクセスも可能で、地域密着型の事業や静かな環境を求める事業者にとって魅力的なエリアです。
今戸(台東区)の物件は、0棟(0件) 掲載されています。
お探しの住所では現在、物件がございません。近隣エリアの物件を掲載しています。
今戸周辺の貸事務所マップ
今戸周辺マップです。物件のある位置にビルが表示されていますので、クリックして詳細情報をご覧ください。
ビルアイコンについて
マップ上に表示されているビルアイコンは、そのビルの最小坪単価に応じて色分けされています。
8,000 円未満
8,000 円以上~1.0 万円未満
1.0 万以上~1.2 万円未満
1.2 万以上~1.4 万円未満
1.4 万以上~1.6 万円未満
1.6 万以上~2.0 万円未満
2.0 万以上~2.5 万円未満
2.5 万以上~3.0 万円未満
3.0 万円以上
未定
今戸周辺の地区を探す
今戸周辺の貸事務所一覧
物件番号:056584
更新日:2026/5/1
台東区東上野6-2-1
【竣工】2009/10
【階建て】地上10F
|
【最寄駅】
|
【耐震】 |
新耐震 |
| 【基準階】 |
146.03坪 |
【エントランス】 |
平日のみ開放 |
| 【駐車場】 |
- |
【エレベーター】 |
2基 |
上野エリア。浅草通り沿いの角地に建つハイグレードな賃貸オフィスビル。MPR東上野ビルは、台東区東上野6丁目、最寄駅は東京メトロ銀座線・稲荷町駅、駅から徒歩1分圏内のアクセス抜群の立地です…

| 図面 |
階数 |
面積 |
賃料(共益費込) (坪単価) |
保証金/敷金 |
礼金 |
入居可能日 |
|
|
9階 |
N 87.16坪 (288.12m2) |
|
12ヶ月 |
無 |
2026/10 |
|
物件番号:023915
更新日:2026/4/6
墨田区錦糸1-2-1
【竣工】1997/6
【階建て】地上22F 、地下3F
|
【最寄駅】
|
【耐震】 |
新耐震 |
| 【基準階】 |
419.17坪 |
【エントランス】 |
平日のみ開放 |
| 【駐車場】 |
- |
【エレベーター】 |
11基 |
錦糸町駅近くに位置する代表的な大型ハイグレードビル、アルカセントラルは、墨田区錦糸1-2-1にあります。徒歩4分圏内でJR総武線・JR総武線(快速)・東京メトロ半蔵門線の錦糸町駅が利用可能であ…

| 図面 |
階数 |
面積 |
賃料(共益費込) (坪単価) |
保証金/敷金 |
礼金 |
入居可能日 |
|
|
18階 |
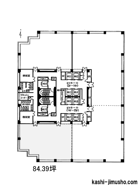
N 84.39坪 (279.00m2) |
|
12ヶ月 |
無 |
即日 |
|
|
19階 |
N 84.39坪 (279.00m2) |
|
12ヶ月 |
無 |
即日 |
|
物件番号:017130
更新日:2026/4/28
台東区東上野2-1-13
【竣工】1993/2
【階建て】地上11F 、地下1F
|
【最寄駅】
|
【耐震】 |
新耐震 |
| 【基準階】 |
96.36坪 |
【エントランス】 |
平日・土開放 |
| 【駐車場】 |
- |
【エレベーター】 |
2基 |
東上野センタービルは、東京都台東区東上野2丁目に位置する地上11階・地下1階建てのオフィスビルです。1993年2月に竣工し、構造は鉄骨鉄筋コンクリート造(SRC造)で、新耐震基準を満たしており…

| 図面 |
階数 |
面積 |
賃料(共益費込) (坪単価) |
保証金/敷金 |
礼金 |
入居可能日 |
|
|
7階 |
N 96.36坪 (318.55m2) |
|
5ヶ月 |
1.0ヶ月 |
2026/10/21 |
|
物件番号:083456
更新日:2026/4/9
台東区東上野4-20-2
【竣工】1991/1
【階建て】地上7F 、地下1F
|
【最寄駅】
|
【耐震】 |
新耐震 |
| 【基準階】 |
|
【エントランス】 |
全日開放(24h) |
| 【駐車場】 |
- |
【エレベーター】 |
1基 |
トスビルは、東京都台東区東上野4-20-2に位置する地上7階・地下1階建てのオフィスビルです。1991年に竣工し、構造はS造(鉄骨造)を採用しています。新耐震基準に適合して建てられているため、地…

| 図面 |
階数 |
面積 |
賃料(共益費込) (坪単価) |
保証金/敷金 |
礼金 |
入居可能日 |
|
|
B1-7階 |
G 84.33坪 (278.78m2) |
1,264,950 (15,000) |
3ヶ月 |
1.0ヶ月 |
即日 |
|
物件番号:042452
更新日:2026/4/3
墨田区太平2-8-11
【竣工】1987/8(改修:2019)
【階建て】地上8F
|
【最寄駅】
|
【耐震】 |
新耐震 |
| 【基準階】 |
86.85坪 |
【エントランス】 |
平日・土開放 |
| 【駐車場】 |
- |
【エレベーター】 |
1基 |
東京都墨田区太平2丁目に位置する齋征錦糸町ビルは、JR総武線・総武線(快速)、東京メトロ半蔵門線の錦糸町駅から徒歩5分という利便性の高い立地にあるオフィスビルです。1987年8月に竣工し、SR…

| 図面 |
階数 |
面積 |
賃料(共益費込) (坪単価) |
保証金/敷金 |
礼金 |
入居可能日 |
|
|
4階 |
G 86.85坪 (287.11m2) |
1,302,750 (15,000) |
10ヶ月 |
無 |
即日 |
|
|
5階 |
G 86.85坪 (287.10m2) |
1,302,750 (15,000) |
10ヶ月 |
無 |
即日 |
|
非公開物件の賃料目安アイコン
8,000 円未満
8,000 円以上~1.0 万円未満
1.0 万以上~1.2 万円未満
1.2 万以上~1.4 万円未満
1.4 万以上~1.6 万円未満
1.6 万以上~2.0 万円未満
2.0 万以上~2.5 万円未満
2.5 万以上~3.0 万円未満
3.0 万円以上
未定
※取引態様:媒介
※フロア図面と現況が異なる場合は現況を優先いたします。
※貸室内部の写真・貸室からの景色に関しては、現在の募集フロアと異なる場合がございます。