
グレイスビル両国5F 85.61坪両国・錦糸町・亀戸 東エリアの賃貸情報
物件番号: 23500
JR両国駅から徒歩3分!大通りに面した視認性が高くアクセス抜群のオフィス!
- 検討リストに追加
| 図面 | 階数 | 坪数 | 保証金/敷金 | 礼金 | 賃料(坪単価) | 共益費(坪単価) | 更新料/ 再契約料 |
償却 | 入居可能日 |
|---|---|---|---|---|---|---|---|---|---|
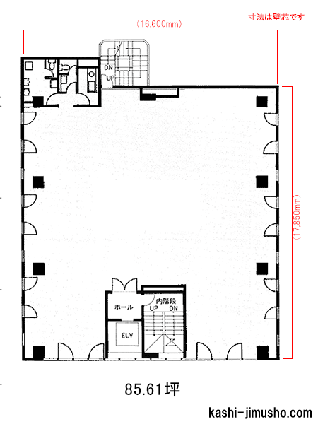
| 5階 | G 85.61坪 (283.00m2) |
8ヶ月 | 2.0ヶ月 | 1,100,000円 (12,849円) |
無し | (未公開) | (未公開) | (未公開) | |
| 【空調】個別 【床仕様】OAフロア 【トイレ】室内男女別 | |||||||||
|
|
|||||||||
※面積の箇所に表示している N はネット契約(契約面積はオフィス専用部分のみ)、G はグロス契約(契約面積は共用部分を加えた面積)を表しています。
グレイスビル両国5階85.61坪(墨田区両国)の周辺MAP
グレイスビル両国5階85.61坪(墨田区両国)の設備
| 竣工 | 1990年 | 構造・階建て | SRC造 地上9階 地下1階 |
|---|---|---|---|
| 耐震 | 新耐震 | 基準階面積 | 85.61坪 |
| エレベーター | 1基 | 駐車場 | 有 |
| ビル使用時間 | 24時間使用可 | エントランス | 全日開放(制限有) |
| セキュリティ | 機+有人 | 光ファイバー | 有 |
グレイスビル両国5階85.61坪(墨田区両国)のギャラリー
グレイスビル両国の他フロアの募集リスト
ただいま、募集物件はございません。
グレイスビル両国の近隣物件リスト
「グレイスビル両国」に関するお問合せ
![]() |
|
| このページのURL | https://tokyo.kashi-jimusho.com/detail/23500/93117/ |
|---|---|
株式会社サンエスコーポレーション |
|
| 〒103-0027 東京都中央区日本橋2-2-21 日本橋二丁目ビル5階 | |

















