南青山4丁目(港区)の貸事務所・賃貸オフィス一覧
【2026/05/02更新】
南青山4丁目(港区)の貸事務所について
静けさと洗練が調和する南青山4丁目エリア
南青山4丁目エリアは、表参道駅・外苑前駅の徒歩圏内に位置し、落ち着いた街並みと高感度な環境が魅力のビジネスエリアです。周辺には洗練されたブティックやカフェ、ギャラリーが点在し、クリエイティブ業界やアパレル・デザイン関連企業から高い支持を得ています。住宅街に近いため、静かで落ち着いた執務環境が整っており、集中できるオフィススペースを求める企業にも適しています。中小規模のオフィス物件やデザイナーズビルが多く、個性を活かした働き方が可能。ブランドイメージの向上や、洗練された企業像を演出する場として、南青山4丁目は最適な立地といえるでしょう。
南青山4丁目(港区)の物件は、3棟(6件) 掲載されています。
南青山4丁目周辺の貸事務所マップ
南青山4丁目周辺マップです。物件のある位置にビルが表示されていますので、クリックして詳細情報をご覧ください。
ビルアイコンについて
マップ上に表示されているビルアイコンは、そのビルの最小坪単価に応じて色分けされています。
8,000 円未満
8,000 円以上~1.0 万円未満
1.0 万以上~1.2 万円未満
1.2 万以上~1.4 万円未満
1.4 万以上~1.6 万円未満
1.6 万以上~2.0 万円未満
2.0 万以上~2.5 万円未満
2.5 万以上~3.0 万円未満
3.0 万円以上
未定
南青山4丁目周辺の地区を探す
南青山4丁目周辺の貸事務所一覧
物件番号:049989
更新日:2026/5/1
港区南青山4-17-51
【竣工】2026/3
【階建て】地上3F
|
【最寄駅】
|
【耐震】 |
新耐震 |
| 【基準階】 |
26.00坪 |
【エントランス】 |
全日開放(24h) |
| 【駐車場】 |
無し |
【エレベーター】 |
無 |
表参道駅から徒歩5分!3線利用可能で利便性の良い物件です!周辺は閑静な住宅街で環境の良い立地です!2026年に竣工した綺麗な築浅物件です!

| 図面 |
階数 |
面積 |
賃料(共益費込) (坪単価) |
保証金/敷金 |
礼金 |
入居可能日 |
|
|
2階 |
G 26.05坪 (86.12m2) |
555,050 (21,307) |
3ヶ月 |
1.0ヶ月 |
即日 |
|
|
3階 |
G 24.30坪 (80.32m2) |
518,300 (21,329) |
3ヶ月 |
1.0ヶ月 |
即日 |
|
物件番号:070629
更新日:2026/4/16
港区南青山4-15-7
【竣工】1988/6
【階建て】地上3F
|
【最寄駅】
|
【耐震】 |
新耐震 |
| 【基準階】 |
|
【エントランス】 |
オートロック |
| 【駐車場】 |
無し |
【エレベーター】 |
無 |
閑静で落ち着いた環境の立地です!赤レンガ調の外観が目を引きます!トイレは、室内で男女別になっています!

| 図面 |
階数 |
面積 |
賃料(共益費込) (坪単価) |
保証金/敷金 |
礼金 |
入居可能日 |
|
|
B1-1階 |
G 27.52坪 (91.00m2) |
400,000 (14,535) |
3ヶ月 |
1.0ヶ月 |
即日 |
|
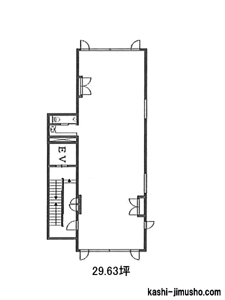
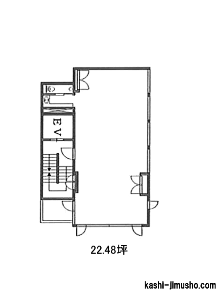
物件番号:083929
更新日:2026/4/22
港区南青山4-21-29
【竣工】1983/4
【階建て】地上5F 、地下1F
|
【最寄駅】
|
【耐震】 |
旧耐震 |
| 【基準階】 |
29.63坪 |
【エントランス】 |
オートロック |
| 【駐車場】 |
無し |
【エレベーター】 |
1基 |
表参道駅から徒歩3分!3線利用可能で利便性の良い物件です!周辺は華やかなアパレル街で賑やかなエリアです!1フロア1テナントで使い勝手の良い物件です!

| 図面 |
階数 |
面積 |
賃料(共益費込) (坪単価) |
保証金/敷金 |
礼金 |
入居可能日 |
|
|
2階 |
G 29.63坪 (97.95m2) |
1,037,050 (35,000) |
10ヶ月 |
1.0ヶ月 |
2026/8 上旬 |
|
|
3階 |
G 29.63坪 (97.95m2) |
1,037,050 (35,000) |
10ヶ月 |
1.0ヶ月 |
2026/8 上旬 |
|
|
4階 |
G 22.48坪 (74.31m2) |
786,800 (35,000) |
10ヶ月 |
1.0ヶ月 |
2026/8 上旬 |
|
非公開物件の賃料目安アイコン
8,000 円未満
8,000 円以上~1.0 万円未満
1.0 万以上~1.2 万円未満
1.2 万以上~1.4 万円未満
1.4 万以上~1.6 万円未満
1.6 万以上~2.0 万円未満
2.0 万以上~2.5 万円未満
2.5 万以上~3.0 万円未満
3.0 万円以上
未定
※取引態様:媒介
※フロア図面と現況が異なる場合は現況を優先いたします。
※貸室内部の写真・貸室からの景色に関しては、現在の募集フロアと異なる場合がございます。