神田佐久間河岸(20~40坪 千代田区)の貸事務所・賃貸オフィス一覧
【2026/04/28更新】
神田佐久間河岸(千代田区)の貸事務所について
利便性と静けさを兼ね備えた神田佐久間河岸エリア
神田佐久間河岸エリアは、JR「秋葉原駅」や都営新宿線「岩本町駅」、東京メトロ「小伝馬町駅」など複数駅が徒歩圏内にある、アクセス性に優れたビジネスエリアです。秋葉原の活気ある街並みと隣接しながらも、一本路地を入ると落ち着いた雰囲気が広がり、静かに業務に集中できる環境が整っています。中小規模のオフィスビルが中心で、IT系企業やスタートアップ、士業などにも人気があります。コストを抑えながら都心立地のメリットを活かせる神田佐久間河岸エリアは、実用性とバランスを求める企業に最適な賃貸オフィスエリアです。
神田佐久間河岸(千代田区)の物件は、2棟(2件) 掲載されています。
神田佐久間河岸周辺の貸事務所マップ
神田佐久間河岸周辺マップです。物件のある位置にビルが表示されていますので、クリックして詳細情報をご覧ください。
ビルアイコンについて
マップ上に表示されているビルアイコンは、そのビルの最小坪単価に応じて色分けされています。
8,000 円未満
8,000 円以上~1.0 万円未満
1.0 万以上~1.2 万円未満
1.2 万以上~1.4 万円未満
1.4 万以上~1.6 万円未満
1.6 万以上~2.0 万円未満
2.0 万以上~2.5 万円未満
2.5 万以上~3.0 万円未満
3.0 万円以上
未定
神田佐久間河岸周辺の地区を探す
神田佐久間河岸周辺の貸事務所一覧
物件番号:004162
更新日:2026/4/1
千代田区神田佐久間河岸82-1
【竣工】1992/12
【階建て】地上8F
|
【最寄駅】
|
【耐震】 |
新耐震 |
| 【基準階】 |
34.14坪 |
【エントランス】 |
平日・土開放 |
| 【駐車場】 |
無し |
【エレベーター】 |
1基 |
東邦沢口ビルは、東京都千代田区神田佐久間河岸に位置する賃貸オフィスビルです。1992年竣工の8階建ての建物で、新耐震基準に対応しています。東京メトロ日比谷線の秋葉原駅から徒歩4分、JR秋葉…

| 図面 |
階数 |
面積 |
賃料(共益費込) (坪単価) |
保証金/敷金 |
礼金 |
入居可能日 |
|
|
4階 |
G 34.14坪 (112.86m2) |
512,100 (15,000) |
10ヶ月 |
無 |
即日 |
|
物件番号:004250
更新日:2026/4/10
千代田区神田佐久間河岸78-6
【竣工】1990/3
【階建て】地上5F
|
【最寄駅】
|
【耐震】 |
新耐震 |
| 【基準階】 |
25.95坪 |
【エントランス】 |
|
| 【駐車場】 |
無し |
【エレベーター】 |
1基 |
東京都千代田区神田佐久間河岸にある第二寿ビルディングは、ビジネスの拠点として最適な条件を備えたオフィスビルです。JR山手線・総武線・京浜東北線「秋葉原駅」から徒歩5分、つくばエクスプレ…

| 図面 |
階数 |
面積 |
賃料(共益費込) (坪単価) |
保証金/敷金 |
礼金 |
入居可能日 |
|
|
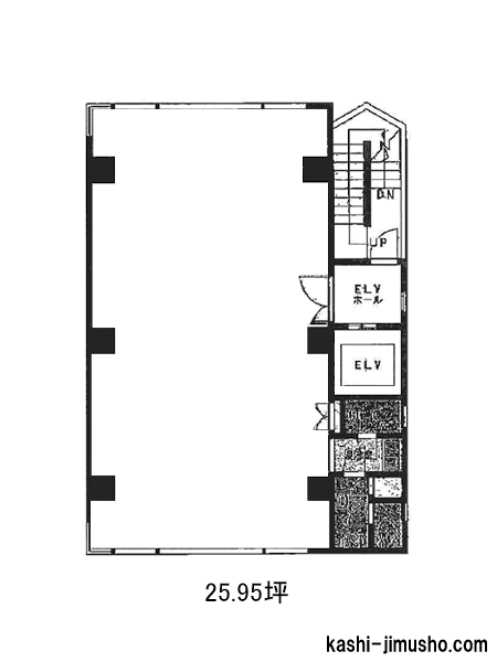
2階 |
G 25.95坪 (85.79m2) |
389,250 (15,000) |
6ヶ月 |
無 |
即日 |
|
非公開物件の賃料目安アイコン
8,000 円未満
8,000 円以上~1.0 万円未満
1.0 万以上~1.2 万円未満
1.2 万以上~1.4 万円未満
1.4 万以上~1.6 万円未満
1.6 万以上~2.0 万円未満
2.0 万以上~2.5 万円未満
2.5 万以上~3.0 万円未満
3.0 万円以上
未定
※取引態様:媒介
※フロア図面と現況が異なる場合は現況を優先いたします。
※貸室内部の写真・貸室からの景色に関しては、現在の募集フロアと異なる場合がございます。