神田東紺屋町(40~60坪 千代田区)の貸事務所・賃貸オフィス一覧
【2026/05/14更新】神田東紺屋町(千代田区)の貸事務所について
交通利便と実用性が揃う神田東紺屋町エリア
神田東紺屋町エリアは、JR「神田駅」や都営新宿線「岩本町駅」、東京メトロ「小伝馬町駅」など複数路線が利用できる、都心アクセスに優れたビジネスエリアです。東京駅や大手町にも近く、営業拠点や本社機能としてのニーズにも応えられる好立地。周辺は比較的落ち着いた雰囲気で、飲食店やコンビニも点在し、働きやすい環境が整っています。中小規模のオフィスビルが多く、士業やスタートアップ、IT関連企業にも最適。コストと立地のバランスを重視する企業にとって、神田東紺屋町エリアは魅力的な賃貸オフィスエリアです。
神田東紺屋町(千代田区)の物件は、0棟(0件) 掲載されています。 お探しの住所では現在、物件がございません。近隣エリアの物件を掲載しています。
神田東紺屋町周辺の貸事務所マップ
神田東紺屋町周辺マップです。物件のある位置にビルが表示されていますので、クリックして詳細情報をご覧ください。
ビルアイコンについて
マップ上に表示されているビルアイコンは、そのビルの最小坪単価に応じて色分けされています。
- 8,000 円未満
- 8,000 円以上~1.0 万円未満
- 1.0 万以上~1.2 万円未満
- 1.2 万以上~1.4 万円未満
- 1.4 万以上~1.6 万円未満
- 1.6 万以上~2.0 万円未満
- 2.0 万以上~2.5 万円未満
- 2.5 万以上~3.0 万円未満
- 3.0 万円以上
- 未定
神田東紺屋町周辺の地区を探す
神田東紺屋町周辺の貸事務所一覧
総数:5棟(5件)
- 1
| 図面 | 階数 | 面積 | 賃料(共益費込) (坪単価) |
保証金/敷金 | 礼金 | 入居可能日 | |
|---|---|---|---|---|---|---|---|
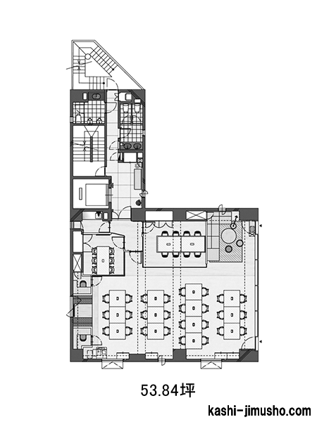
| 7階 | G 53.84坪 (177.98m2) |
1,561,360 (29,000) |
(未公開) | 無 | 2026/10 予定 |
|
| 図面 | 階数 | 面積 | 賃料(共益費込) (坪単価) |
保証金/敷金 | 礼金 | 入居可能日 | |
|---|---|---|---|---|---|---|---|
| 3階 | G 40.00坪 (132.23m2) |
640,000 (16,000) |
8ヶ月 | 無 | 即日 |
|
| 図面 | 階数 | 面積 | 賃料(共益費込) (坪単価) |
保証金/敷金 | 礼金 | 入居可能日 | |
|---|---|---|---|---|---|---|---|
| 2階 | G 43.15坪 (142.65m2) |
776,700 (18,000) |
10ヶ月 | 無 | 即日 |
|
| 図面 | 階数 | 面積 | 賃料(共益費込) (坪単価) |
保証金/敷金 | 礼金 | 入居可能日 | |
|---|---|---|---|---|---|---|---|
| 4階 | G 46.81坪 (154.77m2) |
749,000 (16,000) |
10ヶ月 | 1.0ヶ月 | 相談 |
|
| 図面 | 階数 | 面積 | 賃料(共益費込) (坪単価) |
保証金/敷金 | 礼金 | 入居可能日 | |
|---|---|---|---|---|---|---|---|
| NEW4階 | G 60.93坪 (201.43m2) |
1,035,810 (17,000) |
10ヶ月 | 無 | 2026/11/1 |
|
※取引態様:媒介
※フロア図面と現況が異なる場合は現況を優先いたします。
※貸室内部の写真・貸室からの景色に関しては、現在の募集フロアと異なる場合がございます。
総数:5棟(5件)
- 1





