神田美倉町(千代田区)の貸事務所・賃貸オフィス一覧
【2026/05/27更新】神田美倉町(千代田区)の貸事務所について
都心の利便性と静けさが魅力の神田美倉町エリア
神田美倉町エリアは、JR「神田駅」や「秋葉原駅」、都営新宿線「岩本町駅」などが利用でき、都心主要エリアへのアクセスに優れたオフィス街です。東京駅や大手町、日本橋にも近く、通勤や来客時の移動もスムーズ。周辺には中小規模のオフィスビルが多く、士業やIT関連、営業拠点としての利用にも適しています。駅近でありながら落ち着いた街並みが広がっており、静かな環境で業務に集中したい企業にも最適です。コストを抑えつつ、利便性と働きやすさを求める法人におすすめのエリアです。
神田美倉町(千代田区)の物件は、3棟(3件) 掲載されています。
神田美倉町周辺の貸事務所マップ
神田美倉町周辺マップです。物件のある位置にビルが表示されていますので、クリックして詳細情報をご覧ください。
ビルアイコンについて
マップ上に表示されているビルアイコンは、そのビルの最小坪単価に応じて色分けされています。
- 8,000 円未満
- 8,000 円以上~1.0 万円未満
- 1.0 万以上~1.2 万円未満
- 1.2 万以上~1.4 万円未満
- 1.4 万以上~1.6 万円未満
- 1.6 万以上~2.0 万円未満
- 2.0 万以上~2.5 万円未満
- 2.5 万以上~3.0 万円未満
- 3.0 万円以上
- 未定
神田美倉町周辺の地区を探す
神田美倉町周辺の貸事務所一覧
総数:3棟(3件)
- 1
| 図面 | 階数 | 面積 | 賃料(共益費込) (坪単価) |
保証金/敷金 | 礼金 | 入居可能日 | |
|---|---|---|---|---|---|---|---|
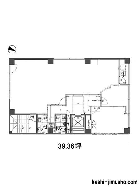
| 3階 | G 39.36坪 (130.12m2) |
984,000 (25,000) |
6ヶ月 | 1.0ヶ月 | 即日 |
|
| 図面 | 階数 | 面積 | 賃料(共益費込) (坪単価) |
保証金/敷金 | 礼金 | 入居可能日 | |
|---|---|---|---|---|---|---|---|
| 4階 | G 46.81坪 (154.77m2) |
749,000 (16,000) |
10ヶ月 | 1.0ヶ月 | 相談 |
|
| 図面 | 階数 | 面積 | 賃料(共益費込) (坪単価) |
保証金/敷金 | 礼金 | 入居可能日 | |
|---|---|---|---|---|---|---|---|
| 1階 | G 28.50坪 (94.22m2) |
513,000 (18,000) |
6ヶ月 | 無 | 2026/7 上旬 |
|
※取引態様:媒介
※フロア図面と現況が異なる場合は現況を優先いたします。
※貸室内部の写真・貸室からの景色に関しては、現在の募集フロアと異なる場合がございます。
総数:3棟(3件)
- 1



