※ご入居を検討されているお客様向けの情報サイトです。
※駐車場単体・管理会社・テナントに関するお問合せにはお応えいたしかねます。

京成本線沿線の(40~60坪)の貸事務所・賃貸オフィス一覧

総数:1棟(1件)
  • 1
星和日暮里ハイツの外観
物件番号:083931
更新日:2026/4/22
荒川区東日暮里6-49-18
【竣工】1993/9
【階建て】地上5F
【最寄駅】
日暮里駅6分
三河島駅7分
【耐震】 新耐震
【基準階】 【エントランス】 全日開放(24h)
【駐車場】 有り 【エレベーター】
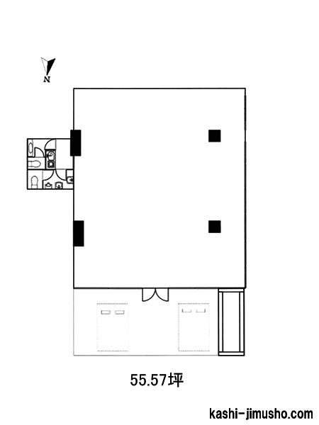
図面 階数 面積 賃料(共益費込)
(坪単価)
保証金/敷金 礼金 入居可能日
NEW1階 G 55.57坪
(183.72m2)
620,000
(11,157)
2ヶ月 1.0ヶ月 即日

非公開物件の賃料目安アイコン

  • 8,000 円未満
  • 8,000 円以上~1.0 万円未満
  • 1.0 万以上~1.2 万円未満
  • 1.2 万以上~1.4 万円未満
  • 1.4 万以上~1.6 万円未満
  • 1.6 万以上~2.0 万円未満
  • 2.0 万以上~2.5 万円未満
  • 2.5 万以上~3.0 万円未満
  • 3.0 万円以上
  • 未定

※取引態様:媒介
※フロア図面と現況が異なる場合は現況を優先いたします。
※貸室内部の写真・貸室からの景色に関しては、現在の募集フロアと異なる場合がございます。

総数:1棟(1件)
  • 1

(東京)の賃料相場

(東京)エリアの平均賃料

で募集している物件の、1坪あたりの賃料(共益費を含む)の平均価格です。
数値の右側にある矢印は、一週間前の数値と比較した結果を表しています。
賃料価格は毎日集計をしている最新の値です。

  • 2040 未調査
  • 4060 未調査
  • 60100 未調査
  • 100坪以上 未調査

(東京)エリアの募集賃料

の1坪あたりの賃料(共益費を含む)価格帯ごとの募集物件数です。
表の数値をクリックすると募集物件の一覧表が表示します。

【2026/04/22更新】

エリアが指定されていません。
募集賃料(円)8千未満0.8~1.0万1.0~1.2万1.2~1.4万1.4~1.6万1.6~2.0万2.0~2.5万2.5~3.0万3.0万以上