※ご入居を検討されているお客様向けの情報サイトです。
※駐車場単体・管理会社・テナントに関するお問合せにはお応えいたしかねます。

つくばエクスプレス沿線の貸事務所・賃貸オフィス一覧

総数:56棟(91件)
タスク新御徒町ビルの外観
物件番号:083674
更新日:2026/2/20
台東区台東4-26-9
【竣工】2025/9
【階建て】地上9F
【最寄駅】
新御徒町駅1分
仲御徒町駅5分
御徒町駅7分
【耐震】 新耐震
【基準階】 63.03坪 【エントランス】 平日のみ開放
【駐車場】 無し 【エレベーター】 2基
タスク新御徒町ビルは、東京都台東区台東4-26-9に位置するオフィスビルです。2025年9月に竣工し、構造はRC造、地上9階建てです。新耐震基準に適合しているので、安全性の高い建物です。交通アク…
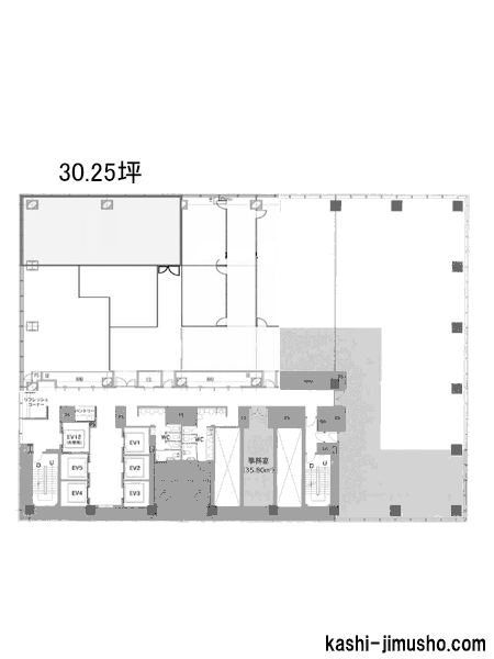
図面 階数 面積 賃料(共益費込)
(坪単価)
保証金/敷金 礼金 入居可能日
2階 G 63.03坪
(208.36m2)
1,260,600
(20,000)
6ヶ月 1.0ヶ月 即日
3階 G 63.03坪
(208.36m2)
1,260,600
(20,000)
6ヶ月 1.0ヶ月 即日
4階 G 63.03坪
(208.36m2)
1,260,600
(20,000)
6ヶ月 1.0ヶ月 即日
浅草トーセイビルの外観
物件番号:082935
更新日:2026/2/18
台東区浅草1-27-2
【竣工】2025/1
【階建て】地上10F
【最寄駅】
浅草駅2分
【耐震】 新耐震
【基準階】 32.89坪 【エントランス】 全日開放(24h)
【駐車場】 無し 【エレベーター】 1基
浅草トーセイビルは、東京都台東区浅草1丁目に所在する賃貸オフィスビルです。つくばエクスプレス・浅草駅から徒歩2分という抜群の利便性を誇り、東武スカイツリーライン・東京メトロ銀座線・都…
図面 階数 面積 賃料(共益費込)
(坪単価)
保証金/敷金 礼金 入居可能日
8階 G 32.89坪
(108.76m2)
(未公開)
    賃料目安
  • 2.0 万以上~2.5 万円未満
10ヶ月 即日
9階 G 32.89坪
(108.76m2)
(未公開)
    賃料目安
  • 2.0 万以上~2.5 万円未満
10ヶ月 即日
Bizflex神田の外観
物件番号:080084
更新日:2026/2/6
千代田区神田須田町1-3-32
【竣工】2024/1
【階建て】地上12F
【最寄駅】
神田駅2分
淡路町駅2分
小川町駅3分
【耐震】 新耐震
【基準階】 46.53坪 【エントランス】 オートロック
【駐車場】 無し 【エレベーター】 2基
2024年に竣工した新しいハイスペックオフィスビルです。Bizflex神田は、洗練されたデザインと最先端の機能を備えています。東京都千代田区神田須田町1-3-32に位置し、東京メトロ銀座線神田駅、丸…
図面 階数 面積 賃料(共益費込)
(坪単価)
保証金/敷金 礼金 入居可能日
3階 G 46.53坪
(153.83m2)
1,650,000
(35,461)
即日
6階 G 46.53坪
(153.83m2)
1,650,000
(35,461)
即日
7階 G 46.53坪
(153.83m2)
1,650,000
(35,461)
即日
サトケイビルの外観
物件番号:078690
更新日:2026/2/26
千代田区岩本町3-11-4
【竣工】2021/12
【階建て】地上9F
【最寄駅】
秋葉原駅3分
岩本町駅3分
【耐震】 新耐震
【基準階】 58.10坪 【エントランス】 オートロック
【駐車場】 有り 【エレベーター】 2基
岩本町エリア。2021年12月竣工の築浅美築ビル。サトケイビルは千代田区岩本町3丁目、東京メトロ日比谷線・秋葉原駅、都営新宿線・岩本町駅より徒歩3分圏内。神田川沿いの柳原通りに面した場所に…
図面 階数 面積 賃料(共益費込)
(坪単価)
保証金/敷金 礼金 入居可能日
1階 G 30.65坪
(101.00m2)
827,550
(27,000)
8ヶ月 2026/4/1
クロスシー秋葉原ビルの外観
物件番号:077326
更新日:2026/2/12
千代田区外神田4-7-11
【竣工】2021/9
【階建て】地上13F 、地下1F
【最寄駅】
末広町駅1分
秋葉原駅6分
湯島駅8分
【耐震】 新耐震
【基準階】 35.93坪 【エントランス】 全日開放(24h)
【駐車場】 有り 【エレベーター】 1基
千代田区外神田4丁目に位置するクロスシー秋葉原ビルは、東京メトロ銀座線の末広町駅から徒歩1分圏内と極めてアクセスの良い立地にあります。また、徒歩7分圏内にはJR山手線や京浜東北線、総武線…
図面 階数 面積 賃料(共益費込)
(坪単価)
保証金/敷金 礼金 入居可能日
4階 G 35.93坪
(118.80m2)
(未公開)
    賃料目安
  • 2.5 万以上~3.0 万円未満
(未公開) 即日
SEIWA EAST FACEの外観
物件番号:074441
更新日:2026/2/2
台東区浅草橋5-19-5
【竣工】2020/10
【階建て】地上5F
【最寄駅】
浅草橋駅6分
秋葉原駅11分
【耐震】 新耐震
【基準階】 【エントランス】 オートロック
【駐車場】 無し 【エレベーター】 1基
SEIWA EAST FACEは、台東区浅草橋5-19-5にある物件です。徒歩6分圏内でJR総武線の浅草橋駅、徒歩9分圏内で都営浅草線の浅草橋駅が利用可能となっています。複数路線が利用可能で交通アクセス良好…
図面 階数 面積 賃料(共益費込)
(坪単価)
保証金/敷金 礼金 入居可能日
4階 G 42.49坪
(140.47m2)
1,274,700
(30,000)
7ヶ月 相談
PMO秋葉原の外観
物件番号:056450
更新日:2026/2/6
千代田区岩本町3-11-6
【竣工】2010/1
【階建て】地上8F 、地下1F
【最寄駅】
岩本町駅3分
秋葉原駅4分
【耐震】 新耐震
【基準階】 131.25坪 【エントランス】 オートロック
【駐車場】 有り 【エレベーター】 2基
PMO秋葉原は、東京都千代田区岩本町3丁目に位置する賃貸オフィスビルです。昭和通りから約160メートルほど入った神田川沿いに立地しており、閑静で落ち着いたオフィス環境が広がるエリアにありま…
図面 階数 面積 賃料(共益費込)
(坪単価)
保証金/敷金 礼金 入居可能日
2階 G 131.25坪
(433.91m2)
(未公開)
    賃料目安
  • 3.0 万円以上
(未公開) 即日
4階 G 131.25坪
(433.91m2)
(未公開)
    賃料目安
  • 3.0 万円以上
(未公開) 即日
5階 G 131.25坪
(433.88m2)
(未公開)
    賃料目安
  • 3.0 万円以上
(未公開) 即日
6階 G 131.25坪
(433.88m2)
(未公開)
    賃料目安
  • 3.0 万円以上
(未公開) 即日

4件を確認する

PMO岩本町の外観
物件番号:055374
更新日:2026/2/25
千代田区岩本町3-9-2
【竣工】2009/5
【階建て】地上8F
【最寄駅】
岩本町駅2分
秋葉原駅3分
【耐震】 新耐震
【基準階】 45.00坪 【エントランス】 オートロック
【駐車場】 無し 【エレベーター】 1基
千代田区岩本町3-9-2に位置するPMO岩本町は、都営新宿線の岩本町駅から徒歩2分圏内という非常に利便性の高い場所にあります。また、徒歩6分圏内にはJR山手線、京浜東北線、総武線の秋葉原駅があ…
図面 階数 面積 賃料(共益費込)
(坪単価)
保証金/敷金 礼金 入居可能日
2階 G 45.00坪
(148.77m2)
(未公開)
    賃料目安
  • 3.0 万円以上
(未公開) 2026/3
予定
桂昇新御徒町ビルの外観
物件番号:052571
更新日:2026/2/5
台東区小島2-14-4
【竣工】2007/3
【階建て】地上8F
【最寄駅】
新御徒町駅2分
御徒町駅8分
稲荷町駅9分
【耐震】 新耐震
【基準階】 21.50坪 【エントランス】
【駐車場】 無し 【エレベーター】 1基
複数路線が利用可能で交通アクセス良好です。管理の行き届いた清潔感のあるエントランスです。ワンフロア・ワンテナントなので使い勝手の良い貸室です。
図面 階数 面積 賃料(共益費込)
(坪単価)
保証金/敷金 礼金 入居可能日
4階 G 21.47坪
(71.00m2)
300,000
(13,973)
4ヶ月 2.0ヶ月 2026/3
下旬
フォーラム浅草田原町の外観
物件番号:062837
更新日:2026/2/20
台東区寿2-10-16
【竣工】2005/5(改修:2020)
【階建て】地上9F
【最寄駅】
田原町駅2分
浅草駅5分
蔵前駅6分
【耐震】 新耐震
【基準階】 53.28坪 【エントランス】 オートロック
【駐車場】 無し 【エレベーター】 2基
フォーラム浅草田原町は、東京都台東区寿2丁目に位置する地上9階建てのオフィスビルです。2005年5月に竣工しており、構造は鉄骨鉄筋コンクリート造(SRC造)で建てられています。新耐震基準に適…
図面 階数 面積 賃料(共益費込)
(坪単価)
保証金/敷金 礼金 入居可能日
5階 G 53.28坪
(176.13m2)
800,000
(15,015)
6ヶ月 2026/7
予定
秋葉原ダイビルの外観
物件番号:037128
更新日:2026/2/25
千代田区外神田1-18-13
【竣工】2005/3
【階建て】地上30F 、地下2F
【最寄駅】
秋葉原駅2分
末広町駅5分
【耐震】 新耐震+制震
【基準階】 336.00坪 【エントランス】 全日開放(制限有)
【駐車場】 有り 【エレベーター】 12基
秋葉原ダイビルは、東京都千代田区外神田1-18-13に位置する地上30階建て地下2階のオフィスビルです。2005年3月に竣工し、SRC造で建てられています。新耐震基準に適合していることに加え、制震構…
図面 階数 面積 賃料(共益費込)
(坪単価)
保証金/敷金 礼金 入居可能日
8階 G 114.24坪
(377.66m2)
(未公開)
    賃料目安
  • 3.0 万円以上
(未公開) 2026/10
予定
サングローリの外観
物件番号:018123
更新日:2026/2/2
台東区蔵前4-17-10
【竣工】2001/9
【階建て】地上4F
【最寄駅】
蔵前駅4分
新御徒町駅9分
浅草橋駅11分
【耐震】 新耐震
【基準階】 30.44坪 【エントランス】 全日開放(24h)
【駐車場】 有り 【エレベーター】
サングローリは、東京都台東区蔵前4-17-10に位置する地上4階建てのオフィスビルです。2001年9月に竣工し、構造はS造(鉄骨造)を採用しています。新耐震基準に適合して建設されているため、地震…
図面 階数 面積 賃料(共益費込)
(坪単価)
保証金/敷金 礼金 入居可能日
2階 G 30.44坪
(100.63m2)
310,000
(10,184)
6ヶ月 即日
コレクションビルの外観
物件番号:045064
更新日:2026/2/24
台東区浅草6-9-1
【竣工】1997/2
【階建て】地上8F
【最寄駅】
浅草駅7分
【耐震】 新耐震
【基準階】 31.67坪 【エントランス】 全日開放(制限有)
【駐車場】 無し 【エレベーター】 1基
コレクションビルは、東京都台東区浅草6丁目9-1に位置するオフィスビルです。浅草駅から徒歩7分というアクセスの良い立地にあり、東武スカイツリーライン、東京メトロ銀座線、都営浅草線と複数の…
図面 階数 面積 賃料(共益費込)
(坪単価)
保証金/敷金 礼金 入居可能日
NEW6階 G 31.67坪
(104.70m2)
370,000
(11,683)
4ヶ月 1.0ヶ月 相談
石川興産ビルの外観
物件番号:003650
更新日:2026/2/18
千代田区外神田4-7-5
【竣工】1993/3
【階建て】地上10F
【最寄駅】
末広町駅1分
秋葉原駅6分
上野広小路駅7分
【耐震】 新耐震
【基準階】 40.20坪 【エントランス】 全日開放(制限有)
【駐車場】 無し 【エレベーター】 1基
石川興産ビルは、東京都千代田区外神田4丁目に位置する、利便性と視認性を兼ね備えた賃貸オフィスビルです。東京メトロ銀座線・末広町駅1番出口のすぐそば、徒歩1分圏内という抜群の立地を誇りま…
図面 階数 面積 賃料(共益費込)
(坪単価)
保証金/敷金 礼金 入居可能日
4階 G 40.20坪
(132.90m2)
783,900
(19,500)
10ヶ月 1.0ヶ月 即日
6階 G 40.20坪
(132.90m2)
783,900
(19,500)
10ヶ月 1.0ヶ月 即日
ヤマダビルの外観
物件番号:018155
更新日:2026/2/25
台東区元浅草1-6-29
【竣工】1992/6
【階建て】地上6F
【最寄駅】
新御徒町駅2分
稲荷町駅5分
仲御徒町駅10分
【耐震】 新耐震
【基準階】 40.56坪 【エントランス】 平日のみ開放
【駐車場】 無し 【エレベーター】 1基
新御徒町駅から徒歩2分の立地です!スタイリッシュな印象の外観です!トイレは室内で男女別になっています!
図面 階数 面積 賃料(共益費込)
(坪単価)
保証金/敷金 礼金 入居可能日
3階 G 40.56坪
(134.08m2)
534,776
(13,185)
6ヶ月 即日
浅草SPビルの外観
物件番号:018369
更新日:2026/2/5
台東区西浅草2-20-6
【竣工】1992/6(改修:2025)
【階建て】地上9F
【最寄駅】
浅草駅6分
【耐震】 新耐震
【基準階】 20.06坪 【エントランス】 オートロック
【駐車場】 無し 【エレベーター】 1基
かっぱ橋通りに面しているので視認性に優れています。2025年外壁工事完了済み、白い外観で明るい印象です。シンプルな形状でレイアウトのしやすい貸室です。
図面 階数 面積 賃料(共益費込)
(坪単価)
保証金/敷金 礼金 入居可能日
5階 G 20.05坪
(66.31m2)
320,000
(15,960)
6ヶ月 2.0ヶ月 即日
Uビルの外観
物件番号:018136
更新日:2026/2/7
台東区元浅草3-13-12
【竣工】1992/5
【階建て】地上8F
【最寄駅】
田原町駅5分
新御徒町駅7分
蔵前駅9分
【耐震】 新耐震
【基準階】 38.42坪 【エントランス】 平日のみ開放
【駐車場】 有り 【エレベーター】 1基
Uビルは、東京都台東区元浅草3-13-12に位置する地上8階建てのオフィスビルです。1992年5月に竣工し、構造は鉄骨鉄筋コンクリート造(SRC造)で、新耐震基準にも適合しています。耐震性に優れた設…
図面 階数 面積 賃料(共益費込)
(坪単価)
保証金/敷金 礼金 入居可能日
8階 G 38.42坪
(127.01m2)
540,000
(14,055)
6ヶ月 即日
メトロシティ上野稲荷町の外観
物件番号:017201
更新日:2026/2/17
台東区東上野3-34-6
【竣工】1992/4(改修:2012)
【階建て】地上10F
【最寄駅】
稲荷町駅1分
上野駅5分
新御徒町駅7分
【耐震】 新耐震
【基準階】 33.05坪 【エントランス】 全日開放(制限有)
【駐車場】 無し 【エレベーター】 1基
上野エリア。浅草通り沿いに建つハイグレードな賃貸オフィスビル。東上野フロントビルは、台東区東上野3丁目、最寄駅は東京メトロ銀座線・稲荷町駅、1番出口から徒歩1分圏内のアクセス抜群の立地…
図面 階数 面積 賃料(共益費込)
(坪単価)
保証金/敷金 礼金 入居可能日
2階 G 32.62坪
(109.25m2)
(未公開)
    賃料目安
  • 1.6 万以上~2.0 万円未満
6ヶ月 2026/5/1
5階 G 32.57坪
(107.68m2)
(未公開)
    賃料目安
  • 2.0 万以上~2.5 万円未満
6ヶ月 2026/5/11
Yunuoビルの外観
物件番号:067549
更新日:2026/2/25
千代田区神田東松下町23-1
【竣工】1992/3(改修:2017)
【階建て】地上7F 、地下1F
【最寄駅】
岩本町駅1分
秋葉原駅4分
神田駅5分
【耐震】 新耐震
【基準階】 47.38坪 【エントランス】 平日・土開放
【駐車場】 無し 【エレベーター】 1基
岩本町駅より徒歩1分圏内、ワンフロア約47坪の貸事務所。Yunuoビル は、千代田区神田東松下町23-1の物件です。都営新宿線 岩本町駅より徒歩1分圏内の好立地、一八通りに面しています。東京メトロ…
図面 階数 面積 賃料(共益費込)
(坪単価)
保証金/敷金 礼金 入居可能日
2階 G 47.38坪
(156.64m2)
900,220
(19,000)
5,500,000
(116,083)
1.0ヶ月 即日
中央法規ビルの外観
物件番号:064224
更新日:2026/2/19
台東区台東3-29-1
【竣工】1992/1(改修:2014)
【階建て】地上9F
【最寄駅】
新御徒町駅4分
仲御徒町駅7分
御徒町駅9分
【耐震】 新耐震
【基準階】 93.61坪 【エントランス】
【駐車場】 有り 【エレベーター】 2基
新御徒町駅・御徒町駅・仲御徒町駅などの複数路線が利用可能です。OAフロア・機械警備・光ファイバーの設備を完備しています。トイレ・給湯室などもリニューアル済みです。
図面 階数 面積 賃料(共益費込)
(坪単価)
保証金/敷金 礼金 入居可能日
2階 G 93.61坪
(309.45m2)
1,497,760
(16,000)
6ヶ月 2026/8/1
聖公会神田ビルの外観
物件番号:003714
更新日:2026/2/27
千代田区外神田3-5-12
【竣工】1991/11
【階建て】地上10F 、地下1F
【最寄駅】
末広町駅3分
秋葉原駅7分
御茶ノ水駅10分
【耐震】 新耐震
【基準階】 110.71坪 【エントランス】 平日・土開放
【駐車場】 有り 【エレベーター】 2基
聖公会神田ビルは、末広町駅から徒歩3分圏内という優れたアクセス性を備えたオフィスビルです。千代田区外神田三丁目に位置し、秋葉原駅をはじめとする複数の主要駅が徒歩圏内に集積しているため…
図面 階数 面積 賃料(共益費込)
(坪単価)
保証金/敷金 礼金 入居可能日
5階 G 110.71坪
(365.99m2)
(未公開)
    賃料目安
  • 1.6 万以上~2.0 万円未満
12ヶ月 即日
I・T秋葉原ビルの外観
物件番号:071061
更新日:2026/2/16
千代田区神田和泉町1-3-13
【竣工】1991/3
【階建て】地上6F
【最寄駅】
秋葉原駅4分
岩本町駅8分
末広町駅10分
【耐震】 新耐震
【基準階】 35.21坪 【エントランス】
【駐車場】 有り 【エレベーター】 1基
東京都千代田区神田和泉町に位置する「I・T秋葉原ビル」は、秋葉原エリアの利便性と落ち着いた周辺環境を兼ね備えた、バランスの良いオフィス物件です。昭和通りから少し入った場所に立地してい…
図面 階数 面積 賃料(共益費込)
(坪単価)
保証金/敷金 礼金 入居可能日
2階 G 35.27坪
(116.60m2)
586,764
(16,636)
7ヶ月 1.0ヶ月 2026/4/1
雄幸ビルの外観
物件番号:018172
更新日:2026/1/30
台東区元浅草3-1-8
【竣工】1991/3
【階建て】地上5F
【最寄駅】
新御徒町駅5分
田原町駅8分
蔵前駅8分
【耐震】 新耐震
【基準階】 27.03坪 【エントランス】 全日開放(24h)
【駐車場】 無し 【エレベーター】 1基
地下鉄3路線使える好立地物件!ワンフロア・ワンテナントの使い勝手良好なオフィス空間!24時間セキュリティで防犯面も安心な貸事務所!
図面 階数 面積 賃料(共益費込)
(坪単価)
保証金/敷金 礼金 入居可能日
1階 G 20.06坪
(66.31m2)
258,181
(12,870)
6ヶ月 1.0ヶ月 即日
2階 G 25.59坪
(84.61m2)
266,364
(10,409)
6ヶ月 1.0ヶ月 即日
米十永野ビルの外観
物件番号:017594
更新日:2026/2/20
台東区台東2-29-3
【竣工】1991/1
【階建て】地上5F
【最寄駅】
仲御徒町駅3分
御徒町駅7分
末広町駅8分
【耐震】 新耐震
【基準階】 【エントランス】
【駐車場】 無し 【エレベーター】 1基
仲御徒町駅、御徒町駅、末広町駅、秋葉原駅などが利用可能な貸事務所です。車通りの少ない閑静な環境の立地条件です。ワンフロア・ワンテナントで使い勝手が良いです。
図面 階数 面積 賃料(共益費込)
(坪単価)
保証金/敷金 礼金 入居可能日
1階 G 27.86坪
(92.10m2)
501,480
(18,000)
8ヶ月 即日
NREG秋葉原ビルの外観
物件番号:056660
更新日:2026/2/6
千代田区外神田1-8-13
【竣工】1990/8(改修:2018)
【階建て】地上7F 、地下1F
【最寄駅】
秋葉原駅3分
御茶ノ水駅7分
末広町駅7分
【耐震】 新耐震
【基準階】 168.24坪 【エントランス】 平日のみ開放
【駐車場】 有り 【エレベーター】 2基
NREG秋葉原ビルは、千代田区外神田1丁目に位置する大型オフィスビルで、住所は東京都千代田区外神田1-8-13。秋葉原駅から徒歩3分圏内という抜群の立地を誇り、JR山手線・京浜東北線・総武線の各…
図面 階数 面積 賃料(共益費込)
(坪単価)
保証金/敷金 礼金 入居可能日
2階 N 168.25坪
(556.23m2)
(未公開)
    賃料目安
  • 2.0 万以上~2.5 万円未満
(未公開) 即日
第二寿ビルディングの外観
物件番号:004250
更新日:2026/2/18
千代田区神田佐久間河岸78-6
【竣工】1990/3
【階建て】地上5F
【最寄駅】
秋葉原駅5分
岩本町駅5分
浅草橋駅6分
【耐震】 新耐震
【基準階】 25.95坪 【エントランス】
【駐車場】 無し 【エレベーター】 1基
東京都千代田区神田佐久間河岸にある第二寿ビルディングは、ビジネスの拠点として最適な条件を備えたオフィスビルです。JR山手線・総武線・京浜東北線「秋葉原駅」から徒歩5分、つくばエクスプレ…
図面 階数 面積 賃料(共益費込)
(坪単価)
保証金/敷金 礼金 入居可能日
2階 G 25.95坪
(85.79m2)
(未公開)
    賃料目安
  • 1.4 万以上~1.6 万円未満
6ヶ月 2026/4/1
岩本町寿共同ビルの外観
物件番号:004425
更新日:2026/2/9
千代田区岩本町3-9-13
【竣工】1990/1
【階建て】地上6F 、地下1F
【最寄駅】
岩本町駅2分
秋葉原駅3分
馬喰町駅9分
【耐震】 新耐震
【基準階】 102.61坪 【エントランス】 全日開放(制限有)
【駐車場】 有り 【エレベーター】 1基
岩本町寿共同ビルは、タイルが張られた外壁が大きな窓が印象的な賃貸オフィスです。千代田区岩本町3-9-13に位置し、都営新宿線の岩本町駅から徒歩2分圏内、JR山手線・JR京浜東北線・JR総武線・つ…
図面 階数 面積 賃料(共益費込)
(坪単価)
保証金/敷金 礼金 入居可能日
1階 G 20.61坪
(68.13m2)
350,370
(17,000)
6ヶ月 2026/2
中旬
サテライトフジビルの外観
物件番号:018344
更新日:2026/2/6
台東区花川戸1-5-2
【竣工】1989/10
【階建て】地上10F
【最寄駅】
浅草駅1分
【耐震】 新耐震
【基準階】 21.68坪 【エントランス】
【駐車場】 無し 【エレベーター】 1基
サテライトフジビルは、東京都台東区花川戸1丁目5番2号に位置するオフィスビルで、1989年10月に竣工しました。構造はSRC造(鉄骨鉄筋コンクリート造)で、地上10階建てです。新耐震基準に適合し…
図面 階数 面積 賃料(共益費込)
(坪単価)
保証金/敷金 礼金 入居可能日
9階 G 21.68坪
(71.66m2)
450,000
(20,795)
3ヶ月 1.0ヶ月 相談
Biz Feel AKIHABARAの外観
物件番号:004717
更新日:2026/2/18
千代田区神田岩本町1
【竣工】1989/9(改修:2026)
【階建て】地上9F
【最寄駅】
岩本町駅2分
秋葉原駅2分
【耐震】 新耐震
【基準階】 27.76坪 【エントランス】
【駐車場】 無し 【エレベーター】 1基
秋葉原の駅近で、新しい働き方を叶えるオフィスをお探しなら「Biz Feel AKIHABARA」がおすすめです。複数路線が利用可能な優れたアクセス環境に加え、2026年1月にエントランスや共用部のリニュー…
図面 階数 面積 賃料(共益費込)
(坪単価)
保証金/敷金 礼金 入居可能日
2階 G 28.61坪
(94.58m2)
1,000,000
(34,953)
2026/5
予定
3階 G 28.61坪
(94.58m2)
1,000,000
(34,953)
2026/5
予定
4階 G 28.61坪
(94.58m2)
1,000,000
(34,953)
2026/3
上旬
5階 G 28.61坪
(94.58m2)
1,000,000
(34,953)
2026/3
上旬
6階 G 28.61坪
(94.58m2)
1,000,000
(34,953)
2026/4
予定

5件を確認する

東神田堀商ビルの外観
物件番号:004312
更新日:2026/2/12
千代田区東神田2-4-5
【竣工】1989/6
【階建て】地上7F
【最寄駅】
秋葉原駅5分
岩本町駅5分
【耐震】 新耐震
【基準階】 81.28坪 【エントランス】 平日・土開放
【駐車場】 有り 【エレベーター】 1基
東神田堀商ビルは、千代田区東神田に位置する地上7階建てのオフィスビルです。1989年竣工のS造で、新耐震基準に適合しており、安全性と安心感を兼ね備えています。角地に建つ二面採光の構造によ…
図面 階数 面積 賃料(共益費込)
(坪単価)
保証金/敷金 礼金 入居可能日
3階 G 81.28坪
(268.70m2)
(未公開)
    賃料目安
  • 2.0 万以上~2.5 万円未満
12ヶ月 2026/4/1

非公開物件の賃料目安アイコン

  • 8,000 円未満
  • 8,000 円以上~1.0 万円未満
  • 1.0 万以上~1.2 万円未満
  • 1.2 万以上~1.4 万円未満
  • 1.4 万以上~1.6 万円未満
  • 1.6 万以上~2.0 万円未満
  • 2.0 万以上~2.5 万円未満
  • 2.5 万以上~3.0 万円未満
  • 3.0 万円以上
  • 未定

※取引態様:媒介
※フロア図面と現況が異なる場合は現況を優先いたします。
※貸室内部の写真・貸室からの景色に関しては、現在の募集フロアと異なる場合がございます。

総数:56棟(91件)

(東京)の賃料相場

(東京)エリアの平均賃料

で募集している物件の、1坪あたりの賃料(共益費を含む)の平均価格です。
数値の右側にある矢印は、一週間前の数値と比較した結果を表しています。
賃料価格は毎日集計をしている最新の値です。

  • 2040 未調査
  • 4060 未調査
  • 60100 未調査
  • 100坪以上 未調査

(東京)エリアの募集賃料

の1坪あたりの賃料(共益費を含む)価格帯ごとの募集物件数です。
表の数値をクリックすると募集物件の一覧表が表示します。

【2026/02/27更新】

エリアが指定されていません。
募集賃料(円)8千未満0.8~1.0万1.0~1.2万1.2~1.4万1.4~1.6万1.6~2.0万2.0~2.5万2.5~3.0万3.0万以上