※ご入居を検討されているお客様向けの情報サイトです。
※駐車場単体・管理会社・テナントに関するお問合せにはお応えいたしかねます。

JR総武線(快速)沿線の(20~40坪)の貸事務所・賃貸オフィス一覧

総数:84棟(115件)
NEXUS日本橋の外観
物件番号:083379
更新日:2026/4/7
中央区日本橋小舟町11-8
【竣工】2025/11
【階建て】地上10F
【最寄駅】
新日本橋駅6分
三越前駅7分
小伝馬町駅7分
【耐震】 新耐震
【基準階】 25.98坪 【エントランス】
【駐車場】 - 【エレベーター】 1基
4駅5路線が利用可能、交通アクセス良好です。独立性の高いワンフロア・ワンテナントの物件です。男女別トイレ完備、天井高は2,600mmと快適なオフィス環境です。
図面 階数 面積 賃料(共益費込)
(坪単価)
保証金/敷金 礼金 入居可能日
2階 G 25.98坪
(85.88m2)
(未公開)
    賃料目安
  • 2.5 万以上~3.0 万円未満
10ヶ月 即日
3階 G 25.98坪
(85.88m2)
(未公開)
    賃料目安
  • 2.5 万以上~3.0 万円未満
10ヶ月 即日
4階 G 25.98坪
(85.88m2)
(未公開)
    賃料目安
  • 2.5 万以上~3.0 万円未満
10ヶ月 即日
AVANTIA神田の外観
物件番号:083050
更新日:2026/4/24
千代田区鍛冶町1-7-15
【竣工】2024/3
【階建て】地上3F
【最寄駅】
神田駅2分
新日本橋駅4分
三越前駅6分
【耐震】 新耐震
【基準階】 20.67坪 【エントランス】
【駐車場】 無し 【エレベーター】
東京都千代田区鍛冶町に誕生した「AVANTIA神田」は、2024年3月に竣工したばかりのオフィスビルです。JR山手線・中央線・京浜東北線「神田駅」から徒歩2分という抜群のアクセスを誇り、ビジネスの…
図面 階数 面積 賃料(共益費込)
(坪単価)
保証金/敷金 礼金 入居可能日
1階 G 20.67坪
(68.34m2)
1,200,000
(58,055)
6ヶ月 2026/7
上旬
日本橋浜町2丁目ビルの外観
物件番号:078380
更新日:2026/4/24
中央区日本橋浜町2-43-4
【竣工】2022/3
【階建て】地上9F
【最寄駅】
浜町駅1分
人形町駅7分
水天宮前駅10分
【耐震】 新耐震
【基準階】 35.72坪 【エントランス】 全日開放(24h)
【駐車場】 無し 【エレベーター】 1基
中央区日本橋浜町に位置する「日本橋浜町2丁目ビル」は、2022年竣工の築浅オフィスビルで、明治座通りに面した角地に立地しています。都営新宿線「浜町駅」A2出口から徒歩1分圏内という優れたア…
図面 階数 面積 賃料(共益費込)
(坪単価)
保証金/敷金 礼金 入居可能日
3階 G 35.72坪
(118.11m2)
999,000
(27,968)
2026/5
中旬
TWG日本橋イーストⅡの外観
物件番号:077497
更新日:2026/5/1
中央区日本橋富沢町10-11
【竣工】2021/10(改修:2022)
【階建て】地上10F
【最寄駅】
東日本橋駅5分
馬喰横山駅5分
小伝馬町駅6分
【耐震】 新耐震
【基準階】 30.06坪 【エントランス】 全日開放(24h)
【駐車場】 無し 【エレベーター】 1基
TWG日本橋イーストⅡは、東京都中央区日本橋富沢町10-11に所在する賃貸オフィスビルです。2021年に竣工した築浅物件で、新耐震基準を満たした安心の設計が特徴です。鉄骨造・地上10階建てで、地下…
図面 階数 面積 賃料(共益費込)
(坪単価)
保証金/敷金 礼金 入居可能日
5階 G 30.06坪
(99.39m2)
(未公開)
    賃料目安
  • 2.0 万以上~2.5 万円未満
6ヶ月 即日
6階 G 30.06坪
(99.39m2)
(未公開)
    賃料目安
  • 2.0 万以上~2.5 万円未満
6ヶ月 即日
VORT秋葉原Vの外観
物件番号:073881
更新日:2026/4/15
千代田区岩本町3-8-11
【竣工】2020/3
【階建て】地上8F
【最寄駅】
岩本町駅3分
秋葉原駅4分
馬喰町駅9分
【耐震】 新耐震
【基準階】 21.37坪 【エントランス】 オートロック
【駐車場】 無し 【エレベーター】 1基
東京都千代田区岩本町に位置する「VORT秋葉原V」は、秋葉原エリア・岩本町エリアで高品質なセットアップオフィスを探している企業様におすすめの賃貸オフィスビルです。周辺に複数の駅があり、ビ…
図面 階数 面積 賃料(共益費込)
(坪単価)
保証金/敷金 礼金 入居可能日
2階 G 21.37坪
(70.65m2)
(未公開)
    賃料目安
  • 2.0 万以上~2.5 万円未満
6ヶ月 1.0ヶ月 2026/8/1
6階 G 21.37坪
(70.65m2)
(未公開)
    賃料目安
  • 2.0 万以上~2.5 万円未満
6ヶ月 1.0ヶ月 即日
美倉ビルの外観
物件番号:005043
更新日:2026/4/9
千代田区神田美倉町4
【竣工】2019/11
【階建て】地上9F 、地下1F
【最寄駅】
新日本橋駅4分
神田駅5分
三越前駅6分
【耐震】 新耐震
【基準階】 30.11坪 【エントランス】 平日のみ開放
【駐車場】 無し 【エレベーター】 1基
美倉ビルは、千代田区神田美倉町に位置する2019年竣工の新耐震基準を満たした貸事務所ビルです。都心の主要ビジネスエリアに近接しながらも、比較的落ち着いた街並みに立地しており、執務に集中…
図面 階数 面積 賃料(共益費込)
(坪単価)
保証金/敷金 礼金 入居可能日
B1階 G 28.02坪
(92.63m2)
546,390
(19,500)
10ヶ月 2026/5
中旬
キスワイヤビルの外観
物件番号:072027
更新日:2026/4/28
中央区日本橋大伝馬町4-5
【竣工】2017/11
【階建て】地上5F
【最寄駅】
小伝馬町駅1分
新日本橋駅6分
馬喰横山駅7分
【耐震】 新耐震
【基準階】 21.95坪 【エントランス】
【駐車場】 無し 【エレベーター】 1基
小伝馬町駅から徒歩1分の好立地!4駅4路線利用可能です。水天宮通り沿いの角地で分かりやすく視認性の高い立地です。2017年竣工、デザイン性の高い綺麗な外観の建物です。
図面 階数 面積 賃料(共益費込)
(坪単価)
保証金/敷金 礼金 入居可能日
2階 G 21.95坪
(72.56m2)
351,200
(16,000)
3ヶ月 2.0ヶ月 即日
プロスタイル日本橋馬喰町の外観
物件番号:083846
更新日:2026/4/17
中央区東日本橋3-9-5
【竣工】2017/6
【階建て】地上12F 、地下1F
【最寄駅】
東日本橋駅1分
馬喰横山駅1分
馬喰町駅4分
【耐震】 新耐震
【基準階】 【エントランス】 オートロック
【駐車場】 無し 【エレベーター】 2基
最寄駅から徒歩1分の好立地、複数路線が利用可能です。2017年竣工の新耐震基準の建物で安心してご利用いただけます。マンション低層階の事務所区画、個別空調・トイレ完備です。
図面 階数 面積 賃料(共益費込)
(坪単価)
保証金/敷金 礼金 入居可能日
1-2階 G 33.26坪
(109.97m2)
450,000
(13,530)
3ヶ月 相談
アソルティ小伝馬町Liensの外観
物件番号:057035
更新日:2026/5/7
中央区日本橋小伝馬町14-10
【竣工】2009/8
【階建て】地上12F 、地下1F
【最寄駅】
馬喰町駅3分
馬喰横山駅3分
小伝馬町駅4分
【耐震】 新耐震
【基準階】 45.94坪 【エントランス】 全日開放(制限有)
【駐車場】 有り 【エレベーター】 1基
アソルティ小伝馬町Liensは、東京都中央区日本橋小伝馬町14-10に位置する地上12階・地下1階建てのオフィスビルです。2009年8月に竣工した鉄骨鉄筋コンクリート造(SRC造)の建物で、新耐震基準を…
図面 階数 面積 賃料(共益費込)
(坪単価)
保証金/敷金 礼金 入居可能日
2階 G 20.55坪
(67.95m2)
493,200
(24,000)
4ヶ月 即日
VORT神田の外観
物件番号:051854
更新日:2026/5/1
千代田区鍛冶町1-3-1
【竣工】2007/3
【階建て】地上9F 、地下1F
【最寄駅】
神田駅2分
新日本橋駅4分
【耐震】 新耐震
【基準階】 25.62坪 【エントランス】 オートロック
【駐車場】 無し 【エレベーター】 1基
VORT神田は、東京都千代田区鍛冶町1丁目に位置するオフィスビルで、神田駅から徒歩2分という抜群の立地が魅力です。JR山手線・中央線・京浜東北線、東京メトロ銀座線が乗り入れる神田駅が最寄り…
図面 階数 面積 賃料(共益費込)
(坪単価)
保証金/敷金 礼金 入居可能日
3階 G 25.62坪
(84.69m2)
(未公開)
    賃料目安
  • 2.0 万以上~2.5 万円未満
5ヶ月 1.0ヶ月 2026/8/20
6階 G 25.62坪
(84.71m2)
(未公開)
    賃料目安
  • 1.6 万以上~2.0 万円未満
5ヶ月 1.0ヶ月 2026/9/27
日本生命丸の内ビルの外観
物件番号:037364
更新日:2026/4/27
千代田区丸の内1-6-6
【竣工】2004/8
【階建て】地上28F 、地下4F
【最寄駅】
東京駅1分
【耐震】 新耐震
【基準階】 658.68坪 【エントランス】 平日のみ開放
【駐車場】 有り 【エレベーター】 14基
日本生命丸の内ビルは、オフィス入居の絶好のロケーションを誇る賃貸オフィスビルです。東京駅に直結しているため、アクセスに優れ、雨に濡れることなくビル内へとスムーズに移動できます。徒歩1…
図面 階数 面積 賃料(共益費込)
(坪単価)
保証金/敷金 礼金 入居可能日
22階 N 25.58坪
(84.56m2)
(未公開)
    賃料目安
  • 3.0 万円以上
(未公開) 2026/6
22階 N 26.38坪
(87.21m2)
(未公開)
    賃料目安
  • 3.0 万円以上
(未公開) 2026/6
友泉本石町ビルの外観
物件番号:036559
更新日:2026/4/16
中央区日本橋本石町4-5-12
【竣工】2003/6
【階建て】地上9F
【最寄駅】
新日本橋駅2分
神田駅3分
三越前駅5分
【耐震】 新耐震
【基準階】 30.21坪 【エントランス】 平日・土開放
【駐車場】 無し 【エレベーター】 1基
友泉本石町ビルは、東京都中央区日本橋本石町四丁目に位置し、利便性と落ち着きを兼ね備えたオフィスビルです。日本橋・神田エリアに隣接する立地は、古くから商業や金融の街として発展してきた…
図面 階数 面積 賃料(共益費込)
(坪単価)
保証金/敷金 礼金 入居可能日
5階 G 30.21坪
(99.86m2)
664,620
(22,000)
8ヶ月 2026/5/1
7階 G 30.21坪
(99.86m2)
664,620
(22,000)
8ヶ月 即日
ポータル秋葉原の外観
物件番号:004386
更新日:2026/5/7
千代田区東神田2-10-9
【竣工】2002/5(改修:2018)
【階建て】地上8F
【最寄駅】
馬喰町駅4分
浅草橋駅5分
岩本町駅7分
【耐震】 新耐震
【基準階】 38.20坪 【エントランス】 平日のみ開放
【駐車場】 無し 【エレベーター】 1基
千代田区東神田2-10-9にある、ポータル秋葉原です。徒歩4分圏内でJR総武線(快速)の馬喰町駅、徒歩5分圏内でJR総武線の浅草橋駅、徒歩7分圏内で都営新宿線の岩本町駅、徒歩9分圏内で都営浅草…
図面 階数 面積 賃料(共益費込)
(坪単価)
保証金/敷金 礼金 入居可能日
5階 G 38.20坪
(126.31m2)
(未公開)
    賃料目安
  • 2.0 万以上~2.5 万円未満
(未公開) 2026/7
上旬
ビュレックス京橋ビルの外観
物件番号:035743
更新日:2026/5/7
中央区京橋2-7-14
【竣工】2002/2
【階建て】地上8F 、地下1F
【最寄駅】
京橋駅1分
宝町駅2分
東京駅10分
【耐震】 新耐震
【基準階】 176.04坪 【エントランス】 平日のみ開放
【駐車場】 有り 【エレベーター】 2基
東京メトロ銀座線の京橋駅が最寄り駅、東京駅徒歩圏内の京橋エリアのインテリジェントオフィスビル。ビュレックス京橋ビルは、京橋二丁目、中央通りから一本はいったところに位置し、JR東京駅を…
図面 階数 面積 賃料(共益費込)
(坪単価)
保証金/敷金 礼金 入居可能日
2階 G 21.52坪
(71.14m2)
(未公開)
    賃料目安
  • 3.0 万円以上
(未公開) 即日
日本橋久松町栗原ビルの外観
物件番号:009846
更新日:2026/4/20
中央区日本橋久松町9-13
【竣工】2002
【階建て】地上10F
【最寄駅】
人形町駅4分
浜町駅4分
馬喰町駅7分
【耐震】 新耐震
【基準階】 21.19坪 【エントランス】 オートロック
【駐車場】 無し 【エレベーター】 1基
複数路線が利用可能で交通アクセス良好です。管理の行き届いた清潔感のあるエントランスです。ワンフロア・ワンテナントなので使い勝手の良い貸室です。
図面 階数 面積 賃料(共益費込)
(坪単価)
保証金/敷金 礼金 入居可能日
6階 G 21.19坪
(70.06m2)
296,660
(14,000)
6ヶ月 即日
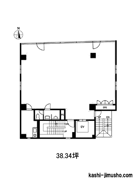
VORT錦糸町駅前Ⅱの外観
物件番号:041277
更新日:2026/4/8
墨田区江東橋4-25-7
【竣工】1998/1
【階建て】地上8F 、地下1F
【最寄駅】
錦糸町駅4分
【耐震】 新耐震
【基準階】 38.34坪 【エントランス】
【駐車場】 無し 【エレベーター】 1基
複数路線が利用可能で交通アクセス良好です。大通りに面しているので視認性に優れています。ワンフロア・ワンテナントなので使い勝手の良い貸室です。
図面 階数 面積 賃料(共益費込)
(坪単価)
保証金/敷金 礼金 入居可能日
6階 G 38.34坪
(126.76m2)
(未公開)
    賃料目安
  • 1.6 万以上~2.0 万円未満
5ヶ月 1.0ヶ月 2026/7/31
バンセイ室町ビルの外観
物件番号:008720
更新日:2026/5/1
中央区日本橋室町4-3-12
【竣工】1997/9
【階建て】地上10F
【最寄駅】
新日本橋駅1分
三越前駅2分
神田駅3分
【耐震】 新耐震
【基準階】 25.50坪 【エントランス】 平日・土開放
【駐車場】 無し 【エレベーター】 1基
スモークガラス張りのシャープなビルです!白い石張りの綺麗なエントランスです!機械警備システム対応でセキュリティも安心です!
図面 階数 面積 賃料(共益費込)
(坪単価)
保証金/敷金 礼金 入居可能日
5階 G 25.50坪
(84.30m2)
586,500
(23,000)
10ヶ月 2026/6
中旬
第二久ビルの外観
物件番号:035496
更新日:2026/4/24
中央区日本橋馬喰町1-6-8
【竣工】1995/3(改修:2010)
【階建て】地上9F
【最寄駅】
馬喰町駅1分
馬喰横山駅2分
東日本橋駅4分
【耐震】 新耐震
【基準階】 31.50坪 【エントランス】 オートロック
【駐車場】 無し 【エレベーター】 1基
東京都中央区日本橋馬喰町に位置する「第二久ビル」は、JR総武線快速「馬喰町駅」から徒歩1分という駅近の好立地が魅力のオフィスビルです。都営新宿線「馬喰横山駅」や都営浅草線「東日本橋駅」…
図面 階数 面積 賃料(共益費込)
(坪単価)
保証金/敷金 礼金 入居可能日
7階 G 33.86坪
(111.93m2)
474,040
(14,000)
8ヶ月 2026/5
中旬
神田松楠ビルの外観
物件番号:003149
更新日:2026/4/23
千代田区内神田2-7-10
【竣工】1994/5
【階建て】地上9F
【最寄駅】
神田駅3分
大手町駅7分
新日本橋駅8分
【耐震】 新耐震
【基準階】 33.00坪 【エントランス】 平日・土開放
【駐車場】 無し 【エレベーター】 1基
神田駅から徒歩3分の好立地にある神田松楠ビルは、落ち着いた印象のグレーの外観が特徴の貸事務所です。この物件は、東京都千代田区内神田2-7-10に位置しており、JR山手線、中央線、京浜東北線の…
図面 階数 面積 賃料(共益費込)
(坪単価)
保証金/敷金 礼金 入居可能日
3階 G 37.07坪
(122.56m2)
685,795
(18,500)
12ヶ月 即日
岡田ビルの外観
物件番号:017733
更新日:2026/4/28
台東区浅草橋3-19-1
【竣工】1993/12
【階建て】地上7F
【最寄駅】
浅草橋駅5分
馬喰町駅10分
蔵前駅10分
【耐震】 新耐震
【基準階】 41.68坪 【エントランス】
【駐車場】 無し 【エレベーター】 1基
江戸通りより一本入った静かな立地です。周辺は飲食店などが揃う便利な環境です。シンプルな形状でレイアウトのしやすい貸室です。
図面 階数 面積 賃料(共益費込)
(坪単価)
保証金/敷金 礼金 入居可能日
1階 G 32.19坪
(106.43m2)
800,000
(24,852)
8ヶ月 2026/7
MH-KIYA BLDG.の外観
物件番号:005038
更新日:2026/5/8
千代田区神田美倉町12-1
【竣工】1993/3(改修:2019)
【階建て】地上7F 、地下1F
【最寄駅】
新日本橋駅3分
神田駅6分
小伝馬町駅6分
【耐震】 新耐震
【基準階】 39.36坪 【エントランス】
【駐車場】 有り 【エレベーター】 1基
MH-KIYABLDGは、千代田区神田美倉町に位置する貸事務所で、複数の主要路線が利用できる利便性の高いロケーションが魅力です。最寄り駅はJR山手線、中央線、京浜東北線および東京メトロ銀座線の神…
図面 階数 面積 賃料(共益費込)
(坪単価)
保証金/敷金 礼金 入居可能日
3階 G 39.36坪
(130.12m2)
984,000
(25,000)
6ヶ月 1.0ヶ月 相談
雷電ビルの外観
物件番号:073580
更新日:2026/4/22
墨田区両国3-22-6
【竣工】1993/3
【階建て】地上10F
【最寄駅】
両国駅1分
馬喰町駅11分
東日本橋駅13分
【耐震】 新耐震
【基準階】 80.62坪 【エントランス】 全日開放(制限有)
【駐車場】 - 【エレベーター】 2基
雷電ビルは、東京都墨田区両国3-22-6に位置する賃貸オフィスビルで、両国駅周辺の利便性に優れた立地が魅力です。最寄り駅はJR総武線の両国駅で徒歩1分、都営大江戸線の両国駅も徒歩6分圏内にあ…
図面 階数 面積 賃料(共益費込)
(坪単価)
保証金/敷金 礼金 入居可能日
1階 G 35.19坪
(116.34m2)
633,420
(18,000)
10ヶ月 1.0ヶ月 2026/7
上旬
THE PORTAL Ningyochoの外観
物件番号:010325
更新日:2026/4/17
中央区日本橋人形町2-25-15
【竣工】1993/1(改修:2026)
【階建て】地上10F
【最寄駅】
人形町駅3分
浜町駅6分
水天宮前駅7分
【耐震】 新耐震
【基準階】 41.72坪 【エントランス】
【駐車場】 有り 【エレベーター】 1基
MS日本橋ビルは、東京都中央区日本橋人形町2丁目に位置する賃貸オフィスビルです。人形町エリアの落ち着いた街並みの中にあり、複数の駅や路線を利用できる交通利便性の高い立地が特徴です。最寄…
図面 階数 面積 賃料(共益費込)
(坪単価)
保証金/敷金 礼金 入居可能日
1階 G 21.27坪
(70.31m2)
553,020
(26,000)
6ヶ月 2026/8
上旬
東邦沢口ビルの外観
物件番号:004162
更新日:2026/4/30
千代田区神田佐久間河岸82-1
【竣工】1992/12
【階建て】地上8F
【最寄駅】
秋葉原駅4分
岩本町駅6分
馬喰町駅10分
【耐震】 新耐震
【基準階】 34.14坪 【エントランス】 平日・土開放
【駐車場】 無し 【エレベーター】 1基
東邦沢口ビルは、東京都千代田区神田佐久間河岸に位置する賃貸オフィスビルです。1992年竣工の8階建ての建物で、新耐震基準に対応しています。東京メトロ日比谷線の秋葉原駅から徒歩4分、JR秋葉…
図面 階数 面積 賃料(共益費込)
(坪単価)
保証金/敷金 礼金 入居可能日
4階 G 34.14坪
(112.86m2)
512,100
(15,000)
10ヶ月 即日
THE PORTAL Nihombashi Eastの外観
物件番号:069343
更新日:2026/4/17
中央区日本橋小伝馬町21-1
【竣工】1992/12(改修:2019)
【階建て】地上9F 、地下1F
【最寄駅】
馬喰町駅2分
小伝馬町駅2分
東日本橋駅3分
【耐震】 新耐震
【基準階】 39.66坪 【エントランス】
【駐車場】 無し 【エレベーター】 1基
THE PORTAL Nihombashi Eastは、東京都中央区日本橋小伝馬町21-1に位置する賃貸オフィスビルです。複数の鉄道路線が利用可能な、非常に交通利便性に優れた立地が特徴です。最寄駅のJR総武線(快…
図面 階数 面積 賃料(共益費込)
(坪単価)
保証金/敷金 礼金 入居可能日
4階 G 39.66坪
(131.13m2)
872,520
(22,000)
6ヶ月 即日
ホリーズ日本橋ビルの外観
物件番号:009131
更新日:2026/4/28
中央区日本橋横山町5-2
【竣工】1992/9
【階建て】地上8F 、地下1F
【最寄駅】
馬喰横山駅1分
馬喰町駅3分
東日本橋駅3分
【耐震】 新耐震
【基準階】 37.96坪 【エントランス】 全日開放(24h)
【駐車場】 無し 【エレベーター】 1基
清洲橋通りに面した分かりやすい立地です!ワンフロア・ワンテナントで使いやすい貸室内です!機械警備を完備した貸事務所です!
図面 階数 面積 賃料(共益費込)
(坪単価)
保証金/敷金 礼金 入居可能日
4階 G 37.96坪
(125.49m2)
480,000
(12,645)
6ヶ月 未定
AD神田駅東口ビルの外観
物件番号:004900
更新日:2026/5/7
千代田区鍛冶町2-7-15
【竣工】1992/8
【階建て】地上9F
【最寄駅】
神田駅1分
新日本橋駅6分
岩本町駅7分
【耐震】 新耐震
【基準階】 39.82坪 【エントランス】
【駐車場】 無し 【エレベーター】 1基
神田駅東口から徒歩1分の好立地に位置するAD神田東口ビルは、モダンでエレガントなデザインが特徴の貸事務所です。住所は東京都千代田区鍛冶町2-7-15。JR山手線・中央線・京浜東北線、東京メトロ…
図面 階数 面積 賃料(共益費込)
(坪単価)
保証金/敷金 礼金 入居可能日
NEW6階 G 39.82坪
(131.64m2)
(未公開)
    賃料目安
  • 未定
(未公開) 2026/9/14
NEW7階 G 39.82坪
(131.64m2)
(未公開)
    賃料目安
  • 未定
(未公開) 2026/9/14
朝日ビル第3の外観
物件番号:045029
更新日:2026/5/1
中央区日本橋本石町4-4-12
【竣工】1992/7
【階建て】地上5F
【最寄駅】
新日本橋駅3分
三越前駅3分
神田駅4分
【耐震】 新耐震
【基準階】 20.00坪 【エントランス】 全日開放(制限有)
【駐車場】 無し 【エレベーター】 1基
光沢のある白いパネルタイルが印象的な清潔感のあるビル!室内は柱が無くスッキリした形状でレイアウト自在!機械警備システム対応でセキュリティ面も安心!
図面 階数 面積 賃料(共益費込)
(坪単価)
保証金/敷金 礼金 入居可能日
2階 G 20.00坪
(67.00m2)
320,000
(16,000)
8ヶ月 即日
For Life Office東神田ビルの外観
物件番号:004278
更新日:2026/4/27
千代田区東神田2-10-16
【竣工】1992/6
【階建て】地上9F
【最寄駅】
馬喰町駅5分
浅草橋駅7分
岩本町駅7分
【耐震】 新耐震
【基準階】 29.46坪 【エントランス】 全日開放(制限有)
【駐車場】 無し 【エレベーター】 1基
馬喰町駅から徒歩5分の賃貸オフィスビルです。For Life Office東神田ビルは、東京都千代田区東神田2-10-16に位置するオフィスビルで、1992年6月に竣工しました。地上9階建てのRC造(鉄筋コンクリ…
図面 階数 面積 賃料(共益費込)
(坪単価)
保証金/敷金 礼金 入居可能日
8階 G 29.46坪
(97.41m2)
765,960
(26,000)
2026/8
上旬
エムジー小伝馬町ビルの外観
物件番号:009209
更新日:2026/4/14
中央区日本橋小伝馬町7-10
【竣工】1992/6(改修:2019)
【階建て】地上8F
【最寄駅】
小伝馬町駅3分
馬喰町駅5分
馬喰横山駅6分
【耐震】 新耐震
【基準階】 27.38坪 【エントランス】 平日のみ開放
【駐車場】 無し 【エレベーター】 1基
東京都中央区日本橋小伝馬町7-10に位置する「エムジー小伝馬町ビル」は、東京メトロ日比谷線「小伝馬町駅」から徒歩3分という好立地にあるオフィスビルです。さらに、JR総武線快速の「馬喰町駅」…
図面 階数 面積 賃料(共益費込)
(坪単価)
保証金/敷金 礼金 入居可能日
4階 G 27.38坪
(90.51m2)
438,080
(16,000)
6ヶ月 2026/7
下旬

非公開物件の賃料目安アイコン

  • 8,000 円未満
  • 8,000 円以上~1.0 万円未満
  • 1.0 万以上~1.2 万円未満
  • 1.2 万以上~1.4 万円未満
  • 1.4 万以上~1.6 万円未満
  • 1.6 万以上~2.0 万円未満
  • 2.0 万以上~2.5 万円未満
  • 2.5 万以上~3.0 万円未満
  • 3.0 万円以上
  • 未定

※取引態様:媒介
※フロア図面と現況が異なる場合は現況を優先いたします。
※貸室内部の写真・貸室からの景色に関しては、現在の募集フロアと異なる場合がございます。

総数:84棟(115件)

(東京)の賃料相場

(東京)エリアの平均賃料

で募集している物件の、1坪あたりの賃料(共益費を含む)の平均価格です。
数値の右側にある矢印は、一週間前の数値と比較した結果を表しています。
賃料価格は毎日集計をしている最新の値です。

  • 2040 21,963円前後
  • 4060 26,437円前後
  • 60100 25,106円前後
  • 100坪以上 33,282円前後

(東京)エリアの募集賃料

の1坪あたりの賃料(共益費を含む)価格帯ごとの募集物件数です。
表の数値をクリックすると募集物件の一覧表が表示します。

【2026/05/10更新】

エリアが指定されていません。
募集賃料(円)8千未満0.8~1.0万1.0~1.2万1.2~1.4万1.4~1.6万1.6~2.0万2.0~2.5万2.5~3.0万3.0万以上