※ご入居を検討されているお客様向けの情報サイトです。
※駐車場単体・管理会社・テナントに関するお問合せにはお応えいたしかねます。

吉祥寺・三鷹の貸事務所・賃貸オフィス一覧

非公開物件の賃料目安アイコン

  • 8,000 円未満
  • 8,000 円以上~1.0 万円未満
  • 1.0 万以上~1.2 万円未満
  • 1.2 万以上~1.4 万円未満
  • 1.4 万以上~1.6 万円未満
  • 1.6 万以上~2.0 万円未満
  • 2.0 万以上~2.5 万円未満
  • 2.5 万以上~3.0 万円未満
  • 3.0 万円以上
  • 未定
総数:8棟(8件)
  • 1
平安ビルの外観
物件番号:083005
更新日:2026/1/20
武蔵野市吉祥寺本町2-28-7
【竣工】2025/2
【階建て】地上3F
【最寄駅】
吉祥寺駅9分
【耐震】 新耐震
【基準階】 30.21坪 【エントランス】 全日開放(24h)
【駐車場】 有り 【エレベーター】
平安ビルは、東京都武蔵野市吉祥寺本町2丁目に位置する地上3階建てのオフィスビルです。2025年2月に竣工した本物件は、現代の耐震基準に適合した新耐震構造の鉄筋コンクリート造(RC造)で設計さ…
図面 階数 面積 賃料(共益費込)
(坪単価)
保証金/敷金 礼金 入居可能日
2階 G 30.21坪
(99.88m2)
755,840
(25,020)
7,000,000
(231,711)
1.0ヶ月 相談
第Ⅱ大栄ビルの外観
物件番号:066586
更新日:2025/12/23
武蔵野市吉祥寺本町1-31-12
【竣工】2016/8
【階建て】地上8F 、地下1F
【最寄駅】
吉祥寺駅2分
【耐震】 新耐震
【基準階】 44.15坪 【エントランス】
【駐車場】 無し 【エレベーター】 1基
吉祥寺駅近くに位置する第Ⅱ大栄ビルは、現代的で清潔感溢れる賃貸オフィスビルです。武蔵野市吉祥寺本町1-31-12に所在し、JR中央線・京王井の頭線の吉祥寺駅から徒歩わずか2分という優れたロケー…
図面 階数 面積 賃料(共益費込)
(坪単価)
保証金/敷金 礼金 入居可能日
4階 G 44.15坪
(145.95m2)
1,147,900
(26,000)
6,622,500
(6ヶ月)
1.0ヶ月 相談
三鷹Renolikeビルの外観
物件番号:053975
更新日:2026/1/20
武蔵野市中町1-15-5
【竣工】1993/9
【階建て】地上7F 、地下1F
【最寄駅】
三鷹駅1分
【耐震】 新耐震
【基準階】 163.16坪 【エントランス】 平日・土開放
【駐車場】 有り 【エレベーター】 2基
三鷹Renolikeビルは、東京都武蔵野市中町に位置する地上7階・地下1階建てのオフィスビルです。1993年9月に竣工し、SRC造(鉄骨鉄筋コンクリート造)で建てられています。新耐震基準に適合してい…
図面 階数 面積 賃料(共益費込)
(坪単価)
保証金/敷金 礼金 入居可能日
2階 G 46.36坪
(153.26m2)
1,019,920
(22,000)
6,119,520
(6ヶ月)
1.0ヶ月 2026/4/1
サウスポイント三鷹ビルの外観
物件番号:051291
更新日:2026/1/5
三鷹市下連雀3-43-23
【竣工】1992/3
【階建て】地上8F 、地下1F
【最寄駅】
三鷹駅4分
【耐震】 新耐震
【基準階】 66.18坪 【エントランス】 平日・土開放
【駐車場】 有り 【エレベーター】 1基
サウスポイント三鷹ビルは、東京都三鷹市下連雀3-43-23に位置する地上8階・地下1階建ての賃貸オフィスビルです。1992年3月に竣工し、鉄骨鉄筋コンクリート造(SRC造)による堅牢な構造を採用して…
図面 階数 面積 賃料(共益費込)
(坪単価)
保証金/敷金 礼金 入居可能日
4階 G 66.18坪
(218.77m2)
(未公開)
    賃料目安
  • 1.6 万以上~2.0 万円未満
(未公開) 即日
武蔵野高和ビューハイツの外観
物件番号:083636
更新日:2025/12/25
武蔵野市中町1-23-17
【竣工】1981/2
【階建て】地上7F
【最寄駅】
三鷹駅3分
【耐震】 旧耐震
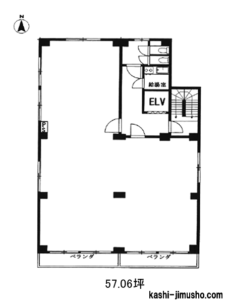
【基準階】 57.06坪 【エントランス】
【駐車場】 - 【エレベーター】 1基
三鷹駅から徒歩3分、中町新道沿いのわかりやすい立地です。通りの南向きに面した窓面で採光性良好です。独立性の高いワンフロア・ワンテナントの貸室です。
図面 階数 面積 賃料(共益費込)
(坪単価)
保証金/敷金 礼金 入居可能日
3階 G 57.06坪
(188.63m2)
763,400
(13,379)
3,420,000
(5ヶ月)
1.0ヶ月 2026/1
中旬
ロータスビルの外観
物件番号:040152
更新日:2025/12/25
武蔵野市吉祥寺本町1-10-10
【竣工】1980/3
【階建て】地上7F 、地下1F
【最寄駅】
吉祥寺駅5分
【耐震】 旧耐震
【基準階】 40.47坪 【エントランス】 全日開放(制限有)
【駐車場】 無し 【エレベーター】 1基
ロータスビルは、東京都武蔵野市吉祥寺本町1丁目に位置する地上7階・地下1階建てのオフィスビルです。1980年3月に竣工で、鉄骨鉄筋コンクリート造(SRC造)で建てられています。ビルは、JR中央線…
図面 階数 面積 賃料(共益費込)
(坪単価)
保証金/敷金 礼金 入居可能日
B1階 G 38.60坪
(127.61m2)
521,100
(13,500)
3,860,000
(10ヶ月)
相談
吉祥寺東興ビルの外観
物件番号:071022
更新日:2026/1/20
武蔵野市吉祥寺本町1-11-19
【竣工】1979/5
【階建て】地上4F
【最寄駅】
吉祥寺駅5分
【耐震】 旧耐震
【基準階】 【エントランス】 全日開放(24h)
【駐車場】 無し 【エレベーター】 1基
吉祥寺東興ビルは、東京都武蔵野市吉祥寺本町1丁目に位置する地上4階建てのビルです。1979年5月に竣工した本物件は、鉄筋コンクリート造(RC造)によって建築されています。交通アクセスについて…
図面 階数 面積 賃料(共益費込)
(坪単価)
保証金/敷金 礼金 入居可能日
1階 G 64.76坪
(214.08m2)
909,091
(14,038)
10,000,000
(154,416)
1.0ヶ月 即日
丸石ビルの外観
物件番号:040116
更新日:2026/1/20
武蔵野市吉祥寺本町1-12-5
【竣工】1972/9
【階建て】地上8F 、地下1F
【最寄駅】
吉祥寺駅5分
【耐震】 旧耐震
【基準階】 【エントランス】 全日開放(24h)
【駐車場】 無し 【エレベーター】 1基
丸石ビルは、東京都武蔵野市吉祥寺本町に位置する地上8階・地下1階建てのオフィスビルです。1972年9月に竣工し、SRC造(鉄骨鉄筋コンクリート造)を採用しています。SRC構造は耐震性・耐火性に優…
図面 階数 面積 賃料(共益費込)
(坪単価)
保証金/敷金 礼金 入居可能日
2-7階 G 67.83坪
(224.25m2)
1,213,000
(17,883)
11,800,000
(10ヶ月)
2.0ヶ月 即日

※取引態様:媒介
※フロア図面と現況が異なる場合は現況を優先いたします。
※貸室内部の写真・貸室からの景色に関しては、現在の募集フロアと異なる場合がございます。

総数:8棟(8件)
  • 1

吉祥寺・三鷹(東京)の賃料相場

吉祥寺・三鷹(東京)エリアの平均賃料

吉祥寺・三鷹で募集している物件の、1坪あたりの賃料(共益費を含む)の平均価格です。
数値の右側にある矢印は、一週間前の数値と比較した結果を表しています。
賃料価格は毎日集計をしている最新の値です。

  • 2040 18,037円前後
  • 4060 21,298円前後
  • 60100 16,125円前後
  • 100坪以上 19,333円前後

吉祥寺・三鷹(東京)エリアの募集賃料

吉祥寺・三鷹の1坪あたりの賃料(共益費を含む)価格帯ごとの募集物件数です。
表の数値をクリックすると募集物件の一覧表が表示します。

【2026/01/25更新】

募集賃料(円)8千未満0.8~1.0万1.0~1.2万1.2~1.4万1.4~1.6万1.6~2.0万2.0~2.5万2.5~3.0万3.0万以上
該当物件数   2棟
(2件)
1棟
(1件)
2棟
(2件)
1棟
(1件)
2棟
(2件)
 

吉祥寺・三鷹エリアのオフィス環境

井の頭恩賜公園

井の頭恩賜公園

吉祥寺・三鷹エリアは、東京都心に近接しながらも、緑豊かで落ち着いたビジネス環境が整ったエリアです。JR中央線・総武線、京王井の頭線が利用でき、新宿や東京駅へのアクセスが良好なため、都心の利便性を活かしながら、静かで快適なオフィス環境を求める企業に適しています。

吉祥寺エリアは、住みたい街ランキングで常に上位に入る人気のエリアで、商業施設やカフェが充実しています。駅周辺にはリノベーションオフィスやシェアオフィスが増えており、IT・デザイン・広告・クリエイティブ系の企業に人気があります。また、井の頭公園が近く、自然を感じながら働ける点も魅力です。

三鷹エリアは、吉祥寺に比べて落ち着いた雰囲気があり、コンパクトなオフィスやスタートアップ向けのオフィスが点在しています。特に、武蔵野市や三鷹市は文化・教育施設が多く、研究機関や教育関連の企業にも適した環境が整っています。また、三鷹の森ジブリ美術館などがあり、クリエイティブな雰囲気が漂うエリアでもあります

このエリアは、都市の利便性と自然のバランスが取れた環境が魅力で、働きやすさを重視する企業にとって理想的なビジネス拠点となるでしょう。吉祥寺・三鷹エリアで、あなたの企業にぴったりのオフィスを見つけてみませんか?