※ご入居を検討されているお客様向けの情報サイトです。
※駐車場単体・管理会社・テナントに関するお問合せにはお応えいたしかねます。

木場駅の(100~150坪)の貸事務所・賃貸オフィス一覧

木場駅は下町風情が残るエリア。賃貸ビルの数は少ない地域。

木場駅は、東京メトロ東西線の駅です。所在地は、東京都江東区木場5丁目になります。木場駅周辺には、オフィスと商業施設が融合された大型複合ビル「深川ギャザリア」があります。下町風情の残る街並みで、住居としても人気が高いエリアです。賃貸オフィスビルの数は少ない地域です。
このページでは、そんな木場駅周辺の100~150坪の貸事務所を表示しています。

総数:2棟(2件)
  • 1
木場岡本ビルの外観
物件番号:024650
更新日:2026/4/17
江東区木場5-6-35
【竣工】1990/4
【階建て】地上5F
【最寄駅】
木場駅2分
門前仲町駅14分
【耐震】 新耐震
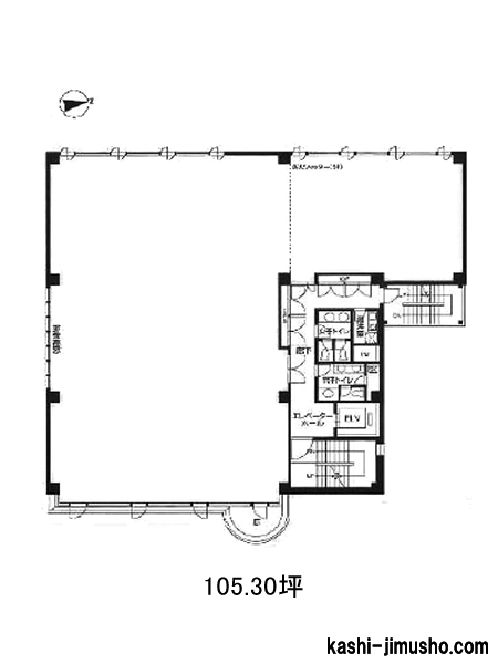
【基準階】 105.30坪 【エントランス】 平日・土開放
【駐車場】 有り 【エレベーター】 1基
木場駅近くに位置する木場岡本ビルは、江東区木場5-6-35にある賃貸オフィスビルで、利便性と快適性を兼ね備えた好立地の物件です。閑静なオフィス街に立地しており、落ち着いた周辺環境の中で業…
図面 階数 面積 賃料(共益費込)
(坪単価)
保証金/敷金 礼金 入居可能日
NEW2階 N 105.30坪
(348.10m2)
(未公開)
    賃料目安
  • 1.4 万以上~1.6 万円未満
12ヶ月 2026/9/1
亀井ビルの外観
物件番号:074939
更新日:2026/4/1
江東区木場2-17-13
【竣工】1995/7
【階建て】地上7F
【最寄駅】
木場駅2分
門前仲町駅11分
【耐震】 新耐震
【基準階】 115.60坪 【エントランス】 平日・土開放
【駐車場】 - 【エレベーター】 2基
三ツ目通りに面する視認性の良い物件です!ガラス張りの外観はグレード感があります!ワンフロア・ワンテナントで使い勝手良好です!
図面 階数 面積 賃料(共益費込)
(坪単価)
保証金/敷金 礼金 入居可能日
3階 G 115.76坪
(382.71m2)
1,736,400
(15,000)
10ヶ月 即日

非公開物件の賃料目安アイコン

  • 8,000 円未満
  • 8,000 円以上~1.0 万円未満
  • 1.0 万以上~1.2 万円未満
  • 1.2 万以上~1.4 万円未満
  • 1.4 万以上~1.6 万円未満
  • 1.6 万以上~2.0 万円未満
  • 2.0 万以上~2.5 万円未満
  • 2.5 万以上~3.0 万円未満
  • 3.0 万円以上
  • 未定

※取引態様:媒介
※フロア図面と現況が異なる場合は現況を優先いたします。
※貸室内部の写真・貸室からの景色に関しては、現在の募集フロアと異なる場合がございます。

総数:2棟(2件)
  • 1

(東京)の賃料相場

(東京)エリアの平均賃料

で募集している物件の、1坪あたりの賃料(共益費を含む)の平均価格です。
数値の右側にある矢印は、一週間前の数値と比較した結果を表しています。
賃料価格は毎日集計をしている最新の値です。

  • 2040 未調査
  • 4060 未調査
  • 60100 未調査
  • 100坪以上 未調査

(東京)エリアの募集賃料

の1坪あたりの賃料(共益費を含む)価格帯ごとの募集物件数です。
表の数値をクリックすると募集物件の一覧表が表示します。

【2026/04/22更新】

エリアが指定されていません。
募集賃料(円)8千未満0.8~1.0万1.0~1.2万1.2~1.4万1.4~1.6万1.6~2.0万2.0~2.5万2.5~3.0万3.0万以上