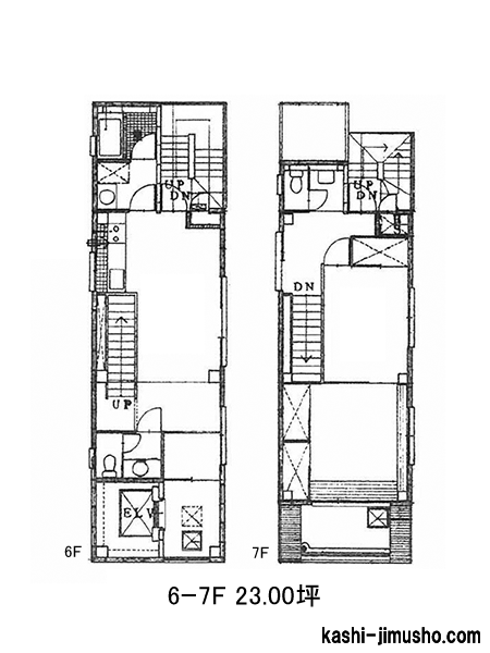
御成門駅の貸事務所・賃貸オフィス一覧

御成門駅は東京タワーに近く緑が多く静かな環境。
御成門駅は、都営三田線の駅です。所在地は、東京都港区西新橋3丁目になります。新橋駅と浜松町駅の中間にあり、神谷町駅、汐留駅も徒歩圏内です。東京タワーに近く、緑も多い静かな環境が広がります。
(東京)の賃料相場
(東京)エリアの平均賃料
で募集している物件の、1坪あたりの賃料(共益費を含む)の平均価格です。
数値の右側にある矢印は、一週間前の数値と比較した結果を表しています。
賃料価格は毎日集計をしている最新の値です。
- 20~40坪 未調査
- 40~60坪 未調査
- 60~100坪 未調査
- 100坪以上 未調査
(東京)エリアの募集賃料
の1坪あたりの賃料(共益費を含む)価格帯ごとの募集物件数です。
表の数値をクリックすると募集物件の一覧表が表示します。
【2025/12/06更新】