神南(渋谷区)の貸事務所・賃貸オフィス一覧
【2026/05/31更新】
神南(渋谷区)の貸事務所について
文化とビジネスが交わる神南エリア
神南エリアは、渋谷駅から徒歩圏内に位置しながらも落ち着いた雰囲気が漂う、文化とビジネスが融合するエリアです。最寄りはJR「渋谷駅」で、都心各方面へのアクセスも快適。エリア内には「NHK放送センター」「代々木公園」にも隣接し、文化・行政機関が集まる立地が特徴です。中小規模のオフィスが中心で、クリエイティブ系企業、IT企業、コンサルタント、士業事務所など多様な業種に適しています。利便性と落ち着いた執務環境を両立できる神南エリアは、安定した事業展開に適したロケーションです。
神南(渋谷区)の物件は、3棟(4件) 掲載されています。
神南周辺の貸事務所マップ
神南周辺マップです。物件のある位置にビルが表示されていますので、クリックして詳細情報をご覧ください。
ビルアイコンについて
マップ上に表示されているビルアイコンは、そのビルの最小坪単価に応じて色分けされています。
8,000 円未満
8,000 円以上~1.0 万円未満
1.0 万以上~1.2 万円未満
1.2 万以上~1.4 万円未満
1.4 万以上~1.6 万円未満
1.6 万以上~2.0 万円未満
2.0 万以上~2.5 万円未満
2.5 万以上~3.0 万円未満
3.0 万円以上
未定
神南周辺の地区を探す
神南周辺の貸事務所一覧
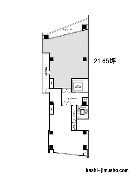
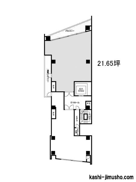
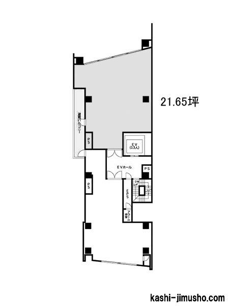
物件番号:079316
更新日:2026/5/21
渋谷区神南1-46-9
【竣工】2023/3
【階建て】地上6F 、地下1F
|
【最寄駅】
|
【耐震】 |
新耐震 |
| 【基準階】 |
93.04坪 |
【エントランス】 |
|
| 【駐車場】 |
- |
【エレベーター】 |
1基 |
テアトル神南は、東京都渋谷区神南1丁目46番9号に位置するハイグレードな賃貸オフィスビルです。この物件は、JR山手線、埼京線、東京メトロ銀座線、半蔵門線、副都心線の渋谷駅から徒歩7分という…

| 図面 |
階数 |
面積 |
賃料(共益費込) (坪単価) |
保証金/敷金 |
礼金 |
入居可能日 |
|
|
2階 |
N 93.04坪 (307.59m2) |
|
12ヶ月 |
無 |
2026/11/1 |
|
|
6階 |
N 93.04坪 (307.59m2) |
|
12ヶ月 |
無 |
2026/11/1 |
|
物件番号:074209
更新日:2026/5/11
渋谷区神南1-17-11
【竣工】2021/1
【階建て】地上6F 、地下1F
|
【最寄駅】
|
【耐震】 |
新耐震 |
| 【基準階】 |
120.26坪 |
【エントランス】 |
平日のみ開放 |
| 【駐車場】 |
無し |
【エレベーター】 |
2基 |
キューブ渋谷神南は、東京都渋谷区神南1-17-11に位置する、地上6階建て、地下1階のオフィスビルです。2021年1月に竣工したS造の建物で、新耐震基準に対応しており、地震対策の面でも安心して利用…

| 図面 |
階数 |
面積 |
賃料(共益費込) (坪単価) |
保証金/敷金 |
礼金 |
入居可能日 |
|
|
3階 |
N 123.71坪 (408.96m2) |
|
(未公開) |
無 |
即日 |
|
物件番号:075669
更新日:2026/5/28
渋谷区神南1-20-2
【竣工】1976/11(改修:2026)
【階建て】地上5F 、地下1F
|
【最寄駅】
|
【耐震】 |
旧耐震 |
| 【基準階】 |
|
【エントランス】 |
全日開放(制限有) |
| 【駐車場】 |
無し |
【エレベーター】 |
1基 |
おしゃれエリアにあるリニューアル済の物件です!リニューアルされている綺麗なエントランス!ガラス張りの外観でグレード感あふれるビル!

| 図面 |
階数 |
面積 |
賃料(共益費込) (坪単価) |
保証金/敷金 |
礼金 |
入居可能日 |
|
|
NEW2階 |
G 26.78坪 (88.56m2) |
1,167,000 (43,577) |
(未公開) |
無 |
即日 |
|
非公開物件の賃料目安アイコン
8,000 円未満
8,000 円以上~1.0 万円未満
1.0 万以上~1.2 万円未満
1.2 万以上~1.4 万円未満
1.4 万以上~1.6 万円未満
1.6 万以上~2.0 万円未満
2.0 万以上~2.5 万円未満
2.5 万以上~3.0 万円未満
3.0 万円以上
未定
※取引態様:媒介
※フロア図面と現況が異なる場合は現況を優先いたします。
※貸室内部の写真・貸室からの景色に関しては、現在の募集フロアと異なる場合がございます。