六本木(港区)の貸事務所・賃貸オフィス一覧
【2026/05/05更新】
六本木(港区)の貸事務所について
先進と国際性が融合する六本木エリア
六本木エリアは、東京メトロ日比谷線・都営大江戸線「六本木駅」を中心に、国内外の企業が集まる国際色豊かなビジネスエリアです。六本木ヒルズや東京ミッドタウンといったランドマークに象徴されるように、最先端のオフィスビルや商業施設が充実し、洗練された都市機能を備えています。外資系企業やIT・クリエイティブ業界の拠点としても人気が高く、スタートアップからグローバル企業まで幅広く対応可能。ビジネスとライフスタイルがシームレスに交差するこの街は、情報発信力や企業イメージを重視する事業者に最適です。六本木エリアは、未来志向の働き方を支える理想的なロケーションです。
六本木(港区)の物件は、31棟(45件) 掲載されています。
六本木周辺の貸事務所マップ
六本木周辺マップです。物件のある位置にビルが表示されていますので、クリックして詳細情報をご覧ください。
ビルアイコンについて
マップ上に表示されているビルアイコンは、そのビルの最小坪単価に応じて色分けされています。
8,000 円未満
8,000 円以上~1.0 万円未満
1.0 万以上~1.2 万円未満
1.2 万以上~1.4 万円未満
1.4 万以上~1.6 万円未満
1.6 万以上~2.0 万円未満
2.0 万以上~2.5 万円未満
2.5 万以上~3.0 万円未満
3.0 万円以上
未定
六本木周辺の地区を探す
六本木周辺の貸事務所一覧
物件番号:060860
更新日:2026/4/27
港区六本木3-4-35
【竣工】2021/10
【階建て】地上9F
|
【最寄駅】
|
【耐震】 |
新耐震 |
| 【基準階】 |
50.49坪 |
【エントランス】 |
オートロック |
| 【駐車場】 |
無し |
【エレベーター】 |
1基 |
六本木三幸ビルは、東京の中心地である港区六本木3丁目に位置し、2021年に竣工した新築のハイグレードオフィスビルです。最寄り駅は東京メトロ南北線の六本木駅で、徒歩4分圏内と非常にアクセス…

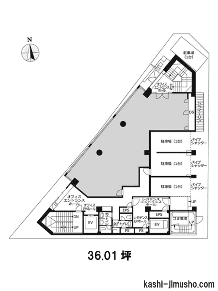
| 図面 |
階数 |
面積 |
賃料(共益費込) (坪単価) |
保証金/敷金 |
礼金 |
入居可能日 |
|
|
1階 |
G 47.57坪 (157.26m2) |
1,664,950 (35,007) |
10ヶ月 |
1.0ヶ月 |
2026/11 |
|
物件番号:073026
更新日:2026/4/16
港区六本木7-8-7
【竣工】2020/3
【階建て】地上8F
|
【最寄駅】
|
【耐震】 |
新耐震 |
| 【基準階】 |
20.52坪 |
【エントランス】 |
オートロック |
| 【駐車場】 |
無し |
【エレベーター】 |
1基 |
複数路線が利用可能で交通アクセス良好です。管理の行き届いた清潔感のあるエントランスです。ワンフロア・ワンテナントなので使い勝手の良い貸室です。

| 図面 |
階数 |
面積 |
賃料(共益費込) (坪単価) |
保証金/敷金 |
礼金 |
入居可能日 |
|
|
5階 |
G 20.52坪 (67.83m2) |
677,160 (33,000) |
4ヶ月 |
無 |
即日 |
|
物件番号:068229
更新日:2026/4/23
港区六本木7-18-15
【竣工】2017/8
【階建て】地上12F
|
【最寄駅】
|
【耐震】 |
新耐震 |
| 【基準階】 |
23.49坪 |
【エントランス】 |
|
| 【駐車場】 |
無し |
【エレベーター】 |
1基 |
複数路線が利用可能で交通アクセス抜群!視認性良く来店型向き!ワンフロア・ワンテナントの使い勝手良好なオフィス空間!

| 図面 |
階数 |
面積 |
賃料(共益費込) (坪単価) |
保証金/敷金 |
礼金 |
入居可能日 |
|
|
7階 |
G 24.04坪 (79.48m2) |
468,780 (19,500) |
6ヶ月 |
1.0ヶ月 |
即日 |
|
物件番号:062750
更新日:2026/4/24
港区六本木1-4-5
【竣工】2013
【階建て】地上20F 、地下3F
|
【最寄駅】
|
【耐震】 |
新耐震+制震 |
| 【基準階】 |
569.50坪 |
【エントランス】 |
全日開放(制限有) |
| 【駐車場】 |
有り |
【エレベーター】 |
14基 |
アークヒルズサウスタワーは、港区六本木1丁目4番5号に位置する大型ハイグレードオフィスビルです。最寄駅は東京メトロ南北線・六本木一丁目駅で、駅直結のように徒歩1分圏内でアクセスできる利…

| 図面 |
階数 |
面積 |
賃料(共益費込) (坪単価) |
保証金/敷金 |
礼金 |
入居可能日 |
|
|
14階 |
N 69.90坪 (231.08m2) |
|
(未公開) |
無 |
2027/4 予定 |
|
物件番号:057901
更新日:2026/5/1
港区六本木1-9-10
【竣工】2012/8
【階建て】地上47F 、地下4F
|
【最寄駅】
|
【耐震】 |
新耐震+制震 |
| 【基準階】 |
624.00坪 |
【エントランス】 |
平日・土開放 |
| 【駐車場】 |
有り |
【エレベーター】 |
12基 |
アークヒルズ仙石山森タワーは、東京都港区六本木1-9-10に位置する賃貸オフィスビルです。最寄り駅は南北線の六本木一丁目駅から徒歩5分、日比谷線の神谷町駅から徒歩8分と、都心の交通の便が良…

| 図面 |
階数 |
面積 |
賃料(共益費込) (坪単価) |
保証金/敷金 |
礼金 |
入居可能日 |
|
|
NEW29階 |
N 25.70坪 (84.96m2) |
|
(未公開) |
無 |
2027/2 上旬 |
|
|
34階 |
N 328.20坪 (1084.96m2) |
|
(未公開) |
無 |
即日 |
|
|
35階 |
N 469.50坪 (1552.07m2) |
|
(未公開) |
無 |
即日 |
|
物件番号:037623
更新日:2026/4/24
港区六本木6-10-1
【竣工】2003/4
【階建て】地上54F 、地下6F
|
【最寄駅】
|
【耐震】 |
新耐震+制震 |
| 【基準階】 |
1360.00坪 |
【エントランス】 |
全日開放(制限有) |
| 【駐車場】 |
有り |
【エレベーター】 |
41基 |
港区六本木6-10-1にある、六本木ヒルズ森タワーです。東京メトロ日比谷線の六本木駅と直結しています。アクセス抜群の立地です。徒歩4分圏内で都営大江戸線の六本木駅、徒歩8分圏内で東京メトロ…

| 図面 |
階数 |
面積 |
賃料(共益費込) (坪単価) |
保証金/敷金 |
礼金 |
入居可能日 |
|
|
20階 |
N 280.00坪 (925.62m2) |
|
(未公開) |
無 |
即日 |
|
|
29階 |
N 357.90坪 (1183.15m2) |
|
(未公開) |
無 |
未定 |
|
物件番号:065076
更新日:2026/4/8
港区六本木6-11-1
【竣工】2001/7
【階建て】地上15F 、地下2F
|
【最寄駅】
|
【耐震】 |
新耐震+制震 |
| 【基準階】 |
458.70坪 |
【エントランス】 |
|
| 【駐車場】 |
有り |
【エレベーター】 |
6基 |
六本木ヒルズゲートタワーは、東京都港区六本木6-11-1に位置する地上15階建て地下2階のオフィスビルです。2001年7月に竣工し、S造で建てられています。新耐震基準に適合しており、さらに制震構造…

| 図面 |
階数 |
面積 |
賃料(共益費込) (坪単価) |
保証金/敷金 |
礼金 |
入居可能日 |
|
|
3階 |
G 368.00坪 (1216.53m2) |
|
(未公開) |
無 |
2027/4 中旬 |
|
|
4階 |
G 458.70坪 (1516.37m2) |
|
(未公開) |
無 |
2027/4 中旬 |
|
物件番号:037624
更新日:2026/5/1
港区六本木6-7-6
【竣工】1999/2
【階建て】地上7F 、地下1F
|
【最寄駅】
|
【耐震】 |
新耐震 |
| 【基準階】 |
123.70坪 |
【エントランス】 |
オートロック |
| 【駐車場】 |
有り |
【エレベーター】 |
2基 |
六本木アネックスは、東京都港区六本木6-7-6に位置するハイグレード賃貸オフィスビルです。東京メトロ日比谷線と都営大江戸線の六本木駅からわずか1分と、抜群のアクセス環境を誇ります。1999年2…

| 図面 |
階数 |
面積 |
賃料(共益費込) (坪単価) |
保証金/敷金 |
礼金 |
入居可能日 |
|
|
3階 |
N 123.70坪 (408.93m2) |
|
(未公開) |
無 |
2026/9 上旬 |
|
物件番号:011715
更新日:2026/4/24
港区六本木3-16-35
【竣工】1994/3
【階建て】地上7F 、地下2F
|
【最寄駅】
|
【耐震】 |
新耐震 |
| 【基準階】 |
|
【エントランス】 |
オートロック |
| 【駐車場】 |
有り |
【エレベーター】 |
4基 |
イースト六本木ビルは、東京都港区六本木3丁目に位置するオフィスビルで、六本木の中心に立地しています。1994年3月に竣工したこのビルは、地上7階、地下2階建ての鉄骨鉄筋コンクリート造(SRC造…

| 図面 |
階数 |
面積 |
賃料(共益費込) (坪単価) |
保証金/敷金 |
礼金 |
入居可能日 |
|
|
3階 |
N 427.93坪 (1414.65m2) |
|
12ヶ月 |
無 |
即日 |
|
|
4階 |
N 124.33坪 (411.01m2) |
|
12ヶ月 |
無 |
即日 |
|
物件番号:011664
更新日:2026/5/1
港区六本木3-16-33
【竣工】1993/1
【階建て】地上11F 、地下3F
|
【最寄駅】
|
【耐震】 |
新耐震 |
| 【基準階】 |
321.51坪 |
【エントランス】 |
平日・土開放 |
| 【駐車場】 |
有り |
【エレベーター】 |
5基 |
青葉六本木ビルは東京都港区六本木3-16-33にある賃貸オフィスビルです。六本木駅から出て外苑東通り沿い角地に位置しており、視認性が高く案内しやすい立地です。周辺は飲食店やコンビニエンスス…

| 図面 |
階数 |
面積 |
賃料(共益費込) (坪単価) |
保証金/敷金 |
礼金 |
入居可能日 |
|
|
2階 |
N 105.33坪 (348.20m2) |
|
(未公開) |
無 |
2026/6/1 |
|
|
3階 |
N 194.05坪 (641.49m2) |
|
(未公開) |
無 |
即日 |
|
物件番号:037677
更新日:2026/4/3
港区六本木6-8-10
【竣工】1992/8
【階建て】地上6F 、地下2F
|
【最寄駅】
|
【耐震】 |
新耐震 |
| 【基準階】 |
425.62坪 |
【エントランス】 |
全日開放(制限有) |
| 【駐車場】 |
有り |
【エレベーター】 |
3基 |
ステップ六本木は、港区六本木6丁目に位置する賃貸オフィスビルです。最寄りの六本木駅(東京メトロ日比谷線・都営大江戸線)から徒歩3分という好立地にあり、複数路線が利用可能でアクセスに優…

| 図面 |
階数 |
面積 |
賃料(共益費込) (坪単価) |
保証金/敷金 |
礼金 |
入居可能日 |
|
|
4階 |
N 231.65坪 (765.79m2) |
|
10ヶ月 |
無 |
即日 |
|
物件番号:035598
更新日:2026/4/30
港区六本木1-7-27
【竣工】1992/1
【階建て】地上5F 、地下2F
|
【最寄駅】
|
【耐震】 |
新耐震 |
| 【基準階】 |
201.00坪 |
【エントランス】 |
|
| 【駐車場】 |
有り |
【エレベーター】 |
2基 |
六本木一丁目駅からわずか徒歩1分、ビジネスの中心地に佇む「全特六本木ビルEAST棟」は、御影石とガラスが織りなす重厚かつ洗練された外観が印象的なオフィスビルです。明るく開放感あるガラス張…

| 図面 |
階数 |
面積 |
賃料(共益費込) (坪単価) |
保証金/敷金 |
礼金 |
入居可能日 |
|
|
3階 |
N 64.20坪 (212.23m2) |
1,412,400 (22,000) |
10ヶ月 |
無 |
即日 |
|
物件番号:011675
更新日:2026/4/30
港区六本木1-7-27
【竣工】1992/1
【階建て】地上9F 、地下2F
|
【最寄駅】
|
【耐震】 |
新耐震 |
| 【基準階】 |
96.36坪 |
【エントランス】 |
平日のみ開放 |
| 【駐車場】 |
有り |
【エレベーター】 |
2基 |
全特六本木ビルWEST棟は、東京都港区六本木一丁目に所在する、地上9階・地下2階建ての機能性と安定性を兼ね備えたオフィスビルです。1992年1月に竣工し、構造はSRC造。新耐震基準に適合しており…

| 図面 |
階数 |
面積 |
賃料(共益費込) (坪単価) |
保証金/敷金 |
礼金 |
入居可能日 |
|
|
1階 |
N 87.33坪 (288.69m2) |
1,921,260 (22,000) |
10ヶ月 |
無 |
2026/6/15 |
|
物件番号:043351
更新日:2026/4/23
港区六本木3-3-27
【竣工】1991/11
【階建て】地上4F 、地下2F
|
【最寄駅】
|
【耐震】 |
新耐震 |
| 【基準階】 |
102.45坪 |
【エントランス】 |
オートロック |
| 【駐車場】 |
有り |
【エレベーター】 |
1基 |
スハラ六本木ビルは、東京都港区六本木3丁目に位置する地上4階・地下2階建ての賃貸オフィスビルです。1991年11月に竣工し、構造は鉄筋コンクリート造(RC造)で設計されています。新耐震基準に適…

| 図面 |
階数 |
面積 |
賃料(共益費込) (坪単価) |
保証金/敷金 |
礼金 |
入居可能日 |
|
|
4階 |
G 24.52坪 (81.05m2) |
563,960 (23,000) |
6ヶ月 |
無 |
即日 |
|
物件番号:011652
更新日:2026/5/1
港区六本木5-2-3
【竣工】1990/11
【階建て】地上9F
|
【最寄駅】
|
【耐震】 |
新耐震 |
| 【基準階】 |
48.09坪 |
【エントランス】 |
全日開放(24h) |
| 【駐車場】 |
無し |
【エレベーター】 |
2基 |
マガジンハウス六本木ビルは、港区六本木5丁目に位置する賃貸オフィスビルです。住所は港区六本木5-2-3で、最寄駅は東京メトロ日比谷線・都営大江戸線の六本木駅です。徒歩2分圏内という非常に優…

| 図面 |
階数 |
面積 |
賃料(共益費込) (坪単価) |
保証金/敷金 |
礼金 |
入居可能日 |
|
|
2階 |
G 45.06坪 (148.96m2) |
|
10ヶ月 |
無 |
即日 |
|
物件番号:011707
更新日:2026/4/8
港区六本木6-17-1
【竣工】1989/5
【階建て】地上7F
|
【最寄駅】
|
【耐震】 |
新耐震 |
| 【基準階】 |
40.00坪 |
【エントランス】 |
|
| 【駐車場】 |
有り |
【エレベーター】 |
1基 |
蟻川ビルは、東京都港区六本木6丁目に建つ地上7階建ての賃貸オフィスビルです。1989年5月に竣工し、構造は鉄骨鉄筋コンクリート造(SRC造)で設計されています。新耐震基準に適合しており、安全…

| 図面 |
階数 |
面積 |
賃料(共益費込) (坪単価) |
保証金/敷金 |
礼金 |
入居可能日 |
|
|
4階 |
G 40.08坪 (132.50m2) |
|
12ヶ月 |
無 |
即日 |
|
物件番号:011769
更新日:2026/4/23
港区六本木3-3-7
【竣工】1987/4
【階建て】地上5F 、地下1F
|
【最寄駅】
|
【耐震】 |
新耐震 |
| 【基準階】 |
30.72坪 |
【エントランス】 |
|
| 【駐車場】 |
無し |
【エレベーター】 |
1基 |
六本木NKビルは、港区六本木3丁目に位置する賃貸オフィスビルです。住所は港区六本木3-3-7で、最寄駅の東京メトロ南北線・六本木一丁目駅から徒歩3分という優れた立地にあります。さらに徒歩7分…

| 図面 |
階数 |
面積 |
賃料(共益費込) (坪単価) |
保証金/敷金 |
礼金 |
入居可能日 |
|
|
4階 |
G 30.72坪 (101.55m2) |
491,520 (16,000) |
8ヶ月 |
無 |
即日 |
|
物件番号:011682
更新日:2026/4/13
港区六本木3-16-14
【竣工】1986/7
【階建て】地上7F 、地下1F
|
【最寄駅】
|
【耐震】 |
新耐震 |
| 【基準階】 |
20.46坪 |
【エントランス】 |
全日開放(制限有) |
| 【駐車場】 |
無し |
【エレベーター】 |
1基 |
大通りに面しているので視認性に優れています。複数路線が利用可能で交通アクセス良好です。ワンフロア・ワンテナントなので使い勝手の良い貸室です。

| 図面 |
階数 |
面積 |
賃料(共益費込) (坪単価) |
保証金/敷金 |
礼金 |
入居可能日 |
|
|
7階 |
G 20.46坪 (67.64m2) |
390,837 (19,102) |
6ヶ月 |
無 |
2026/5 上旬 |
|
物件番号:011763
更新日:2026/5/1
港区六本木3-15-21
【竣工】1986/5
【階建て】地上8F 、地下1F
|
【最寄駅】
|
【耐震】 |
新耐震 |
| 【基準階】 |
29.94坪 |
【エントランス】 |
オートロック |
| 【駐車場】 |
無し |
【エレベーター】 |
1基 |
柱が無くスッキリした形状なので、レイアウト自在です!シンプルで使いやすい事務所です!ワンフロア・ワンテナントの使い勝手良好なオフィス空間です!

| 図面 |
階数 |
面積 |
賃料(共益費込) (坪単価) |
保証金/敷金 |
礼金 |
入居可能日 |
|
|
4階 |
G 29.94坪 (98.98m2) |
592,812 (19,800) |
8ヶ月 |
無 |
即日 |
|
|
7階 |
G 51.15坪 (169.10m2) |
1,012,770 (19,800) |
8ヶ月 |
無 |
即日 |
|
物件番号:011824
更新日:2026/4/10
港区六本木5-18-20
【竣工】1986/4
【階建て】地上6F 、地下1F
|
【最寄駅】
|
【耐震】 |
新耐震 |
| 【基準階】 |
|
【エントランス】 |
|
| 【駐車場】 |
無し |
【エレベーター】 |
1基 |
六本木駅6分!複数路線利用可能!周辺は大通りから入った落ち着いた環境!オートロックでセキュリティ対策万全!

| 図面 |
階数 |
面積 |
賃料(共益費込) (坪単価) |
保証金/敷金 |
礼金 |
入居可能日 |
|
|
3階 |
G 28.01坪 (92.60m2) |
500,000 (17,851) |
5ヶ月 |
1.0ヶ月 |
即日 |
|
物件番号:011714
更新日:2026/5/1
港区六本木7-4-5
【竣工】1985/12
【階建て】地上5F 、地下1F
|
【最寄駅】
|
【耐震】 |
新耐震 |
| 【基準階】 |
36.69坪 |
【エントランス】 |
|
| 【駐車場】 |
無し |
【エレベーター】 |
1基 |
御影石で高級感のある外観デザイン!国立新美術館並びのにぎやかなエリア!この大きさでは希少な男女別トイレ!

| 図面 |
階数 |
面積 |
賃料(共益費込) (坪単価) |
保証金/敷金 |
礼金 |
入居可能日 |
|
|
2階 |
G 38.73坪 (128.03m2) |
968,251 (25,000) |
6,700,000 (172,993) |
1.0ヶ月 |
即日 |
|
物件番号:011911
更新日:2026/4/17
港区六本木7-8-8
【竣工】1985/6
【階建て】地上10F 、地下1F
|
【最寄駅】
|
【耐震】 |
新耐震 |
| 【基準階】 |
36.23坪 |
【エントランス】 |
平日のみ開放 |
| 【駐車場】 |
無し |
【エレベーター】 |
1基 |
大通りに面しているので視認性に優れています。管理の行き届いた清潔感のあるエントランスです。ワンフロア・ワンテナントなので使い勝手の良い貸室です。

| 図面 |
階数 |
面積 |
賃料(共益費込) (坪単価) |
保証金/敷金 |
礼金 |
入居可能日 |
|
|
7階 |
G 36.23坪 (119.77m2) |
941,979 (26,000) |
8ヶ月 |
無 |
2026/6 予定 |
|
物件番号:076750
更新日:2026/4/28
港区六本木7-13-9
【竣工】1984/7
【階建て】地上5F
|
【最寄駅】
|
【耐震】 |
新耐震 |
| 【基準階】 |
25.72坪 |
【エントランス】 |
全日開放(24h) |
| 【駐車場】 |
無し |
【エレベーター】 |
1基 |
六本木高橋ビルは、東京都港区六本木7丁目に位置する地上5階建てのオフィスビルです。1984年7月に竣工し、S造(鉄骨造)の堅牢な構造により、新耐震基準に適合した設計がなされています。都営大…

| 図面 |
階数 |
面積 |
賃料(共益費込) (坪単価) |
保証金/敷金 |
礼金 |
入居可能日 |
|
|
3階 |
G 25.72坪 (85.03m2) |
385,800 (15,000) |
6ヶ月 |
2.0ヶ月 |
即日 |
|
物件番号:011876
更新日:2026/4/8
港区六本木7-4-1
【竣工】1979/8
【階建て】地上7F 、地下1F
|
【最寄駅】
|
【耐震】 |
旧耐震 |
| 【基準階】 |
20.34坪 |
【エントランス】 |
|
| 【駐車場】 |
無し |
【エレベーター】 |
1基 |
外苑東通りに面した小型オフィス!清潔感があり好印象なエントランス!ストレスフリーなワンフロア・ワンテナント!

| 図面 |
階数 |
面積 |
賃料(共益費込) (坪単価) |
保証金/敷金 |
礼金 |
入居可能日 |
|
|
6階 |
G 20.34坪 (67.24m2) |
447,480 (22,000) |
6ヶ月 |
無 |
即日 |
|
物件番号:059831
更新日:2026/4/24
港区六本木5-16-4
【竣工】1976/7
【階建て】地上6F 、地下1F
|
【最寄駅】
|
【耐震】 |
旧耐震 |
| 【基準階】 |
25.16坪 |
【エントランス】 |
平日のみ開放 |
| 【駐車場】 |
無し |
【エレベーター】 |
1基 |
六本木駅6分!複数路線利用可!外苑東通り沿いの立地、視認性良好!OAフロア・光ファイバー完備の充実したOA環境!

| 図面 |
階数 |
面積 |
賃料(共益費込) (坪単価) |
保証金/敷金 |
礼金 |
入居可能日 |
|
|
6階 |
G 25.16坪 (83.17m2) |
550,000 (21,860) |
6ヶ月 |
無 |
即日 |
|
物件番号:011865
更新日:2026/5/1
港区六本木3-11-6
【竣工】1973/11
【階建て】地上6F 、地下1F
|
【最寄駅】
|
【耐震】 |
旧耐震 |
| 【基準階】 |
40.00坪 |
【エントランス】 |
|
| 【駐車場】 |
無し |
【エレベーター】 |
1基 |
六本木駅から徒歩1分と通いやすい立地!外苑東通り沿い!視認性抜群の賃貸オフィスビル!ワンフロア・ワンテナントの使い勝手良好なオフィス空間!

| 図面 |
階数 |
面積 |
賃料(共益費込) (坪単価) |
保証金/敷金 |
礼金 |
入居可能日 |
|
|
7階 |
G 33.80坪 (111.74m2) |
1,690,000 (50,000) |
6ヶ月 |
1.0ヶ月 |
即日 |
|
物件番号:081833
更新日:2026/4/23
港区六本木6-7-9
【竣工】1971/4
【階建て】地上4F 、地下1F
|
【最寄駅】
|
【耐震】 |
旧耐震 |
| 【基準階】 |
15.98坪 |
【エントランス】 |
全日開放(24h) |
| 【駐車場】 |
無し |
【エレベーター】 |
無 |
川本ビルは、東京都港区六本木6-7-9に位置する、アクセス便利なオフィスビルです。最寄り駅は都営大江戸線六本木駅から徒歩2分、日比谷線六本木駅から徒歩3分と、複数路線からのアクセスが極めて…

| 図面 |
階数 |
面積 |
賃料(共益費込) (坪単価) |
保証金/敷金 |
礼金 |
入居可能日 |
|
|
3-4階 |
G 32.67坪 (108.02m2) |
560,390 (17,154) |
6ヶ月 |
1.0ヶ月 |
即日 |
|
物件番号:079265
更新日:2026/4/28
港区六本木4-1-2
【竣工】1971/1
【階建て】地上7F
|
【最寄駅】
|
【耐震】 |
旧耐震 |
| 【基準階】 |
|
【エントランス】 |
オートロック |
| 【駐車場】 |
無し |
【エレベーター】 |
1基 |
六本木一丁目駅から徒歩4分!複数路線が利用可能!六本木通り沿いにあるため視認性抜群!ワンフロア・ワンテナントの使い勝手良好なオフィス空間!

| 図面 |
階数 |
面積 |
賃料(共益費込) (坪単価) |
保証金/敷金 |
礼金 |
入居可能日 |
|
|
4階 |
G 25.00坪 (82.50m2) |
800,000 (32,000) |
3ヶ月 |
1.0ヶ月 |
即日 |
|
物件番号:011717
更新日:2026/4/8
港区六本木6-2-31
【竣工】1971/1(改修:2004)
【階建て】地上18F 、地下4F
|
【最寄駅】
|
【耐震】 |
旧耐震+補強済 or 基準OK |
| 【基準階】 |
219.70坪 |
【エントランス】 |
全日開放(制限有) |
| 【駐車場】 |
有り |
【エレベーター】 |
6基 |
六本木ヒルズノースタワーは、東京都港区六本木6-2-31に位置する、六本木ヒルズ複合施設の一部を成す高層オフィスビルです。最寄り駅は東京メトロ日比谷線六本木駅から徒歩1分、都営大江戸線六本…

| 図面 |
階数 |
面積 |
賃料(共益費込) (坪単価) |
保証金/敷金 |
礼金 |
入居可能日 |
|
|
7階 |
N 23.20坪 (76.69m2) |
|
(未公開) |
無 |
未定 |
|
|
7階 |
N 41.40坪 (137.52m2) |
|
(未公開) |
無 |
2026/9 予定 |
|
|
14階 |
N 223.80坪 (739.84m2) |
|
(未公開) |
無 |
2026/8 予定 |
|
物件番号:038157
更新日:2026/4/21
港区六本木2-2-6
【竣工】1964/11(改修:2023)
【階建て】地上7F 、地下1F
|
【最寄駅】
|
【耐震】 |
旧耐震+補強済 or 基準OK |
| 【基準階】 |
70.41坪 |
【エントランス】 |
全日開放(制限有) |
| 【駐車場】 |
有り |
【エレベーター】 |
1基 |
福吉町ビルは、東京都港区六本木2丁目に位置する、六本木エリアでも歴史あるオフィスビルの一つです。1964年11月に竣工し、2023年にリノベーションが行われたこのビルは、地上7階、地下1階建ての…

| 図面 |
階数 |
面積 |
賃料(共益費込) (坪単価) |
保証金/敷金 |
礼金 |
入居可能日 |
|
|
1階 |
G 39.31坪 (129.95m2) |
1,159,645 (29,500) |
6ヶ月 |
1.0ヶ月 |
2026/9 予定 |
|
|
2階 |
N 34.15坪 (112.89m2) |
495,175 (14,500) |
6ヶ月 |
1.0ヶ月 |
2026/9 予定 |
|
|
2階 |
N 38.50坪 (127.27m2) |
558,250 (14,500) |
6ヶ月 |
1.0ヶ月 |
2026/6 予定 |
|
非公開物件の賃料目安アイコン
8,000 円未満
8,000 円以上~1.0 万円未満
1.0 万以上~1.2 万円未満
1.2 万以上~1.4 万円未満
1.4 万以上~1.6 万円未満
1.6 万以上~2.0 万円未満
2.0 万以上~2.5 万円未満
2.5 万以上~3.0 万円未満
3.0 万円以上
未定
※取引態様:媒介
※フロア図面と現況が異なる場合は現況を優先いたします。
※貸室内部の写真・貸室からの景色に関しては、現在の募集フロアと異なる場合がございます。