芝大門(港区)の貸事務所・賃貸オフィス一覧
【2026/05/07更新】
芝大門(港区)の貸事務所について
都心の機能性が光る芝大門エリア
芝大門エリアは、都営浅草線・大江戸線「大門駅」やJR「浜松町駅」から徒歩圏内にあり、交通アクセスに非常に優れたオフィスエリアです。東京タワーや芝公園も近く、都心にいながらも緑を感じられる落ち着いた環境が魅力です。周辺には飲食店やビジネスホテルも充実しており、来客対応や出張の多い企業にも最適。中小規模のオフィスビルが多く、士業やスタートアップ、支店開設にも適した立地となっています。都心の利便性と快適な就業環境を兼ね備えた芝大門エリアは、実用性と働きやすさを両立できる注目のビジネスロケーションです。
芝大門(港区)の物件は、20棟(35件) 掲載されています。
芝大門周辺の貸事務所マップ
芝大門周辺マップです。物件のある位置にビルが表示されていますので、クリックして詳細情報をご覧ください。
ビルアイコンについて
マップ上に表示されているビルアイコンは、そのビルの最小坪単価に応じて色分けされています。
8,000 円未満
8,000 円以上~1.0 万円未満
1.0 万以上~1.2 万円未満
1.2 万以上~1.4 万円未満
1.4 万以上~1.6 万円未満
1.6 万以上~2.0 万円未満
2.0 万以上~2.5 万円未満
2.5 万以上~3.0 万円未満
3.0 万円以上
未定
芝大門周辺の地区を探す
芝大門周辺の貸事務所一覧
物件番号:079266
更新日:2026/4/17
港区芝大門2-3-7
【竣工】2022/5
【階建て】地上11F
|
【最寄駅】
|
【耐震】 |
新耐震 |
| 【基準階】 |
20.62坪 |
【エントランス】 |
オートロック |
| 【駐車場】 |
有り |
【エレベーター】 |
1基 |
港区芝大門に位置するVILLA 芝大門は、落ち着いたグレーを基調としたシックな印象の賃貸オフィスビルです。最寄りの大門駅(都営浅草線・都営大江戸線)から徒歩わずか2分の好立地にあり、徒歩7分…

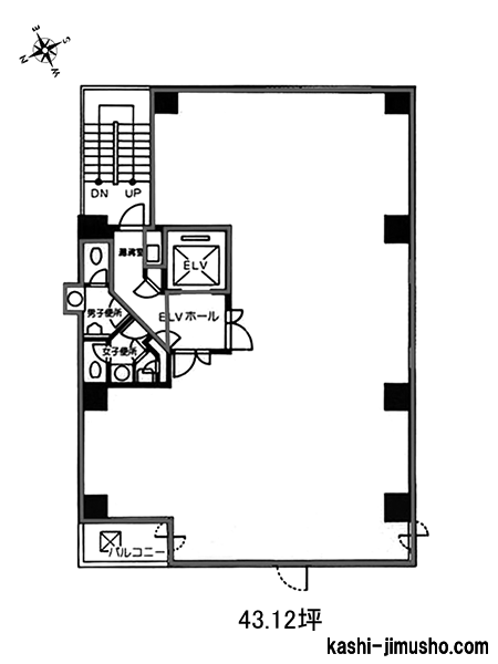
| 図面 |
階数 |
面積 |
賃料(共益費込) (坪単価) |
保証金/敷金 |
礼金 |
入居可能日 |
|
|
4階 |
G 20.62坪 (68.15m2) |
577,364 (28,000) |
6ヶ月 |
無 |
即日 |
|
物件番号:076513
更新日:2026/4/8
港区芝大門2-9-4
【竣工】2021/5
【階建て】地上9F
|
【最寄駅】
|
【耐震】 |
新耐震 |
| 【基準階】 |
30.00坪 |
【エントランス】 |
オートロック |
| 【駐車場】 |
無し |
【エレベーター】 |
1基 |
大門・浜松町エリア。緑の木立ちのような外観デザインが美しい2021年竣工の築浅オフィスビル。VORT芝大門Ⅲは港区芝大門2丁目、都営地下鉄浅草線・大江戸線の大門駅から徒歩3分圏内でアクセス可能…

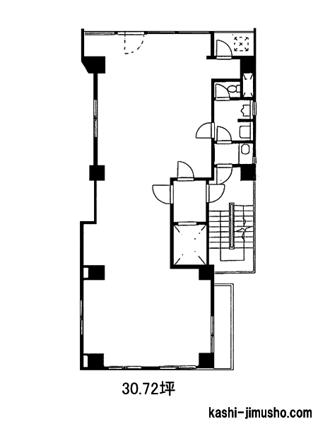
| 図面 |
階数 |
面積 |
賃料(共益費込) (坪単価) |
保証金/敷金 |
礼金 |
入居可能日 |
|
|
3階 |
G 29.99坪 (99.14m2) |
|
5ヶ月 |
1.0ヶ月 |
2026/10/1 |
|
物件番号:063662
更新日:2026/4/7
港区芝大門1-10-17
【竣工】2014/9
【階建て】地上9F
|
【最寄駅】
|
【耐震】 |
新耐震 |
| 【基準階】 |
55.33坪 |
【エントランス】 |
オートロック |
| 【駐車場】 |
無し |
【エレベーター】 |
1基 |
PMO芝大門は、港区芝大門1丁目に位置するハイグレードなオフィスビルです。最寄り駅は都営三田線の御成門駅(徒歩3分)と、都営浅草線・都営大江戸線の大門駅(徒歩4分)。さらに、JR山手線・京…

| 図面 |
階数 |
面積 |
賃料(共益費込) (坪単価) |
保証金/敷金 |
礼金 |
入居可能日 |
|
|
8階 |
G 55.33坪 (182.92m2) |
|
(未公開) |
無 |
2026/6/1 |
|
物件番号:033498
更新日:2026/5/7
港区芝大門1-6-10
【竣工】2002/10
【階建て】地上6F
|
【最寄駅】
|
【耐震】 |
新耐震 |
| 【基準階】 |
37.67坪 |
【エントランス】 |
平日・土開放 |
| 【駐車場】 |
無し |
【エレベーター】 |
1基 |
芝大門RUビルは、東京都港区芝大門1-6-10に位置する地上6階建てのオフィスビルです。2002年10月に竣工し、S造で建てられています。新耐震基準に適合しており、安全性にも優れています。交通アク…

| 図面 |
階数 |
面積 |
賃料(共益費込) (坪単価) |
保証金/敷金 |
礼金 |
入居可能日 |
|
|
3階 |
G 37.67坪 (124.53m2) |
627,720 (16,664) |
6ヶ月 |
1.0ヶ月 |
2026/7 |
|
物件番号:015239
更新日:2026/4/17
港区芝大門2-8-13
【竣工】2001/8
【階建て】地上9F
|
【最寄駅】
|
【耐震】 |
新耐震 |
| 【基準階】 |
100.12坪 |
【エントランス】 |
平日のみ開放 |
| 【駐車場】 |
有り |
【エレベーター】 |
2基 |
サクセス芝大門ビルは、港区芝大門2-8-13に位置する、利便性の高いオフィスビルです。最寄り駅は都営浅草線と都営大江戸線の大門駅で徒歩5分圏内、また都営三田線の芝公園駅も徒歩5分圏内にあり…

| 図面 |
階数 |
面積 |
賃料(共益費込) (坪単価) |
保証金/敷金 |
礼金 |
入居可能日 |
|
|
9階 |
G 50.62坪 (167.34m2) |
|
12ヶ月 |
無 |
即日 |
|
物件番号:083714
更新日:2026/4/30
港区芝大門2-1-14
【竣工】2001/3
【階建て】地上9F 、地下1F
|
【最寄駅】
|
【耐震】 |
新耐震 |
| 【基準階】 |
72.00坪 |
【エントランス】 |
|
| 【駐車場】 |
有り |
【エレベーター】 |
2基 |
エンスイテ芝大門は、東京都港区芝大門2-1-14に位置する地上9階建て地下1階のオフィスビルです。2001年3月に竣工し、RC造で建てられています。新耐震基準に適合しており、安全性にも優れています…

| 図面 |
階数 |
面積 |
賃料(共益費込) (坪単価) |
保証金/敷金 |
礼金 |
入居可能日 |
|
|
2階 |
G 72.00坪 (238.00m2) |
|
6ヶ月 |
無 |
2026/8 予定 |
|
|
3階 |
G 72.00坪 (238.00m2) |
|
6ヶ月 |
無 |
2026/8 予定 |
|
|
4階 |
G 72.00坪 (238.00m2) |
|
6ヶ月 |
無 |
2026/8 予定 |
|
|
5階 |
G 72.00坪 (238.00m2) |
|
6ヶ月 |
無 |
2026/8 予定 |
|
|
6階 |
G 72.00坪 (238.00m2) |
|
6ヶ月 |
無 |
2026/8 予定 |
|
|
7階 |
G 72.00坪 (238.00m2) |
|
6ヶ月 |
無 |
2026/8 予定 |
|
|
8階 |
G 72.00坪 (238.00m2) |
|
6ヶ月 |
無 |
2026/8 予定 |
|
|
9階 |
G 48.00坪 (160.00m2) |
|
6ヶ月 |
無 |
2026/8 予定 |
|
物件番号:015164
更新日:2026/4/15
港区芝大門1-11-4
【竣工】1998/3
【階建て】地上4F
|
【最寄駅】
|
【耐震】 |
新耐震 |
| 【基準階】 |
33.70坪 |
【エントランス】 |
全日開放(制限有) |
| 【駐車場】 |
無し |
【エレベーター】 |
1基 |
複数路線が利用可能、駅まで6分以内の便利な立地です!室内の形が良くレイアウトの組みやすいオフィスです!ワンフロア・ワンテナントで使い勝手良好です!

| 図面 |
階数 |
面積 |
賃料(共益費込) (坪単価) |
保証金/敷金 |
礼金 |
入居可能日 |
|
|
3階 |
G 37.36坪 (123.50m2) |
560,400 (15,000) |
6ヶ月 |
無 |
即日 |
|
物件番号:015115
更新日:2026/4/10
港区芝大門1-16-3
【竣工】1994/10
【階建て】地上9F 、地下1F
|
【最寄駅】
|
【耐震】 |
新耐震 |
| 【基準階】 |
105.81坪 |
【エントランス】 |
平日・土開放 |
| 【駐車場】 |
有り |
【エレベーター】 |
2基 |
芝大門116ビルは、東京都港区芝大門1-16-3に位置する地上9階建て地下1階のオフィスビルです。1994年10月に竣工し、S造で建てられています。新耐震基準に適合しており、安全性にも優れています。…

| 図面 |
階数 |
面積 |
賃料(共益費込) (坪単価) |
保証金/敷金 |
礼金 |
入居可能日 |
|
|
5階 |
N 96.31坪 (318.38m2) |
|
12ヶ月 |
無 |
2026/7/21 |
|
物件番号:015107
更新日:2026/4/13
港区芝大門1-3-10
【竣工】1991/10(改修:2023)
【階建て】地上10F
|
【最寄駅】
|
【耐震】 |
新耐震 |
| 【基準階】 |
20.13坪 |
【エントランス】 |
平日のみ開放 |
| 【駐車場】 |
無し |
【エレベーター】 |
1基 |
複数路線利用可能で好立地な物件!モダンでスタイリッシュなオフィスビル!ワンフロア・ワンテナントの使い勝手良好なオフィス空間!

| 図面 |
階数 |
面積 |
賃料(共益費込) (坪単価) |
保証金/敷金 |
礼金 |
入居可能日 |
|
|
3階 |
G 20.13坪 (66.55m2) |
310,000 (15,400) |
10ヶ月 |
無 |
2026/8/1 |
|
物件番号:015129
更新日:2026/5/7
港区芝大門2-2-8
【竣工】1990/8
【階建て】地上7F
|
【最寄駅】
|
【耐震】 |
新耐震 |
| 【基準階】 |
24.69坪 |
【エントランス】 |
全日開放(制限有) |
| 【駐車場】 |
無し |
【エレベーター】 |
1基 |
JR・地下鉄・モノレールにアクセス便利な場所のオフィスビル!メンテナンスが行き届いた清潔感のある物件!お手頃価格のチャンス物件!

| 図面 |
階数 |
面積 |
賃料(共益費込) (坪単価) |
保証金/敷金 |
礼金 |
入居可能日 |
|
|
2階 |
G 24.69坪 (81.62m2) |
419,730 (17,000) |
6ヶ月 |
無 |
即日 |
|
物件番号:015142
更新日:2026/4/21
港区芝大門1-1-15
【竣工】1990/3
【階建て】地上6F
|
【最寄駅】
|
【耐震】 |
新耐震 |
| 【基準階】 |
40.00坪 |
【エントランス】 |
平日・土開放 |
| 【駐車場】 |
無し |
【エレベーター】 |
1基 |
芝藤ビルは、東京都港区芝大門1-1-15に位置する、利便性と快適性を兼ね備えたオフィスビルです。このビルは、都営三田線の御成門駅から徒歩3分、都営浅草線と都営大江戸線の大門駅からは徒歩4分…

| 図面 |
階数 |
面積 |
賃料(共益費込) (坪単価) |
保証金/敷金 |
礼金 |
入居可能日 |
|
|
1階 |
G 33.00坪 (109.09m2) |
693,000 (21,000) |
8ヶ月 |
無 |
即日 |
|
|
3階 |
G 40.00坪 (132.24m2) |
640,000 (16,000) |
6ヶ月 |
無 |
即日 |
|
物件番号:015083
更新日:2026/4/17
港区芝大門2-1-16
【竣工】1990/1
【階建て】地上8F 、地下1F
|
【最寄駅】
|
【耐震】 |
新耐震 |
| 【基準階】 |
77.89坪 |
【エントランス】 |
平日・土開放 |
| 【駐車場】 |
無し |
【エレベーター】 |
1基 |
+SHIFT SHIBADAIMONは、港区芝大門2丁目に位置する賃貸オフィスビルです。大門エリアの中でも都営浅草線・都営大江戸線「大門駅」から徒歩3分圏内という優れた立地を誇り、芝大門交差点からも約…

| 図面 |
階数 |
面積 |
賃料(共益費込) (坪単価) |
保証金/敷金 |
礼金 |
入居可能日 |
|
|
1階 |
G 44.99坪 (148.73m2) |
1,259,720 (28,000) |
6ヶ月 |
無 |
2026/5/1 |
|
|
5階 |
G 77.89坪 (257.49m2) |
2,336,700 (30,000) |
7ヶ月 |
無 |
即日 |
|
|
6階 |
G 77.89坪 (257.49m2) |
2,336,700 (30,000) |
7ヶ月 |
無 |
即日 |
|
物件番号:015227
更新日:2026/4/21
港区芝大門1-3-4
【竣工】1988/10(改修:2017)
【階建て】地上9F
|
【最寄駅】
|
【耐震】 |
新耐震 |
| 【基準階】 |
110.54坪 |
【エントランス】 |
平日のみ開放 |
| 【駐車場】 |
有り |
【エレベーター】 |
2基 |
ラウンドクロス芝大門ビルは、港区芝大門1-3-4に位置する賃貸オフィスビルで、アクセスの良さが魅力です。最寄駅は、都営浅草線および都営大江戸線の大門駅で、徒歩4分の距離にあります。また、…

| 図面 |
階数 |
面積 |
賃料(共益費込) (坪単価) |
保証金/敷金 |
礼金 |
入居可能日 |
|
|
2階 |
G 110.54坪 (365.44m2) |
3,316,200 (30,000) |
6ヶ月 |
無 |
即日 |
|
|
5階 |
G 110.54坪 (365.42m2) |
3,316,200 (30,000) |
6ヶ月 |
無 |
即日 |
|
|
6階 |
G 110.54坪 (365.42m2) |
3,316,200 (30,000) |
6ヶ月 |
無 |
即日 |
|
|
7階 |
G 110.54坪 (365.42m2) |
3,426,740 (31,000) |
6ヶ月 |
無 |
即日 |
|
|
8階 |
G 110.54坪 (365.42m2) |
3,426,740 (31,000) |
6ヶ月 |
無 |
即日 |
|
物件番号:015792
更新日:2026/5/7
港区芝大門2-11-4
【竣工】1987/1
【階建て】地上7F
|
【最寄駅】
|
【耐震】 |
新耐震 |
| 【基準階】 |
46.59坪 |
【エントランス】 |
|
| 【駐車場】 |
無し |
【エレベーター】 |
1基 |
大門エリア。落ち着いた外観の賃貸オフィスビル。共生ビル別館 は港区芝大門2丁目、都営浅草線・都営大江戸線の大門駅から徒歩3分圏内、第一京浜から一本入った立地です。1987年竣工、鉄筋コンク…

| 図面 |
階数 |
面積 |
賃料(共益費込) (坪単価) |
保証金/敷金 |
礼金 |
入居可能日 |
|
|
3階 |
G 46.59坪 (154.02m2) |
768,735 (16,500) |
6ヶ月 |
無 |
即日 |
|
物件番号:015080
更新日:2026/5/1
港区芝大門1-2-23
【竣工】1985/8
【階建て】地上4F 、地下1F
|
【最寄駅】
|
【耐震】 |
新耐震 |
| 【基準階】 |
33.29坪 |
【エントランス】 |
|
| 【駐車場】 |
有り |
【エレベーター】 |
1基 |
芝大門旭ビルは、東京都港区芝大門1-2-23に位置する地上4階・地下1階のオフィスビルです。1985年8月に竣工し、RC造で建てられています。新耐震基準に適合しており、安全性にも優れています。交通…

| 図面 |
階数 |
面積 |
賃料(共益費込) (坪単価) |
保証金/敷金 |
礼金 |
入居可能日 |
|
|
2階 |
G 34.34坪 (113.52m2) |
515,100 (15,000) |
6ヶ月 |
無 |
2026/6/1 |
|
物件番号:015081
更新日:2026/4/30
港区芝大門2-10-2
【竣工】1984/11
【階建て】地上7F
|
【最寄駅】
|
【耐震】 |
新耐震 |
| 【基準階】 |
32.56坪 |
【エントランス】 |
全日開放(24h) |
| 【駐車場】 |
有り |
【エレベーター】 |
1基 |
黒田ビル(東京都港区芝大門2-10-2)は、港区芝大門エリアに位置する、利便性と快適性を兼ね備えたオフィスビルです。都営浅草線・大江戸線「大門駅」から徒歩3分、JR山手線・京浜東北線「浜松町…

| 図面 |
階数 |
面積 |
賃料(共益費込) (坪単価) |
保証金/敷金 |
礼金 |
入居可能日 |
|
|
5階 |
G 32.56坪 (107.62m2) |
520,960 (16,000) |
6ヶ月 |
無 |
2026/6/11 |
|
物件番号:015099
更新日:2026/4/14
港区芝大門1-3-6
【竣工】1984/6(改修:2016)
【階建て】地上10F 、地下1F
|
【最寄駅】
|
【耐震】 |
新耐震 |
| 【基準階】 |
32.36坪 |
【エントランス】 |
|
| 【駐車場】 |
無し |
【エレベーター】 |
1基 |
喜多ビルは、東京都港区芝大門1丁目に位置する地上10階・地下1階建てのオフィスビルです。1984年6月に竣工し、2016年にエントランスの改修が行われており、白を基調とした清潔感のある空間となっ…

| 図面 |
階数 |
面積 |
賃料(共益費込) (坪単価) |
保証金/敷金 |
礼金 |
入居可能日 |
|
|
3階 |
G 32.36坪 (106.99m2) |
520,000 (16,069) |
1,716,000 (53,028) |
無 |
即日 |
|
|
7階 |
G 32.36坪 (106.99m2) |
520,000 (16,069) |
1,716,000 (53,028) |
無 |
相談 |
|
物件番号:015241
更新日:2026/4/17
港区芝大門2-12-8
【竣工】1984/3
【階建て】地上10F
|
【最寄駅】
|
【耐震】 |
新耐震 |
| 【基準階】 |
39.07坪 |
【エントランス】 |
|
| 【駐車場】 |
無し |
【エレベーター】 |
1基 |
「浜松町矢崎ホワイトビル」は、東京都港区芝大門2丁目に位置する、地上10階建てのオフィスビルです。1984年3月に竣工したSRC造の建物で、新耐震基準を満たしているため、安心してご利用いただけ…

| 図面 |
階数 |
面積 |
賃料(共益費込) (坪単価) |
保証金/敷金 |
礼金 |
入居可能日 |
|
|
8階 |
G 37.69坪 (124.60m2) |
708,572 (18,800) |
4,000,000 (106,129) |
無 |
2026/7/1 |
|
物件番号:015031
更新日:2026/4/22
港区芝大門1-3-5
【竣工】1984/3(改修:2018)
【階建て】地上5F
|
【最寄駅】
|
【耐震】 |
新耐震 |
| 【基準階】 |
29.08坪 |
【エントランス】 |
平日のみ開放 |
| 【駐車場】 |
無し |
【エレベーター】 |
1基 |
大門・浜松町エリアのモダンなデザイナーズオフィス物件です。芝大門スクエアは、東京都港区芝大門1-3-5に位置するオフィスビルで、ビジネスの利便性と快適性を追求した設計が特徴です。1984年3…

| 図面 |
階数 |
面積 |
賃料(共益費込) (坪単価) |
保証金/敷金 |
礼金 |
入居可能日 |
|
|
4階 |
G 29.40坪 (97.19m2) |
|
2ヶ月 |
無 |
2026/6/16 |
|
物件番号:015120
更新日:2026/4/17
港区芝大門2-11-1
【竣工】1973/11(改修:2024)
【階建て】地上7F
|
【最寄駅】
|
【耐震】 |
旧耐震+補強済 or 基準OK |
| 【基準階】 |
92.50坪 |
【エントランス】 |
平日のみ開放 |
| 【駐車場】 |
有り |
【エレベーター】 |
1基 |
交通アクセス便利な大門・浜松町エリアの賃貸オフィスビルです。富士ビルは、東京都港区芝大門2-11-1に位置し、1973年に竣工した地上7階建てのオフィスビルです。鉄骨鉄筋コンクリート造で建設さ…

| 図面 |
階数 |
面積 |
賃料(共益費込) (坪単価) |
保証金/敷金 |
礼金 |
入居可能日 |
|
|
2階 |
G 92.50坪 (305.79m2) |
1,387,500 (15,000) |
8ヶ月 |
無 |
即日 |
|
非公開物件の賃料目安アイコン
8,000 円未満
8,000 円以上~1.0 万円未満
1.0 万以上~1.2 万円未満
1.2 万以上~1.4 万円未満
1.4 万以上~1.6 万円未満
1.6 万以上~2.0 万円未満
2.0 万以上~2.5 万円未満
2.5 万以上~3.0 万円未満
3.0 万円以上
未定
※取引態様:媒介
※フロア図面と現況が異なる場合は現況を優先いたします。
※貸室内部の写真・貸室からの景色に関しては、現在の募集フロアと異なる場合がございます。