神田三崎町(千代田区)の貸事務所・賃貸オフィス一覧
【2026/04/28更新】
神田三崎町(千代田区)の貸事務所について
駅近と落ち着きを兼ね備えた神田三崎町エリア
神田三崎町エリアは、JR「水道橋駅」や都営三田線「神保町駅」、東京メトロ「九段下駅」など複数路線が利用できる利便性の高いエリアです。大学や専門学校が多く集まる文教エリアとしての顔を持ち、街全体に落ち着いた雰囲気が漂っています。駅周辺には飲食店やコンビニも充実しており、働きやすい環境が整っています。中小規模のオフィスビルが中心で、士業や教育関連、クリエイティブ系企業などにも最適。交通アクセスと静かな執務環境を両立したい企業におすすめのエリアです。
神田三崎町(千代田区)の物件は、15棟(20件) 掲載されています。
神田三崎町周辺の貸事務所マップ
神田三崎町周辺マップです。物件のある位置にビルが表示されていますので、クリックして詳細情報をご覧ください。
ビルアイコンについて
マップ上に表示されているビルアイコンは、そのビルの最小坪単価に応じて色分けされています。
8,000 円未満
8,000 円以上~1.0 万円未満
1.0 万以上~1.2 万円未満
1.2 万以上~1.4 万円未満
1.4 万以上~1.6 万円未満
1.6 万以上~2.0 万円未満
2.0 万以上~2.5 万円未満
2.5 万以上~3.0 万円未満
3.0 万円以上
未定
神田三崎町周辺の地区を探す
神田三崎町周辺の貸事務所一覧
物件番号:079043
更新日:2026/4/17
千代田区神田三崎町2-21-6
【竣工】2023/1
【階建て】地上6F
|
【最寄駅】
|
【耐震】 |
新耐震 |
| 【基準階】 |
30.20坪 |
【エントランス】 |
オートロック |
| 【駐車場】 |
無し |
【エレベーター】 |
1基 |
Gaia Force Buildingは、東京都千代田区神田三崎町2-21-6に位置する、2023年1月竣工のオフィスビルです。JR総武線の水道橋駅から徒歩1分、都営三田線の水道橋駅から徒歩3分という優れた近さに加…

| 図面 |
階数 |
面積 |
賃料(共益費込) (坪単価) |
保証金/敷金 |
礼金 |
入居可能日 |
|
|
4階 |
G 30.20坪 (99.84m2) |
785,200 (26,000) |
3ヶ月 |
無 |
2026/7 上旬 |
|
|
6階 |
G 30.20坪 (99.84m2) |
845,600 (28,000) |
3ヶ月 |
無 |
2026/8 中旬 |
|
物件番号:053622
更新日:2026/4/10
千代田区神田三崎町3-1-2
【竣工】2008/7(改修:2020)
【階建て】地上9F
|
【最寄駅】
|
【耐震】 |
新耐震 |
| 【基準階】 |
35.26坪 |
【エントランス】 |
オートロック |
| 【駐車場】 |
無し |
【エレベーター】 |
1基 |
SRビルは、千代田区神田三崎町3丁目に立地する、2008年竣工のスタイリッシュで機能性の高い賃貸オフィスビルです。水道橋・九段エリアに位置し、都心でありながら落ち着いた雰囲気の環境を兼ね備…

| 図面 |
階数 |
面積 |
賃料(共益費込) (坪単価) |
保証金/敷金 |
礼金 |
入居可能日 |
|
|
4階 |
G 35.26坪 (116.56m2) |
634,680 (18,000) |
7ヶ月 |
無 |
即日 |
|
|
5階 |
G 35.26坪 (116.57m2) |
634,680 (18,000) |
7ヶ月 |
無 |
即日 |
|
物件番号:001580
更新日:2026/4/20
千代田区神田三崎町3-6-12
【竣工】1992/10(改修:2021)
【階建て】地上7F 、地下1F
|
【最寄駅】
|
【耐震】 |
新耐震 |
| 【基準階】 |
51.57坪 |
【エントランス】 |
全日開放(制限有) |
| 【駐車場】 |
無し |
【エレベーター】 |
1基 |
神田三崎町ビルは、千代田区神田三崎町3丁目に位置する、交通利便性と機能性を兼ね備えた貸事務所物件です。JR総武線「水道橋駅」西口から徒歩1分圏内という抜群のアクセス環境にあり、ビルは水…

| 図面 |
階数 |
面積 |
賃料(共益費込) (坪単価) |
保証金/敷金 |
礼金 |
入居可能日 |
|
|
7階 |
G 51.57坪 (170.49m2) |
928,260 (18,000) |
6ヶ月 |
無 |
即日 |
|
物件番号:001659
更新日:2026/4/13
千代田区神田三崎町2-15-10
【竣工】1992/6
【階建て】地上5F
|
【最寄駅】
|
【耐震】 |
新耐震 |
| 【基準階】 |
30.00坪 |
【エントランス】 |
オートロック |
| 【駐車場】 |
無し |
【エレベーター】 |
1基 |
華ビルは、東京都千代田区神田三崎町2に位置するオフィスビルです。1992年6月に竣工した地上5階建てのRC造(鉄筋コンクリート造)構造を持つ建物です。このビルは新耐震基準を満たして設計されて…

| 図面 |
階数 |
面積 |
賃料(共益費込) (坪単価) |
保証金/敷金 |
礼金 |
入居可能日 |
|
|
2階 |
G 25.04坪 (82.79m2) |
430,000 (17,173) |
6ヶ月 |
1.0ヶ月 |
即日 |
|
|
3階 |
G 25.04坪 (82.79m2) |
430,000 (17,173) |
6ヶ月 |
1.0ヶ月 |
2026/5 上旬 |
|
物件番号:001692
更新日:2026/4/6
千代田区神田三崎町3-3-1
【竣工】1990/11
【階建て】地上8F 、地下2F
|
【最寄駅】
|
【耐震】 |
新耐震 |
| 【基準階】 |
43.40坪 |
【エントランス】 |
|
| 【駐車場】 |
無し |
【エレベーター】 |
1基 |
TKiビルは、東京都千代田区神田三崎町3-3-1に位置するオフィスビルで、交通の便が非常に良いのが大きな特徴です。最寄り駅であるJR総武線「水道橋駅」から徒歩4分というアクセスの良さに加え、東…

| 図面 |
階数 |
面積 |
賃料(共益費込) (坪単価) |
保証金/敷金 |
礼金 |
入居可能日 |
|
|
4階 |
G 43.40坪 (143.47m2) |
651,000 (15,000) |
12ヶ月 |
無 |
2026/5 上旬 |
|
物件番号:001534
更新日:2026/4/1
千代田区神田三崎町3-10-2
【竣工】1990/7
【階建て】地上7F
|
【最寄駅】
|
【耐震】 |
新耐震 |
| 【基準階】 |
24.69坪 |
【エントランス】 |
全日開放(24h) |
| 【駐車場】 |
無し |
【エレベーター】 |
1基 |
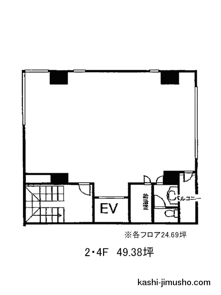
みさきBLDは、東京都千代田区神田三崎町3丁目に位置するオフィスビルで、JR総武線の水道橋駅西口から徒歩わずか2分という非常に利便性の高い場所にあります。さらに、都営三田線の水道橋駅や、飯…

| 図面 |
階数 |
面積 |
賃料(共益費込) (坪単価) |
保証金/敷金 |
礼金 |
入居可能日 |
|
|
2階 |
G 24.69坪 (81.62m2) |
370,350 (15,000) |
6ヶ月 |
2.0ヶ月 |
即日 |
|
|
2-4階 |
G 49.38坪 (163.24m2) |
740,700 (15,000) |
6ヶ月 |
2.0ヶ月 |
即日 |
|
|
4階 |
G 24.69坪 (81.62m2) |
370,350 (15,000) |
6ヶ月 |
2.0ヶ月 |
相談 |
|
物件番号:058938
更新日:2026/4/22
千代田区神田三崎町3-2-8
【竣工】1989/2(改修:2010)
【階建て】地上8F
|
【最寄駅】
|
【耐震】 |
新耐震 |
| 【基準階】 |
57.89坪 |
【エントランス】 |
オートロック |
| 【駐車場】 |
有り |
【エレベーター】 |
2基 |
水道橋駅近くのインテリジェント賃貸オフィス。グランバレー三崎町ビルは、千代田区神田三崎町3-2-8にある物件です。徒歩4分圏内でJR総武線の水道橋駅、徒歩7分圏内で都営三田線の水道橋駅、東京…

| 図面 |
階数 |
面積 |
賃料(共益費込) (坪単価) |
保証金/敷金 |
礼金 |
入居可能日 |
|
|
1階 |
G 43.85坪 (144.90m2) |
877,000 (20,000) |
6ヶ月 |
無 |
2026/8/1 |
|
物件番号:001701
更新日:2026/3/31
千代田区神田三崎町2-10-5
【竣工】1988/12
【階建て】地上6F 、地下1F
|
【最寄駅】
|
【耐震】 |
新耐震 |
| 【基準階】 |
21.00坪 |
【エントランス】 |
全日開放(24h) |
| 【駐車場】 |
無し |
【エレベーター】 |
1基 |
水道橋駅のJR線、三田線の2路線が利用可能です!大理石のエントランスが来訪者をお迎えします!ワンフロア・ワンテナント!使い勝手良好です!

| 図面 |
階数 |
面積 |
賃料(共益費込) (坪単価) |
保証金/敷金 |
礼金 |
入居可能日 |
|
|
3階 |
G 21.00坪 (69.43m2) |
252,000 (12,000) |
6ヶ月 |
無 |
即日 |
|
物件番号:001621
更新日:2026/4/27
千代田区神田三崎町1-1-4
【竣工】1988/10
【階建て】地上6F
|
【最寄駅】
|
【耐震】 |
新耐震 |
| 【基準階】 |
37.00坪 |
【エントランス】 |
全日開放(制限有) |
| 【駐車場】 |
無し |
【エレベーター】 |
1基 |
MK’88ビルは、東京都千代田区神田三崎町1-1-4に位置するオフィスビルで、1988年10月に竣工しました。地上6階建てのRC(鉄筋コンクリート)造の建物で、耐震性については新耐震基準に適合している…

| 図面 |
階数 |
面積 |
賃料(共益費込) (坪単価) |
保証金/敷金 |
礼金 |
入居可能日 |
|
|
3階 |
G 37.00坪 (122.31m2) |
462,500 (12,500) |
6ヶ月 |
無 |
即日 |
|
物件番号:001702
更新日:2026/3/31
千代田区神田三崎町3-6-5
【竣工】1986/11
【階建て】地上7F
|
【最寄駅】
|
【耐震】 |
新耐震 |
| 【基準階】 |
59.21坪 |
【エントランス】 |
|
| 【駐車場】 |
無し |
【エレベーター】 |
1基 |
原島本店ビルは、東京都千代田区神田三崎町3-6-5に位置するオフィスビルで、交通の利便性や耐震性の面で優れた物件です。1986年に竣工したこのビルは、地上7階建てのSRC(鉄骨鉄筋コンクリート)…

| 図面 |
階数 |
面積 |
賃料(共益費込) (坪単価) |
保証金/敷金 |
礼金 |
入居可能日 |
|
|
3階 |
G 59.21坪 (195.74m2) |
651,310 (11,000) |
8ヶ月 |
無 |
即日 |
|
物件番号:001612
更新日:2026/4/24
千代田区神田三崎町3-4-4
【竣工】1986/1(改修:2023)
【階建て】地上5F 、地下1F
|
【最寄駅】
|
【耐震】 |
新耐震 |
| 【基準階】 |
31.88坪 |
【エントランス】 |
|
| 【駐車場】 |
無し |
【エレベーター】 |
1基 |
グラン水道橋は、千代田区神田三崎町3丁目に位置する賃貸オフィスビルで、水道橋駅から徒歩2分という優れたアクセス環境を備えています。最寄り駅はJR総武線「水道橋」駅で、駅近の立地により通…

| 図面 |
階数 |
面積 |
賃料(共益費込) (坪単価) |
保証金/敷金 |
礼金 |
入居可能日 |
|
|
4階 |
G 26.76坪 (89.00m2) |
695,760 (26,000) |
765,336 (28,600) |
無 |
即日 |
|
物件番号:062166
更新日:2026/4/27
千代田区神田三崎町2-2-14
【竣工】1985/4(改修:2017)
【階建て】地上5F
|
【最寄駅】
|
【耐震】 |
新耐震 |
| 【基準階】 |
50.83坪 |
【エントランス】 |
平日のみ開放 |
| 【駐車場】 |
有り |
【エレベーター】 |
1基 |
神田三崎町エリア。2017年全面リニューアルのスタイリッシュな貸事務所。BRICK GATE水道橋は千代田区神田三崎町2-17-2です。JR総武線 水道橋駅より徒歩4分圏内、都営三田線 水道橋駅より徒歩5分…

| 図面 |
階数 |
面積 |
賃料(共益費込) (坪単価) |
保証金/敷金 |
礼金 |
入居可能日 |
|
|
NEW2階 |
G 50.83坪 (168.06m2) |
1,219,920 (24,000) |
6ヶ月 |
無 |
2026/9/20 |
|
物件番号:066688
更新日:2026/4/2
千代田区神田三崎町2-2-12
【竣工】1984/5
【階建て】地上6F
|
【最寄駅】
|
【耐震】 |
新耐震 |
| 【基準階】 |
55.50坪 |
【エントランス】 |
平日のみ開放 |
| 【駐車場】 |
無し |
【エレベーター】 |
1基 |
塩谷ビルは、東京都千代田区神田三崎町2丁目に位置する地上6階建ての鉄筋コンクリート造(RC造)オフィスビルです。1984年5月に竣工し、新耐震基準を満たしている安心の構造です。JR総武線「水道…

| 図面 |
階数 |
面積 |
賃料(共益費込) (坪単価) |
保証金/敷金 |
礼金 |
入居可能日 |
|
|
3階 |
G 55.50坪 (183.47m2) |
777,000 (14,000) |
6ヶ月 |
無 |
相談 |
|
物件番号:001588
更新日:2026/4/15
千代田区神田三崎町3-10-16
【竣工】1983/9
【階建て】地上8F
|
【最寄駅】
|
【耐震】 |
新耐震 |
| 【基準階】 |
28.33坪 |
【エントランス】 |
平日のみ開放 |
| 【駐車場】 |
有り |
【エレベーター】 |
1基 |
水道橋駅・九段下駅と複数の駅が利用できる便利な立地です!タイル張りで重厚感のある佇まい!しっかりとした印象です!ビルの裏手に川が流れており、自然豊かな環境です!

| 図面 |
階数 |
面積 |
賃料(共益費込) (坪単価) |
保証金/敷金 |
礼金 |
入居可能日 |
|
|
3階 |
G 28.33坪 (93.65m2) |
396,620 (14,000) |
8ヶ月 |
無 |
2026/6 中旬 |
|
物件番号:001535
更新日:2026/4/8
千代田区神田三崎町3-7-12
【竣工】1979/10
【階建て】地上7F
|
【最寄駅】
|
【耐震】 |
旧耐震 |
| 【基準階】 |
78.10坪 |
【エントランス】 |
平日・土開放 |
| 【駐車場】 |
無し |
【エレベーター】 |
2基 |
東京都千代田区神田三崎町に位置する「清話会ビル」は、水道橋駅から徒歩1分という優れた立地で、利便性の高さが魅力のオフィスビルです。JR総武線をはじめ、都営三田線、水道橋駅に加え、飯田橋…

| 図面 |
階数 |
面積 |
賃料(共益費込) (坪単価) |
保証金/敷金 |
礼金 |
入居可能日 |
|
|
6階 |
G 50.30坪 (166.28m2) |
754,500 (15,000) |
8ヶ月 |
無 |
即日 |
|
非公開物件の賃料目安アイコン
8,000 円未満
8,000 円以上~1.0 万円未満
1.0 万以上~1.2 万円未満
1.2 万以上~1.4 万円未満
1.4 万以上~1.6 万円未満
1.6 万以上~2.0 万円未満
2.0 万以上~2.5 万円未満
2.5 万以上~3.0 万円未満
3.0 万円以上
未定
※取引態様:媒介
※フロア図面と現況が異なる場合は現況を優先いたします。
※貸室内部の写真・貸室からの景色に関しては、現在の募集フロアと異なる場合がございます。