天井高2.7m以上-台東区の貸事務所、賃貸オフィス
天井が高い貸事務所、賃貸オフィスを掲載しています。天井高2.7m以上の開放感あるオフィス物件です。オフィス兼スタジオとして利用したい企業や、開放感のあるオフィスでアイディアを創出したい企業、外資系のオフィスとして人気のある天井が高い貸事務所。特に天井の高さ2700mm以上の物件に厳選して掲載しています。東京都台東区 にある天井が高いオフィスビルの特集ページです。
台東区の天井が高い貸事務所
総数:13棟(31件)
- 1
物件番号:082929
更新日:2025/10/21
台東区雷門2-19-16
【竣工】2025/3
【階建て】地上9F
【最寄駅】
|
【耐震】 | 新耐震 | ||
|---|---|---|---|---|
| 【基準階】 | 48.15坪 | 【エントランス】 | 全日開放(24h) | |
| 【駐車場】 | 無し | 【エレベーター】 | 1基 |
「AD-C浅草雷門」は、東京都台東区雷門2-19-16に位置する地上9階建てのオフィスビルです。構造は鉄骨造(S造)で、新耐震基準に適合しており、耐震性に優れた安心の設計となっています。竣工は20…

| 図面 | 階数 | 面積 | 賃料(共益費込) (坪単価) |
保証金/敷金 | 礼金 | 入居可能日 | |
|---|---|---|---|---|---|---|---|
| 4階 | G 44.14坪 (145.92m2) |
(未公開)
|
5ヶ月 | 無 | 即日 |
|
|
| 5階 | G 47.64坪 (157.49m2) |
(未公開)
|
5ヶ月 | 無 | 即日 |
|
|
| 6階 | G 47.64坪 (157.49m2) |
(未公開)
|
5ヶ月 | 無 | 即日 |
|
|
| 7階 | G 47.64坪 (157.49m2) |
(未公開)
|
5ヶ月 | 無 | 即日 |
|
|
| 8階 | G 47.64坪 (157.49m2) |
(未公開)
|
5ヶ月 | 無 | 即日 |
|
|
| 9階 | G 47.64坪 (157.49m2) |
(未公開)
|
5ヶ月 | 無 | 即日 |
|
全6件を確認する
表示フロアを閉じる
| 図面 | 階数 | 面積 | 賃料(共益費込) (坪単価) |
保証金/敷金 | 礼金 | 入居可能日 | |
|---|---|---|---|---|---|---|---|
| 2階 | G 56.15坪 (185.62m2) |
(未公開)
|
(未公開) | 無 | 即日 |
|
|
| 3階 | G 56.15坪 (185.62m2) |
(未公開)
|
(未公開) | 無 | 即日 |
|
|
| 4階 | G 56.15坪 (185.62m2) |
(未公開)
|
(未公開) | 無 | 即日 |
|
|
| 5階 | G 56.15坪 (185.62m2) |
(未公開)
|
(未公開) | 無 | 即日 |
|
|
| 7階 | G 56.15坪 (185.62m2) |
(未公開)
|
(未公開) | 無 | 即日 |
|
|
| 8階 | G 56.15坪 (185.62m2) |
(未公開)
|
(未公開) | 無 | 即日 |
|
全6件を確認する
表示フロアを閉じる
| 図面 | 階数 | 面積 | 賃料(共益費込) (坪単価) |
保証金/敷金 | 礼金 | 入居可能日 | |
|---|---|---|---|---|---|---|---|
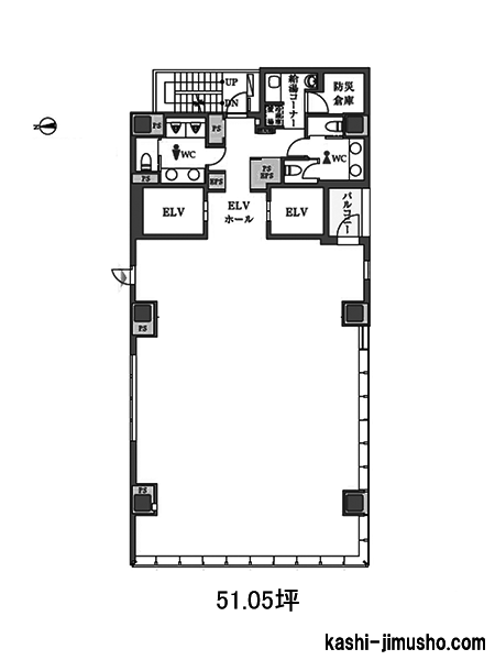
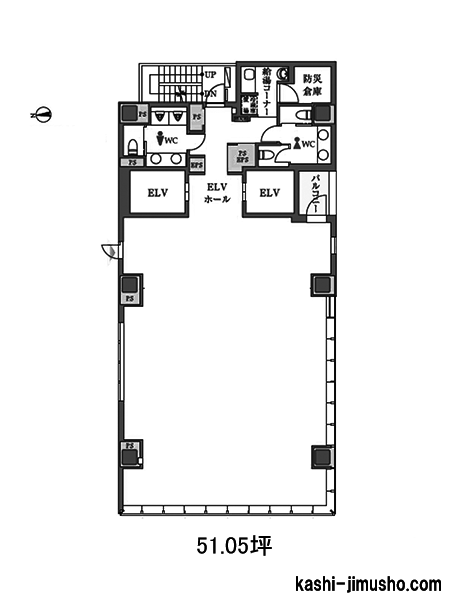
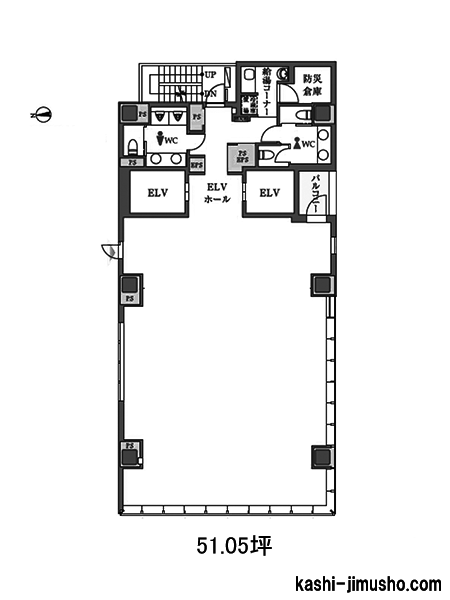
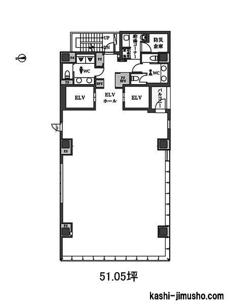
| NEW4階 | G 51.05坪 (168.75m2) |
(未公開)
|
6ヶ月 | 無 | 2026/5 |
|
|
| NEW7階 | G 51.05坪 (168.75m2) |
(未公開)
|
12ヶ月 | 無 | 2026/5 |
|
|
| NEW8階 | G 51.05坪 (168.75m2) |
(未公開)
|
6ヶ月 | 無 | 2026/5 |
|
|
| NEW9階 | G 51.05坪 (168.75m2) |
(未公開)
|
6ヶ月 | 無 | 2026/5 |
|
|
| NEW10階 | G 51.05坪 (168.75m2) |
(未公開)
|
6ヶ月 | 無 | 2026/5 |
|
|
| NEW11階 | G 51.05坪 (168.75m2) |
(未公開)
|
6ヶ月 | 無 | 2026/5 |
|
|
| NEW12階 | G 51.05坪 (168.75m2) |
(未公開)
|
12ヶ月 | 無 | 2026/5 |
|
全7件を確認する
表示フロアを閉じる
| 図面 | 階数 | 面積 | 賃料(共益費込) (坪単価) |
保証金/敷金 | 礼金 | 入居可能日 | |
|---|---|---|---|---|---|---|---|
| 2階 | N 136.06坪 (449.80m2) |
(未公開)
|
12ヶ月 | 無 | 即日 |
|
| 図面 | 階数 | 面積 | 賃料(共益費込) (坪単価) |
保証金/敷金 | 礼金 | 入居可能日 | |
|---|---|---|---|---|---|---|---|
| B1階 | G 59.06坪 (195.26m2) |
1,417,440 (24,000) |
8,504,640 (6ヶ月) |
無 | 即日 |
|
| 図面 | 階数 | 面積 | 賃料(共益費込) (坪単価) |
保証金/敷金 | 礼金 | 入居可能日 | |
|---|---|---|---|---|---|---|---|
| 7階 | G 150.21坪 (496.56m2) |
2,253,150 (15,000) |
14,420,160 (8ヶ月) |
無 | 即日 |
|
| 図面 | 階数 | 面積 | 賃料(共益費込) (坪単価) |
保証金/敷金 | 礼金 | 入居可能日 | |
|---|---|---|---|---|---|---|---|
| B1階 | G 29.35坪 (97.03m2) |
445,000 (15,162) |
2,400,000 (6ヶ月) |
1.0ヶ月 | 相談 |
|
| 図面 | 階数 | 面積 | 賃料(共益費込) (坪単価) |
保証金/敷金 | 礼金 | 入居可能日 | |
|---|---|---|---|---|---|---|---|
| 1階 | G 32.66坪 (107.99m2) |
(未公開)
|
無 | 1.0ヶ月 | 2025/11 中旬 |
|
| 図面 | 階数 | 面積 | 賃料(共益費込) (坪単価) |
保証金/敷金 | 礼金 | 入居可能日 | |
|---|---|---|---|---|---|---|---|
| 1階 | G 31.92坪 (105.52m2) |
492,000 (15,413) |
4,540,000 (10ヶ月) |
1.0ヶ月 | 即日 |
|
| 図面 | 階数 | 面積 | 賃料(共益費込) (坪単価) |
保証金/敷金 | 礼金 | 入居可能日 | |
|---|---|---|---|---|---|---|---|
| 1階 | N 246.06坪 (813.43m2) |
(未公開)
|
12ヶ月 | 無 | 2025/11/24 |
|
| 図面 | 階数 | 面積 | 賃料(共益費込) (坪単価) |
保証金/敷金 | 礼金 | 入居可能日 | |
|---|---|---|---|---|---|---|---|
| 7階 | G 34.60坪 (114.38m2) |
519,000 (15,000) |
3,148,600 (7ヶ月) |
無 | 即日 |
|
※取引態様:媒介
※フロア図面と現況が異なる場合は現況を優先いたします。
※貸室内部の写真・貸室からの景色に関しては、現在の募集フロアと異なる場合がございます。
総数:13棟(31件)
- 1
※取引態様:媒介
天井が高い貸事務所
天井高2.7m以上の貸事務所
- 千代田区の天井高2.7m以上の貸事務所
- 中央区の天井高2.7m以上の貸事務所
- 港区の天井高2.7m以上の貸事務所
- 新宿区の天井高2.7m以上の貸事務所
- 渋谷区の天井高2.7m以上の貸事務所
- 台東区の天井高2.7m以上の貸事務所
- 品川区の天井高2.7m以上の貸事務所
- 豊島区の天井高2.7m以上の貸事務所
- 文京区の天井高2.7m以上の貸事務所
- 目黒区の天井高2.7m以上の貸事務所
- 東京都内の天井高2.7m以上の貸事務所
東京都内の天井高3m以上の貸事務所
- 千代田区の天井高3m以上の貸事務所
- 中央区の天井高3m以上の貸事務所
- 港区の天井高3m以上の貸事務所
- 新宿区の天井高3m以上の貸事務所
- 渋谷区の天井高3m以上の貸事務所
- 台東区の天井高3m以上の貸事務所
- 品川区の天井高3m以上の貸事務所
- 豊島区の天井高3m以上の貸事務所
- 文京区の天井高3m以上の貸事務所
- 東京都内の天井高3m以上の貸事務所













