※ご入居を検討されているお客様向けの情報サイトです。
※駐車場単体・管理会社・テナントに関するお問合せにはお応えいたしかねます。

池尻大橋~二子玉川の(40~60坪)の貸事務所・賃貸オフィス一覧

総数:6棟(6件)
  • 1
グローイングアップビルの外観
物件番号:083882
更新日:2026/4/20
世田谷区新町2-3-2
【竣工】2009/3
【階建て】地上3F
【最寄駅】
桜新町駅10分
【耐震】 新耐震
【基準階】 40.82坪 【エントランス】 オートロック
【駐車場】 - 【エレベーター】
玉川通り沿いで分かりやすい立地です。使い勝手良好な1フロア1テナントです。新耐震基準で耐震性もあります。
図面 階数 面積 賃料(共益費込)
(坪単価)
保証金/敷金 礼金 入居可能日
3階 G 40.82坪
(134.94m2)
500,000
(12,249)
8ヶ月 1.0ヶ月 即日
駒沢DSビルの外観
物件番号:062488
更新日:2026/5/7
世田谷区上馬4-7-3
【竣工】1996/6
【階建て】地上3F
【最寄駅】
駒沢大学駅3分
【耐震】 新耐震
【基準階】 44.97坪 【エントランス】
【駐車場】 有り 【エレベーター】
首都高速「用賀」「池尻」入口近くで車を使用する企業様にもおすすめな立地です!白を基調とした清潔感のある外観です!1996年竣工の新耐震基準を満たした貸事務所です!
図面 階数 面積 賃料(共益費込)
(坪単価)
保証金/敷金 礼金 入居可能日
1階 G 52.80坪
(174.54m2)
810,000
(15,341)
5ヶ月 1.0ヶ月 2026/9
上旬
目黒東山ビルの外観
物件番号:028301
更新日:2026/5/11
目黒区東山1-4-4
【竣工】1995/3
【階建て】地上8F
【最寄駅】
中目黒駅6分
池尻大橋駅13分
【耐震】 新耐震
【基準階】 251.35坪 【エントランス】 全日開放(24h)
【駐車場】 有り 【エレベーター】 3基
目黒区東山1丁目にある、目黒東山ビルです。最寄駅は、東急東横線・東京メトロ日比谷線の中目黒駅です。徒歩6分圏内で、利用可能です。山手通り沿いの角地に位置している為、視認性・採光性が期…
図面 階数 面積 賃料(共益費込)
(坪単価)
保証金/敷金 礼金 入居可能日
7階 N 51.86坪
(171.44m2)
(未公開)
    賃料目安
  • 2.0 万以上~2.5 万円未満
12ヶ月 2026/10/1
フレックス三軒茶屋の外観
物件番号:029971
更新日:2026/5/11
世田谷区上馬2-25-4
【竣工】1990/8
【階建て】地上7F
【最寄駅】
三軒茶屋駅9分
駒沢大学駅10分
【耐震】 新耐震
【基準階】 47.90坪 【エントランス】 オートロック
【駐車場】 無し 【エレベーター】 1基
三軒茶屋エリア。玉川通りに面したシックな貸事務所。フレックス三軒茶屋は世田谷区上馬2-25-4。最寄駅は、東急田園都市線・三軒茶屋駅、東急世田谷線・三軒茶屋駅です。三軒茶屋駅より徒歩9分圏…
図面 階数 面積 賃料(共益費込)
(坪単価)
保証金/敷金 礼金 入居可能日
2階 G 48.18坪
(159.27m2)
770,880
(16,000)
3ヶ月 即日
ビラ・アペックスタワーの外観
物件番号:028298
更新日:2026/5/11
目黒区東山2-3-5
【竣工】1990/8
【階建て】地上10F 、地下1F
【最寄駅】
池尻大橋駅9分
中目黒駅11分
【耐震】 新耐震
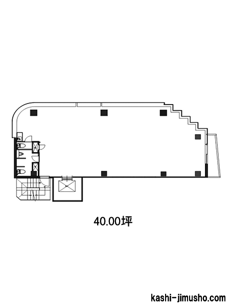
【基準階】 40.00坪 【エントランス】 全日開放(24h)
【駐車場】 無し 【エレベーター】 1基
山手通り沿いの視認性に優れた分かりやすい立地です!黒を基調とした重厚感のあるシックな外観です!角地のため採光性のある明るい室内です!
図面 階数 面積 賃料(共益費込)
(坪単価)
保証金/敷金 礼金 入居可能日
3階 G 40.00坪
(132.23m2)
880,000
(22,000)
3,000,000
(75,000)
即日
GRAND二子玉川の外観
物件番号:082786
更新日:2026/4/20
世田谷区玉川2-24-6
【竣工】1979/12
【階建て】地上9F
【最寄駅】
二子玉川駅3分
【耐震】 旧耐震
【基準階】 【エントランス】
【駐車場】 無し 【エレベーター】 1基
GRAND二子玉川は、東京都世田谷区玉川2丁目に建つ地上9階建ての建物で、1979年12月に竣工しました。構造はSRC造(鉄骨鉄筋コンクリート造)を採用しています。交通アクセスにおいてもGRAND二子玉…
図面 階数 面積 賃料(共益費込)
(坪単価)
保証金/敷金 礼金 入居可能日
2-3階 G 45.49坪
(150.37m2)
1,241,000
(27,281)
6ヶ月 2.0ヶ月 相談

非公開物件の賃料目安アイコン

  • 8,000 円未満
  • 8,000 円以上~1.0 万円未満
  • 1.0 万以上~1.2 万円未満
  • 1.2 万以上~1.4 万円未満
  • 1.4 万以上~1.6 万円未満
  • 1.6 万以上~2.0 万円未満
  • 2.0 万以上~2.5 万円未満
  • 2.5 万以上~3.0 万円未満
  • 3.0 万円以上
  • 未定

※取引態様:媒介
※フロア図面と現況が異なる場合は現況を優先いたします。
※貸室内部の写真・貸室からの景色に関しては、現在の募集フロアと異なる場合がございます。

総数:6棟(6件)
  • 1

池尻大橋~二子玉川(東京)の賃料相場

池尻大橋~二子玉川(東京)エリアの平均賃料

池尻大橋~二子玉川で募集している物件の、1坪あたりの賃料(共益費を含む)の平均価格です。
数値の右側にある矢印は、一週間前の数値と比較した結果を表しています。
賃料価格は毎日集計をしている最新の値です。

  • 2040 17,332円前後
  • 4060 18,510円前後
  • 60100 8,429円前後
  • 100坪以上 22,000円前後

池尻大橋~二子玉川(東京)エリアの募集賃料

池尻大橋~二子玉川の1坪あたりの賃料(共益費を含む)価格帯ごとの募集物件数です。
表の数値をクリックすると募集物件の一覧表が表示します。

【2026/05/17更新】

募集賃料(円)8千未満0.8~1.0万1.0~1.2万1.2~1.4万1.4~1.6万1.6~2.0万2.0~2.5万2.5~3.0万3.0万以上
該当物件数   1棟
(1件)
1棟
(1件)
1棟
(1件)
2棟
(2件)
1棟
(1件)
 

池尻大橋~二子玉川エリアのオフィス環境

キャロットタワー

キャロットタワー

池尻大橋~二子玉川エリアは、東京都心へのアクセスの良さと、落ち着いた環境を兼ね備えた人気のビジネスエリアです。東急田園都市線が利用でき、渋谷へ短時間でアクセス可能なため、都市の利便性を活かしながらも、静かで快適なオフィス環境を求める企業に適しています。

池尻大橋エリアは、渋谷に近い立地ながら落ち着いた街並みが広がり、スタートアップやクリエイティブ系企業に人気のエリアです。リノベーションオフィスやコワーキングスペースも増えており、自由な働き方を求める企業にとって魅力的な環境が整っています。また、飲食店やカフェが充実しており、ビジネスミーティングやランチにも便利です。

三軒茶屋・駒沢エリアは、文化とビジネスが融合したエリアで、デザイン・広告・IT関連の企業が多く集まっています。特に、駒沢公園周辺は、健康志向の企業やフィットネス関連のオフィスにも適しており、働きやすい環境が整っています。

二子玉川エリアは、再開発が進み、大手企業の本社やハイグレードなオフィスビルが立ち並ぶエリアです。「楽天クリムゾンハウス」をはじめとする大企業が拠点を構えており、洗練されたビジネス環境が広がっています。また、「二子玉川ライズ」などの商業施設も充実しており、仕事とプライベートのバランスを大切にする企業にとって理想的な立地です。

池尻大橋~二子玉川エリアは、利便性と落ち着きを兼ね備えたエリアで、企業のブランディングや働きやすさを重視する企業に最適なビジネス拠点となるでしょう。