
KDX新日本橋駅前ビル三越前・新日本橋 中央区の賃貸情報
物件番号:08813
KDX新日本橋駅前ビルの募集中物件リスト
| 図面 | 階数 | 面積 | 賃料(共益費込) (坪単価) |
保証金/敷金 | 礼金 | 入居可能日 |
|---|---|---|---|---|---|---|
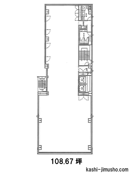
| 5階 |
G 108.67坪 (359.24m2) |
(未公開)
|
12ヶ月 | 無 | 相談 |
- ※取引態様:媒介
- ※フロア図面と現況が異なる場合は現況を優先いたします。
- ※貸室内部の写真・貸室からの景色に関しては、現在の募集フロアと異なる場合がございます。
- ※保証金/敷金以外の費用については別途消費税が必要になります。
- ※各物件により、別途費用が必要な場合には、物件紹介時又は重要事項説明においてご説明いたします。
- ※面積の箇所に表示している N はネット契約(契約面積はオフィス専用部分のみ)、G はグロス契約(契約面積は共用部分を加えた面積)を表しています。
KDX新日本橋駅前ビルの設備概要※-は確認中の表記になります。
| 竣工 | 1992年 (改修:2016年) | 構造・階建て | SRC造 地上10階 地下1階 |
|---|---|---|---|
| 耐震 | 新耐震+免震 | 基準階面積 | 109.53坪 |
| エレベーター | 2基 | 駐車場 | 有 |
| ビル使用時間 | 24時間使用可 | エントランス | 平日・土開放 |
| セキュリティ | 機械 | 光ファイバー | MDF |
| 契約種別 | 定期借家契約 | 建替え予定 | - |
| 保証契約 | - |
新日本橋駅徒歩1分!江戸通りに面したきれいな賃貸オフィス!

齋藤 若菜
KDX新日本橋駅前ビルは東京都中央区日本橋本町4-8-16にある賃貸オフィスビルです。江戸通り沿いに位置する分かりやすく案内しやすい立地です。石造りのシンプルなデザインの外観です。2016年リニューアル済みのエントランスは明るく開放感のある空間です。周辺はコンビニエンスストアや金融機関、郵便局などがあります。駅近くには飲食店が豊富にあるので利便性が高いです。JR総武快速線・新日本橋駅から徒歩1分圏内でアクセス可能です。東京メトロ銀座線・三越前駅、東京メトロ日比谷線・小伝馬町駅、JR山手線・神田駅からも徒歩圏内でアクセス可能です。複数路線からアクセス可能な利便性が高い立地です。1992年竣工の新耐震基準物件です。鉄骨鉄筋コンクリート造・地上10階地下1階建て、基準階約109坪のオフィスビルです。エントランスは平日7:50-19:30・土曜日9:00-17:30開放です。室内は24時間利用可能です。機械警備完備でセキュリティ万全です。エレベーターは11人乗りを2基設置。28台収容可能な機械式駐車場を完備。貸室内は天井高約2,600mmです。柱が少なく形のいい室内はレイアウト自在です。主な設備は個別空調・OAフロア・光ファイバー・給湯設備・男女別トイレです。
【周辺ガイド】
KDX新日本橋駅前ビルは東京都中央区日本橋本町4丁目にある物件です。大通り沿いに位置しており、視認性に優れています。JR総武線(快速)の新日本橋駅、東京メトロ銀座線・JR山手線 ・JR中央線・JR京浜東北線の神田駅 、東京メトロ日比谷線の小伝馬町駅、東京メトロ半蔵門線 三越前駅の7路線と4駅利用可能です。徒歩圏内に銀行・郵便局・コンビニエンスストアがあります。東京駅・新宿駅・池袋駅・品川駅・渋谷駅まで乗り換えなしで30以内に移動することができます。秋葉原徒歩圏内なのでお買い物する際はとても便利です。
・ファミリーマート 新日本橋駅前店 約70メートル(徒歩約1分)
・NEW DAYSミニ 新日本橋1号 約200メートル(徒歩約3分)
・新日本橋駅前郵便局 約200メートル(徒歩約3分)
・みずほ銀行日本橋支店 約260メートル(徒歩約4分)
・セブン-イレブン 日本橋室町4丁目店 約350メートル(徒歩約5分)
【評価】4.9
| 駅からの距離 | 設備 | 耐震性 | エントランス |
|---|
KDX新日本橋駅前ビルの周辺地図
「KDX新日本橋駅前ビル」に関するお問合せ
![]() |
|
| このページのURL | https://tokyo.kashi-jimusho.com/detail/8813/ |
|---|---|
株式会社サンエスコーポレーション |
|
| 〒103-0027 東京都中央区日本橋2-2-21 日本橋二丁目ビル5階 | |





















