
日比谷ダイビル大手町・丸の内・有楽町・霞ヶ関 千代田区の賃貸情報
物件番号:00840
日比谷ダイビルの募集中物件リスト
| 図面 | 階数 | 面積 | 賃料(共益費込) (坪単価) |
保証金/敷金 | 礼金 | 入居可能日 |
|---|---|---|---|---|---|---|
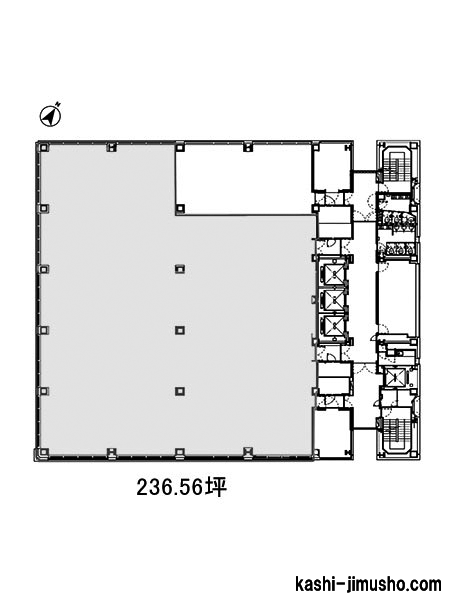
| 19階 |
N 236.56坪 (782.00m2) |
(未公開)
|
(未公開) | 無 | 2026/10 予定 |
- ※取引態様:媒介
- ※フロア図面と現況が異なる場合は現況を優先いたします。
- ※貸室内部の写真・貸室からの景色に関しては、現在の募集フロアと異なる場合がございます。
- ※保証金/敷金以外の費用については別途消費税が必要になります。
- ※各物件により、別途費用が必要な場合には、物件紹介時又は重要事項説明においてご説明いたします。
- ※面積の箇所に表示している N はネット契約(契約面積はオフィス専用部分のみ)、G はグロス契約(契約面積は共用部分を加えた面積)を表しています。
日比谷ダイビルの設備概要※-は確認中の表記になります。
| 竣工 | 1989年 (改修:2016年) | 構造・階建て | SRC造 地上21階 地下3階 |
|---|---|---|---|
| 耐震 | 新耐震 | 基準階面積 | 265.92坪 |
| エレベーター | 7基、人荷用リフト有、13人乗り以上 | 駐車場 | 有 |
| ビル使用時間 | 24時間使用可 | エントランス | 平日・土開放 |
| セキュリティ | 機+有人 | 光ファイバー | 有 |
| 契約種別 | 定期借家契約 | 建替え予定 | - |
| 保証契約 | - |
日比谷の高層ビル!緑豊かな街並みの賃貸オフィス!

宇田川 智志
日比谷ダイビルは、東京都千代田区内幸町1丁目に位置する、機能性とデザイン性を兼ね備えたハイグレードオフィスビルです。1989年10月に竣工し、2016年に改修を経て現代的な設備を導入したことで、最新のオフィス環境が整っています。地上21階・地下3階建ての鉄骨鉄筋コンクリート造(SRC造)で、新耐震基準に適合しているため、安全性にも優れています。基準階貸室面積は265.92坪と広々としており、大規模オフィスとしての利用に最適な設計となっています。天井高は2,620mmで、グリッド天井とLED照明を採用しているため、明るく開放的な室内環境が特徴です。また、OAフロア仕様により、通信機器やオフィス機器の配線が容易に行え、テクノロジーを活用したオフィス運営を効率的にサポートします。室外には男女別のトイレが設置されており、利用者の快適性にも配慮されています。さらに、非接触型セキュリティシステムを導入しているため、安全性が高く、働く人々に安心を提供する環境が整っています。日比谷ダイビルの共用部は、ホテルのロビーを思わせるようなラグジュアリーなデザインで統一されており、ビジネスの拠点として品格を備えた空間を提供しています。特にライトアップされた共用部は洗練された雰囲気を醸し出しており、訪れる人々に高級感と快適さを感じさせます。エレベーターは6基設置されており、高層階と低層階で分けて運用されているため、移動の効率が高く、待ち時間を最小限に抑えることが可能です。これにより、日々の業務がスムーズに行える環境が整っています。駐車場は98台分のスペースを備えており、車でのアクセスにも対応可能です。特に、都心部のオフィスビルにおいてこのような駐車場設備を有していることは希少であり、車を利用する通勤者やビジネス利用者にとって非常に便利なポイントです。また、ビル周辺は交通アクセスが抜群で、内幸町駅まで徒歩1分、新橋駅や霞ヶ関駅まで徒歩6分と、都内の主要エリアへの移動が容易です。社員だけでなく、訪問客にとっても非常に利便性の高い立地となっています。日比谷ダイビルは、高い機能性と洗練されたデザインを備え、快適かつ効率的なビジネス環境を提供するオフィスビルです。交通利便性、安全性、快適性のすべてを兼ね備えたこの物件は、企業の価値を高める理想的な拠点として、多くの利用者に支持されています。
【周辺ガイド】
日比谷ダイビルが立地する東京都千代田区内幸町は、ビジネスと文化が融合する魅力的なエリアです。この地域は、オフィス街としての利便性が高いだけでなく、周辺には豊かな緑地や歴史的な施設も点在しており、都会的な環境と自然が調和しています。特に、日比谷公園が至近距離に位置しており、都心のビル群に囲まれながらも、自然を感じられる静かな空間を提供しています。日比谷公園では、四季折々の風景が楽しめるだけでなく、散歩やリフレッシュに適した場所として多くのビジネスパーソンに利用されています。また、内幸町エリアは交通アクセスの利便性でも高い評価を受けています。日比谷ダイビルは、内幸町駅から徒歩1分という至近距離にあり、都営三田線を利用することで東京の主要エリアへスムーズに移動することが可能です。さらに、徒歩圏内にはJR山手線や京浜東北線、横須賀線が通る新橋駅、東京メトロ丸ノ内線の霞ヶ関駅があり、多路線を利用できる抜群のアクセス環境を誇ります。このような利便性は、通勤だけでなく、クライアントや取引先の訪問にも大きなメリットとなります。さらに、内幸町周辺は都心部でありながらも、文化や歴史が色濃く残るエリアです。近隣には、皇居や日比谷図書文化館など、東京の歴史を感じられる施設があり、エリア全体が品格と落ち着きを持った雰囲気に包まれています。また、日比谷エリアには高級ホテルや劇場、ショッピング施設が充実しており、ビジネスでの接待や特別なイベントに対応できる環境も整っています。特に、日比谷ミッドタウンや銀座エリアへのアクセスが容易であることから、仕事後の食事やショッピングも快適に楽しむことができます。日比谷ダイビル周辺は、オフィス街としての利便性に加え、自然、文化、商業施設が共存する非常に魅力的な環境に恵まれています。内幸町という立地が提供する働きやすさと、周辺の豊かな施設が生み出す生活の質の高さが、ビジネスの成功を支える大きな要素となるでしょう。
【評価】4.6
| 駅からの距離 | 設備 | 耐震性 | エントランス |
|---|
日比谷ダイビルの周辺地図
「日比谷ダイビル」に関するお問合せ
![]() |
|
| このページのURL | https://tokyo.kashi-jimusho.com/detail/840/ |
|---|---|
株式会社サンエスコーポレーション |
|
| 〒103-0027 東京都中央区日本橋2-2-21 日本橋二丁目ビル5階 | |

























