
築地616ビル築地・八丁堀・茅場町 中央区の賃貸情報
物件番号:08358
築地616ビルの募集中物件リスト
| 図面 | 階数 | 面積 | 賃料(共益費込) (坪単価) |
保証金/敷金 | 礼金 | 入居可能日 |
|---|---|---|---|---|---|---|
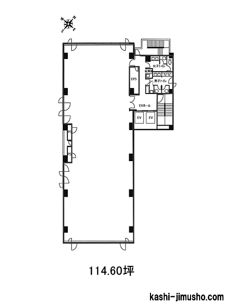
| 3階 |
G 114.60坪 (378.87m2) |
(未公開)
|
12ヶ月 | 無 | 2026/4/1 |
- ※取引態様:媒介
- ※フロア図面と現況が異なる場合は現況を優先いたします。
- ※貸室内部の写真・貸室からの景色に関しては、現在の募集フロアと異なる場合がございます。
- ※保証金/敷金以外の費用については別途消費税が必要になります。
- ※各物件により、別途費用が必要な場合には、物件紹介時又は重要事項説明においてご説明いたします。
- ※面積の箇所に表示している N はネット契約(契約面積はオフィス専用部分のみ)、G はグロス契約(契約面積は共用部分を加えた面積)を表しています。
築地616ビルの設備概要※-は確認中の表記になります。
| 竣工 | 1994年 | 構造・階建て | SRC造 地上9階 地下1階 |
|---|---|---|---|
| 耐震 | 新耐震 | 基準階面積 | 114.60坪 |
| エレベーター | 2基 | 駐車場 | 有 |
| ビル使用時間 | 24時間使用可 | エントランス | 平日・土開放 |
| セキュリティ | 機械 | 光ファイバー | MDF |
| 契約種別 | 普通借家契約 | 建替え予定 | - |
| 保証契約 | - |
築地エリア!静かな環境に建つ美築賃貸オフィスビル!

齋藤 若菜
築地616ビルは、中央区築地6-16-1にある物件です。徒歩8分圏内で東京メトロ日比谷線の築地駅、都営大江戸線の勝どき駅が利用可能となっています。複数路線が利用可能でアクセス良好です。電車の利用で、主要ビジネスエリアへのアクセスもスムーズに可能となっています。角地に位置しているので、採光性が期待できます。閑静な立地で落ち着いた周辺環境となっています。外観は、落ち着いた色合いで清潔感がございます。築地616ビルは、1994年竣工の新耐震基準を満たした物件です。構造は、鉄骨鉄筋コンクリート造・地上9階建て(地下1階)、基準階は約114坪の賃貸オフィスビルです。エントランスは、平日7:00~20:00・土曜7:00~13:30の間、開放されています。ビル内には、11人乗りのエレベーターが2基設置されています。駐車場が20台、機械警備、光ファイバーが完備されています。24時間使用可能で、使用時間の制限はありません。貸室内は、ワンフロア・ワンテナントで使い勝手良好です。個別空調・OAフロアが完備されています。トイレは室外で男女別になっています。水回りが室外にあるので、レイアウト効率の良い貸室内です。
【周辺ガイド】
築地616ビル は、東京都中央区築地6-16-1にあるオフィスビルです。晴海通りから少し入った角地に位置します。最寄り駅は築地駅で徒歩8分圏内でアクセス可能です。また、勝どき駅・東銀座駅も徒歩圏内で利用可能です。複数路線が利用できる利便性の高い立地です。晴海通りにはバス停があるので、バスでのアクセスも良好です。主要ビジネスエリアへのアクセスもスムーズに可能となっています。周辺はオフィスビルや住居が多くあるエリアです。緑も多く自然豊かで落ち着いた環境です。駅周辺には飲食店があるので、ランチや夕食時のお店選びに困りません。銀座方面には商業施設が多数あり、ちょっとしたお買い物や終業後のショッピングも楽しめます。築地市場へのアクセスも良好です。
・みずほ銀行 築地支店 約750メートル(徒歩約10分)
・三井住友銀行 築地支店 約800メートル(徒歩約10分)
・晴海通り 約66メートル(徒歩約1分)
・中央築地六郵便局 約120メートル(徒歩約2分)
・築地本願寺 約400メートル(徒歩約5分)
【評価】3.9
| 駅からの距離 | 設備 | 耐震性 | エントランス |
|---|
築地616ビルの周辺地図
「築地616ビル」に関するお問合せ
![]() |
|
| このページのURL | https://tokyo.kashi-jimusho.com/detail/8358/ |
|---|---|
株式会社サンエスコーポレーション |
|
| 〒103-0027 東京都中央区日本橋2-2-21 日本橋二丁目ビル5階 | |






















