
STCビル秋葉原・末広町 千代田区の賃貸情報
物件番号:83324
STCビルの募集中物件リスト
| 図面 | 階数 | 面積 | 賃料(共益費込) (坪単価) |
保証金/敷金 | 礼金 | 入居可能日 |
|---|---|---|---|---|---|---|
| 1階 |
N 26.09坪 (86.25m2) |
782,700 (30,000) |
9,392,400 (12ヶ月) |
無 | 即日 | |
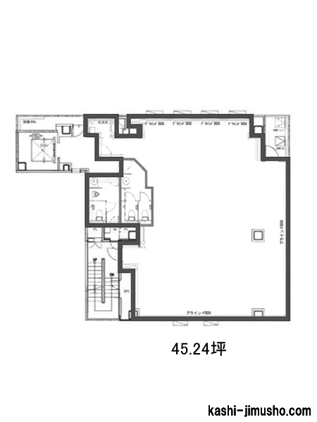
| 2階 |
G 45.24坪 (149.56m2) |
931,944 (20,600) |
5,591,664 (6ヶ月) |
無 | 即日 | |
| 3階 |
G 45.24坪 (149.56m2) |
931,944 (20,600) |
5,591,664 (6ヶ月) |
無 | 即日 |
- ※取引態様:媒介
- ※フロア図面と現況が異なる場合は現況を優先いたします。
- ※貸室内部の写真・貸室からの景色に関しては、現在の募集フロアと異なる場合がございます。
- ※保証金/敷金以外の費用については別途消費税が必要になります。
- ※各物件により、別途費用が必要な場合には、物件紹介時又は重要事項説明においてご説明いたします。
- ※面積の箇所に表示している N はネット契約(契約面積はオフィス専用部分のみ)、G はグロス契約(契約面積は共用部分を加えた面積)を表しています。
STCビルの設備概要※-は確認中の表記になります。
| 竣工 | 2024年 | 構造・階建て | RC造 地上8階 地下- |
|---|---|---|---|
| 耐震 | 新耐震 | 基準階面積 | 45.24坪 |
| エレベーター | 1基 | 駐車場 | - |
| ビル使用時間 | 確認中 | エントランス | 平日のみ開放 |
| セキュリティ | 機械 | 光ファイバー | 有 |
| 契約種別 | 普通借家契約 | 建替え予定 | - |
| 保証契約 | 有 |
東京メトロ銀座線・末広町駅が最寄りの貸事務所です。

森 健太
STCビルは、東京都千代田区外神田2丁目に位置する2024年5月竣工の賃貸オフィスビルです。鉄筋コンクリート造(RC造)の8階建てで、最新の新耐震基準に適合しており、安心してご利用いただけます。築浅ならではの清潔感と、グレーを基調としたスタイリッシュで洗練された外観が印象的で、訪れる方にも好印象を与えます。角地に建っているため視認性が高く、企業のプレゼンス向上にもつながる立地です。最寄りの銀座線末広町駅から徒歩6分、秋葉原駅までは複数路線(JR山手線・京浜東北線・総武線・日比谷線)が利用可能で、すべて徒歩8分ほどとアクセスは非常に良好です。また、丸ノ内線およびJR中央線が乗り入れる御茶ノ水駅も徒歩圏内にあり、多方面からの通勤や来客にも便利なロケーションです。交通利便性の高さは、日常の業務効率にもつながります。オフィスフロアはワンフロア・ワンテナント設計で、プライバシーが保たれた落ち着いた環境を実現。基準階は約45.24坪と中規模で使いやすく、天井高はゆとりある2,700mmとなっており、開放感のある快適な空間が広がります。床はOAフロア対応で配線もすっきり整えられ、レイアウトの自由度が高く、業種を問わずさまざまなビジネスに対応可能です。室外には男女別のトイレを完備し、清潔で使いやすい水まわりが確保されています。個別空調も設置されているため、季節や時間帯に合わせた温度管理がしやすく、快適なオフィス環境を維持できます。エレベーターは13人乗りが1基設置されており、朝夕の混雑時にもスムーズに移動できます。交通の便と快適なオフィス環境を兼ね備えたSTCビルは、これから新たな拠点をお考えの企業様にぴったりの物件です。周囲には秋葉原エリアならではの飲食店やコンビニも多数あり、日常の利便性も高い立地です。
【周辺ガイド】
STCビルがある千代田区外神田は、秋葉原駅や末広町駅、御茶ノ水駅が徒歩圏内にそろう、アクセスに優れたエリアです。秋葉原といえば電気街や大型の商業施設が集まる一大商業地として知られていますが、ビルのある周辺は神田明神のすぐ近くということもあり、落ち着いた雰囲気が漂っています。にぎやかなエリアから一歩入ったこの立地は、仕事に集中できる環境と、利便性のバランスがちょうど良いのが魅力です。神田川にかかる昌平橋もすぐそばで、橋のたもとからは四季折々の風景が楽しめ、ちょっとした気分転換にも最適です。神田郵便局や千代田合同庁舎、万世橋警察署、神田消防署など公共施設も徒歩圏内にそろっており、ビジネスの拠点として安心できるポイントが多数そろっています。さらに、周辺には秋葉原クロスフィールドのようなオフィス、ビジネスと商業施設の入った先進的な複合施設や、飲食店・カフェなども多く、日常的な利便性にも優れています。近年では再開発も進み、外神田エリア全体がより現代的に整備されつつあり、清潔感ある街並みと安全性がより向上しています。それでも神田明神を中心とした昔ながらの情緒や文化が今も残っており、訪れる人にも落ち着いた印象を与える場所です。蔵前橋通りや昌平橋通りなど交通の要所が交差しているため、車での移動もスムーズです。都心にありながらも落ち着いた環境が確保され、働く場所としてとてもバランスが良いこのエリアは、新たなオフィス拠点としておすすめできる場所のひとつです。
【評価】3.9
| 駅からの距離 | 設備 | 耐震性 | エントランス |
|---|
STCビルの周辺地図
「STCビル」に関するお問合せ
![]() |
|
| このページのURL | https://tokyo.kashi-jimusho.com/detail/83324/ |
|---|---|
株式会社サンエスコーポレーション |
|
| 〒103-0027 東京都中央区日本橋2-2-21 日本橋二丁目ビル5階 | |








