
南青山4丁目戸建青山・表参道 港区の賃貸情報
物件番号:83178
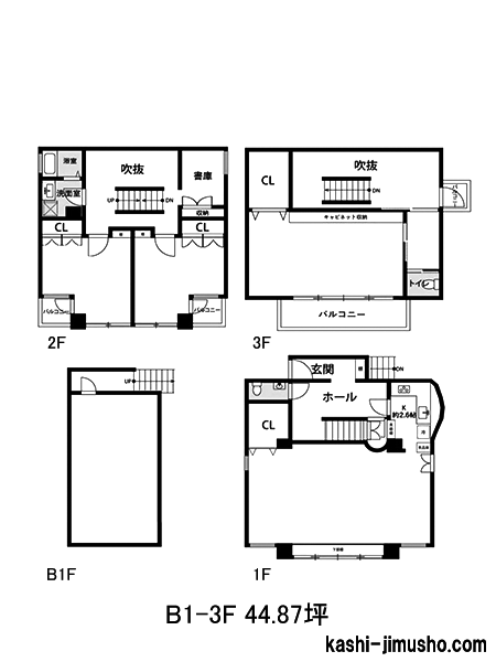
南青山4丁目戸建の募集中物件リスト
| 図面 | 階数 | 面積 | 賃料(共益費込) (坪単価) |
保証金/敷金 | 礼金 | 入居可能日 |
|---|---|---|---|---|---|---|
| B1-3階 |
G 44.87坪 (148.33m2) |
900,000 (20,058) |
7ヶ月 | 1.0ヶ月 | 相談 |
- ※取引態様:媒介
- ※フロア図面と現況が異なる場合は現況を優先いたします。
- ※貸室内部の写真・貸室からの景色に関しては、現在の募集フロアと異なる場合がございます。
- ※保証金/敷金以外の費用については別途消費税が必要になります。
- ※各物件により、別途費用が必要な場合には、物件紹介時又は重要事項説明においてご説明いたします。
- ※面積の箇所に表示している N はネット契約(契約面積はオフィス専用部分のみ)、G はグロス契約(契約面積は共用部分を加えた面積)を表しています。
南青山4丁目戸建の設備概要※-は確認中の表記になります。
| 竣工 | 1983年 | 構造・階建て | SRC造 地上3階 地下1階 |
|---|---|---|---|
| 耐震 | 新耐震 | 基準階面積 | |
| エレベーター | 無 | 駐車場 | 有 |
| ビル使用時間 | 確認中 | エントランス | |
| セキュリティ | 確認中 | 光ファイバー | 確認中 |
| 契約種別 | 定期借家契約 | 建替え予定 | - |
| 保証契約 | 有 |
南青山エリア!閑静な立地の一棟貸し物件!

村山 賢治
南青山4丁目戸建は、東京都港区南青山4-6-14に位置する地上3階・地下1階の賃貸オフィスです。1983年6月に竣工し、SRC造で建てられています。新耐震基準に適合しており、安全性にも優れています。交通アクセスは、東京メトロ銀座線の外苑前駅から徒歩8分で利用可能です。銀座線を利用することで表参道、赤坂見附、銀座方面への移動がしやすく、都内主要エリアへのアクセス性を確保できます。青山・表参道エリアに近接しているため、ビジネス拠点としての利便性の高い立地です。室内の空調は個別空調方式を採用しており、各フロアや区画ごとに温度調整が可能です。利用人数や用途に応じて柔軟に管理できるため、快適な環境を維持しやすい仕様です。トイレは室内男女別で設置されており、プライバシーにも配慮されいます。このように南青山4丁目戸建は、南青山というブランド性の高いエリアに位置し、独立性と柔軟性を兼ね備えた物件として、多様なビジネス用途に対応できる点が特徴です。さまざまな企業にとって魅力的な物件といえます。
【周辺ガイド】
南青山4丁目戸建の周辺は、低層の住宅やデザイン性の高い建物、アパレル関連企業やクリエイティブオフィスが点在しており、落ち着いた雰囲気の中で業務に集中しやすい環境が整っています。都心でありながら穏やかな街並みが保たれている点は、働く環境としての魅力を高めています。飲食店は非常に充実しています。外苑前や表参道エリアにかけて、和食、洋食、中華、カフェ、ベーカリー、フレンチ、イタリアンなど多彩なジャンルの飲食店が揃っています。特に南青山エリアは質の高い飲食店が多く、落ち着いた雰囲気のレストランや隠れ家的な店舗が点在しているため、来客との会食や打ち合わせにも適した環境です。また、カフェ文化も発展しており、打ち合わせや軽作業にも利用しやすい店舗が多く存在します。ランチタイムには気軽に利用できる店舗もあり、日常的な食事にも対応しやすい点が特徴です。テイクアウトやデリバリーに対応している店舗も多く、オフィス内での食事にも柔軟に対応できます。金融機関についても利便性があります。外苑前駅周辺や表参道駅周辺には都市銀行や信用金庫の支店、ATMが設置されており、入出金や振込などの金融手続きを行いやすい環境です。複数の金融機関を利用できるため、業務内容に応じた使い分けが可能で、経理業務や資金管理にも適した立地です。郵便局も周辺にあり、契約書や請求書の発送、荷物の受発送などを日常業務の中で対応できます。都心エリアとして物流機能も整っており、書類や荷物のやり取りが多い業務にも適した環境です。また、コンビニエンスストアやドラッグストアなどの生活利便施設も周辺に点在しています。日常的な買い物や急な用件にも対応しやすく、オフィス運営を支える環境が整っています。さらに表参道エリアまで足を延ばすことで、大型商業施設や各種サービスも利用可能となり、利便性の幅が広がります。このように南青山4丁目戸建の周辺は、飲食店、金融機関、郵便局、生活利便施設が整ったエリアです。南青山ならではの洗練された街並みと落ち着いた環境を活かしながら、快適に業務を行うことができる環境が形成されています。
【評価】3.4
| 駅からの距離 | 設備 | 耐震性 | エントランス |
|---|
南青山4丁目戸建の周辺地図
「南青山4丁目戸建」に関するお問合せ
![]() |
|
| このページのURL | https://tokyo.kashi-jimusho.com/detail/83178/ |
|---|---|
株式会社サンエスコーポレーション |
|
| 〒103-0027 東京都中央区日本橋2-2-21 日本橋二丁目ビル5階 | |










