
いちご半蔵門ビル番町・麹町・永田町 千代田区の賃貸情報
物件番号:00769
いちご半蔵門ビルの募集中物件リスト
| 図面 | 階数 | 面積 | 賃料(共益費込) (坪単価) |
保証金/敷金 | 礼金 | 入居可能日 |
|---|---|---|---|---|---|---|
| 4階 |
G 82.55坪 (272.89m2) |
(未公開)
|
(未公開) | 無 | 即日 | |
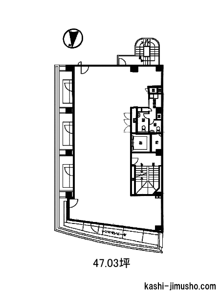
| 7階 |
G 47.03坪 (155.50m2) |
(未公開)
|
(未公開) | 無 | 2026/6/1 |
- ※取引態様:媒介
- ※フロア図面と現況が異なる場合は現況を優先いたします。
- ※貸室内部の写真・貸室からの景色に関しては、現在の募集フロアと異なる場合がございます。
- ※保証金/敷金以外の費用については別途消費税が必要になります。
- ※各物件により、別途費用が必要な場合には、物件紹介時又は重要事項説明においてご説明いたします。
- ※面積の箇所に表示している N はネット契約(契約面積はオフィス専用部分のみ)、G はグロス契約(契約面積は共用部分を加えた面積)を表しています。
いちご半蔵門ビルの設備概要※-は確認中の表記になります。
| 竣工 | 1991年 | 構造・階建て | SRC造 地上8階 地下1階 |
|---|---|---|---|
| 耐震 | 新耐震 | 基準階面積 | 96.14坪 |
| エレベーター | 1基 | 駐車場 | 有 |
| ビル使用時間 | 24時間使用可 | エントランス | 全日開放(24h) |
| セキュリティ | 機械 | 光ファイバー | 有 |
| 契約種別 | 普通借家契約 | 建替え予定 | - |
| 保証契約 | - |
半蔵門駅から徒歩1分の高級感漂う駅近賃貸オフィスビル!

岩本 将興
いちご半蔵門ビルは東京都千代田区隼町2-19にある賃貸オフィスビルです。半蔵門駅から出て、新宿通りから一本入った角地に位置する物件です。落ち着いた印象の重厚感がある外観です。エントランスは高級感溢れる御影石仕様です。周辺はコンビニエンスストアやカフェ・郵便局などがあり利便性の高い立地です。駅周辺には多数の飲食店がありランチ時に困りません。東京メトロ半蔵門線・半蔵門駅から徒歩1分圏内でアクセス可能です。東京メトロ有楽町線・麴町駅、東京メトロ南北線・永田町駅からも徒歩圏内でアクセス可能です。複数路線が利用できる利便性の高い立地です。1991年竣工の新耐震基準物件です。鉄骨鉄筋コンクリート造・地上8階地下1階建て、基準階約96坪のオフィスビルです。エントランスは平日のみ開放です。貸室内は24時間利用可能です。機械警備完備でセキュリティ万全です。エレベーターは11人乗りを1基設置。3台収容可能な駐車場を完備。貸室内は天井高は約2,350mmです。柱が少なく形のいい室内はレイアウト効率が高いです。角ビルで採光性に優れています。主な設備は個別空調・OAフロア・光ファイバー・給湯設備・男女別トイレです。
【周辺ガイド】
いちご半蔵門ビルは東京都千代田区隼町2丁目にある物件です。東京メトロ半蔵門線の半蔵門駅、東京メトロ有楽町線の麹町駅、東京メトロ南北線の永田町駅の3路線と3駅利用可能です。渋谷駅・池袋駅まで15分以内で移動することが出るので便利です。徒歩5分圏内に銀行・郵便局・コンビニエンスストアがあります。永田町周辺は皇居や最高裁判所など国の機関があるのでとても治安が良く閑静な街です。こちらの物件は大通り(国立劇場通り)に面しているいるため来訪者にもご案内しやすい立地です。
・ファミリーマート 半蔵門駅南店 約60メートル(徒歩約1分)
・ローソン 麹町二丁目店 約130メートル(徒歩約2分)
・セブン-イレブン 千代田平河町1丁目店 約170メートル(徒歩約2分)
・半蔵門駅前郵便局 約240メートル(徒歩約4分)
・三菱UFJ銀行市ヶ谷支店 約450メートル(徒歩約6分)
【評価】4.4
| 駅からの距離 | 設備 | 耐震性 | エントランス |
|---|
いちご半蔵門ビルの周辺地図
「いちご半蔵門ビル」に関するお問合せ
![]() |
|
| このページのURL | https://tokyo.kashi-jimusho.com/detail/769/ |
|---|---|
株式会社サンエスコーポレーション |
|
| 〒103-0027 東京都中央区日本橋2-2-21 日本橋二丁目ビル5階 | |






























