
IXINAL門前仲町3F 512.41坪門前仲町~葛西 東エリアの賃貸情報
物件番号: 68689
江東区エリアの賃貸事務所!希少な大型オフィス!
- 検討リストに追加
| 図面 | 階数 | 坪数 | 保証金/敷金 | 礼金 | 賃料(坪単価) | 共益費(坪単価) | 更新料/ 再契約料 |
償却 | 入居可能日 |
|---|---|---|---|---|---|---|---|---|---|
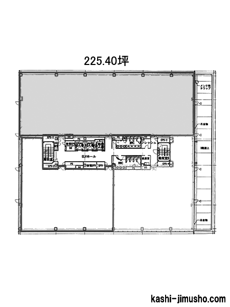
| 3階 | N 512.41坪 (1693.93m2) |
10ヶ月 | 無 |
(未公開)
|
2,049,640円 (4,000円) |
無 | 無 | 2026/8 | |
| 【空調】個別 【床仕様】OAフロア 【トイレ】室外男女別 【天井高】2,800mm | |||||||||
|
|
|||||||||
※面積の箇所に表示している N はネット契約(契約面積はオフィス専用部分のみ)、G はグロス契約(契約面積は共用部分を加えた面積)を表しています。
IXINAL門前仲町3階512.41坪(江東区福住)の周辺MAP
IXINAL門前仲町3階512.41坪(江東区福住)の設備
| 竣工 | 2009年 | 構造・階建て | S造 地上5階 地下- |
|---|---|---|---|
| 耐震 | 新耐震 | 基準階面積 | 512.41坪 |
| エレベーター | 3基、13人乗り以上 | 駐車場 | 有 |
| ビル使用時間 | 24時間使用可 | エントランス | 平日のみ開放 |
| セキュリティ | 機+有人 | 光ファイバー | 有 |
IXINAL門前仲町3階512.41坪(江東区福住)のギャラリー
※室内の写真は該当区画ではございません。
IXINAL門前仲町の他フロアの募集リスト
| 図面 | 階数 | 面積 | 賃料(共益費込) (坪単価) |
保証金/敷金 | 礼金 | 入居可能日 | |
|---|---|---|---|---|---|---|---|
| 4階 |
N 126.70坪 (418.84m2) |
(未公開)
|
10ヶ月 | 無 | 即日 |
|
|
| 5階 |
N 74.21坪 (245.32m2) |
(未公開)
|
10ヶ月 | 無 | 即日 |
|
- ※取引態様:媒介
- ※フロア図面と現況が異なる場合は現況を優先いたします。
- ※貸室内部の写真・貸室からの景色に関しては、現在の募集フロアと異なる場合がございます。
- ※保証金/敷金以外の費用については別途消費税が必要になります。
- ※各物件により、別途費用が必要な場合には、物件紹介時又は重要事項説明においてご説明いたします。
- ※面積の箇所に表示している『N』はネット契約(契約面積はオフィス専用部分のみ)『G』はグロス契約(契約面積は共用部分を加えた面積)を表しています。
IXINAL門前仲町の近隣物件リスト
「IXINAL門前仲町」に関するお問合せ
![]() |
|
| このページのURL | https://tokyo.kashi-jimusho.com/detail/68689/292605/ |
|---|---|
株式会社サンエスコーポレーション |
|
| 〒103-0027 東京都中央区日本橋2-2-21 日本橋二丁目ビル5階 | |










































