
平河町ビル番町・麹町・永田町 千代田区の賃貸情報
物件番号:00679
平河町ビルの募集中物件リスト
| 図面 | 階数 | 面積 | 賃料(共益費込) (坪単価) |
保証金/敷金 | 礼金 | 入居可能日 |
|---|---|---|---|---|---|---|
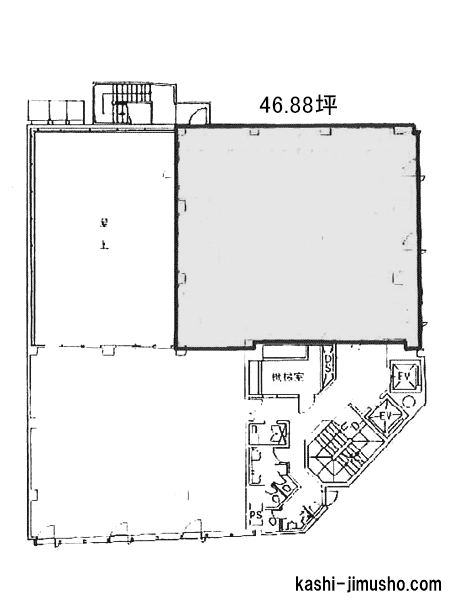
| 9階 |
N 46.88坪 (154.98m2) |
(未公開)
|
10ヶ月 | 無 | 2026/9 |
- ※取引態様:媒介
- ※フロア図面と現況が異なる場合は現況を優先いたします。
- ※貸室内部の写真・貸室からの景色に関しては、現在の募集フロアと異なる場合がございます。
- ※保証金/敷金以外の費用については別途消費税が必要になります。
- ※各物件により、別途費用が必要な場合には、物件紹介時又は重要事項説明においてご説明いたします。
- ※面積の箇所に表示している N はネット契約(契約面積はオフィス専用部分のみ)、G はグロス契約(契約面積は共用部分を加えた面積)を表しています。
平河町ビルの設備概要※-は確認中の表記になります。
| 竣工 | 1975年 (改修:2015年) | 構造・階建て | SRC造 地上9階 地下2階 |
|---|---|---|---|
| 耐震 | 旧耐震+補強済 or 基準OK | 基準階面積 | 110.72坪 |
| エレベーター | 2基 | 駐車場 | 有 |
| ビル使用時間 | 24時間使用可 | エントランス | 平日・土開放 |
| セキュリティ | 機械 | 光ファイバー | 有 |
| 契約種別 | 普通借家契約 | 建替え予定 | - |
| 保証契約 | - |
平河町エリア!ハイサッシの窓から光が差し込む明るい貸事務所!

宇田川 智志
平河町ビルは、東京都千代田区平河町2-6-1に位置し、永田町駅から徒歩1分という抜群の立地を誇るオフィスビルです。平河町交差点の角地に建つ視認性の高い物件で、来訪者にもわかりやすく、企業の信頼性やブランドイメージ向上にもつながります。交通利便性に優れており、有楽町線・半蔵門線・南北線の永田町駅がいずれも徒歩1分で利用可能なほか、丸ノ内線・銀座線の赤坂見附駅へも徒歩5分、さらに南北線の溜池山王駅へも徒歩7分と、都内主要エリアへの移動がスムーズです。1975年4月に竣工した本物件は、地上9階・地下2階建てのSRC造で、2015年に耐震補強工事が施されています。貸室基準階面積は約110.72坪のゆとりある広さを確保し、レイアウトの自由度が高い点も特徴です。天井高は2,480mm、OAフロアが整備されているため配線計画も柔軟に対応できます。空調はセントラル空調に加えて個別空調も併用されており、季節や利用状況に応じた快適な室内環境を実現します。トイレは室外に男女別で設置されており、貸室内のスペースを有効に活用できる設計です。エレベーターは2基設置されているため、朝夕の混雑時も比較的スムーズな移動が可能です。また、機械警備が導入されており、24時間使用制限がないため、業種を問わず柔軟な働き方に対応できる点も大きなメリットといえるでしょう。永田町エリアは、官公庁や大手企業が集積するビジネスの中心地でありながら、赤坂見附方面へ足を延ばせば飲食店や商業施設も充実しており、働く環境としてのバランスにも優れています。アクセス性、設備、視認性を兼ね備えた平河町ビルは、利便性と機能性を重視する企業にとって魅力的なオフィス環境を提供する物件です。
【周辺ガイド】
千代田区平河町エリアは、日本の政治・行政の中枢に近接する落ち着いたビジネスエリアとして知られており、周辺には官公庁や大手企業のオフィスが集積しています。街全体に品格と静けさがあり、来訪者に対しても信頼感や安心感を与えるロケーションといえるでしょう。永田町駅周辺は、国会議事堂や各省庁、関連機関が近くに位置していることから、整備された街並みが保たれており、治安の良さや清潔感のある環境が魅力です。周辺にはビジネス利用に適した飲食店やカフェが点在し、ランチや打ち合わせ、ちょっとした休憩にも困りません。落ち着いた雰囲気の店舗が多く、接待や会食にも利用しやすい点も、このエリアならではのメリットです。コンビニエンスストアや金融機関、郵便局といった日常業務を支える施設も充実しており、オフィスワーカーにとって利便性の高い環境が整っています。加えて、ホテルや会議施設も点在しているため、遠方からの来客対応やセミナー開催などにも柔軟に対応できる点が評価されています。緑を感じられるスポットも点在しており、都心にいながらも適度なリフレッシュが可能な環境です。静かで洗練された街並みの中で、業務効率を高めながら長期的に安定したビジネス拠点を構えたい企業にとって、非常に魅力的な立地といえるでしょう。
【評価】4.0
| 駅からの距離 | 設備 | 耐震性 | エントランス |
|---|
平河町ビルの周辺地図
「平河町ビル」に関するお問合せ
![]() |
|
| このページのURL | https://tokyo.kashi-jimusho.com/detail/679/ |
|---|---|
株式会社サンエスコーポレーション |
|
| 〒103-0027 東京都中央区日本橋2-2-21 日本橋二丁目ビル5階 | |
























