
第25SYビル渋谷・神宮前 渋谷区の賃貸情報
物件番号:64098
第25SYビルの募集中物件リスト
| 図面 | 階数 | 面積 | 賃料(共益費込) (坪単価) |
保証金/敷金 | 礼金 | 入居可能日 |
|---|---|---|---|---|---|---|
| 5階 |
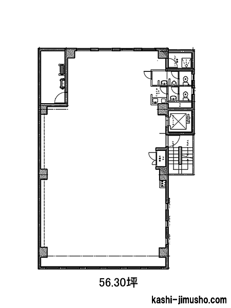
G 56.30坪 (186.12m2) |
1,126,000 (20,000) |
8ヶ月 | 無 | 2026/6/1 |
- ※取引態様:媒介
- ※フロア図面と現況が異なる場合は現況を優先いたします。
- ※貸室内部の写真・貸室からの景色に関しては、現在の募集フロアと異なる場合がございます。
- ※保証金/敷金以外の費用については別途消費税が必要になります。
- ※各物件により、別途費用が必要な場合には、物件紹介時又は重要事項説明においてご説明いたします。
- ※面積の箇所に表示している N はネット契約(契約面積はオフィス専用部分のみ)、G はグロス契約(契約面積は共用部分を加えた面積)を表しています。
第25SYビルの設備概要※-は確認中の表記になります。
| 竣工 | 1989年 | 構造・階建て | SRC造 地上10階 地下1階 |
|---|---|---|---|
| 耐震 | 新耐震 | 基準階面積 | 56.30坪 |
| エレベーター | 1基 | 駐車場 | 無 |
| ビル使用時間 | 24時間使用可 | エントランス | 全日開放(24h) |
| セキュリティ | 機械 | 光ファイバー | MDF |
| 契約種別 | 定期借家契約 | 建替え予定 | - |
| 保証契約 | - |
渋谷区神宮前エリア!明治通り沿いの視認性抜群の賃貸オフィス物件!

野口 椋太
東京都渋谷区神宮前6丁目に立地する第25SYビルは、1989年12月に竣工した地上10階・地下1階建てのSRC造(鉄骨鉄筋コンクリート造)のオフィスビルです。新耐震基準に準拠しています。最寄り駅は東京メトロ副都心線・千代田線「明治神宮前駅」で、徒歩3分と非常に近く、さらにJR山手線「原宿駅」から徒歩4分、東急田園都市線・東京メトロ半蔵門線「渋谷駅」からも徒歩6分と、複数路線・駅を利用可能な立地にあります。設備面も実用性が高く、ビルにはエレベーターが1基設置されており、各フロアへの移動がスムーズです。また、空調は個別方式で、各テナントが自由に温度管理を行えるため、業務内容や人員構成に合わせた快適な執務空間を保てます。室内はタイルカーペット仕上げとなっており、足元のクッション性や遮音性にも優れているため、業務に集中できる環境が整っています。トイレは各フロア内に設置されており、男女別の仕様となっているため、衛生面やプライバシーの確保にも十分に配慮された設計です。セキュリティ面では機械警備が導入されており、24時間の使用にも対応しています。これにより、早朝や深夜の業務、時差対応が必要な国際取引、柔軟な働き方を採用する企業にとっても安心して運用できる環境が確保されています。通信インフラも充実しており、光回線に対応しているため、高速かつ安定したインターネット接続が可能です。クラウドサービスやWeb会議、オンライン業務を主体とする企業にとっても、必要十分な通信環境が整備されている点は大きな強みです。このように、第25SYビルは、耐震性・立地・設備・セキュリティ・通信インフラといったビジネスに不可欠な条件を高い水準で満たしたオフィスビルです。
【周辺ガイド】
第25SYビルが立地する渋谷区神宮前6丁目は、原宿・表参道・渋谷といった東京を代表するカルチャーの中心地に囲まれたエリアに位置しており、感度の高いビジネスやクリエイティブ活動に理想的な環境が整っています。特にファッション、デザイン、広告、デジタルコンテンツといった業種との相性が良く、街全体が情報発信の拠点としての役割を果たしています。この地域には、個性豊かなカフェや飲食店が多数点在しており、ランチ、打ち合わせ、カジュアルな接待などに対応できる多様な選択肢があります。トレンドを意識したヘルシーなカフェ、気軽に入れるレストラン、静かに過ごせるベーカリーなどが徒歩圏内にそろっており、働く人にとって毎日の食事やリフレッシュの場にも困りません。感度の高い来訪者に対しても、自信を持って案内できるエリアです。また、ビジネスを支える生活利便施設も充実しており、コンビニエンスストアやドラッグストア、文具や雑貨を扱う店舗が多数あります。急な備品の調達や、日常的な買い物にもすぐに対応できる環境が整っており、オフィスワークの効率化にも寄与します。さらに、銀行や郵便局も近隣にあり、経理処理や送付業務などもスムーズに行うことが可能です。神宮前6丁目という立地は、都市の利便性を享受しながらも、一本裏手に入ると住宅地や静かな路地が広がるため、ビジネスに集中しやすい落ち着いた雰囲気もあります。人通りが多く活気がある一方で、整備された歩道や街並みには清潔感と秩序があり、治安の面でも安心感があります。このように、第25SYビルの周辺は、創造的刺激とビジネス機能が高度に融合したロケーションであり、日常業務の利便性と企業価値の向上を同時に実現できる理想的なビジネス環境が整っています。流行と実務の両立を図りたい企業にとって、このエリアは非常に大きな魅力を持っています。
【評価】3.9
| 駅からの距離 | 設備 | 耐震性 | エントランス |
|---|
第25SYビルの周辺地図
「第25SYビル」に関するお問合せ
![]() |
|
| このページのURL | https://tokyo.kashi-jimusho.com/detail/64098/ |
|---|---|
株式会社サンエスコーポレーション |
|
| 〒103-0027 東京都中央区日本橋2-2-21 日本橋二丁目ビル5階 | |














