
VORT芝浦 WaterFront田町・三田・芝 港区の賃貸情報
物件番号:52293
VORT芝浦 WaterFrontの募集中物件リスト
| 図面 | 階数 | 面積 | 賃料(共益費込) (坪単価) |
保証金/敷金 | 礼金 | 入居可能日 |
|---|---|---|---|---|---|---|
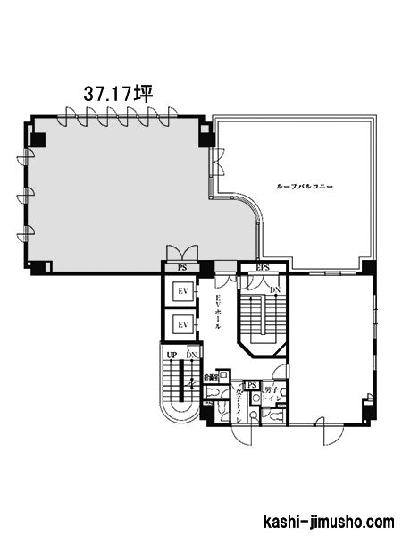
| 7階 |
G 52.45坪 (173.40m2) |
(未公開)
|
5ヶ月 | 1.0ヶ月 | 2026/9/1 |
- ※取引態様:媒介
- ※フロア図面と現況が異なる場合は現況を優先いたします。
- ※貸室内部の写真・貸室からの景色に関しては、現在の募集フロアと異なる場合がございます。
- ※保証金/敷金以外の費用については別途消費税が必要になります。
- ※各物件により、別途費用が必要な場合には、物件紹介時又は重要事項説明においてご説明いたします。
- ※面積の箇所に表示している N はネット契約(契約面積はオフィス専用部分のみ)、G はグロス契約(契約面積は共用部分を加えた面積)を表しています。
VORT芝浦 WaterFrontの設備概要※-は確認中の表記になります。
| 竣工 | 1989年 | 構造・階建て | SRC造 地上7階 地下1階 |
|---|---|---|---|
| 耐震 | 新耐震 | 基準階面積 | 77.94坪 |
| エレベーター | 2基 | 駐車場 | 有 |
| ビル使用時間 | 24時間使用可 | エントランス | 平日のみ開放 |
| セキュリティ | 機械 | 光ファイバー | 有 |
| 契約種別 | 普通借家契約 | 建替え予定 | - |
| 保証契約 | 有 |
芝浦エリア!運河に面した環境の良い賃貸オフィス!

武井 創
VORT芝浦 WaterFrontは、東京都港区芝浦4-12-31に位置する地上7階建て地下1階のオフィスビルです。1989年2月に竣工し、SRC造で建てられています。新耐震基準に適合しているため、安全性にも優れています。交通アクセスは、JR山手線・京浜東北線の田町駅から徒歩9分、都営浅草線・都営三田線の三田駅から徒歩10分で利用可能です。複数路線を活用できるため、都内主要エリアへの移動がしやすく、通勤や取引先訪問、来客対応にも対応しやすい立地です。建物にはエレベーターが2基設置されており、各フロアへの移動もスムーズです。敷地内には20台分の駐車場が用意されています。通信環境は光回線に対応しており、オンライン会議やクラウドサービスの活用など、現代のビジネス環境に必要なインフラを備えています。セキュリティ面では機械警備が導入されており、入退館管理や防犯体制が整っています。24時間使用制限がないため、業務時間が固定されない企業や多様な働き方にも対応可能です。室内の空調は個別方式を採用しており、区画ごとに温度調整が可能です。利用人数や業務内容に応じて効率的に管理できるため、快適な執務環境を維持できます。床はOAフロア仕様となっており、電源や通信配線を床下に整理できます。レイアウト変更や増設工事にも柔軟に対応でき、組織構成や業務内容の変化に応じた空間づくりが可能です。トイレは室外に男女別で設置されており、プライバシーにも配慮されています。このように、VORT芝浦 WaterFrontは、さまざまな企業にとって魅力的な物件です。
【周辺ガイド】
VORT芝浦 WaterFrontの周辺は、大規模オフィスビルやタワーマンションが建設され、従来の倉庫街の印象から都市型の業務エリアへと変化しています。一方で、運河沿いの開放感や落ち着いた街並みも残されており、都心にありながら比較的ゆとりのある環境が形成されています。平日の日中は周辺オフィスで勤務するビジネスパーソンの往来が中心となり、ビジネスを主とした街の雰囲気が感じられます。飲食店については、田町駅方面を中心に多様な飲食店が揃っています。和食、洋食、中華、定食、カフェなど幅広いジャンルの店舗があり、ランチタイムの選択肢が確保されています。短時間で利用しやすい店舗から、比較的落ち着いた空間で食事ができる店舗まであり、日常利用だけでなく来客時の昼食にも対応しやすい環境です。再開発エリア内の商業施設にも飲食テナントが入っており、天候に左右されにくい点も利便性の一つです。テイクアウト対応の店舗もあり、オフィス内での食事にも柔軟に対応できます。金融機関については、田町・三田エリアに都市銀行や信用金庫の支店、ATMが複数あります。入出金や振込などの金融手続きを業務の合間に行いやすく、経理業務や資金管理が発生する企業にとって実務上の利便性が高い地域です。主要な金融機関が揃っているため、用途に応じた利用が可能です。郵便局も徒歩圏内にあり、契約書や請求書の発送、荷物の受発送などを日常業務の中で処理できます。書類のやり取りが多い業務においても、移動時間を抑えながら対応できる環境です。また、コンビニエンスストアやドラッグストア、スーパーマーケットなど生活利便施設も点在しており、業務に必要な消耗品の購入や日常的な買い物にも対応しやすい地域です。芝浦運河沿いには遊歩道が整備されており、業務の合間の気分転換にも適した環境です。このように、VORT芝浦 WaterFrontの周辺は、飲食店、金融機関、郵便局、商業施設が揃った都市型業務エリアです。再開発によって整備が進む芝浦・田町エリアの都市機能を活用できる環境が整っており、継続的なオフィス利用を支える環境が形成されています。
【評価】3.8
| 駅からの距離 | 設備 | 耐震性 | エントランス |
|---|
VORT芝浦 WaterFrontの周辺地図
「VORT芝浦 WaterFront」に関するお問合せ
![]() |
|
| このページのURL | https://tokyo.kashi-jimusho.com/detail/52293/ |
|---|---|
株式会社サンエスコーポレーション |
|
| 〒103-0027 東京都中央区日本橋2-2-21 日本橋二丁目ビル5階 | |






















