
メゾン豊ビル高田馬場・大久保 新宿区の賃貸情報
物件番号:46722
メゾン豊ビルの募集中物件リスト
| 図面 | 階数 | 面積 | 賃料(共益費込) (坪単価) |
保証金/敷金 | 礼金 | 入居可能日 |
|---|---|---|---|---|---|---|
| 2階 |
G 29.76坪 (98.20m2) |
741,474 (24,915) |
5ヶ月 | 1.0ヶ月 | 相談 | |
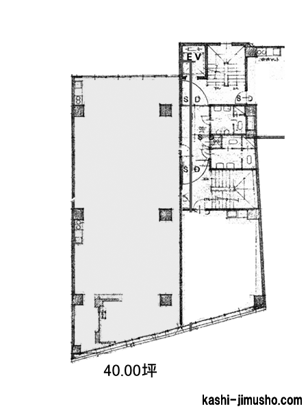
| 5階 |
G 20.00坪 (66.12m2) |
377,564 (18,878) |
3ヶ月 | 1.0ヶ月 | 相談 | |
| 5階 |
G 20.00坪 (66.12m2) |
377,564 (18,878) |
3ヶ月 | 1.0ヶ月 | 相談 | |
| 5階 |
G 40.00坪 (132.24m2) |
640,583 (16,014) |
3ヶ月 | 1.0ヶ月 | 相談 |
全4件を確認する
表示フロアを閉じる
- ※取引態様:媒介
- ※フロア図面と現況が異なる場合は現況を優先いたします。
- ※貸室内部の写真・貸室からの景色に関しては、現在の募集フロアと異なる場合がございます。
- ※保証金/敷金以外の費用については別途消費税が必要になります。
- ※各物件により、別途費用が必要な場合には、物件紹介時又は重要事項説明においてご説明いたします。
- ※面積の箇所に表示している N はネット契約(契約面積はオフィス専用部分のみ)、G はグロス契約(契約面積は共用部分を加えた面積)を表しています。
メゾン豊ビルの設備概要※-は確認中の表記になります。
| 竣工 | 1974年 (改修:2018年) | 構造・階建て | SRC造 地上11階 地下- |
|---|---|---|---|
| 耐震 | 旧耐震 | 基準階面積 | |
| エレベーター | 1基 | 駐車場 | 無 |
| ビル使用時間 | 24時間使用可 | エントランス | |
| セキュリティ | 無 | 光ファイバー | 有 |
| 契約種別 | 定期借家契約 | 建替え予定 | - |
| 保証契約 | 有 |
おすすめポイント!
新宿・大久保エリアに立地する希少な賃貸SOHOビル!

職安通りに面し、視認性が良く分かりやすい立地!
SOHO利用可能なマンションタイプの貸室内!
ワンフロア・ワンテナントの使い勝手良好なオフィス空間!
SOHO利用可能なマンションタイプの貸室内!
ワンフロア・ワンテナントの使い勝手良好なオフィス空間!
メゾン豊ビルの周辺地図
「メゾン豊ビル」に関するお問合せ
![]() |
|
| このページのURL | https://tokyo.kashi-jimusho.com/detail/46722/ |
|---|---|
株式会社サンエスコーポレーション |
|
| 〒103-0027 東京都中央区日本橋2-2-21 日本橋二丁目ビル5階 | |








