
神田岩本町プラザビル6F 20.09坪神田 東側・秋葉原 南側 千代田区の賃貸情報
物件番号: 4509
岩本町駅から徒歩2分の駅近賃貸オフィス!
- 検討リストに追加
| 図面 | 階数 | 坪数 | 保証金/敷金 | 礼金 | 賃料(坪単価) | 共益費(坪単価) | 更新料/ 再契約料 |
償却 | 入居可能日 |
|---|---|---|---|---|---|---|---|---|---|
| 6階 | G 20.09坪 (66.41m2) |
8ヶ月 | 無 |
(未公開)
|
60,270円 (3,000円) |
無 | 無 | 即日 | |
| 【空調】個別 【床仕様】OAフロア 【トイレ】室外男女別 【天井高】2,440mm | |||||||||
|
|
|||||||||
※面積の箇所に表示している N はネット契約(契約面積はオフィス専用部分のみ)、G はグロス契約(契約面積は共用部分を加えた面積)を表しています。
神田岩本町プラザビル6階20.09坪(千代田区岩本町)の周辺MAP
神田岩本町プラザビル6階20.09坪(千代田区岩本町)の設備
| 竣工 | 1970年 (改修:2021年) | 構造・階建て | SRC造 地上9階 地下- |
|---|---|---|---|
| 耐震 | 旧耐震+補強済 or 基準OK | 基準階面積 | 103.59坪 |
| エレベーター | 2基 | 駐車場 | 無 |
| ビル使用時間 | 24時間使用可 | エントランス | 平日・土開放 |
| セキュリティ | 機械 | 光ファイバー | 有 |
神田岩本町プラザビル6階20.09坪(千代田区岩本町)のギャラリー
※室内の写真は該当区画ではございません。
神田岩本町プラザビルの他フロアの募集リスト
| 図面 | 階数 | 面積 | 賃料(共益費込) (坪単価) |
保証金/敷金 | 礼金 | 入居可能日 | |
|---|---|---|---|---|---|---|---|
| 6階 |
G 22.80坪 (75.37m2) |
(未公開)
|
8ヶ月 | 無 | 即日 |
|
|
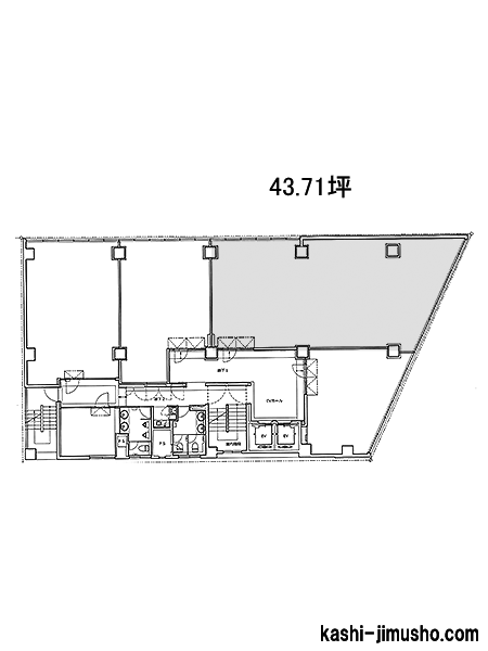
| 6階 |
G 43.71坪 (144.50m2) |
(未公開)
|
10ヶ月 | 無 | 即日 |
|
- ※取引態様:媒介
- ※フロア図面と現況が異なる場合は現況を優先いたします。
- ※貸室内部の写真・貸室からの景色に関しては、現在の募集フロアと異なる場合がございます。
- ※保証金/敷金以外の費用については別途消費税が必要になります。
- ※各物件により、別途費用が必要な場合には、物件紹介時又は重要事項説明においてご説明いたします。
- ※面積の箇所に表示している『N』はネット契約(契約面積はオフィス専用部分のみ)『G』はグロス契約(契約面積は共用部分を加えた面積)を表しています。
神田岩本町プラザビルの近隣物件リスト
「神田岩本町プラザビル」に関するお問合せ
![]() |
|
| このページのURL | https://tokyo.kashi-jimusho.com/detail/4509/344040/ |
|---|---|
株式会社サンエスコーポレーション |
|
| 〒103-0027 東京都中央区日本橋2-2-21 日本橋二丁目ビル5階 | |


























