
三共美倉ビル別館神田 東側・秋葉原 南側 千代田区の賃貸情報
物件番号:43773
三共美倉ビル別館の募集中物件リスト
| 図面 | 階数 | 面積 | 賃料(共益費込) (坪単価) |
保証金/敷金 | 礼金 | 入居可能日 |
|---|---|---|---|---|---|---|
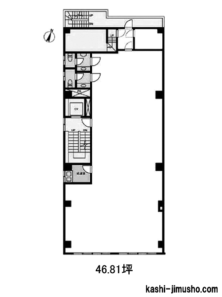
| 4階 |
G 46.81坪 (154.77m2) |
749,000 (16,000) |
10ヶ月 | 1.0ヶ月 | 相談 |
- ※取引態様:媒介
- ※フロア図面と現況が異なる場合は現況を優先いたします。
- ※貸室内部の写真・貸室からの景色に関しては、現在の募集フロアと異なる場合がございます。
- ※保証金/敷金以外の費用については別途消費税が必要になります。
- ※各物件により、別途費用が必要な場合には、物件紹介時又は重要事項説明においてご説明いたします。
- ※面積の箇所に表示している N はネット契約(契約面積はオフィス専用部分のみ)、G はグロス契約(契約面積は共用部分を加えた面積)を表しています。
三共美倉ビル別館の設備概要※-は確認中の表記になります。
| 竣工 | 1973年 | 構造・階建て | SRC造 地上7階 地下1階 |
|---|---|---|---|
| 耐震 | 旧耐震+補強済 or 基準OK | 基準階面積 | 48.61坪 |
| エレベーター | 1基 | 駐車場 | 無 |
| ビル使用時間 | 24時間使用可 | エントランス | 全日開放(制限有) |
| セキュリティ | 機械 | 光ファイバー | 有 |
| 契約種別 | 定期借家契約 | 建替え予定 | - |
| 保証契約 | 有 |
神田エリア!リフォーム済のきれいな賃貸オフィスビル!

上野 美貴
三共美倉ビル別館は、東京都千代田区神田美倉町2-2-1に所在する、利便性と機能性を兼ね備えた賃貸オフィスビルです。交通アクセスは、JR総武線快速「新日本橋駅」徒歩3分をはじめ、JR山手線・JR中央線・JR京浜東北線、東京メトロ銀座線が利用できる「神田駅」へ徒歩5分、さらに東京メトロ日比谷線「小伝馬町駅」へ徒歩7分と、複数路線を使い分けやすい立地が魅力です。都内主要エリアへの移動がしやすく、通勤のしやすさはもちろん、来訪者の多い企業や営業拠点にも適したロケーションといえます。建物は1973年2月竣工、地上7階・地下1階建てのSRC造です。耐震補強工事が実施されており、耐震面に配慮された物件として検討しやすい点が特徴です。リニューアル済みの建物で外観はタイル調デザインを起用、白を基調としており清潔感があります。基準階面積は48.61坪で、ワンフロア・ワンテナント仕様のため、1フロアを自社専用で利用できる独立性の高い空間が確保されています。他テナントへの配慮が少なくて済み、自社の業務スタイルに合わせたレイアウトを組みやすい点は大きなメリットです。設備面では個別空調を採用しており、季節や利用状況に応じて快適な室内環境を調整しやすくなっています。加えて、OAフロアを備えているため、配線計画の自由度が高く、IT機器を多く使用するオフィスにも対応しやすい仕様です。室内には男女別トイレが設置されており、オフィス環境の快適性にも配慮されています。天井高は2,500mmあり、圧迫感を抑えた使いやすい執務空間を確保しやすい点も魅力です。さらに、機械警備が導入され、24時間使用制限がないため、通常の執務はもちろん、残業や早朝対応が発生する業種にも柔軟に対応できます。三共美倉ビル別館は、神田・新日本橋エリアで交通アクセス、独立性、設備面のバランスが取れたオフィスビルです。
【周辺ガイド】
千代田区神田美倉町周辺は、都心ならではの高い利便性を備えながらも、落ち着いたビジネス環境が広がるエリアです。周辺にはオフィスワーカーが日常的に利用しやすい飲食店やカフェが点在しており、昼食や休憩はもちろん、軽い打ち合わせや来客時の食事場所としても活用しやすい環境が整っています。神田エリアらしい親しみやすい店舗と、ビジネス街に求められる実用性の両方を感じやすく、日々の業務を支える街並みが形成されています。にぎわいがありながらも過度に騒がしい印象は少なく、落ち着いて働ける環境を求める企業にとってもなじみやすい立地です。また、近隣にはコンビニ、郵便局、金融機関など、業務に必要な施設が身近にそろっている点も魅力です。事務手続きや発送業務、ちょっとした買い物などを効率よく済ませやすく、日々の仕事を進めるうえでの使い勝手のよさが感じられます。こうした周辺施設の充実は、単なる利便性にとどまらず、業務効率の向上にもつながりやすく、実用性の高い周辺環境として評価しやすいポイントです。さらに、神田エリア特有の落ち着いたオフィス街の雰囲気に加え、日本橋方面の利便性も感じやすい場所に位置しているため、食事や買い物、ちょっとした用事まで幅広く対応しやすいのも特長です。働く人にとって日常的な使いやすさがあり、来訪者に対しても都心らしい整った印象を持ってもらいやすい環境といえるでしょう。全体として、神田美倉町周辺は、オフィス街としての落ち着きと都市機能の充実をあわせ持ち、快適性と実用性のバランスに優れたエリアです。
【評価】3.8
| 駅からの距離 | 設備 | 耐震性 | エントランス |
|---|
三共美倉ビル別館の周辺地図
「三共美倉ビル別館」に関するお問合せ
![]() |
|
| このページのURL | https://tokyo.kashi-jimusho.com/detail/43773/ |
|---|---|
株式会社サンエスコーポレーション |
|
| 〒103-0027 東京都中央区日本橋2-2-21 日本橋二丁目ビル5階 | |











