
第27SYビル渋谷・神宮前 渋谷区の賃貸情報
物件番号:43179
住所
渋谷区渋谷1-8-7第27SYビルの募集中物件リスト
| 図面 | 階数 | 面積 | 賃料(共益費込) (坪単価) |
保証金/敷金 | 礼金 | 入居可能日 |
|---|---|---|---|---|---|---|
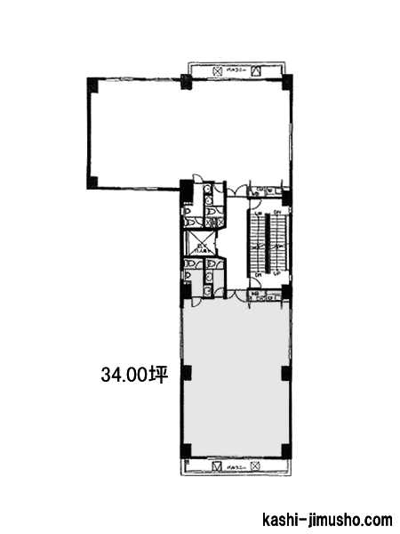
| 7階 |
G 34.00坪 (113.00m2) |
850,000 (25,000) |
8ヶ月 | 無 | 2026/9/1 |
- ※取引態様:媒介
- ※フロア図面と現況が異なる場合は現況を優先いたします。
- ※貸室内部の写真・貸室からの景色に関しては、現在の募集フロアと異なる場合がございます。
- ※保証金/敷金以外の費用については別途消費税が必要になります。
- ※各物件により、別途費用が必要な場合には、物件紹介時又は重要事項説明においてご説明いたします。
- ※面積の箇所に表示している N はネット契約(契約面積はオフィス専用部分のみ)、G はグロス契約(契約面積は共用部分を加えた面積)を表しています。
第27SYビルの設備概要※-は確認中の表記になります。
| 竣工 | 2006年 | 構造・階建て | RC造 地上10階 地下- |
|---|---|---|---|
| 耐震 | 新耐震 | 基準階面積 | 77.00坪 |
| エレベーター | 1基 | 駐車場 | 有 |
| ビル使用時間 | 24時間使用可 | エントランス | 全日開放(制限有) |
| セキュリティ | 無 | 光ファイバー | 有 |
| 契約種別 | 普通借家契約 | 建替え予定 | - |
| 保証契約 | - |
宮益坂に面した賃貸オフィス!渋谷駅近く!

野口 椋太
宮益坂に面した賃貸オフィス物件。第27SYビルは、渋谷区渋谷1丁目、日本有数のターミナル駅、JR山手線・埼京線、東京メトロ銀座線・半蔵門線・副都心線・東急東横線の渋谷駅から徒歩4分圏内です。竣工は2006年、鉄筋コンクリート造地上10階建て、新耐震基準を満たしています。エレベーターは乗用11人乗りが1基、駐車場は4台収容可能です。エントランス開閉時間は全日開放(制限有)、使用時間は24時間対応で制限はございません。オフィスフロアの基準階貸室面積は77.00坪、天井高は2,500mmを確保。OAフロア、個別空調、光ファイバー導入済、トイレは室内男女別トイレが完備されています。宮益坂はオフィスビル、飲食店舗も多く立ち並び、坂を上りきれば青山通りへと続き、表参道駅も徒歩圏内です。渋谷エリアの中でも落ち着いた雰囲気といえるでしょう。渋谷駅からも近く、宮益坂沿いの渋谷郵便局並びにあり、大変利便性の高い立地です。鮮やかな黄色い外観が目印のビル、交通アクセスも抜群で快適なオフィス環境を提供します。
【周辺ガイド】
第27SYビルは、渋谷区渋谷1-8-7にある賃貸オフィスビルです。最寄駅は、JR各線・東京メトロ等が利用可能な渋谷駅です。渋谷駅周辺には、多くの飲食店やショッピングモール、銀行、家電量販店等が立ち並んでいます。人通りがあり、賑わいのあるエリアです。第27SYビルは、宮益坂に面しています。車通りの多い周辺環境となっています。徒歩圏内にコンビニエンスストアが複数店舗あるので、ランチに便利な環境です。第27SYビルから約87メートル(徒歩約1分)の場所に渋谷郵便局、約350メートル(徒歩約4分)の場所に「渋谷ヒカリエ」、みずほ銀行渋谷支店がございます。買い物やビジネスシーンにおいても便利な環境となっています。
・渋谷郵便局 約87メートル(徒歩約1分)
・セブンイレブン渋谷1丁目店 約120メートル(徒歩約1分)
・ナチュラルローソン渋谷一丁目店 約200メートル(徒歩約2分)
・渋谷ヒカリエ 約350メートル(徒歩約4分)
・みずほ銀行 渋谷支店 約350メートル(徒歩約4分)
【評価】4.0
| 駅からの距離 | 設備 | 耐震性 | エントランス |
|---|
第27SYビルの周辺地図
「第27SYビル」に関するお問合せ
![]() |
|
| このページのURL | https://tokyo.kashi-jimusho.com/detail/43179/ |
|---|---|
株式会社サンエスコーポレーション |
|
| 〒103-0027 東京都中央区日本橋2-2-21 日本橋二丁目ビル5階 | |










